

source:google.cn
dop设计(ID:dopdesign)原创
作者丨dop设计
编辑丨丽子
施工图是业主招投标施工单位及控制成本的重要依据,更是将设计方案实现落地施工的重要指导。因此,我们画的图纸,特别是施工图图例,更需要表达的准确全面。
今天,我们就从以下几个方面来聊一聊常用的室内设计施工图图例:
1、 什么是室内设计施工图?
2、 常用的室内设计施工图图例解析
ps:文末附墙顶地节点大样合集领取方式
01. 什么是室内设计施工图?

source:google.cn
1、 概念
室内设计施工图 ,也叫装饰装修施工图,是在方案设计和扩初图的基础上绘制的,可表达建筑内部各房间的布置、装修构造和施工要求等内容的图纸。通常根据甲方确定的效果图及项目现场实制测量数据来绘制深化施工图纸。

source:google.cn
主要用于前期的计算造价、后期的项目现场施工等方面的使用。

source:google.cn
2、 图纸内容有哪些?

source:google.cn
室内装饰装修施工图包括: 施工图设计说明、施工工艺说明、材料表、门窗表、平面图、立面图、剖面图、节点图等 组成的整套图纸。
并将 施工装饰造型尺寸、施工工艺技术、制作安装方法、使用材料等标注在图纸中 。
02 . 常用的室内设计施工图图例解析

source:google.cn
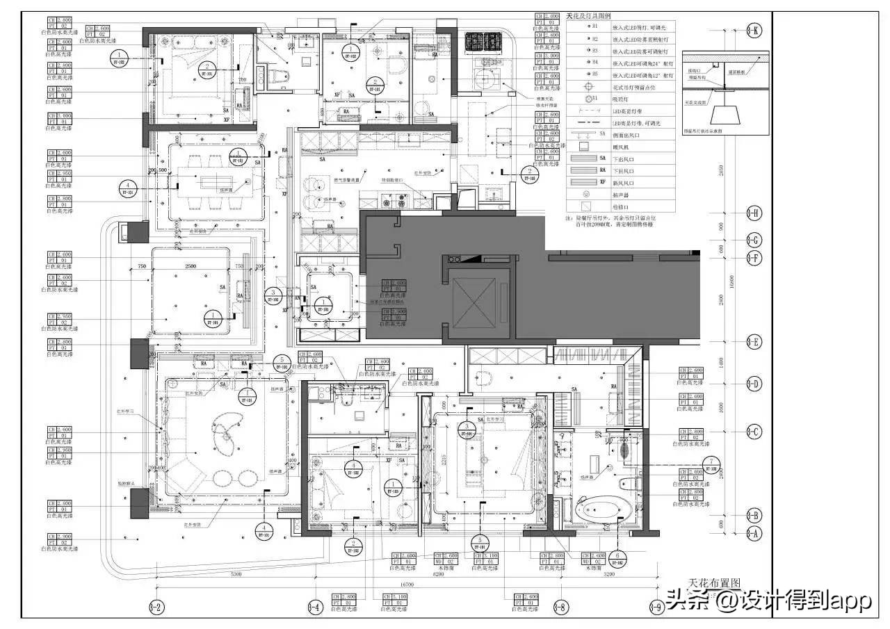
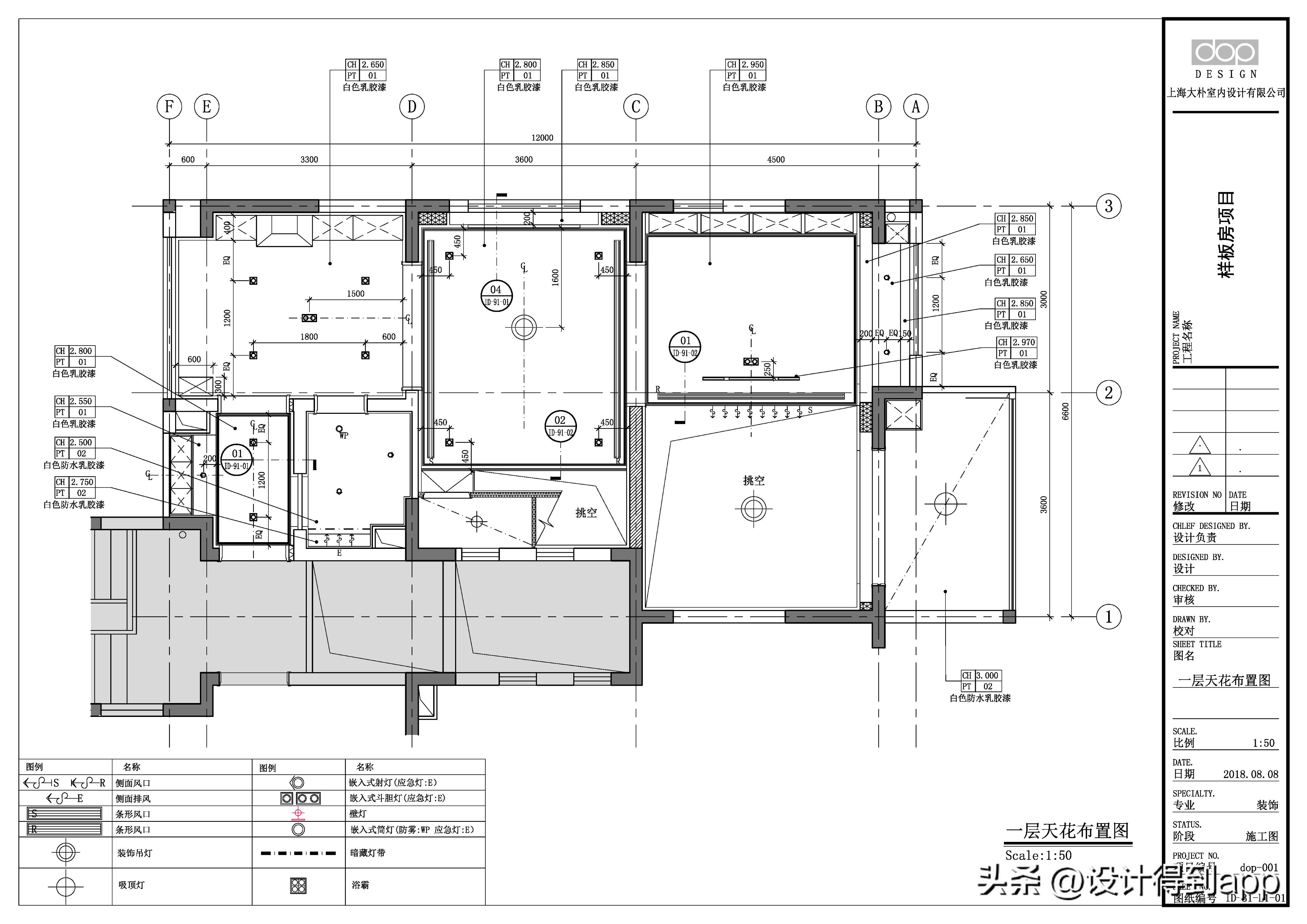
在室内设计施工图中,常用的图例有 定位轴线、尺寸标注、标高符号、立面索引符号、剖切符号、对称符号、连续符号、坡度符号、转角符号、分割符号、挑空符号、材料编号、引出线、铺贴开启位符号、门窗编号、家具柜子的到顶符号、灯具符号、机电符号等 。
1、 定位轴线
通常是沿着水平和竖直方向绘制定位轴线,并对其进行编号。水平方向用阿拉伯数字,从左向右依次编写;垂直方向用大写拉丁字母,从下至上依次编写。

source:google.cn
△图例注释
主要作用: 用来确定房屋主要结构或构件的位置及其尺寸的基线。

source:google.cn
△图纸演示
2、 尺寸标注
标注数字以毫米为单位,且与所标注的线段平行,通常用斜线作为标注终端。

source:google.cn
△图例注释
主要作用: 明确建筑、空间或造型的总体、局部或特殊部位的尺寸及位置。

source:google.cn
△图纸演示
3、 标高符号
可采用直角等腰三角形,也可采用涂黑的三角形成90°对顶角的圆,标注顶棚标高时,也可采用CH符号表示。通常其单位为米。


source:google.cn
△图例注释
主要作用: 用来标注及明确楼层、特殊位置等的高度。

source:google.cn
△图纸演示
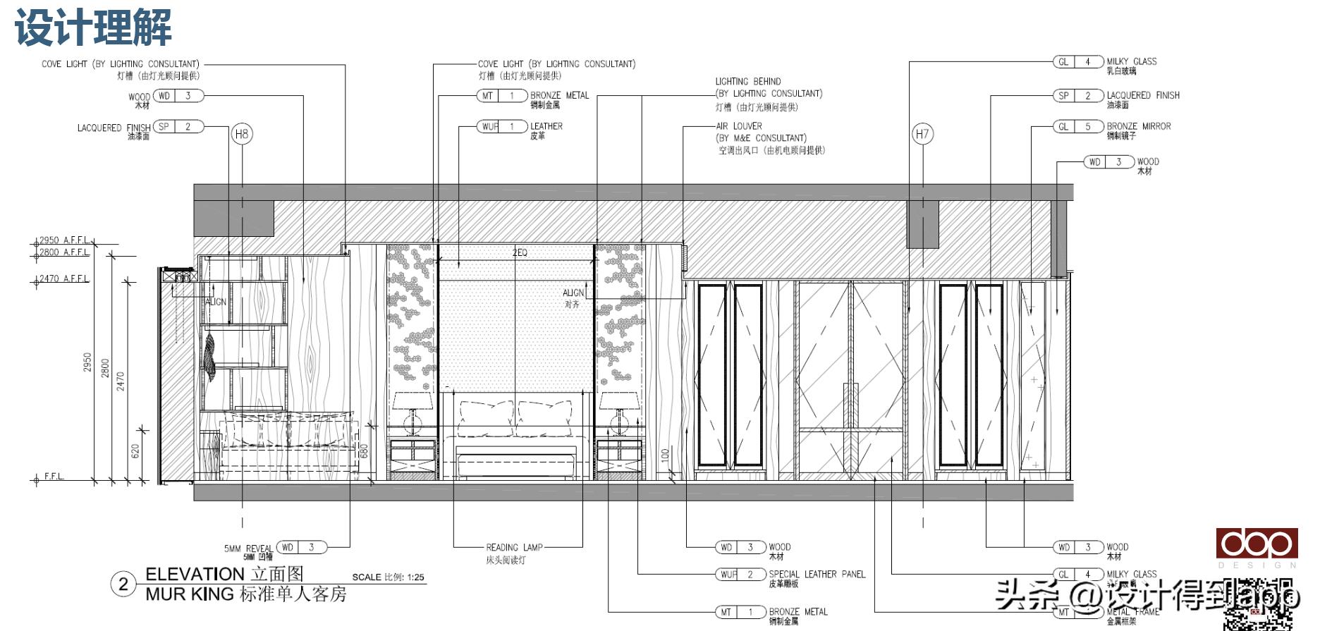
4、 立面索引符号
在平面图中采用立面索引符号时,应采用阿拉伯数字或字母为立面编号代表各投视方向,并应以顺时针方向排序。

source:google.cn
△图例注释
主要作用: 在平面图指引出立面图的方向。

source:google.cn
△图纸演示
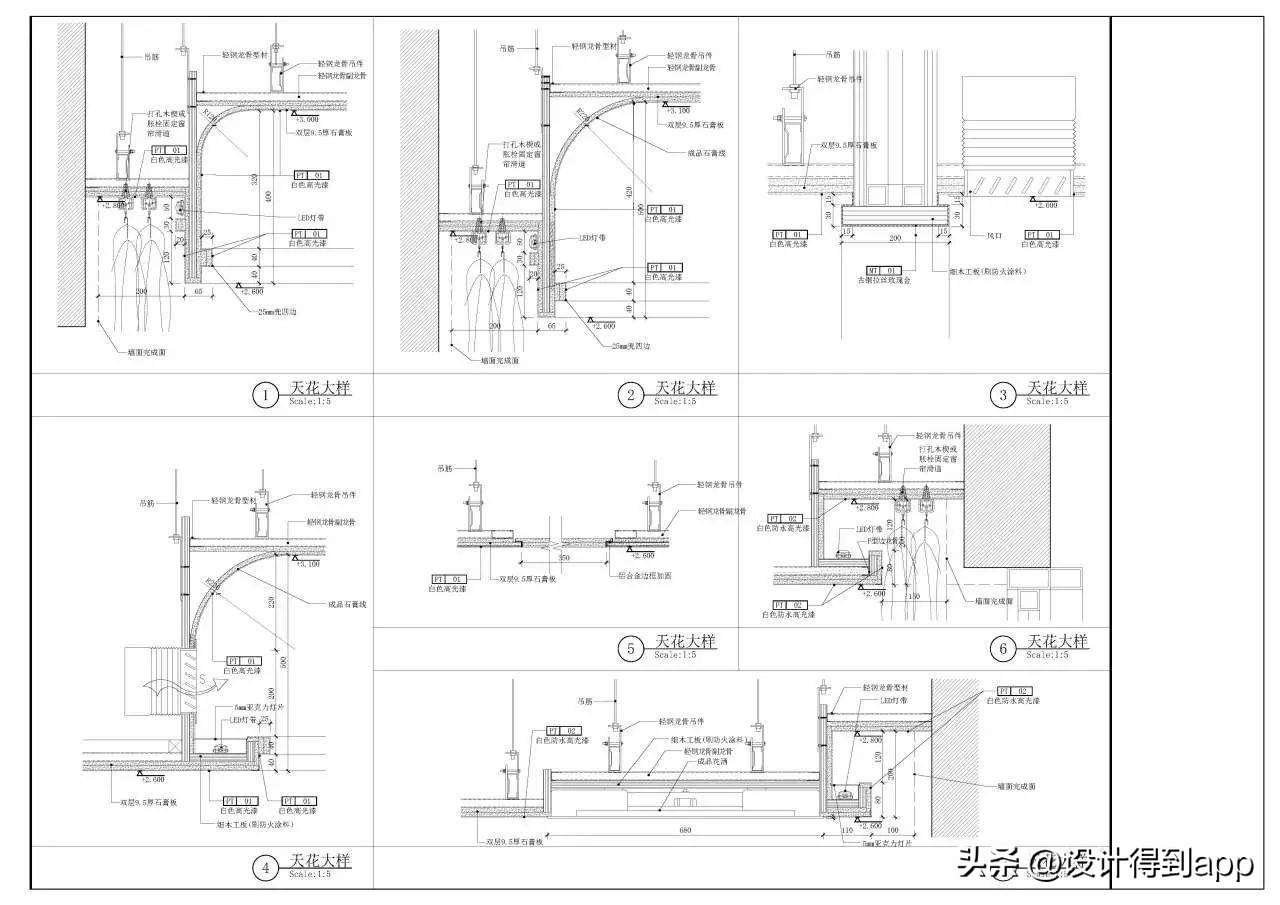
5、 剖切符号
在图号圆圈内画一水平直径,上半圆中应用阿拉伯数字或字母注明该图样编号,下半圆中应用阿拉伯数字或字母注明该图索引符号所在图纸编号。

source:google.cn
△图例注释
主要作用: 表示某个地方需要剖开做施工详图索引。

source:google.cn
△图纸演示
6、 对称符号
由对称线和分中符号组成,分中符号可采用两对平行线或英文缩写。

source:google.cn
△图例注释
主要作用: 当所绘制图纸出现完全对称时,可使用这个符号表示。

source:google.cn
△图纸演示
7、 连续符号
以折断线或波浪线表示需连接的部位。

source:google.cn
△图例注释
主要作用: 遇到材料、规律变化一样,但长度较长的图时,使用连接符号表示,可缩短上下及左右图的尺寸,放大端部图纸。

source:google.cn
△图纸演示
8、 坡度符号
通常用箭头指向为下坡方向,并将坡度值数字标注在符号上方。

source:google.cn
△图例注释
主要作用: 对有坡度倾斜位置的标注。

source:google.cn
△图纸演示
9、 转角符号
以垂直线连接两端交叉线,并加注角度符号。


source:google.cn
△图例注释
主要作用: 当绘制有转角的立面时,可用转角符号表示这里为转角位。

source:google.cn
△图纸演示
10、 分割符号
以相对的两个三角形并加中间线条符号表示。两个三角形指向的方向就是分割的空间。

source:google.cn
△图例注释
主要作用: 可以更好的标明分离开空间。

source:google.cn
△图纸演示
11、 挑空符号
用折线表示,折线分割空间不均等。

source:google.cn
△图例注释
主要作用: 用来表示烟道、风道、通高大堂等没有楼板地面的挑空空间。

source:google.cn
△图纸演示
12、 材料编号
通常由材料代码(材料英文全称的缩写)、材料编号、材料注释等组成。每个编号会有对应的表格来详细说明材料属性,每家公司材料编号会有略微不同。

source:google.cn

△图例注释
主要作用: 用来表达对应材料内容,使图纸表达更直白、简洁、清晰。

△图纸演示
13、 引出线
引出线起止符号可采用圆点绘制,也可用箭头绘制。

source:google.cn
△图例注释
主要作用: 对施工图中内容做解释的作用。

source:google.cn
△图纸演示
14、 铺贴开启位符号
一般用箭头组合而成,箭头指向扣板吊顶或地板砖的开线位置及安装、铺贴方向。


△图例注释
主要作用: 方便在施工时开位与排版。

source:google.cn
△图纸演示
15、 门窗编号
通常用对应门窗的类型的拼音首字母大写,与门窗的长宽尺寸(土建洞口尺寸)组合标注,再在门窗表中详细说明门窗的具体属性。并根据门窗编号、门表图、说明等信息绘制立面图、大样图等。

source:google.cn

source:google.cn
△图例注释
主要作用: 用来表达所用门窗的类型、尺寸、位置等。


source:google.cn
△图纸演示
16、 家具柜子的到顶符号
到顶的家具柜子在顶面用“×”表示,不到顶的家具柜子在顶面用“╱”表示。

source:google.cn
△图例注释
主要作用: 用来明确家具柜子是否到顶。

source:google.cn
△图纸演示
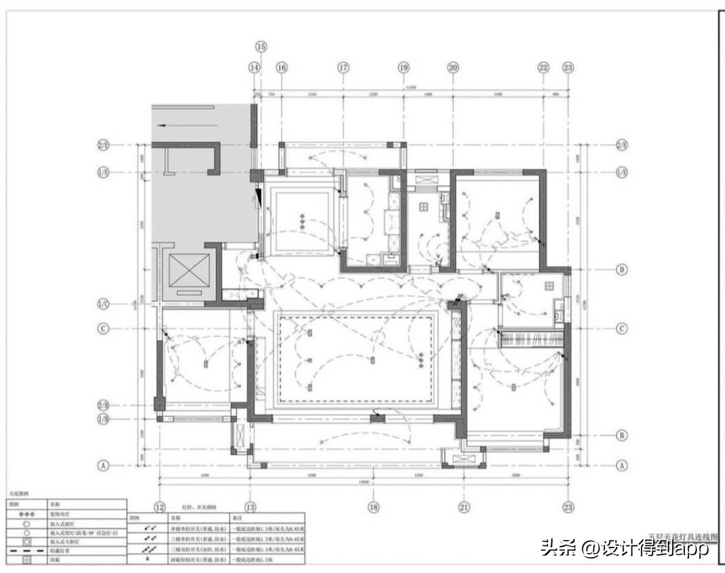
17、 灯具符号
a、 明装灯符号
通常是在平面图具体位置绘制相应灯具,再在图例说明里标注具体灯具符号对应的灯具名称、型号等内容。具体内容如下:

source:google.cn
△图例注释
主要作用: 表示各种明装灯具设置的位置、数量等。

source:google.cn
△图纸演示
b、 内藏灯符号
常用“┄┄┄”虚线表示。

source:google.cn
△图例注释
主要作用: 表示内藏灯设置的位置、范围等。

source:google.cn
△图纸演示
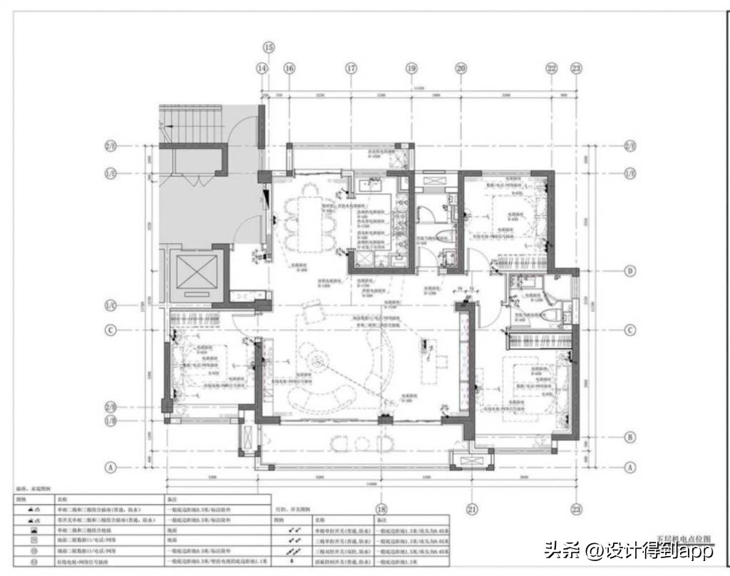
18、 机电符号
通常是在平面图具体位置绘制相应机电符号,包括插座、开关、电箱等,再在图例说明里标注其对应的名称、型号等内容。具体内容如下:

source:google.cn
△图例注释
主要作用: 表示各种机电点位设备等设置的位置、数量等内容。

source:google.cn
△图纸演示
小结 .
好了,本期的dop干货就到这儿,如有帮助,评论区扣“ 日拱一卒 ”,支持一下dop~
留言超 超过10条 。下一篇,我们来系统的盘一盘《 各种收边收口的底层逻辑 》,敬请期待~
最后一张图,总结全文,点个赞让我知道你在看吧

△点击保存,欢迎转发分享
△文中部分图片源于网络,如有侵权,请联系小编~
文章首发:设计师必备!常用室内设计施工图图例解析,转载请联系小编
- End -
如有帮助,还请 点赞支持一下
文中部分图片源于网络,如有侵权,请联系小编~