今年来,晋江市统筹谋划首批14个标准化试点园区项目,总用地12000多亩,建成可新增1318万平米,可完成投资690多个亿,推动工业园区从单一聚集产业链“2.0版”迈向打造产业生态、产业社区的“3.0版”产业园区。
近日,晋江市召开工业(产业)园区标准化建设专题汇报会,14个综合产业园区比拼晾晒。
14个综合产业园区规划建设情况
金井绿色新材料产业园项目

土地面积2653亩,聚焦绿色新材料领域,围绕产业定位策划,构筑“3家龙头企业+2个标准化厂房+1个标准公寓社区=1 条纺织新材料产业链”的“3211”发展模式,形成以“绿色、低碳、循环”为特征的新活力园区。争取用2年时间,至2024年底新增入驻运营企业30家,新增标准化厂房约158万㎡,年产值超150亿。
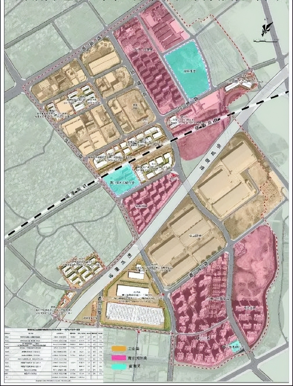
集成电路装备产业园项目

总规划面积约1.2万亩,是晋江市集成电路产业“三园一区”布局中的重要一园。策划实施新建和在建项目8个,计划总投资38.8亿元,新建标准厂房、污水处理厂和变电站等3个项目,推进南天南路、檗谷南路、跑马路、景观北路和滞洪区等5个在建项目建设。
安海高端装备制造产业园项目

土地面积1055亩,聚焦产业机械、工程机械及汽车配件、机械基础配套等智能装备产业链领域,共策划22个项目,其中产业项目11个、市政配套项目11个,总投资46.1亿元。
龙湖现代纺织产业园项目

龙湖现代纺织产业园,紧扣“产业集聚+数字化”两大主线,引进高新技术和先进设备及制造技术改造传统纺织产业。目前园区入驻企业3家,2022年预计新增投资10.5亿元,新增建筑面积16.6万平方米,力争年底前新开工项目2个。
新塘园工业园区标准化建设项目

园区总用地面积3800.44亩(其中:新塘园3399亩,良种场场部及周边部分地块401.44亩)。园区内闲置低效地块和厂房共有10宗(9宗地块,1个场部),用地面积共381.35亩,预计可新增建筑面积共计58.32万平方米。园区生活及生产配套基础设施项目有季延中学新塘校区、晋江第九实验小学、晋江第九实验幼儿园、“*党**建+”邻里中心。
五里高新综合产业园项目

选址经济开发区五里园,规划面积约3492亩,预计总投资156亿元,分成三个片区进行改造提升。其中,东片区1619.5亩,南片区1250亩,西片区622.5亩。产业园共策划生成51个项目,涉及产业项目16个、公共配套项目2个、市政配套提升项目33个。
安东绿色智能染整产业园项目

项目选址晋江经济开发区安东园, 总规划面积3876亩,涉及改造提升项目用地面积1557亩,共有项目20个,总投资60亿元,拟新增产业建筑面积74万平方米。
福建省集成电路产业园区(科学园)项目

2016年,福建省集成电路产业园区(科学园)工作专班按照集成电路产业专业园区开始布局建设,目前,已落地两大龙头,基础设施配套比较完善。园区标准化建设实施以来,筹备组结合科学园提质扩容,策划福建省集成电路产业园区(科学园)试点园区,总用地面积6084亩,进一步梳理试点园区产业定位、规划布局和功能配套。
东石镇金瓯工业区项目

位于东石镇金瓯村,北邻安海东连接线,西邻安东路,南邻福厦高速。项目总用地705亩,其中工业建设用地470亩,非建设用地235亩。目前入驻园区企业33家,占地面积175310.85平方米,年产值约20亿元,贡献税收640万。
深沪服装印染生态科技产业园项目

下设浔兴拉链智能工业园、东海垵开发区、国际衣袜产业园(原深沪中小企业创业园)。园区总面积1965亩,计划新增产业建筑面积92万平方米。
陈埭标准化工业园项目

规划面积约1010亩,为分散型园区,分别为三斯达鞋纺园地块、西霞美地块、江头地块。园区计划总投资35亿元,整体建设完毕后,预计可新增产业及配套面积150万平方米。
永和第二工业区及拓展区项目

项目从区域内低效地块较为集中、交通较为便利、教育配套完善等三方面统筹考虑,初步确定4个区域地块,面积共1047亩。已初步针对内厝、邵厝、周坑、西坑等区域进行规划设计,并结合永和产业发展方向,策划了6个项目。
内坑镇品牌工业城项目

总用地面积3550亩,建设用地面积2420亩,计划总投资约102.88亿元,重点招引卫生用品、鞋服、装备制造等产业。其中,贵人鸟内坑工业园、恒安内坑智能化生产基地(二期)等2个项目被纳入晋江“四个一批”项目。
英林时尚服饰产业园项目

项目借助英林镇及周边乡镇服饰类产业集聚优势,为主招引服装、泳装、健身装等服装类中小型企业及其上下游配套产业。试点园区总策划21个项目,其中产业项目15个,市政配套项目6个,总投资36.65亿元;可新增总建筑面积100万平方米。
来源:晋江市政府办、晋江电视台