垃圾箱是本生的意义就是为了人们进行服务的,所以在垃圾箱的尺寸设计上要有一定的人性化设计,既不能太高也不能太矮,主要以人为本。
同时垃圾箱的体积不能设计的过大,因为城市垃圾箱主要是投放在城市的各个道路上。所以不能太占地方。这样不会阻碍人和车辆的行动。垃圾箱投放口的尺寸也不能设计的太大,这样会让素质不高的人进行远距离“投射”。
还有就是垃圾桶里面装盛垃圾的内筒要尽可能大,垃圾桶主要的功能就是装垃圾。所以内筒能装盛是很重要的。还有就是要方便收垃圾的工人能够便捷的收垃圾,这样可以提高工作效率。
垃圾桶在日新月异发展的今天有着不可或缺的作用。在城市的各个角落,都有着它们的身影。所以说在设计他垃圾桶的方面我们要考虑的事很多不仅要考虑他的美观大方,还要考虑他的实用性和在造价方面的问题。
垃圾桶在城市里主要是做的事盛放垃圾和分类,说道分类真的不陌生,在前面也提到过分类的问题。分类现在是整个社会所面临的问题。在垃圾桶上同时也要注明垃圾分类的图标让大家好更好的去认清什么样的垃圾因该让他们归类在什么地方。
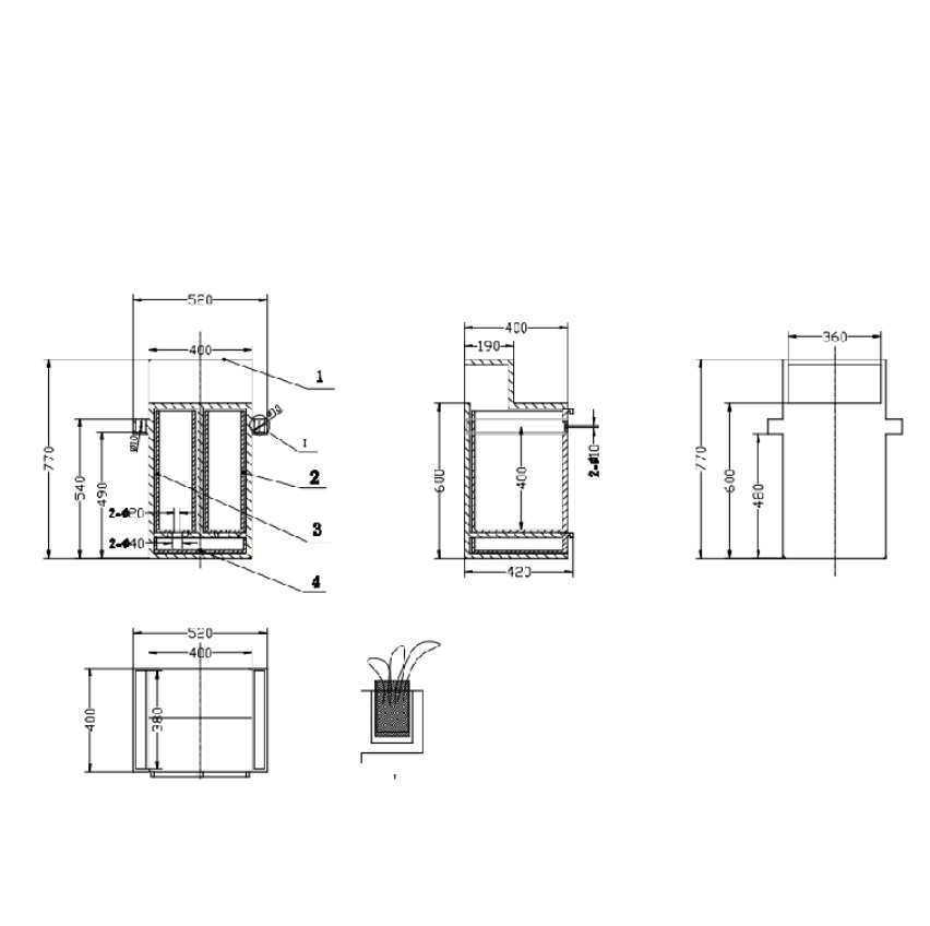
本次垃圾桶的设计主要是主打简洁大方,和节省材料。还有就是垃圾桶上面设计了两个花盆槽,这主要是考虑到了本次设计的垃圾桶的使用是在城市里面使用,说以设计了一个花盆槽,用来放花盆美化城市环境,同时让垃圾桶看起来不那么单调。还有就是本次垃圾桶还单独设计了一个污水槽,这个污水槽是用来收集垃圾中的废水,然后再进行集中处理,防止垃圾废水对环境进行二次污染。垃圾桶的箱体材料是不锈钢制成,里面盛放垃圾的内筒同样也是不锈钢这样可以保证使用寿命更长久。


图1垃圾箱装配图