记得给“装小蜜装修监理”点个关注哦~分享各种装修知识和干货,带你避开那些装修里的坑!
#01
梦想很大,
面积很小
本期家装案例,房子只有76㎡,却要住4个人:分别是屋主、屋主男友、男友妈妈和男友弟弟。
每个人,又都有自己的绝对刚需:
男友的妈妈要看电视机,男友的弟弟要接电视打ps4,男友强烈要求要有一张大桌可以放电脑在家办公,而屋主,想要一张梳妆台和一面全身镜;
此外,关于某些材质某些家具和某些颜色的布局,男友全家都有风水的考量;
其次,大家都是成年人,每个人也有自己的审美:
屋主想要的是端庄大气优雅,一点工业风,再加点童趣;
男友喜欢日系风;
男友弟弟要简约风;
男友妈妈要温馨;
同时——家里还养了一只“不是主人胜似主人”的猫。

▲
先来看看猫~
要调和人已经不容易了,还有一只猫需要照顾,换做是你,一定会脑容量爆炸吧?

但是,今天的这位屋主
她,全部做到了!
一个想法都没舍弃!!

▲
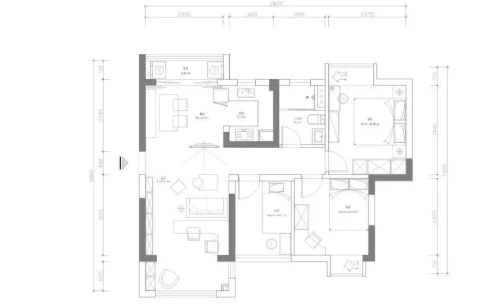
屋主:大灰狼妹妹
户型:3室
面积:76㎡
花费:32W
坐标:广东-佛山
改造前

规规矩矩的三室两厅一厨一卫的户型,南北通透、双阳台。
缺点是无玄关, 76㎡是实测面积,得房率不高 ,属于看着还行,其实每个区域面积都很小。
改造后

应风水所需,两间北向次卧床头朝向有调整;
卫生间从精装修的进门左台盆右马桶改为直线动线;
厨房改开放式;
将厨房里精装预留的冰箱位改为炉灶,原炉灶位改台面;
打通北向阳台,划分区域为工作区;
沙发电视位置的调整;
#02
物业允许前提下,
榨干每一平米


▲
大门口
屋主家全屋精装仅留大门和门槛石 ,是为了不与一众邻居家比起来特立独行招惹贼(及省钱),屋主戏称这张为全屋最丑的一张照片——计划贴的门后毛毡也一直拖延还没处理。
从屋内望去,打开门左手边为超薄智能鞋柜,右手边有一个壁挂折叠式隐形换鞋凳。


▲
餐厅望向客厅
这个空间原本应该完全属于客厅+阳台,可能不太好理解:现在这面柜子为原本的电视墙,对面是原本应该放置沙发的位置,无台阶。 屋主把阳台门拆除,包进来与办公区域同时抬高地面,形成办公区域,剩下一半原客厅位置打横放一两人位沙发及茶几。
墨绿色沙发是屋主在所有的动工之前就确定下的家具,于是后面顺势确定的洞洞板颜色、卧室墨绿色窗帘。

▲
走廊看向客厅
屋主为了让家里的空间显得更有层次感,在这里做了一个 台阶 ,尽量不让人觉得只是随便乱放置家具。台阶下埋了灯管,一直延长到柜子下门口边。
这面柜子的布置也花费了很多精力。进门右手台面放置了一个钥匙盒,宜家小木人(现在用来挂口罩),以及一个肠胃硬币收纳画。柜子下方为鞋柜,加上门口的超薄鞋柜刚好能放下所有人的鞋子。
开放口格子放猫咪的所有物品,开口格下方镂空主要有三个功能:
左边为鞋柜,侧板切割了一部分嵌入金属通气板,加强透气;
为了放置宜家踏脚凳小梯子——原本也考虑过放猫砂盆,实在太臭了换放这个凳也刚刚好;
为了方便后面的弱电箱以后也能方便打开;
四个抽屉放置客厅和办公区的杂物,中间镂空台面长期放的有胆机,一套手冲咖啡的东西,超声波清洗机,浇水壶,屋主回家时包包和手上提的东西也是会先放在这里,非常方便。


柜子右方凸出的两块板是方便猫咪寿司跳上去玩耍的。
柜顶的窝屋主的猫寿司很喜欢,高,可以俯视全场,而且绝对没有人能打扰到它。屋主还垫了一块绒绒布在窝里,下午寿司经常睡那里~


上面两行玻璃柜门,来自于屋主小时候家里老式玻璃门书柜带来的执念。
结果屋主几断舍离后,使得这里的书柜迟迟没有被填满,于是剩下的三个格子就被家属侵占放他的A锥,相机,无人机,玩偶。 最最上面一排白色柜门,则是收纳家属各种玩意儿的盒子……

▲
夜间客厅全貌
绿色的是柠檬树

▲
沙发视角
顺便秀秀猫~


书房本无缘,开局一客厅,剩下全靠编。
定制桌腿,定制桌面。桌面上一台笔记本电脑,一个可无线充电的手机支架,连电脑支架都是可折叠超薄的。屋主男友用双显示屏支架节省桌面来放,很多东西。


▲
收纳之王—洞洞板
左下角是屋主男友不知道从哪儿淘来的N合一索尼电子闹钟。这个桌面下方是屋主至今不知道多少钱——只知道带跑马灯是水冷——的浮夸主机。

装饰画来自常玉的《八尾金鱼》,这里的整体布置思路是:
略带的中式禅意和餐厅的Y椅呼应;
颜色和右方的洞洞板呼应,和下方的墨绿色沙发形成对比色;
金鱼又能和对面柜顶猫窝呼应,整体优雅又有一丝童趣,和整屋的简约风很搭,却又灵动不生硬、不简单;


▲
办公区域
左侧即原来阳台区域,屋主合在一起用了胡桃木鱼骨拼,台阶包边为枪黑色金属。
阳台柜收纳全家杂物,纸,行李箱,nas,瑜伽垫,药箱,工具箱,备用零件等等……

▲
上图椅子看向阳台另一边视角
水管没有用常见的水泥包起来,屋主和家属选择自己买麻绳将水管缠住。
本意是给猫咪多留个玩耍的地方,然而结果是这里的杂物屋主经常不及时收进柜子里,猫咪不太方便进去玩,好奇心阶段过后便兴致阑珊了,及时收纳还是很重要的~

阳台顶屋主挂了一个丹麦品牌 平衡吊饰 ,阳台风很大,三只小燕上下翻飞是都市里一个小小的浪漫。旧时王谢堂前燕,飞入寻常百姓家。是不是也能和常玉、Y椅呼应上,又有一丝童趣呢?
这面窗本身是拆了精装重新装了一整面玻璃,视野很好,但在宜家买多了一个书柜,只能暂时塞在这。

阳台的摇椅是寿司另一个大本营,这里可以晒太阳,可以看外面蝴蝶飞鸟儿叫。


N合一蓝牙音箱,可以放唱片,可以放磁带,可以放光碟,可以做收音机。


▲
黑框弧形全身镜,黑色草帽灯
餐椅分别为银色铁艺椅,Y椅,对面为一条凳。角落放宜家小推车收纳茶具和零食。条凳下是寿司的第三个大本营,贵妇沙发猫抓板。

屋主家的电视在这张视线正前方位置,将电视悬挂在了一个不锈钢柱子上。

▲
这个视角可以更清楚看清电视机的摆放
电视可以以柱子为圆心,进行180°旋转,也就是说:可以把电视转过去餐厅那边,一边吃饭一边看电视;也可以转回来,家人们一起聊天放松。


▲
入住很久后的厨房状态
地砖深灰,橱柜柜门肤感中灰,台面浅灰大理石,上层橱柜柜门白。
橱柜内部是双层蜂窝铝不锈钢。广东地带,屋主对比后看到防潮,防虫就已经心动,再加上绝对环保无甲醛这个优点,最终效果非常满意。不过最后出于预算及颜值的考虑,柜门及台面是没有用不锈钢的。

原来的精装橱柜味道大、颜值低,而且布局极不合理,于是屋主将厨房精装门和精装橱柜全部拆掉。
冰箱原放置在现在炉灶位,炉灶在唯一完整的台面上——这怎么够用!现在则是将冰箱挪出来,放在厨房梁下,不常开的阳台推拉门前。


屋主把原来精装的走廊吊顶也拆掉,换成最简单的式样。
从这张可以看到 动静分离的静区:左侧黑框玻璃门为卫生间,右边两间卧室,末端为主卧。木地板本身是可以和地砖直接无缝拼接的,但是各种“机缘巧合”之下,现在进入卧室是水泥色地砖-黑色门槛石-黑色收边条-胡桃木木地板。

▲
来自主子の凝视


屋主想拥有一个不太一样的卫生间~
防水防雾射灯,白墙上是黑色卫浴,黑墙上是白色电热毛巾架(广东必备!强推!)和白色马桶。深灰色岩板一体浴室柜,淘宝单独买的黑色镜柜。


推开走廊最底部的门,就是主卧。

床头灯:一个吊灯一个壁灯,给不大的面积增添了一些层次感。
灯泡上/灯泡后造型为月球表面,深灰水泥质感,用来呼应外面水泥地砖。
1.8M床,衣柜,床头柜,衣架,梳妆台。麻雀虽小,五脏俱全。

为了避免压抑,屋主没有做通顶的衣柜,而是做了局部吊顶。

▲
长虹玻璃移门衣柜
一方面是为了通透,另一方面是屋主喜欢长虹玻璃这个元素。

▲
屋主的梳妆台
桌子是宜家电脑桌,宽度仅40cm,特别适合小户型。右下三格抽屉也是宜家的,尺寸各方面都是刚刚好,白色折叠椅同样来自宜家。这套宜家混搭,不超过500块。而且没有木头,没有任何甲醛。
上面黑色翻折镜同样是宜家的惊喜,完美解决镜子占桌面位置问题,镜子正对床头问题,同时还有一排挂钩,屋主用来随手挂耳环。


▲
屋主男友弟弟的房间

▲
床尾视角
屋主弟弟的要求是,床可以不大,但是桌面一定要宽敞!

▲
床头视角
原精装的大理石飘窗全部打掉,换成木质包窗。做法是用木头打底,然后贴上木饰面。木饰面色号为科定K6350。


▲
给高达一个特写
反过来说,面积很小,但是感情可以很大。和爱的人住在一起,才是家的意义。
END
听说爱点赞、评论、关注的小伙伴
房子和主人一样好看哟!
