【室内设计胶囊】
一个方案的17种表现形式,都是优秀的方案设计
这是一套总面积为108平米的平层住宅,需要2个卧室加个书房。业主背景拟自定,请在施工可行范围内自由发挥。
本篇资料会赠送给大家【梁志天CAD平面布置方案素材合辑家装工程别墅+邱德光大师欧式新古典别墅CAD平面图】源文件的,咱们页尾见哦!

正文开始啦
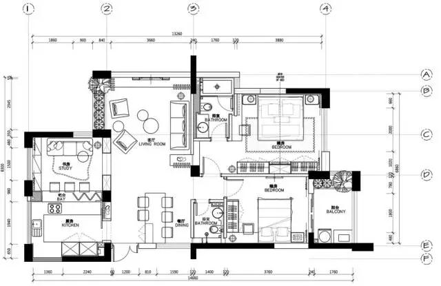
原始户型图

方案1
通过客厅和书房功能的整合,餐厅与厨房的整合,让整个空间富有趣味性。通过设计,让室外的景色能最大限度的引入室内,既保障采光又能解决通风。


方案2
开敞的生活空间,电视那面墙可以放观影幕布, 动静分区合理,卫生间配套全。相对与开敞的客厅空间,厨房位置有点牵强。


方案3
这是七个方案里,唯一把客厅放在靠阳台位置的,当时自己在布这个平面方案的时候,也有尝试过,但是被那卫生间挡住,即使把卫生间往上移,餐厅又不知道放哪里了,所以最后作罢!这个方案,虽然有很多的不足,但是设计师的想法还是非常创新大胆的,光光这点就值得肯定了!

方案4
设计师还在主卧旁边还放了一个小小的婴儿床!很贴心!餐厅厨房的位置与形式调整,形成水吧吧台等功能的延伸,餐厅空间也更为宽敞与舒适。


方案5
充分尊重及利用原始结构的基础上尽量最大化地利用空间,非常适用于居住空间,这种以不变胜万变的布置方式是最容易打动客户的,我们不能仅以设计师的思维来看待所有方案,客户要接受我们的设计包含了太多因素,如果仅仅是形式化的为了花哨而变化的方案是没人愿意买单的。

方案6
整个方案突*局破**限,可能整个占比中客厅显得比较狭小。卫生间干湿分区很到位,主卧布置了衣帽间,功能更加完善。


方案7
很用心的设计,书房那两排书柜的设计,既起到装饰的作用,同时也起到了隔断和收纳的作用,公卫处也有做一小块墙面玻璃,给暗卫增加了一点采光,书房和厨房的隔断设计上很有创意。



方案8
看到这里是第一个保留了生活阳台的方案,从多个空间效果上来说是局促了点,不过功能决定形式,家的功能也都满足了的,还额外的在主卧增加了阳光浴,很有意思,当然这个点会不会被接受和能否实现都无所谓了。

方案9
设计师之家,每天面对各种方案,身心疲惫,回家就想舒服释放,所以空间必须开敞。身为设计师工作室必须要有的,大大滴厨房,是给爱人精心准备的,还有最喜欢边晒太阳边看剧,客厅的飘窗被她一直霸占。还有大大的卧室适合父母小住,以及可以充当临时客房的工作室。

方案10
空间很整体又不会太死板,犹如简述中的生活如一抹阳光,缓缓暖心。实用的入门玄关,宽敞的客厅空间。适合二人世界。

方案11
时尚摩登的二人世界。卧室借鉴总统套房格局,有时候也是一种讨巧的思路。

方案12
眼前一亮,各个功能都安排到位!比较舒适适宜,特别适合有小孩的业主!空间规划的很合理,还有单独的生活阳台,主卧室也大气 。收纳是硬性的空间需求,但是同时也是空间构造的重要载体。

方案13
原结构分布空间较为呆板,屋主向往豪宅的宽敞大气。本案大胆将客厅进行位置调换,方形餐厅即为动线中枢,也成为空间中的聚焦点所在。

方案14
首先门厅有更衣室设置很方便贴心,功能布局后很合理。餐厅厨房的位置与形式调整,形成水吧吧台等功能的延伸,餐厅空间也更为宽敞与舒适。

方案15
彩平效果做的很好,客餐厅关系处理是亮点。每个卧室都具备完善的功能,满足两个卧室一个书房的需求。

方案16
整体比较中规中矩的方案,亮点在于书房位置很棒,既可以休闲亦可以实用做晾衣。

方案17
空间通透大气,书房还能做临时客房,相当于有三个卧室,整洁大气。很多看似零散的空间模块,巧妙组合一起后,会散发强大的功能气场空间,堪称“百宝箱魔法空间”。

本篇资料会赠送给大家【梁志天CAD平面布置方案素材合辑家装工程别墅+邱德光大师欧式新古典别墅CAD平面图】源文件的,咱们页尾见哦!以下为资料部分图片












想要获取【梁志天CAD平面布置方案素材合辑家装工程别墅+邱德光大师欧式新古典别墅CAD平面图】源文件的,私信回复“梁邱“”即可获取哦!
希望这个资料能给你带来帮助!