木门内部结构

木门的组成部分和内部结构

木门内部结构分解图

附件有贴脸板,筒子板等(木门的组成如图7—2所示).


实创3,6,9系巴赫曼木门之二:门板工艺结构

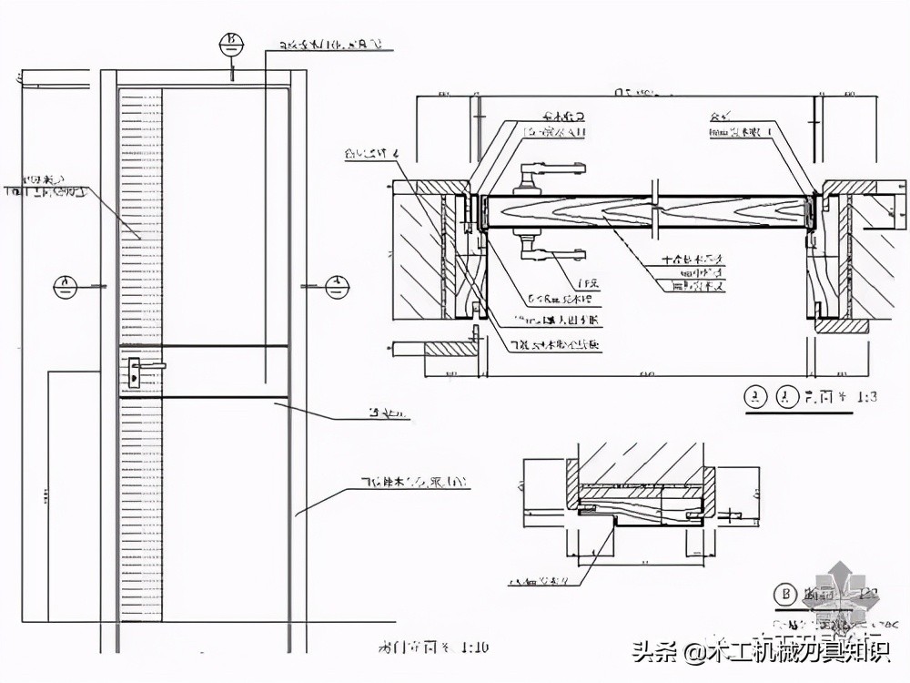
家居卧室木门详图_室内设计

钢木门整体结构示意图


整木家具之木门结构详图
木门内部网状结构填充改为桥洞力学板结构


实创3,6,9系巴赫曼木门之二:门板工艺结构


实木门的门套结构制造技术

木门内部结构

木门的组成部分和内部结构

木门内部结构分解图

附件有贴脸板,筒子板等(木门的组成如图7—2所示).


实创3,6,9系巴赫曼木门之二:门板工艺结构

家居卧室木门详图_室内设计

钢木门整体结构示意图


整木家具之木门结构详图
木门内部网状结构填充改为桥洞力学板结构


实创3,6,9系巴赫曼木门之二:门板工艺结构


实木门的门套结构制造技术
