方案解读
品质为王,货值兼顾
今天给大家分享济宁豪宅项目方案文本。
白银时代,深掘资源
本案位于济宁市任城区,项目位置周边医院,学校,农贸市场等配套较为丰富,乃此地一大优势。基地西北侧有南池公园, 东侧紧临老运河,景观资源较好。
项目所具备优势
1.景观资源丰富,紧邻南池公园,老运河拥有河景和绿地视野。2.位于主城区,交通可达性强。3.周边同品质竞品少。
项目所需要克服问题
1.周边建筑景观性较差。2.高端配套较少。
项目片区属老城风貌保护区,非传统高端住宅区域 竞品规划大部分以多层为主,无洋房、别墅,少量高层。社区规划无亮点。
竞品总结
需要设计——产品创新
需要创造——差异竞争
需要最大——货值兼顾
瞄准客群,创新产品——定义豪宅
融合新生,传承文脉
豪宅关键属性
稀缺——稀缺的资源占有和独享性,富人圈层的区域聚集性,独创性与唯一性的大师级设计;
规划——隐秘性和奢享性的建筑空间,小型化和精致化社区形态;
形象——极致化的建筑审美倾向,优质化与复杂化的建筑工艺,非标准与定制化的建筑材料;
文化——艺术性与文化性的建筑气质;
配套——酒店化与定制化的配套服务;
项目有什么?济宁地区历史文化悠久,是东夷文化、华夏文明、儒家文化、水浒文化、运河文化的重要发祥地之一。济宁是运河之乡,老运河由西而东进入济宁城,在繁华的市中心向南折起一个大弯,入夜时分,满城灯火映入水中,流光溢彩,璨若星河。
深厚的人文底蕴——古老历史的文化复兴
材料记忆;场所精神;人文底蕴
便捷的居住环境——现代生活的居住诉求
现代商业;丰富业态;动感街区
优——品质为王;大——货值兼顾
规划推导
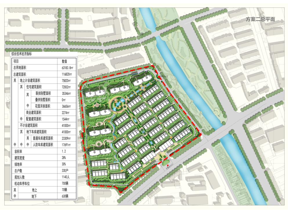
从本地块的先天条件来说,1.2的容积率做足并不困,我们要思考的是,如何容积率一定的前提下实现货值、产品、市场销售的平衡点。
规划逻辑(基本的布局形式)1.2容积率+28%的覆盖率——平均层数(1.2/28%)=4.28层
规划与产品组合的可能性——别墅+洋房,叠拼+洋房,别墅+叠拼+洋房,全洋房结论:必须完美利用两个最大:即容积率最大和建筑密度最大。综合景观的高利用性和地块的利用率,选择洋房布置在西侧或北侧;
综合景观的高利用性和地和城市肌理的关系,选择别墅布置在南侧或东南侧,且南侧临路别墅朝向与城市道路平行,西侧靠近现状住宅的朝向与现状住宅保持一致。
通过规划设计创造独一无二的稀缺性,以此获得定价权,并使客户愿意为此买单气质大宅。
文化传承——运河文化
规划理念——气质大宅
气质引领——品质豪宅
豪宅品质=超大花园+资源占有+礼仪入住+星级配套+移步异景
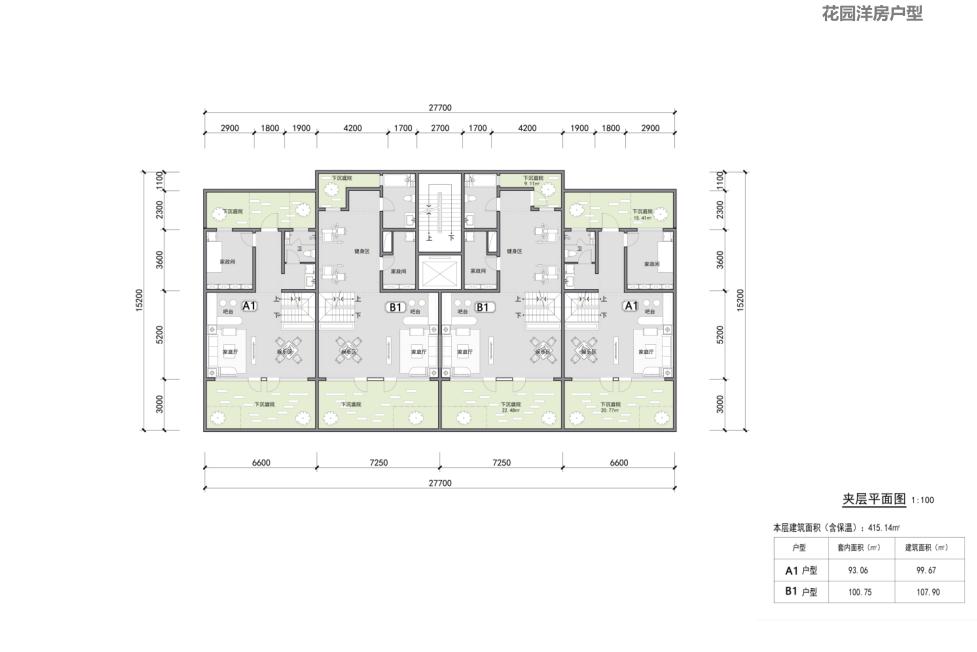
产品设计
如何最大利用土地资源
优先需要解决的
日照条件 → 产品类型 → 资源分配
高端产品用地尽量方正
高端产品用地面积必须最大
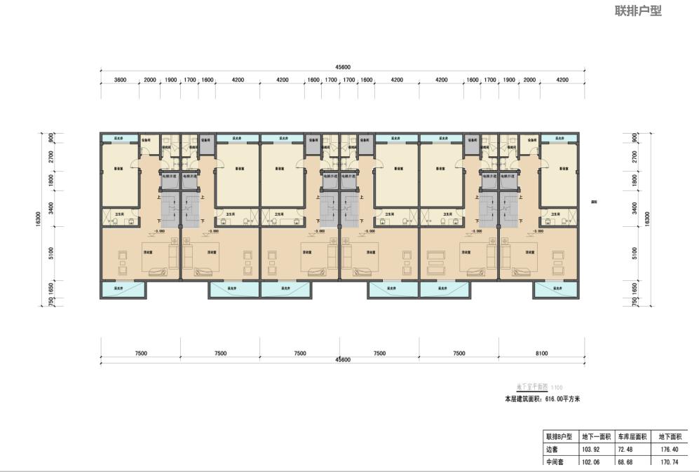
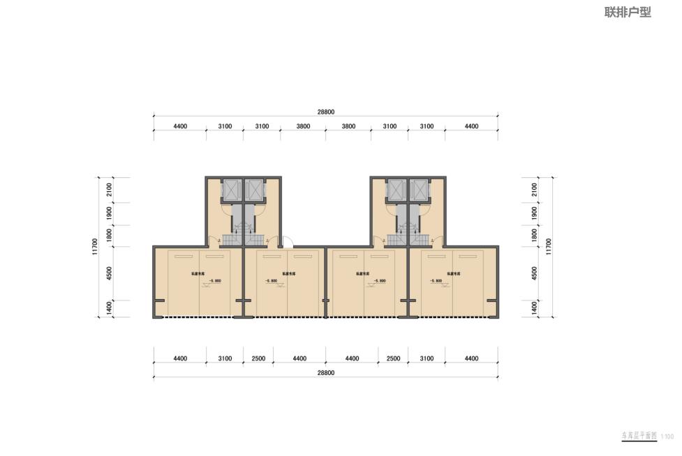
底TOWN能带来哪些突破?
底TOWN户型的优点
一户两层,节约用地
首层直接入户,不占用电梯资源
带有别墅属性,产品附加值高,溢价空间大
赠送庭院,增加专属私人空间


























































































