大家好~!这里是魔都小房弟团队
买房记得找小房弟哦,以下是正文:
嘉定,作为五大新城之中,产业、配套发展较全,且因其距离市区最近。这几年成为上海刚需人群集中上车的理想地之一。
区内的各个板块属性明确,自成一派,加上11、13、14号线连接市区,嘉定在目前的上海新房市场可谓是十分瞩目。

这次小房弟团队带大家盘点下嘉定区今年入市的各个新房项目,尤其是一些热门板块和新房。

Part1 江桥,热炒的大虹桥概念
作为曾经上海的动迁安置集中地,江桥整体的城市界面总体一般。
相比于南江桥,有万达、有地铁,还有科技城等一众产业和配套,北江桥目前除了成片的动迁房,其他的一切,目前都尚在开发阶段。
当然这里也不是没有炒的概念,除了南江桥的北虹桥概念外,还有上海临港嘉定科技城项目、北虹之星、14号线等等概念。

龙湖南山虹桥天玺领峯:
这次的龙湖能否延续品质与口碑
项目位于嘉定北江桥的乐秀路海蓝路。2021年10月,龙湖&南山联合体拿下江桥北社区N203地块。
房地联动价5.75万元/平。此外,根据要求项目规划6幢15-18层高层住宅,总户数446户。


配套上项目紧邻14号线乐秀路站,由于本身自带商业体,加上项目周边动迁房配套有大量底商,总体商业能级不高,但是便利度尚可。目前附近大型场以南江桥万达为主。

户型上,项目主打105-140的2-4房。




注意要点:项目位于北江桥,周边虽然目前配套还没起来,界面相对冷清。但是未来周边的北虹之星、即将建成的14号线等,都是非常不错的购买理由。
此外,项目有龙湖品牌加持,加上边上的嘉闵高架,以及目前几个楼盘本身自带的商业体, 5.7万均价的龙湖南山成为目前一个600万预算段相当不错的选择。
不利因素:项目由于处在航道下方,部分时间段存在一定噪音问题。
Part2 南翔,老板块的新机遇
南翔,先前由于靠近市区,工业园较多。在之前的嘉定定位十分尴尬,交界处的三不管地带使得老南翔的发展一直比较尴尬。
更有一度曾经的南翔,的士师傅过去载客是有额外补贴的。
但是随着11号线的开通,南翔作为嘉定区连接市区的第一站,其位置的优势逐渐凸显。加上板块内,印象城商业体的开业,南翔一跃成为和江桥同等级别的刚需上车集中地。
甚至南翔由于其较为完善的配套,自住属性在某种程度上对比江桥是有过之无不及。
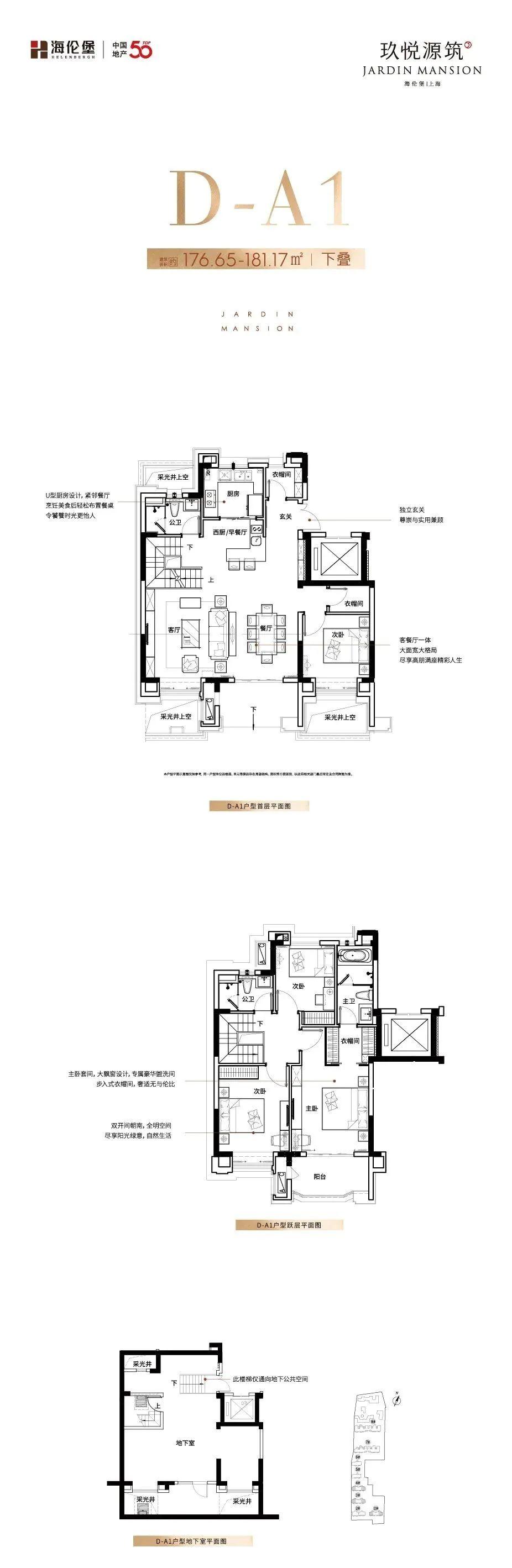
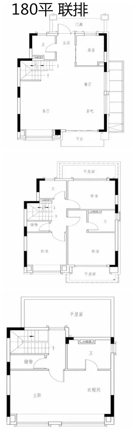
海伦堡玖悦源筑:就在那儿,但就是不卖
项目位于南翔民主街德园路,附近就是南翔老街以及古猗园。配套上,项目距离地铁站较远接近1.5公里,可以说基本没有地铁配套。商业上,界面底商十分丰富,生活属性极强。



本次出售的是80-100平的2-3房以及180平的叠墅项目。




注意要点:项目位于南翔老街,项目周边底商配套相当丰富。由于南翔板块本身就是较老的社区住宅板块,本身区域内配套齐全,居住便利度极高。
项目很早就出消息了,和融信海纳印象同届,但是就是迟迟拖着不开,不知道今年还会不会反复放消费者鸽子。
碧桂园柏悦翔湾 :偏,贵
项目位于嘉定南翔工业区域惠申路与嘉绣路交汇口。21年6月,碧桂园以24.57亿元拿下的南翔JDC2-0201、JDC2-0202单元04-02、05-02地块,成交楼板价3.1万元/㎡,指导价6.25万元/平。


位置上,可以说真的挺偏的。之前测评的南翔云湖漫城如果大家感觉偏的话,那么这个盘,你会发现还要偏,周边全是工厂。可以说这里除了产业工人,那里是南翔当地人都不怎么会去的地方。
项目预计将推出洋房、叠墅、联排,共计713套房源。




注意要点:项目位于南翔工业区,位置上可以说并不是特别好,隔河对面就是马陆。目前周边有待开发,环境灰尘较多。
但是好在板块有规划,但是未来落地目前不能确定。对比去年的融信海纳印象、云湖漫城,碧桂园无论在品质还是价格几乎没有优势。
6w+的均价,如果想要认筹,除非你的分数很低,否则不建议考虑上车该项目。
招商南山虹桥璀璨领峯:
没有很好,但是隔壁更差
位于南翔板块惠柏路嘉好路。配套上,可以说基本没有配套。基本上可以说和碧桂园柏悦翔湾是一对难兄难弟并不过分。


项目于21年12月,由招商&南山联合体以27.05亿元拿下南翔镇JDC2-0101单元06A-01A、07A-02A两个地块,房地联动价为5.7万元/平。

项目未来拟建14栋住宅、2栋配套用房,总居住户数1203户,总建筑面积约16.3万平方米,其中住宅计容面积约8.9万平方米、保障房计容面积约0.57万平方米。
面积上,项目主要是105-125平的3房。总共855套。



注意要点:项目可以说在最近几批新房中并不出跳,但是相比于隔壁的碧桂园,起码央企招商的品牌加持还是能加分不少。如果项目在这个价位段算不上很好,但是绝对不是最差,毕竟还有难兄在。
Part3 马陆,性价比凸显
说到马陆,其实马陆的主要核心圈并不在地铁站周边。最繁华的马陆实在大融城商圈周边。其北侧的嘉宝紫提湾等项目,都是相当不错的标杆。
反而,地铁站周边商业相对冷清,吉宝绿地缤纷城内部业态一直不温不火。
置业上,马陆本地改善人群客群更多会购买大融城周边,而市区的刚需则以地铁站周边的好世皇马苑和恒大御景湾为主。
金地峯汇:500万以内的性价比刚需
项目位于马路板块崇寿路。距离马路地铁站约600米。配套上,周边不算繁华,但是基础商业基本都有,周边主要以马陆大融城和南翔印象城为主要购物点。
项目周边还有一个公办的九年一贯制学校在建,据说可能是宋庆龄学校。
项目与2021年6月,金地拍下马陆社区43-05B、51-01地块,房地联动价约为4.81万元/平。


项目主要的户型是92-143平的3-4房,共计1109套。




注意要点:项目作为嘉源之后即将与大家见面的又一金地项目,该盘可以说性价比十足。4.8万元的房地联动价对比隔壁11年5.5万元单价的小区还是具备一定购买价值的。
此外,周边还在建设的公办宋庆龄学校(传言),未来如果能划进去,也是一大利好。项目预计积分不会太低,如果集中开盘,预计也将达到60分。
不利因素:地铁11号线陈翔公路站至马陆站之间有一个拐弯,地铁经过此处会发出巨大噪音,如果购买该楼盘的粉丝,建议实地再看一看。
Part4 嘉定新城:离市区最近的睡城
嘉定新城作为距离市区最近,且同时有两条地铁线路贯通的新城板块,成为了五大新城中,最适合预算有限市区上班的购买人群。

但嘉定新城区域非常大,一共有五个片区,其中有四个片区有新房供应,简单明了的细分一下就是如下四个:马陆片区、菊园新区(嘉定老城)、远香湖新城核心区、徐行片区。

金地嘉源:是新城还是工业城?
项目位于嘉定新城板块,叶城路霍城路交界。虽然属于嘉定新城板块,但其周边实际界面还是以周边的工业区为主。但好在周边界对比南翔的新盘面相对整洁。
房地联动价为4.52万元/平。预计420万起步。



配套上,地块距离11号线白银路站约1.5km,虽然单车骑行10多分钟,但本盘基本不算有地铁配套。商业上,基本集中在嘉定新城。
但在嘉定新城实际踩盘中发现,虽然商业配套不少,目前新城的几个商业体实际人流量并不大。

户型面积上,项目主要是97-98平的高层,155-175平的叠墅。





注意要点:项目除了地段位置比较一般之外,基本没有太大缺点。本身小区自带泳池的配套。预计项目积分不会太高。
后期有机会的话,小房弟团队会进行实地探盘。
盘古园府
项目位于嘉定新城天祝路崇信路。距离地铁站白银路步行距离1.2公里。配套上,主要以新城白银路地铁商业配套为主。 讲真的,这个盘我没实地踩过盘。




项目前期售价4.2万元/平,本次加推最后一批132套住宅,主要建筑面积83-125平3-4房。


注意要点: 对比金地嘉源项目,盘古园府的有点正好与之相反。距离新城位置较近,周边有绿地公园配套。
此外,小区虽然小区设计较老,户型设计一般,但是项目几乎是现房交付。小区户型装修基本能看到实景。
在当下开发商普遍资金链存在问题的大背景下,现房可以说是很有吸引力的。
日月光伯爵天地 :
见识了台湾开发商的水平
项目位于嘉定北陈家山路胜竹路,在链家板块划分中算是菊园新城。项目距离地铁站嘉定北步行约1公里,未来附近还有嘉闵线的规划。
配套上,项目主要是依靠地铁站周边的底商配套以及那里的日月光商场。此外由于项目靠近嘉定老城区老城的各类配套,项目也能蹭到。


项目前期销售4.1万元/平,本次加推主要是小区的94-150平3-4房户型。






注意要点: 项目位于嘉定北,对于老嘉定人来说,嘉定北和嘉定西相比,他们会选择前者。
项目除了周边的配套外,还能吃到嘉定老城的配套。价格上十分具有吸引力。
不足之处: 相比于之前的金地峯范,它的价格十分划算,但是对应的品质、物业,和金地也是完全不能比的。
品质就很一般,实际上,和目前的主流小区设计有代差。其小户型中间套,感觉户型设计实用性低。但无论怎样,就便宜这一点就够了。
Part5 安亭,汽车城,也适合自住
安亭,一直以来都是300万预算置业地中最炙手可热的地方。约为11号线的开通给助理带来了巨大的人流量。
加上本身上汽以及其周边产业的大量产业人群。使得这里的热度一直很高。板块内除了安亭老街,最热闹的地方就是地铁站以及嘉庭荟商圈一带,具有很强的生活气息。
此外板块内,也不乏优质的教育资源和一些很好的私立学校。
深业集团安亭项目 :
深圳国资委首闯上海滩
深业集团作为深圳国资委直管的综合性企业,去年12月,其旗下深业华东公司以8.85亿元成功竞得上海嘉定区安亭JDC30801单元01A-01A地块。
这次拿地也是其第一次进入上海房地产市场。房地联动价为4.2万元/平。
项目距离11号线昌吉东路地铁站约1公里,项目周边并没有太多配套。


目前项目具体信息未知,后期小房弟将继续跟进测评项目。
奥园金地格林云尚 :
没有地铁配套的高铁盘
项目位于安亭板块墨玉北路前炬路。楼盘位于安亭地铁站北侧,实际距离地铁配套相当远。不过距离安亭火车站距离较近。楼盘上期均价3.5万元/平。




本次销售的是项目的四期,面积段主要是70-98平的2-3房。




注意要点: 本次加推作为奥园金地格林云尚是项目的最后一期加推,卖完即止。
开发商之一的奥园进来财务状况令人担忧,或许是这个楼盘购买时要考虑的点。
Part6 徐行,偏远的科技小镇
作为嘉定最北的板块,他并没有像安亭那样有一个给力的昆山,那样的好邻居。徐行隔河相望的太仓可以说并没有给这里带来强劲的购买力。
而板块本身的定位科技小镇本身刻意炒作的感觉就很虚,感觉如果要买,还是以板块内地铁站周边楼盘作为主要购买方向。只能作为嘉定新房兜底式的存在。
春申阳光 :
在过去一点,就是江苏移动欢迎你
项目位于徐行板块镇南街娄陆公路,隔壁就是江苏太仓。配套么,基本都在太仓了。所以出门去商场买东西的时候,你手机可能会收到一条江苏移动欢迎你的祝贺短信。


项目推出83套联排别墅房源,总高3层,建筑面积约90-176㎡联排别墅。以及总高8层的洋房,建筑面积约55-89㎡1-3房,精装交付,共计176套,有4个主力户型,包括建面约55、56㎡1房,78㎡2房,89㎡3房。
联排:



洋房:




注意事项: 距离太仓很近,所有的配套去太仓比去嘉定更方便。如果预算很低,可以考虑,毕竟150万就能上车。
佳兆业城市广场 :
多地项目停工,你还敢买吗?
项目徐行板块澄浏公路胜竹东路,周边嘉闵线站点正在规划中。



项目推出房源为建面约82-92㎡3房,



注意要点: 虽然价格不贵,周边有地铁概念,小区看上去很有逼格,但是目前开发商佳兆业资金问题严重,多地项目停工,你还敢买吗?
如果你有感兴趣的楼盘,可以随时找小房弟聊聊,欢迎大家咨询,有优惠哦!