落霞与孤鹜齐飞 ,秋水共长天一色”是唐朝王勃所作《滕王阁序》中赞美落霞美景的绝妙诗句,想想这幅场景应该会多么壮观。业主朱先生家中宽大的朝西阳台,呈扇形的造型,每当黄昏来临,霞光四溢的时候,就可以欣赏到这幅让人感叹的诗情画面。
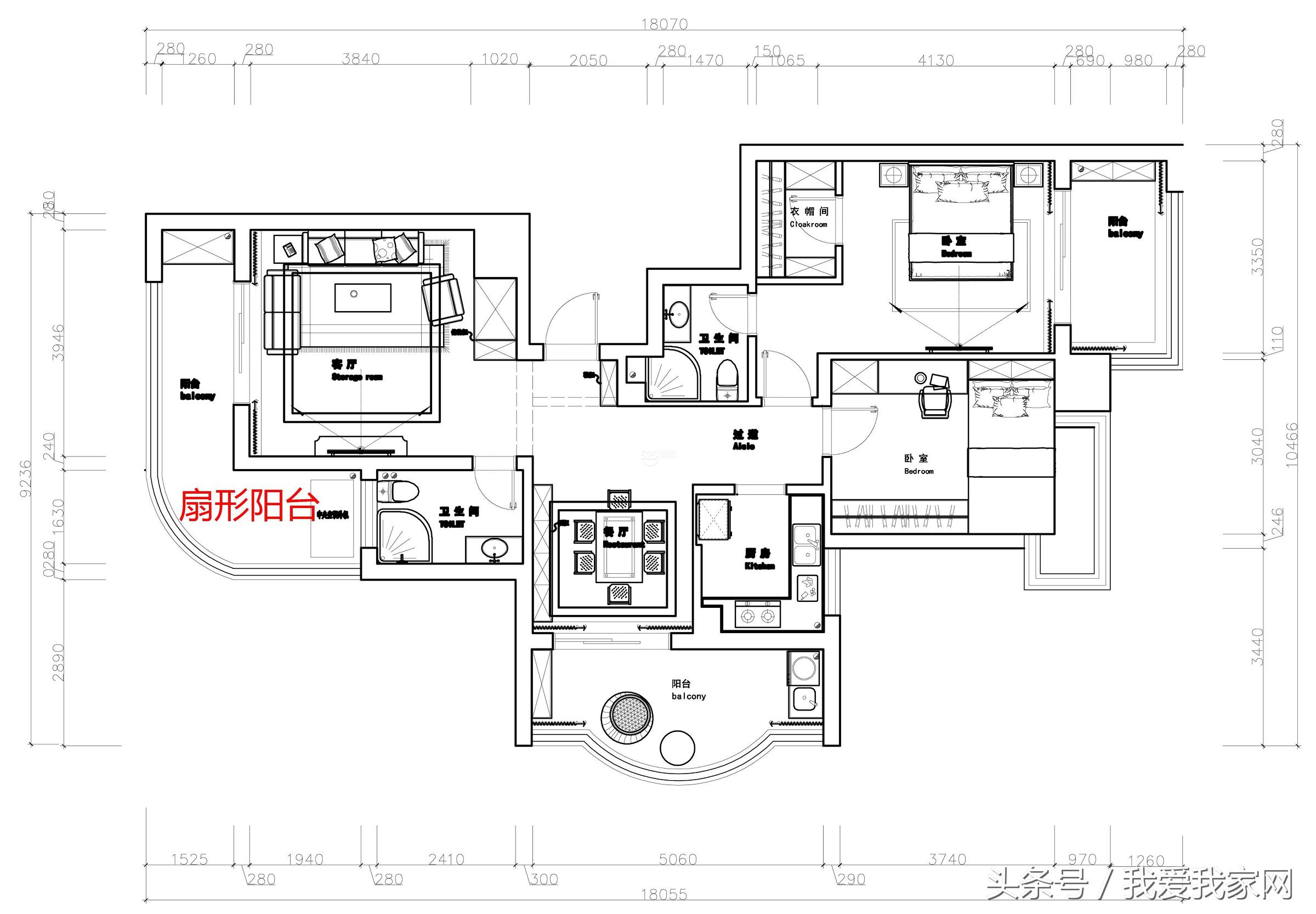
平面户型图

(设计后的户型平面图)
朱先生家的户型采光效果非常不错,每个房间都带有阳台,就连次卧室也带有一个采光不错的飘窗。其中设计师把采光效果最佳的西边扇形阳台的区域做成了客厅,这样在家里不用出门就可以欣赏到落霞的余辉。
完工后效果
说起来正巧,在朱先家里有幸欣赏到了真正的落霞美景,下面就是实景拍到的图片。


透过扇形的阳台玻璃,西下的霞光可以直接照射到客厅中,关键是业主朱先的楼层较高,前面没有任何阻挡,享受落日霞光的同时,还可以欣赏远方的美景,惬意盎然。

在业主朱先生的带领下,在阳台的一角,看到一个成品的洗衣台,小巧占地不大,朱先生介绍到,这个小洗衣台,主要是用于清洗一些小物件,或者打扫卫生时清洗毛巾。不过在这样阳光充裕的地方,不知道这个洗衣台是否耐晒?这一切只能交给时间来证明了。

看到这个图片的时候,或许你以为这个地方是客厅,其实错了。这个地方是餐厅,在户型平面图中,你可以发现紧邻着它的就是厨房,布局实用简单。在这样的环境下就餐,叫它阳光餐厅,一点都不为过。


主卧位于最东边,还有一个独立的采光阳台。朱先生笑着说:“他们家就是要紧跟着太阳走。”从早晨太阳从东方升起,在卧室里就可以一睹阳光的艳丽,再到夕阳落下,又可以在客厅中欣赏落日的美丽,几乎阳光最漂亮的时刻都没有被错过。

次卧虽然没有宽大的采光阳台,不过有一个转角飘窗。朱先生准备把这个房间作为孩子的房间,因此他在考虑是不是需要做一个壁柜,用于收纳放置书本。不过对于户型面积足够大的情况下,可以考虑选购成品的书桌,方便移动,也有利于空间布局。


当然除了房间的采光外,厨房的采光效果同样不错。并且在布局上也很合理,朱先生对此非常满意。他很欣慰的介绍到,水槽位于窗户的一侧,灶台位于最里面,一边在里面烹饪美食,回头就可以欣赏到窗外的景色,美食和美食可以同时收纳于此,非常享受。


看到卫生间的时候,朱先生提到,家里总共有两个卫生间,开始太太认为主卧里面应该装豪华一些,不过跟太太协商后认为,主卧卫生间用的并不多,豪华装修不实用,并且目前的装修效果已经不错,简单实用,就足够了。
最后,看到餐厅阳台的时候,朱先生补充到,自己打算把餐厅的位置再改造成一个小房间,把过道的区域变成餐厅。听了他的想法后,觉得不错,不过不知道最后的效果会怎样,不过餐厅的大阳台,再怎么改造其效果也不会太差。
更多精彩案例关注公众号“装修狮lion” ,装修一键搞定。