
你是不是认为,设计师在设计自己家的时候,都希望要把职业生涯中的全部技能和真正喜欢的格调在自己家里呈现,展示给所有人看。而且难得的一次自己做甲方的机会,可以任由100%发挥。其实不然,我们看过许多设计师自宅,特别是有实力的设计师自宅,很低调,很质朴,当然,设计感很强,极致而自信。让自己喜欢,这很关键。
今天,给大家带来四处「设计师的家」,看看设计师都是怎么设计自己家的。
01.集艺设计刘志明
02.简璞设计文超
03.惟道创意熊杰
04.乔玺空间欧阳金桥
01.
集艺设计刘志明
家,应该是直达本真的地方
-

本案是设计师的自宅,因向往亲近自然的生活,新的家位于一个闹中取静、植被丰富的小区,并选择了刚刚好能看到窗外绿叶葱翠的三层,希望未来的家是可以感知阳光风雨、四时变换的地方,且方便女主人打理。

去装饰
房子原本是一个4室2厅3卫的精装修房,面积约200平米,容纳一家三口的生活,是宽裕的。重重隔断的墙体在设计师眼里显得既无必要、也浪费了大平层的优势,于是拆掉了所有能拆的墙,对空间做新的布局。

新空间平整大气,灰底的素,配以原木色的雅,淡淡的,犹如清晨的一抹云彩,带着一丝清凉,一份暖意,安静、且闲适。设计师没有去强调过多的造型和装饰,但骨子里的追求,让他在无意间,留下了自己的设计痕迹。


积木与木匠
设计师像搭积木那样,用大小不一的方块把空间分成若干块面,再通过打开、移位、切洞、对视等手法,将不同的方块联系起来,使得人在其中活动,感到顺手又舒心。






















△项目平面
项目地点|中国 宁波
项目面积|209㎡
设计单位|集艺设计
主案设计|刘志明
参与设计|周敏刚、傅行
主要用材|必美地板、摩根智能、诺雅娜木作、瓦帕茵特艺术涂料、domus life岩板、劳芬卫浴、当代卫浴、厘芈
主要家具|Cassina、THEBH包豪斯
项目视频|稷樾视觉
项目摄影|徐义稳
02.
简璞设计文超
家是面对生活的态度
-

简璞设计创始人文超:我在重庆工作,已近四年。设计工作室的运营情况逐步进入正轨后,我便开始了安身之所的计划。

因为工作的缘故,我的家人们大多数时间生活在另一座城市。所以,位于重庆的居所,更像是属于我一人的私享空间。在这里,它将满足于我对理想生活的一种设想与表达。但,这种表达,却并不是自私的。在满足自我需求的同时,家人的需求,同样应当得到相应的照顾。个人精神的独立特征,与家庭生活功能的实用需求,将在这一空间中得到适度的融合与平衡。我想,这需要一些技巧与小心思。








首先,我将原本邻近客厅的次卧室墙体进行了全面拆除,从而得到了一个较为宽大的横厅。正因如此,我才有了条件,将客厅前移,使其成为整个空间的中心部分。同时,前移后的客厅也为新的就餐区域提供了较为舒适的空间尺度,以此满足了书柜与条形餐桌的安放。因为餐厅区位的重新规划,所以原餐厅空间得以被释放,为我的西厨空间创造了合理的条件。这无疑是为原本局促的厨房空间进行了从容且有力的补充。


其次,我将结合西厨区域的与餐厅旁的空间装置,构建出一个新的玄关(缓冲)空间。这不仅满足了生活功能的实际需求,也让出入关系变得更加优雅。同时,这样的设定,也将相对狼狈的生活空间(中西厨房、生活阳台),与相对整洁的休闲空间(客厅、餐厅、景观阳台)进行了明确的分区。而西厨、中厨、生活阳台之间的依次退让关系,也让生活功能得到满足的同时,从容且优雅的与整体空间关系友好的共生。

最后,是对于三个房间的功能设定与空间改造。我始终认为,每个空间都将有着它自己的空间使命。不同的使命都因使用意图的不同而产生。
儿童房
CHILDREN'S ROOM

女儿房则更像是我送给女儿的一件礼物。虽然她不常生活于此,但我仍然“自私”的希望,这样的空间设置,将勾起她乐于来重庆过周末的兴趣。同时,这也将是她成长过程中的一个美好记忆。因此,滑滑梯被安排其中,并与客厅相连。


主卧区
MASTER BEDROOM
主卧,作为我主要的生活空间,我希望在这里得到最大的放松与自由。所以,主卫的墙体被打开,使得开放的盥洗区与衣柜咬合在了一起,同时,也与整个卧房融合在了一起。而原本飘窗的位置,也被拆除,并纳入到了卧房之中。一个较长的床头柜延展开来,通过极具攻击性的表达方式,将空间尺度进一步放大。




多功能房
MULTIFUNCTION ROOM
而次卧的设置,更像是生活的一种补充,它干净、整洁、且明亮。它既是我衣帽储藏的一个补充,也是父母、亲朋小住的一处安心之地。所以,它友善,且平和。

至此可以看出,这样的重设,并非是从单一逻辑上去做的修补。而是环环相扣,通盘考虑之后的从容。

质感
TEXTURE
我所认为的,家的质感,是极度舒适与整洁的状态。但它并非所谓的“极简”。而是能与人、物、时间共生的一种状态,并且能在使用过程中从容的面对生活中的琐碎。
所以,我希望空间可以更加的建筑化。因此,大面积的灰白色延伸向大部分的空间面积。同时,我们通过技术手段,让空间中的大部分材质(涂料、定制木作、岩板、窗帘、瓷砖等)的视觉感受达到统一。这种协调的美,无疑是舒适的。

但生活中,不能没有温度与颜色。所以,各种颜色被点缀进空间之中。温暖的咖啡色来源于略显年代感的原木家具,为空间带来了温暖的视觉与舒适的触感;金黄的色调则来源于黄铜质感灯饰与摆件,为空间带来时间的变化与价值感的提升;桃粉色被放置于女儿房之中,它是由涂料结合灯光所构建出来的视觉效果,鲜嫩且活力;最后是充满生机的绿色,主要源自于室外空间的绿植关系,因为,没有比绿色更适合表现生机与生命的状态了。
这,便是我的家,一个能够足以表达我对于生活态度的地方。

△空间意境插画

△平面布置图
项目名称|重庆 自宅
项目地点|中国 重庆
项目面积|103平方米
设计总监|文超
室内团队|JSD 简璞设计
软装团队|JSD 璞本文致
施工团队|JSD 璞造建设
空间摄影|刘星昊-言隅建筑空间摄影
品牌支持|帝豪定制木作、祺兮涂装、观博卫浴、雅帝乐、新中源、书香门地、野笙家居、遇光照明、诗琴布艺、昕升泰老钢窗、定辉暖通、RECASA
03.
惟道创意熊杰
向心而居
-

我们对于家的构想,纵有千万种,但总体来讲,所有的构想都来自于我们对“自我庇护”的原始本能。这种庇护本能,既包含物理性的防卫构建,更应承着情感性的心理寄托。尤其在纷扰嘈杂的当代,家对于精神与心灵安放的重要性,显得越来越不可替代。
设计师熊杰以“向心而居”为生活诉求,在远离成都市区的南郊,给自己开辟了一方静谧、灵动、自由的居所,并在地理和心理上,让重新梳理自我与世界的关系成为可能。
1 .
抒情的极简东方



设计师将客餐厅一体化设计,营造更好的互动性与社交可能。

2 .
器物、时光与日常交汇的写实

△开放性与多样性,是这个家最迷人的写实
打破传统的形式与风格设计,在本案中赋予更多的精神元素,将各种生活方式的物件带进来。


△二层卧室
3 .
心性自然的宁静

△三层起居室


△三层起居室
在这里,只有生活的宁静与自在,没有刻意与修饰。



△书房
4 .
隐秘自在的精神皈依

△茶室


△老木件
5 .
闲趣永逸与望水观止

△庭院


△怡情
对设计师而言,往往最重要的不是对空间的演绎,也不是对美学的考量,而是还原生活,进而创造一种和谐的秩序,一种有趣味、可感知、被容纳的场域。
项目名称 | 熊杰自宅
项目范围 | 建筑改造、室内、庭院
项目面积 | 560m²
项目地点 | 中国 成都
设计机构 | WDD成都惟道创意室内设计有限公司
主创设计 | 熊杰
软装设计 | 张楠
亭子建筑 | 王玺 蔡克非
灯光设计 | 欧未
项目摄影 | 翱翔
部分品牌 | Cassina、Ligne Roset、Gessi、Viabizzuno
施工单位 | 深圳名仕伯爵装饰
04.
乔玺空间欧阳金桥
探索内心本真的治愈之家
-

1
老宅新生
‘环境、精神、肉体、融合、给予/馈赠、工具’是勒.柯布西耶《直角之诗》的几个章节,也是理解其建筑、思想、造型艺术的路途。家的设计是创造,也是设计师本人个性的真实反映。



2
有秩序、有温度
人的比例,就是最好的‘秩序’。对比例的喜好,简洁必要的功能。生活需要秩序,设计需要章法。设计师热衷于直角和横平竖直,但在软装上也会对弧形的物体稍微妥协。这也照应了上文提到的‘对峙和平衡’。



3
予人启迪

繁华其实犹如云朵,内心的纯粹才是那背后的恒久星辰。欣赏事物的本质,培养领悟事物本身的美的能力,才是设计师应有的修为。

4
质朴、纯粹
结构,是最简单的美学之一。设计的自信源自内心的丰盈与充实,不用过多的修饰。

设计师欧阳金桥在设计家里所有的结构和造型时,内心没有太多波澜,尽量从必要性、完整性出发,让设计回归生活本质。





5
知行合一
做真实的自己,对事物怀有谦逊的态度,少言,多看多学多思。在空间中发现本身的美,而不是造作。

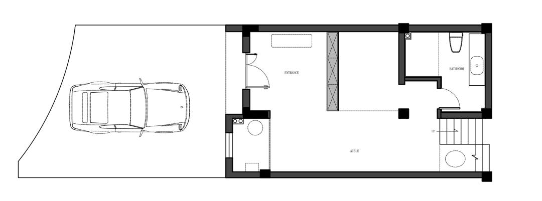
△负一层平面布置

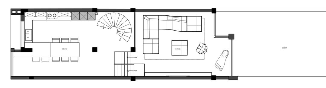
△一层平面布置

△二层平面布置

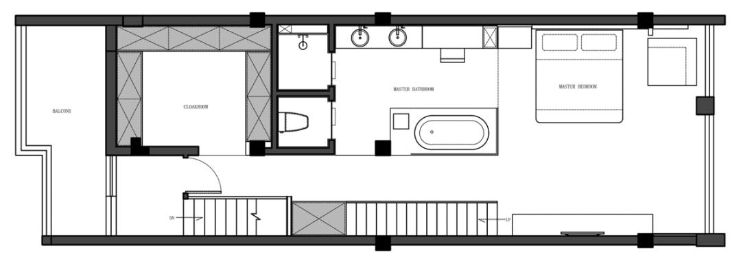
△三层平面布置
项目地点|中国 成都
项目面积|400m²
主创设计|欧阳金桥
参与设计|欧阳钰茜
设计范围|室内、软装、建筑
全案设计|成都乔玺空间设计有限公司
完成时间|2020年3月
摄影视频|聿空间摄影
硬装品牌|德国海格橱柜、德赛斯岩板、德国帕诺地板、纳莱瓷砖、洛玛诺瓷砖、恩士、贝朗等
软装品牌|B&B Italia、Viabizzuno、Davide Groppi、Baxter、Bonaldo、Ligne Roset、Cappellini、Catellan、壹集、Chic等