“北方冬天那么冷,轻钢别墅墙体那么薄,适合北方吗?”
“轻钢别墅怎么做保温?怎么供暖?”“轻钢别墅防火吗?”
“东北可以建吗?”“甘肃可以建吗?”“陕西农村适合吗?”

每次跟大家分享农村自建轻钢别墅的案例,总有很多人留言咨询轻钢别墅的保温、承重等各种问题。我们一一的解答,但因为没有合适的案例,很难给大家图文并茂的做介绍,最终大家还是一知半解。
做了双火炕房,室内硬装做好,只花费22.8万。今天,我们以甘肃段先生家建的轻钢别墅为案例,详细的跟大家轻钢别墅是如何做保温、采暖的,如何满足特殊设计的承重结构要求的。

段先生希望自家的房子建的漂亮时尚一些,在外观设计上下了比较多的功夫,设计了转角窗、老虎窗、窗套。
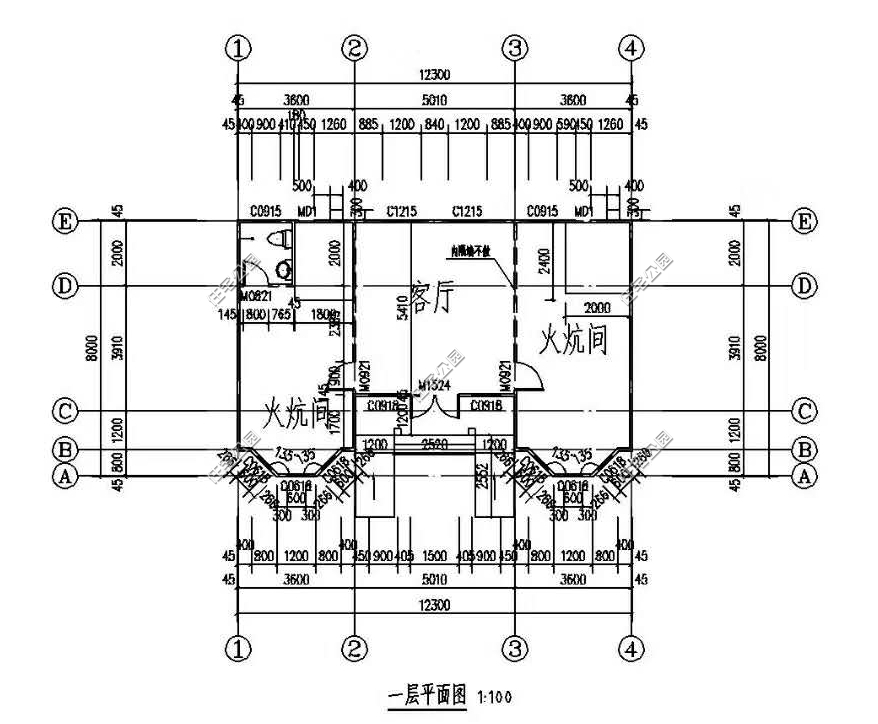
占地12.3米宽,8米进深,布局非常简单,两个火炕房加中间的大客厅。
两侧火炕房与客厅之间不设置轻钢墙体,天花板内设隐藏式电动卷帘,需要时降下来将火炕房与客厅隔开。

加了两个老虎窗,坡屋顶结构变得更加复杂。

总长12.3米的房间中间不设隔墙,导致超出冷弯薄壁轻钢龙骨跨度的最大值。
顶部还得加设隐藏式电动卷帘,加之地处陕甘宁边区的高寒冷山区,冬季降雪量大屋顶容易积雪,活动荷载和静荷载均超过平常所见。
承重,成为段先生家别墅轻钢龙骨结构设计的难题。要如何解决呢?

经过反复计算,采用箱型加强龙骨过梁,满足了龙骨结构的荷载要求。轻钢龙骨结构设计完成后按照图纸生产龙骨。

依据图纸进行基础施工,基础养护完成后轻钢主体材料入场,开始主体施工。

主龙骨采用G550-140×1.0mm镀铝锌热轧冷弯薄壁轻钢。

龙轻钢龙骨搭建完成,接下来就是墙体、屋面施工了。

高寒地区,墙体最重要的就是要做好隔热、保温。
这栋轻钢别墅墙体中间填充了15cm厚保温性能好的玻璃棉,然后用9mm厚的OSB欧松板封板。

封板后铺贴呼吸纸,最后再用保温隔热金属雕花板做外墙装饰。

屋面同样采用保温性能好的玻璃棉卷毡铺贴,OSB欧松板封板后铺设防水卷材,最后铺贴湖蓝色沥青瓦。

窗户采用断桥铝窗+双层玻璃,并根据图纸安装上窗套,仿铜欧式防盗大门。

内墙则是用纸面石膏板封板,竹木纤维集成墙板做内墙装饰和吊顶,地面铺贴仿古防滑瓷砖。

主体承重、墙体屋面保温的问题都解决了,接下来就是室内的采暖问题了。
段先生没有选择做地暖,而是两个卧室都做成了火炕房。
虽然墙体材料都是一、二级防火材料,但为了更好的提升房子的防火性能。火炕部分墙体采用了特色工艺处理的防火石膏板,并在墙体与火炕之间横放了一排红砖,将火炕跟墙体隔开来。

火炕房和客厅支之间的电动卷帘。

休息的时候讲卷帘放下,火炕房就成为独立的私密空间。

蓝色窗帘,为室内增添一分活力。

西北多风沙,入户大门处还设置了门帘。

面积110平方米,带室内硬装价格是2280每平,基础、运费、火炕施工等均含在内,最终结算的时候给段先生优惠到了22.8万。

怎么样,看完段先生家的轻钢别墅,您是不是对轻钢别墅保温、承重不再担心了呢?
关注住宅公园,800套农村别墅图纸,设计施工一站式服务。