
对每个要装修的家庭来说,装修是较为个性化的行为。但现在很多楼盘都是精装出售,在地产方面来说,精装修就是标准化流程。

虽然说标准化很难表现出个性,但其优势也是很明显的。在标准化下,可以根据户型在短时间内做出方案,节省成本和时间,今天我们就一起来看看精装修的标准化设计。

文末附 知名地产公司精装修标准化资料集
01
分析户型,优化布置

即使是想标准化设计,但户型总是不一样的,还是需要进行优化设计。


但一般不会进行户型上的大改大动,承重墙不动,布局可以进行调整,根据布局需要,可以适当调整门洞位置等。面对原始户型,分析出优缺点,针对缺点进行适当的调整。


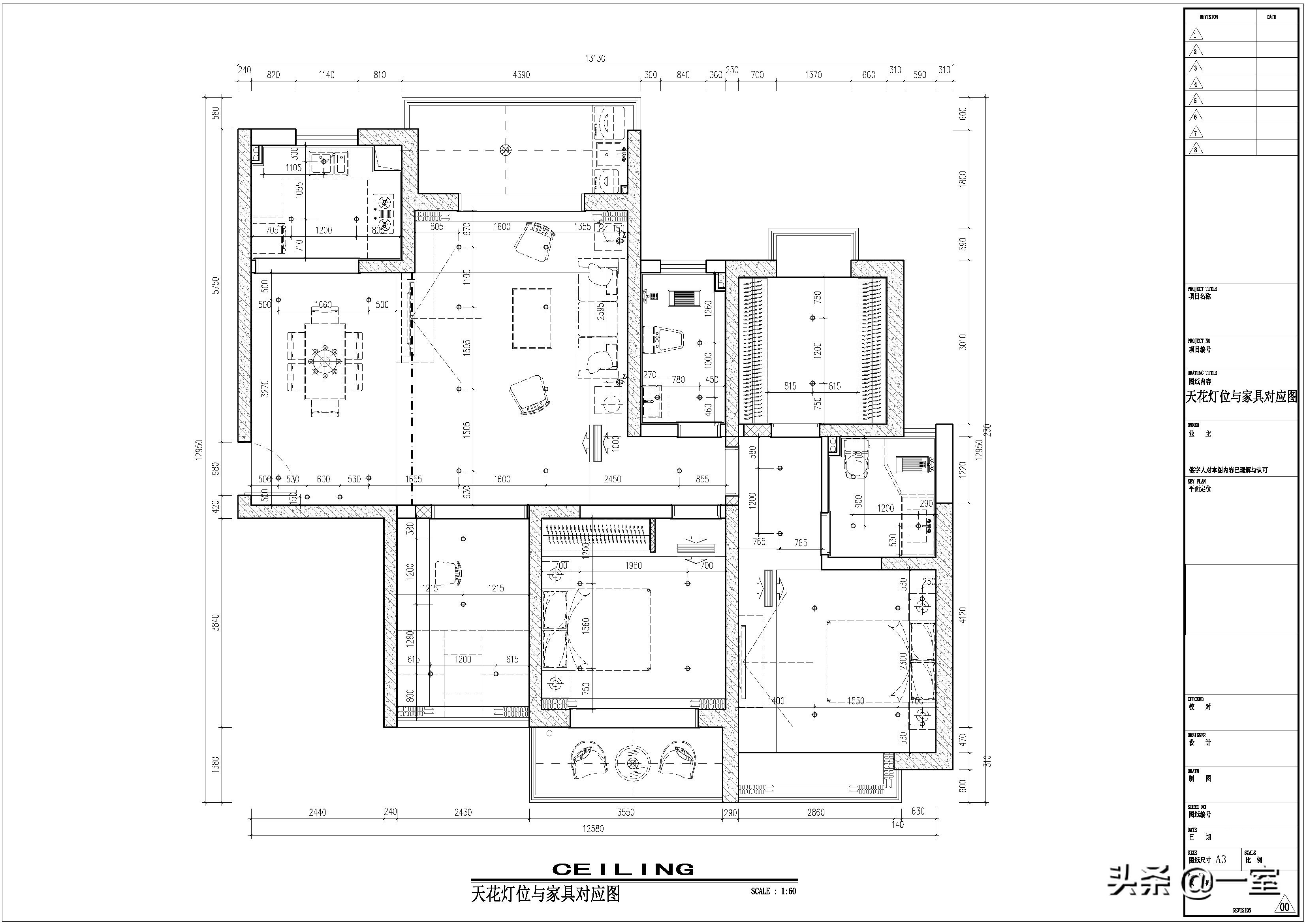
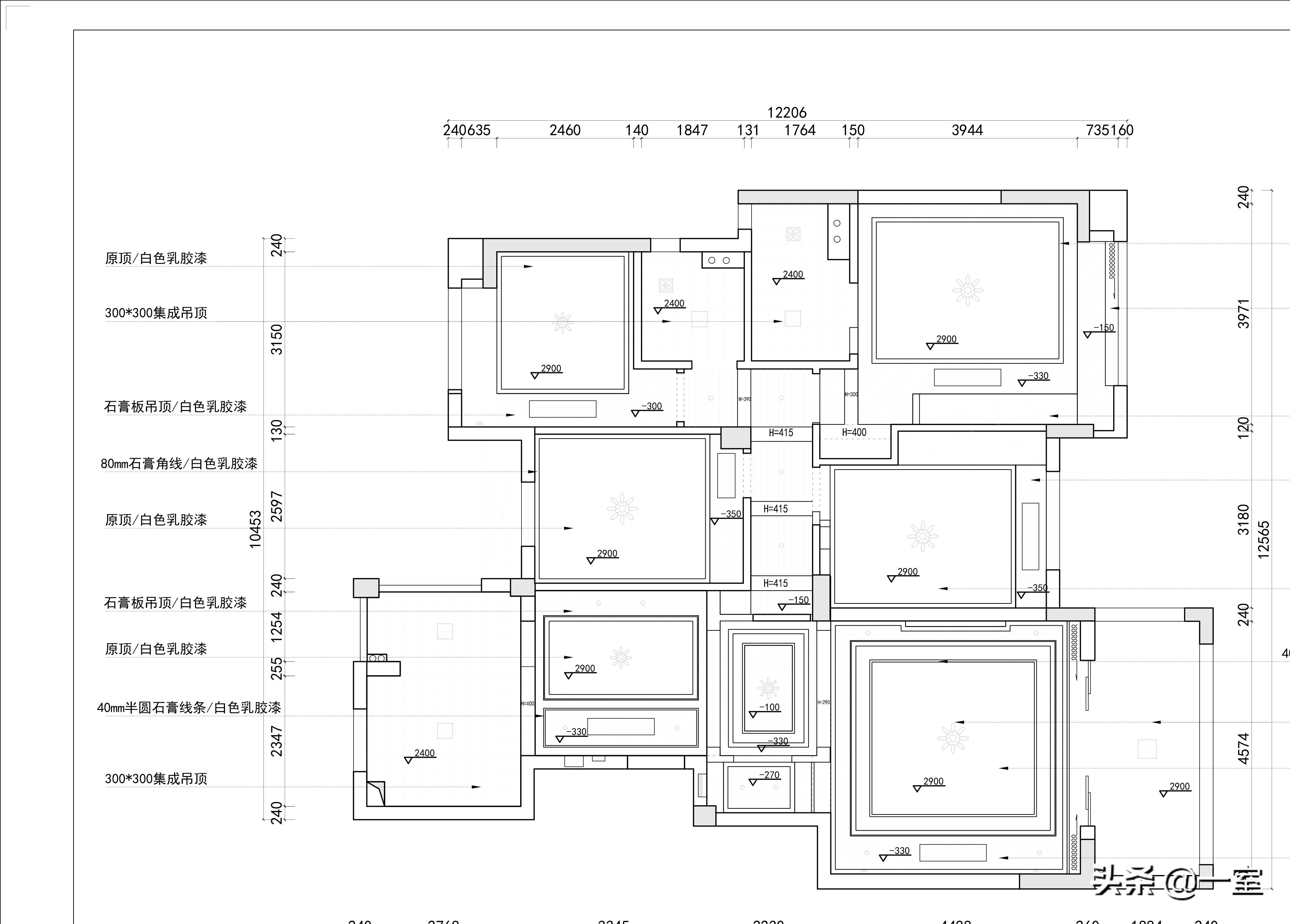
▲ 原始VS平面,在细节处适当进行调整
02
不同成本下的考虑

普通家庭装修在价格上都存在差异,像精装修等当然也是存在成本差异的。而面对不同成本,使用的材料当然也就不同。


如果成本较低,自然就不会去大面积使用大理石、木饰面等材料,而是在做到品质保障的同时适当去降低成本。
如果成本较高,也不就代表着在墙地面做比较浮夸的设计,毕竟后期客户入住很可能有改造需求,预留下一定的改造余地,专注细节以及质量质感。

▲ 某商品住房全装修等级推荐表
不同成本标准在造型以及材料使用上有差别

03
这些必须要标准化

设计方案可以个性化,但对室内设计来说,有两个地方是一定要标准的。首先就是制图,平面图你可以自我发挥,做得更加美观,但是像施工图就必须标准,这样工人在施工时也能更容易看懂,尽量避免出错。


还有一个就是施工,施工也必须有标准。按照标准节点或要求去做,才能最大程度地保证效果和质量,避免出现返工等问题。



标准化对于有需求的人来说,能提供非常大的帮助。这里小编为你准备了知名地产公司精装修标准化资料集,有了这些标准化,在做相应的设计时,能快速做出方案,提高效率,设计效果也不会差。
知名地产公司精装修标准化资料集
部分内容展示
-华润华南区住宅标准化手册-












-户内精装设计标准案例-


















-华润南棉项目精装深化设计-





















▲以上仅为部分展示
【免费领取】私信回复“005”
版权声明:我们尊重原创。文字美图素材,版权属于原作者。部分文章推送时因种种原因未能与原作者联系上,若涉及版权问题,敬请原作者联系我们,立即处理。