
项目名称:未迟
项目地点:浙江省杭州市桐庐县
开业时间:2017年4月

桐庐城,古诗中常被提及,连苏轼也曾对这里的山水痴迷,“三吴行尽千山水,犹道桐庐更清美。这方满载山水的好水土,曾令无数人向往。创始人之一的郭少荀花了6个月的时间,把上海周边所有好地界全都考察了一遍才寻得这个宝地。正是这样严密的筛选,才使如今的未迟特别方便到达。从杭州出发约1个小时车程,从上海出发约4个小时车程,交通极其便利。
坐落在半山腰上的未迟,富春江水穿流而过,位居元朝四大画家之首的黄公望笔下的那副富春大岭图,便是在这里取了实景,绘制而成。


一号楼由郭少珣设计,”云“位于山腰转角处,像筛子一般的建筑外墙即使自然光线流入其中,也让空间显得开阔而通透。倒映在室内墙壁上的点点光影,又增加些许浪漫的气氛。



房子的整体形态非常简单,外墙立面运用传统的砌筑方式砌筑成清水砖墙,清水转与透光玻璃砖相结合共同构成房子简洁却丰富的外部特征。东方的房子里都藏有一个精致的庭园,庭园是一个生动的小世界,是人的内心世界与物的自然世界对话的地方。







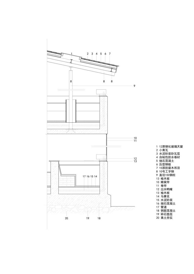
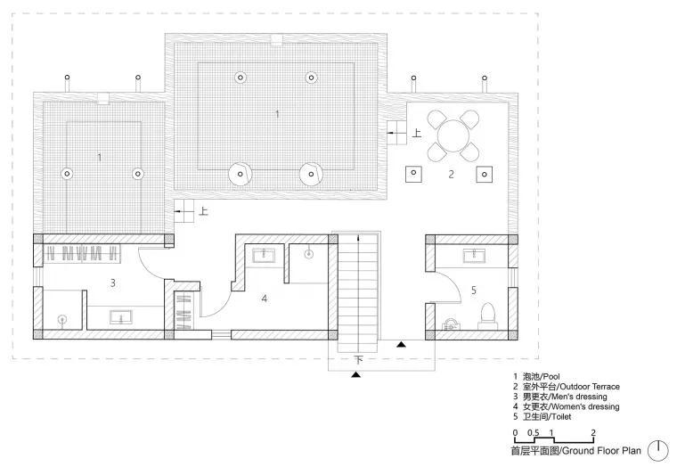
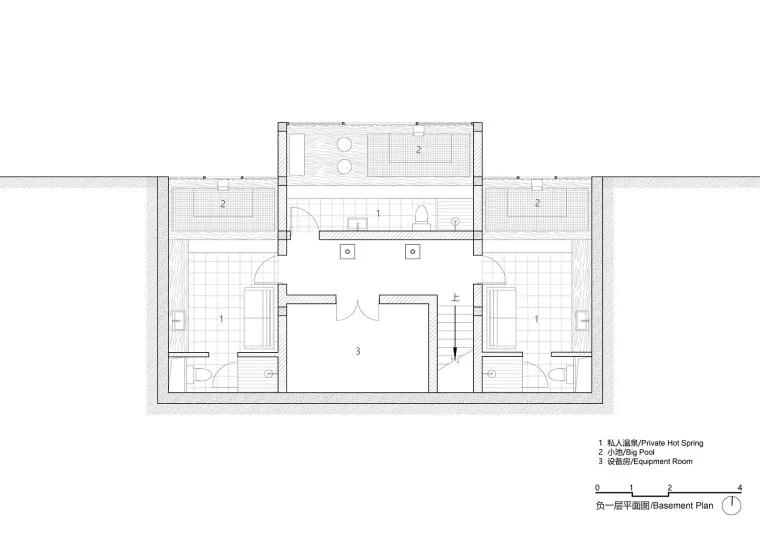
除了房间里的阳光浴缸和泡池,设计师还单独拿出一栋楼来做无边泳池和私人泡池,在巨大的山水长卷中,让你以最直接的方式融入自然。4号楼”水“是一栋温泉房,浴池分为公共浴池和私人包房两种,即有可供10人团队泡澡的大池,也有为情侣或者家庭设计的小池包房。

浙江未迟精品民宿咖啡厅及温泉房内部实景图

浙江未迟精品民宿咖啡厅及温泉房示意图

浙江未迟精品民宿咖啡厅及温泉房平面图

浙江未迟精品民宿咖啡厅及温泉房平面图

浙江未迟精品民宿咖啡厅及温泉房平面图


浙江未迟精品民宿咖啡厅及温泉房立面图

浙江未迟精品民宿咖啡厅及温泉房透视图

浙江未迟精品民宿咖啡厅及温泉房透视图


简洁的建筑外观下,内部线性空间非常丰富。大片大片的落地窗运用其中,恰到好处地将室内外的景色融合。布置在二楼的下沉庭园在房子的几何中心,为一楼的客厅提供阳光,同时为二楼的餐厅提供了好的景致。房屋中每个房间都不一样,下沉的壁炉客厅、朝向千山的茶室、北面景南向阳的跃层套房等,留有不同的特色等待每一位来访者去体验。



感谢您的阅读,墨研建筑设计:探索东方美学,专注于中式建筑设计、中式室内设计以及中式园林景观设计。如果你喜欢中式建筑,东方美学的话,可以关注收藏噢!