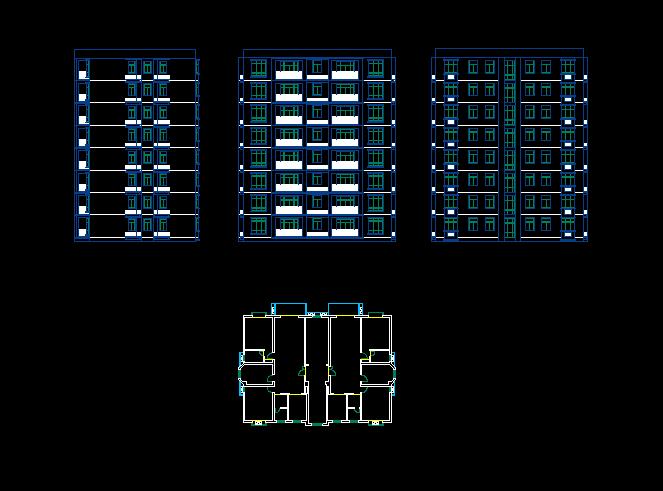
标准层的模型制作

1、我们打开cad,结合平面、立面观察cad结构和进退关系,在头脑里面想下,建筑是由那几个面构成(南、北、西、东),
2、分析cad,首先我们分析在平面、立面上那些代表墙体、窗、门、阳台、百叶和线脚。然后结合着平面,在平面上那些代表墙体、窗、门、阳台线脚和百叶的位置。
3、整理cad,删除那些标注线,室内的家具,和辅助线,我们就只需要留下的是墙体外围线和窗户,以及外围的空调机位线,清楚空物体(pu)。cad归零(0、0、0)。然后导出(w+空格)cad。在导出cad的同时,我们必须要注明对应的平面、南立面、北立面、西立面、东立面等名称。

4、打开max,首先设置好相关的max开机设置。例如:
max的系统单位:customize-units setup(我们一般是以毫米为单位)
。
5、导入cad,在max文件(file)下拉菜单里面找到import导入命令,

导入的cad打组归零。
导入cad,在图层里面归层,每导入的相应的一个cad,我们得在图层里面令名为相对于的cad名称,
。
再新建一个图层为我们场景中新建的模型。
按照平面,对好相对于的立面,(根据平面的结构关系,找到相对应的立面位置)。保存max,令名方式为:标准层-日期-自己的名字-版本-end。

6、隐藏两个立面(南、东或者北、西在必要的时候我们再放出隐藏的面),有利于我们建模,不至于在看结构关系很混乱。

7、注意线的编辑:一条完整的线不能有交叉点和重线。有弧线注意分段数以及线的起始点和终点,必须所有的点为角点。
8、勾线:按住ctrl+鼠标右键,点击line(线)的命令沿着墙体勾线(或者在创建命令栏点击二维线命令里面的line(线),也可以用rectangle矩形命令。但是在勾出的线我们必须要转换成可编辑样条线,点击鼠标右键
。把点转化为直角点。
9挤出(extrude):
,amount是代表挤出的厚度。segments是段数(分别为图中蓝色和红色所表示)。

这两个分别表示起始面和结束面。
10、mesh、poly和材质编辑:
新建好的墙体我们必须要把名称令名好,
,在编辑墙体的时候,绝对不允许用大洞去套小洞的方式去建模,这样不利于我们以后的修改,我们转换成edit mesh用元素去复制墙体,
,因为用元素复制有2个好处:一、能减少场景中的物体个数,防止做到最后场景会很卡。二、用元素的方式利于我们好修改。
11、窗框的编辑:
用命令sweep命令
,

分别表示形状内型。
表示长、宽和倒角。
轴向的变化。
偏移距离和角度旋转。
光滑度和向内、向外、中心等
结构之间的交接问题,在交接方式上,我们最好以三角形交接方式去做,立面做好了,再去侧面对好位置。

,然后我们在顶视图上看对下看下相应关系位置



只需要做一半,然后我们关联复制过去,必须做上楼板。


总结:
本次标准层,让大家学会在做的前提下,学会怎么看cad和分析cad,以及整理cad,我们在max里面做的时候所用到的一些常用的命令,通过勾线-挤出等条件下,学会应用捕捉的命令,归图层和在结构上的交接方式一些建模技巧。还有在材质上的划分。
重点:捕捉精确,材质准确,无重面错面,结构交接正确。