两个对称的水泥方盒子,面对面站立,留出一条缝隙就可称之为“一线天”,这样的建筑设计真的欣赏不来!
项目位于惠安雕艺文化创意产业园。用地南北向狭长,产权由两位艺术家C、Z共同且平均拥有。为了使两个艺术家均能有南向出入口及北向临湖景观,设计将用地沿南北方向再一分为二,从而形成两块更为狭长的次一级用地。


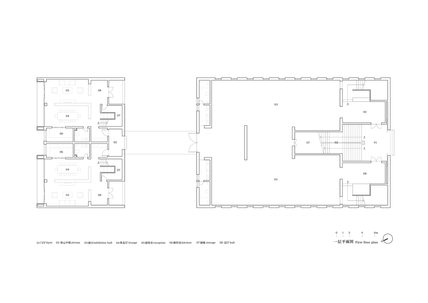
在次一级用地里,南侧设置展厅及工作室;北侧为研发、办公、接待等功能,二者间设置庭院,实现良好的自然通风与采光。


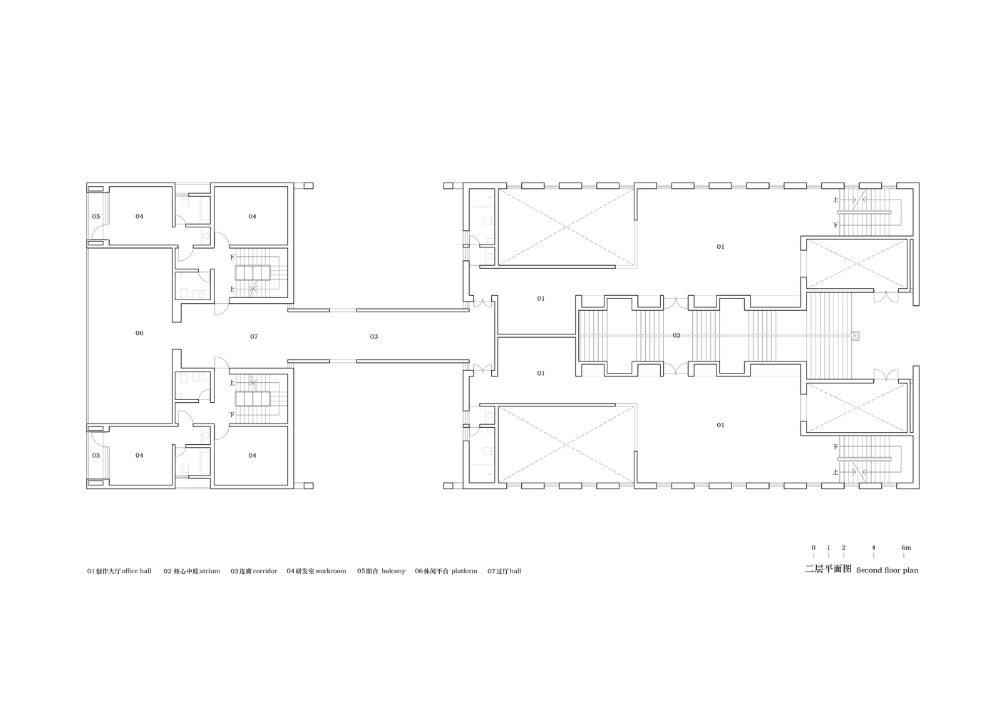
为了高效组织次一级用地的空间关系,设置一个直通三层的直跑大楼梯。直跑楼梯共7个休息平台,如果适当放大第1、第4、第7个休息平台,就可以为C、Z工作室一、二、三层形成面对面的三个出入口,流线清晰、便捷。


上部,两部分雨棚相扣,强化整体感,创造出一线天意象。自高耸的院门起,人们一路上行,空间比例随之变化,穿过混凝土筒状连桥,至研发楼休闲平台可一览北侧湖景,整个序列空间缩放有序又一气呵成。


晴天,自一线天直泻下来的阳光缓慢移动,制造丰富的光影变化;雨天,自一线天泻下的雨水形成壮观的水幕,雨水沿中部微凹的水道下流,汇至第1休息平台的集水槽,空间与大自然产生生动的交融。侧立面,庭院部分以斜撑构架联系南北体量,形成完整形态,并为院落空间塑造边界与领域感。







模型

图纸

场地平面图

一层平面图

二层平面图

三层平面图

屋顶平面图

立面图

立面图

剖面图

轴测图
项目详情建筑师:尹培如建筑工作室地址:泉州,福建省,中国主创建筑师:尹培如设计团队:杨念明,李森合作方:华侨大学建筑设计院客户:C、Z雕艺工作室建筑面积:2150.0 平方米项目年份:2017摄影师:尹培如