室内墙面的装饰装修构造与墙面的装饰装修用材有关。
一、墙面装饰装修构造
室内墙面的装饰装修构造与墙面的装饰装修用材有关。墙面主要的装饰装修材料有:墙纸与墙布类、织物饰面类、木板类、玻璃类、金属板类、石膏板类、新型复合板材类、陶瓷类、石材类和涂饰类。
1. 墙纸与墙布类
墙纸是以各种彩色花纹装饰墙面,种类繁多。墙纸按材质分为塑料墙纸、织物墙纸、金属墙纸、植绒墙纸等。墙布是以纤维织物直接作为墙面装饰材料。墙纸、墙布均应粘贴在具有一定强度、表面平整、光洁、干净、不疏松掉粉的基层上,在粘贴时,对要求对花的墙纸或墙布在裁剪的尺寸上,其长度要比墙高出100~150mm,以适应对花粘贴的要求。墙纸大多在抹灰基层、石膏板墙基层等墙体上粘贴 。

PVC墙纸
注:墙布、墙纸实际属同一类型,但人们习惯所称的墙布是指无纺贴墙布、装饰墙布、化纤装饰墙布、玻璃纤维墙布等。墙布类的施工方法与墙纸类的施工方法相似,也是基层处理后用胶粘剂裱糊粘贴。
金属墙纸是以特种纸为基层,将金属箔或粉压合于基层表面加工而成的墙纸,其效果有金属闪烁之感,施工时对墙体基层平整度要求较高。
2. 织物饰面类
织物饰面一般分为两类:一类是无吸声层硬包墙面,另一类是有吸声层软包墙面。软包是指在墙面上用海绵等软体材料、织物等覆盖构成装饰面层。软包墙面具有一定的吸声力、且触感柔软的优点。软包墙面的基本构造,可分为底层、吸声层和面层三大部分。
无吸声层硬包饰面基层构造与有吸声层软包饰面基本构造,如图下图所示。

硬包、软包墙面构造
(1) 硬包墙面常见的做法,分述如下:
①做墙面找平层和基层,保证平整度。
墙面防潮处理—→制作木龙骨,涂刷防火材料后安装—→在木龙骨上铺钉木工板。
②用12mm厚密度板(或9mm厚密度板)裁割板料,尺寸可适当缩小2~3mm 。
③在木工板基层板上,试铺装饰板料,调整好位置。
④按顺序拆下板料,并在背面标号。
⑤在每个板料上,均匀涂刷万能胶,然后包墙纸(或墙布、皮革等)之类的饰面,饰面尺寸每边比板宽50mm左右,以便折贴于板料的后面。
⑥将包好的板料按顺序用枪钉,钉在基层板上,完成硬包饰面的制作。
(2) 软包墙面常见的做法,分述如下:
①木基层上的直接做法的步骤:
墙面防潮处理—→制作木龙骨,涂刷防火材料后安装—→在木龙骨上铺钉木工板、胶合板,完成木基层制作—→在木基层上按设计的软包尺寸及位置铺钉木质外框—→在外框内使用万能胶粘贴裁好的泡沫塑料块—→利用裁好长度并经45°割角处理的压角木线将裁好的饰面布和作为保护层的塑料薄膜压在泡沫塑料上,再用枪钉将压角木线牢牢钉在木质板上—→裁下多余的饰面布和塑料薄膜,完成软包饰面的制作。
②预制软包块拼装做法的步骤:
按软包分块尺寸裁好胶合板—→在裁好的胶合板边部用钉接加乳胶的方式固定宽度为20mm、厚度低于泡沫塑料块1mm左右的木条(木条外角可按设计要求刨出一定形式)—→在木条框内粘贴裁好的泡沫塑料块—→将裁好的饰面布覆盖在泡沫塑料上,卷到反面再用枪钉钉牢或胶粘牢,制成预制软包块—→用射钉枪将包好塑料薄膜的预制软包块镶钉在设计的位置上,四周按设计要求加钉装饰压条或饰面板。
3. 板材类
内墙装饰板材类很多,主要有木饰面板、金属饰面板、合成装饰板等。
(1) 木饰面板
装饰施工中使用的木饰面板一般有两种类型:一种是3mm厚木饰面板,另一种是薄木饰面木饰面板。
①3厚木饰面板(又称切片板)
木饰面板,俗称面板。是将实木板精密刨切成厚度为0.2mm的微薄木皮,以胶合板为基材,经过胶粘工艺制作而成的具有单面装饰作用的装饰板材,厚度为3mm。一般规格有1200mm×2400mm、1220mm×2440mm。
在施工现场,可以根据设计要求进行锯切、弯曲、拼接等。对木饰面可在装饰结构层完成以后,进行现场油漆罩光。
②薄木饰面木饰面板(也叫成品饰面板)
薄木饰面木饰面板,是在木制加工厂内,将0.3~0.6mm厚的木皮(或单板),粘贴在中密度板基层上,再通过热压机,压合成一定厚度的饰面板。普通木饰面板厚度一般为12~18mm。
薄木饰面木饰面板是工厂化生产并油漆好的成品板材,工厂加工出各种尺寸规格,到施工现场就能组装。一般应用在墙面、顶面的木饰面造型、成品木门窗及木框套以及成品木橱柜家具等部位。
常见为:0.6mm厚饰面木皮+15mm厚中密度纤维板基层+0.6mm厚普通木皮。
推荐使用厚度为12mm或18mm的中密度纤维板为基层材料,薄木饰面木饰面板内部构造示意图如图所示。

薄木饰面木饰面板内部构造示意图
(2)金属装饰板
在现代建筑装饰中金属装饰因其耐磨、耐用、防腐蚀等优点,被广泛采用。常见的金属装饰板有:不锈钢装饰板、铝合金装饰板、烤漆钢板和复合钢板等。
复合铝塑板的内墙安装工艺:主要采用粘贴的方式将复合铝塑板固定于做好的底层上,底层常选用胶合板和木工板等。
(3) 合成装饰板
①三聚氰胺板
三聚氰胺板,全称是三聚氰胺浸渍胶膜纸饰面人造板。它是将带有不同颜色或纹理的纸放入三聚氰胺树脂胶粘剂中浸泡,然后干燥到一定固化程度,将其铺装在刨花板、中密度纤维板或硬质纤维板表面,再经热压而成的装饰板。
三聚氰胺板,目前广泛应用于办公家具和墙面、台面装饰等部位。
②耐火板(防火板)
耐火板,是采用硅质材料或钙质材料为主要原料,与一定比例的纤维材料、轻质骨料、粘合剂和化学添加剂混合,经蒸压技术制成的装饰板材。其使用目的不仅是因为耐火的因素,同时也因其能装饰墙面。耐火板的施工,一般采用万能胶,将耐火板直接粘贴在平整的木质基层面(胶合板、密度板和木工板等)上。
耐火板的厚度一般为0.8mm、1mm和1.2mm。
4. 陶瓷类
最常用的陶瓷贴面有:釉面砖(亦称瓷砖)、各类面砖、陶瓷锦砖(马赛克)等。它们的铺贴方法基本类同,在此重点介绍瓷砖的构造做法,其他材料的铺贴方法,可以此类推。
瓷砖的构造做法是:
⑴ 基层抹底灰。底灰为1:3的水泥砂浆,厚度15mm,分两遍抹平。
⑵ 铺贴面砖。先做粘结砂浆层,厚度应不小于10mm。砂浆可用1:2.5水泥砂浆,也可用1:0.2:2.5的水泥石灰混合砂浆,如在1:2.5水泥砂浆中加入5%~10%的107胶,粘贴效果则更好。
⑶ 作面层细部处理。在瓷砖贴好后,用1:1水泥细砂浆填缝,再用白水泥勾缝,最后清理面砖的表面。
5. 石材类
墙体饰面的石材,有花岗石、大理石、青石等天然石材和文化石、水晶石、微晶石等人造石材。天然石材和人造石材饰面的构造与做法,既有共同之处也有差异,现分述如下:
(1)天然石材类墙体饰面
天然石板材类饰面具有重量大的特点,因此在构造上有特定要求。目前构造与做法主要有以下几种:
① 聚酯砂浆固定法。基本做法同陶瓷类墙砖。

砂浆固定法
② 树脂胶(云石胶、AB胶)粘贴法。第一步在墙基层清理、打毛处理的基础上,将胶粘剂涂在板材的相应位置(用量应针对使用部位受力情况布置,以牢固结合为原则,尤其是对悬空的板材用胶量必须饱满)。第二步将带胶粘剂的板材粘贴,并挤紧、压平、扶直,随后即进行固定。第三步待胶粘剂固化,石材完全粘贴牢后,拆除固定支架。

树脂胶(云石胶、AB胶)粘贴法
以上的构造方法适用于小块面的石材粘贴。
③ 灌挂固定法。是一种“双保险”的做法,即在饰面安装时,既用水泥砂浆等作灌注固定,又通过各种钢件或配用的钢筋网,在板材与墙体之间、板材与板材之间进行加强连接固定。
这种固定方法,通常在板材与板材之间,是通过钢筋、扒钉等相连接的;在板材与墙体之间,对厚板用系钢件等扁条连接件固定;对薄板则用预埋在墙体中的U形钢件固定,然后将配置的钢筋网用钢丝或铜丝扎紧板材。 下图为锚固法的固定形式。为保证石材安装的牢固,凡大规格的板材或高度超过1.2米者,均应采取此方法。

石材灌挂固定法
④ 干挂法(又称螺栓和卡具固定法)。在基层的适当部位预留金属焊板,在饰面石材的底侧面上开槽钻孔,然后用干挂件和膨胀螺栓固定,另外也可用金属型材卡紧固定,最后进行勾缝和压缝处理。

石材干挂法
(2)人造石材类墙体饰面
人造石材中,预制人造石材饰面板,因其性质与天然石材相近,因而饰面的构造做法与天然石材基本相同。人造大理石饰面板有不同的种类,其物理、化学性能各不相同,因此饰面固定的构造做法应区别对待。
① 聚酯型人造石材,最好用有机胶粘剂粘贴,降低成本并保证装饰效果,可采用与天然石材施工中相同的不饱和聚酯树脂作胶粘剂,并可在树脂中掺入一定量的中砂。
② 烧结型人造石材,因其性能接近陶瓷制品,可参见镶贴瓷砖的方法进行施工。
③ 无机胶结型人造石材和复合型人造石材,应依据板的厚度来确定施工工艺。对厚板宜采用聚酯砂浆粘贴的方法,为降低成本也可采用聚酯砂浆固定与水泥胶砂浆粘贴相结合的方法;对薄板可用水泥砂浆打底,以水泥石灰混合砂浆或加入107胶的水泥浆作胶粘剂,进行粘贴。
需要注意的是,无论何种类型的人造石材,对大规格的板材,或安装高度较高时,均应采用前述的灌挂固定法和干挂固定法进行铺贴,以保证足够的牢度。
6. 涂料类
用涂料作墙体饰面,是各种饰面做法中最为简便、经济的方法,它具有价格低、工期短、功效高、自重轻、便于维修更新等优点,尤其是涂料可以配置成装饰所需的各种颜色,在室内装饰中应用极广。
墙体涂料的种类很多,通常可以分为如下四大类:一是溶剂型涂料,多用于外墙装饰;二是乳液型涂料,有的可形成类似油漆漆膜的光滑表层,习惯上称为“乳胶漆”,因其性能良好、无毒、无污染且施工方便,在室内装饰中广为应用;三是水溶性涂料,即聚乙烯醇类内墙涂料,其中聚乙烯醇水玻璃内墙涂料的商品名是“106内墙涂料”,在室内装饰中也常应用;四是无机高分子涂料,是一种新发展起来的新型涂料。
墙体涂料的涂饰施工,有喷漆和滚漆两种方式。涂料的做法一般分为三层,即底层、中间层和面层。
(1)底层。俗称刷底漆,主要作用是增加墙基层与涂层之间的粘附力,同时底层还兼起墙基层防潮封闭剂的作用。
(2)中间层。是涂料饰面中的成型层。其工艺要求是形成具有一定厚度、均匀饱满的涂层,以达到保护基层和所需的装饰效果。质量好的中间层不仅可保证涂层的耐久性、耐水性和强度,同时对基层还可起补强作用。为了增强中间层的作用,往往采用厚涂料加白水泥、砂粒等材料配成中间层涂料。
(3)面层。其作用是体现涂层的色彩和光感。为保证涂层均匀,并满足耐久性、耐磨性要求,面层最少应涂刷两遍。
二、柱子的装饰装修构造
柱子的饰面材料主要有:木材、石材、金属板材、玻璃及织物、涂饰等。
柱子的饰面的构造方法与墙体的构造原则相同。因为墙体装饰装修构造中对墙纸、墙布等织物饰面类和涂料类已作介绍,故以下主要介绍木材包柱、石材包柱、金属板包柱和玻璃包柱的构造。
1. 木材包柱构造
木材包柱的装饰构造做法主要步骤包括木龙骨的拼装、基层板的固定、饰面板的安装。

木装饰柱的构造示意
(1)木龙骨的拼装
根据柱子的高度和大小,钉木龙骨架。基层木龙骨通常采用25mm×30mm、25mm×40mm、30mm×30mm截面的龙骨。龙骨须按分档尺寸开出凹槽后,进行整片或分片拼装。拼装后,直接钉固在柱面上。
(2)基层板的固定
一般选用9~18mm厚的胶合板或木工板作为基层板,在固定好的木龙骨上钉牢。若柱面有造型需要,大多选用木工板作基层板。
(3)饰面板的安装
安装前应先挑选好合适的饰面板,将色泽、木纹相近或一致的板材拼装在一起。因为木纹对接是否协调、自然,会影响整个木质柱面的装饰效果。
封钉木质板材可用枪钉或圆钉,方法类似木质墙面的拼装。封钉前应调整好每块板的拼缝,不同厚度的板材要选择不同型号的钉子。
木质柱面饰面板的后期处理要根据所用的面层板而定。面层板已具有各种木纹肌理的,一般采用显露木纹的清漆进行后期处理,需要得到其他色彩效果的柱面,则可用混水漆饰面处理。
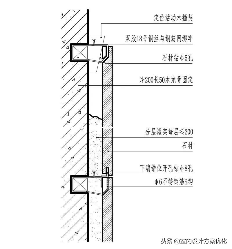
2.石材包柱构造
石材包柱有钢筋网绑扎法、干挂法、粘贴法三种做法。其中钢筋网绑扎法加工较简便,但接缝处易产生泛碱问题;干挂法可以解决泛水问题,但成形后的体量较大;粘贴法则只适用于面积较小、厚度在20mm以下的板材和高度不高的基体上。
(1)钢筋网绑扎法
钢筋网绑扎法是一种传统的铺贴石材的施工方法。它的施工程序大体如下:设置钢筋网;试拼编号;板材背面开槽;绑扎板材;找平吊直并临时固定;灌浆;养护;嵌缝。

钢筋网的设置形式
① 设置钢筋网:如柱面上设有预埋件时,用铜丝或不锈钢丝按施工图大样将钢筋制成钢筋骨架,固定于基体上。当柱面没有预埋件时,可用电锤在柱面上钻孔,并于孔内安放膨胀螺栓,再用电焊将钢筋与螺栓焊牢。
② 绑扎板材:用切割机在板材背面分别开四角开槽,穿插和固定好铜丝或不锈钢丝。

板材背面槽口形式
③ 安装板材:安装时可按顺时针,从正面开始由下向上逐层安装,并用靠尺板找垂直,用水平尺找平整,用方尺找好阴阳角,紧固钢(铜)丝。 板缝用石膏填塞,以防止板材移位和砂浆发生泌浆。灌浆时应根据板材颜色调制水泥砂浆,如浅色石材灌浆时应采用白水泥,以使板材底色不受影响。
④ 嵌缝:板材安装完毕后,应清除板缝间多余的粉尘,用与板材底色相近的水泥浆进行嵌缝。对于镜面石材,如面层光泽受到影响,应重新打蜡上光。
(2)干挂法
干挂法就是用特制的不锈钢挂件,将石材固定在基体上的一种施工方法。这种方法不需要用水泥砂浆灌注或水泥镶贴,方便简捷。方法是直接在石板上打孔、开槽,然后用不锈钢连接件、角钢与埋在柱体内的膨胀螺栓直接相连而成。

不锈钢挂件的布置
(3)粘贴法
粘贴法就是将板材用聚合物水泥砂浆或胶粘剂粘贴到基体表面的一种施工工艺。方法是 用水泥砂浆在柱体上抹灰找平,用聚合物水泥砂浆或胶粘剂在找平层的表面和板材的背面铺摊饱满。按施工图纸要求将板材就位,并用临时工具进行顶卡固定。

柱面板材的临时固定
3. 金属板包柱构造
金属板包柱由骨架、基层板和饰面板三部分组成。
(1)骨架的做法
骨架有木结构和钢结构两种。木结构骨架是用木方制成的,主要用于贴不锈钢板、钛合金板、铜合金板等饰面材料。钢结构骨架由角钢焊接或螺栓连接而成,主要用于贴铝合金板饰面。如混凝土方柱包圆柱,步骤为:通过预埋件对竖向骨架进行定位 → 横竖骨架之间的连接及骨架支撑与柱体的固定→ 圆形包柱直径的确定。
(2)竖向龙骨定位
① 横向龙骨与竖向龙骨的定位;
② 方柱装饰成圆柱的定位;
③ 骨架与柱体连接固定。
(3)基层板的固定
基层板的作用是增加柱体骨架的刚度,便于铺贴饰面板。它一般由胶合板、木工板或密度板制成,基层板直接用铁钉或螺钉固定在骨架上。基层板必须有平滑的表面和较高的尺寸准确度,以保证饰面的安装质量。
(4)饰面板的安装
金属板饰面的安装固定,可采用胶粘、钉接和焊接三种方式。其中胶粘法操作简便,因而应用最广泛;焊接法技术要求高,后期还需进行磨光处理,所以应用较少;钉接法安装方便而且牢固,但饰面易出现较大缝隙。无论采取何种安装方式,都必须按需要准确切割饰面板。
安装金属饰面板的基层面形状有平面状和圆柱状两种。平面状多见于方形体或矩形柱上,在柱的大平面上可用胶粘法将金属板贴在基层板上,然后在转角处用成型角压边,再用少量密封胶封口。圆柱体或椭圆柱体的饰面,通常可以预先将圆柱的饰面板加工成几块金属曲面部件,然后在现场加以组装,也可以在现场根据需要将平板切割后弯曲、组装。
安装中的主要关键是各金属板之间的接口处理。当采用粘贴方式时,安装金属板对口主要有直接卡口式和嵌槽压口式两种。前者是在两块板对口处,安装一个不锈钢制的卡口槽,卡口槽用螺钉固定在柱体骨架的凹部,然后分别将两片金属板折边端压入槽内。后者是先将金属板在对口处凹部木骨架上用螺钉或铁钉固定,再把一条宽度小于凹槽的木条固定在凹槽中间,两边各留有1mm左右的空隙,在木条上刷万能胶并在上面嵌以金属槽条,然后将饰面板相接的两侧边分别压入木条的缝隙内。
当采用钉接方式时,将金属饰面板的两端折边通过连接件用螺钉与包柱钢骨架连接,然后用橡胶压条嵌入缝内,最后用密封胶封口。
4.玻璃包柱装饰构造
玻璃包柱由预埋件及紧固件、骨架、装饰玻璃和连接件等部分组成。
(1)预埋件及紧固件
预埋件和紧固件的型号和规格必须符合设计要求,且要有相应产品的合格证和性能检测报告,在安装预埋件时应对预埋件的偏差进行检验,超过偏差的预埋件要进行适当的纠偏处理后方可进行下一步的施工。预埋件的安装一定要牢固,并作防锈处理。
(2)骨架
骨架主要分木结构骨架和金属结构骨架两种,骨架的制作与安装要有足够的承载能力与刚度。木结构骨架要作防腐、防火处理,钢结构骨架要作防锈处理。骨架和预埋件的连接方式要符合设计要求,骨架在安装与连接时应进行调整与及时的固定,安装误差不得累积。玻璃包柱中常有暗藏的照明灯具,故在安装骨架时要充分考虑电气设备的空间大小和检修、拆装、散热、防火的要求,以达到安全使用的效果。
(3)面层装饰玻璃
面层装饰玻璃应采用安全玻璃或有机玻璃,玻璃的花纹、图案要符合设计要求,玻璃的加工尺寸力求精确。面层的安装,通常在骨架上覆盖一层木工板或胶合板等木基层,在安装玻璃时可以采用胶、玻璃钉和卡条三种连接材料,其中玻璃钉应用最广泛。玻璃面板之间如没有卡条分格,应采用密封胶打实,密封胶质量必须符合规范要求,胶封外观应均匀、美观、顺直。
总之,玻璃包柱的构造要求是:用材合理、结构牢固、尺寸准确。
三、墙面其他部位的细部构造
1、踢脚线的形式与构造
踢脚线是楼地面和墙面相交处的构造处理方式,在墙面装饰装修中,踢脚线的使用非常广泛,它是起到保护墙面装饰材质以及和墙地面收边的作用。从材质分类有:木质、陶瓷、石材、金属、塑料(PVC)等。
踢脚线与墙面构造方式有三种:
①与墙面相平。②凸出。③凹进。当护墙板与墙之间距离较大时,一般宜采用凹式处理,踢脚板与地面之间宜平接。踢脚线一般在地面或墙裙完工后施工。
2、窗套和窗台板的形式与构造,窗的构成见下图。
