坦白说,在地产行业内,万科地产园林不如龙湖,产品不如中海,销售不如旭辉,物业不如绿城,连影响力都不如碧桂园,万科这公司都不到三四五线城市的,对外打的那个广告语简直是在*辱侮**人:“一辈子总要住一次万科”,咱们乡下那疙瘩也没有万科啊?
就是这么一个非常中庸的公司,却被持续20来年都霸占着地产行业头把交椅,而且有个头名魔咒,凡是超越了万科的头名的,都会有不幸降临,比如绿地在2014年便成功以2408亿元超越了万科,成为当年的老大,结果2015年不旦从头名掉了下来,还被恒大超过,而且排名逐名下滑,2021年掉到10名开外,还暴了雷。
还有绿城的宋卫平,2008年之后,号称要3年冲千亿元,公开对万科宣战,甚至宋卫平对万科的产品和王石本人都进行了不同程度的攻击。
然而具有讽刺意味的是,三年之后万科宣布全年销售规模已破千亿,绿城则是从400多亿的骤降到300多亿,企业面临全线危机:销售*退倒**、库存激增、负债高企。自此,绿城也丧失房企一流军团的资格,在规模上沦为二流房企,而宋卫平也不得不在将绿城卖给中交。
后来唯一超越万科的则是命大的农民杨国强,凭着重仓三四五线甚到乡镇,在2017年地产的狂飙突进中,碧桂园终于登顶,全年销售金额5508亿元,成为宇宙第一房企。而这种量上的超越也为现在的碧桂园埋下了祸根,进入2019年后城市分化便已经十分严重,主力集中在三四线城市的碧桂园已经步履艰难,只能打折去化,利润率降至谷底,已传出大幅裁员和可能暴雷的风言风语。

估计碧桂园是世上最恨那些自媒体大V的公司,想闷声发财都不行,生生把一个想给业主一个五星级家的公司黑成了给您一个五星期的家,愿社会因我们的存在而变得更加美好,变成了别托大了,社会真不多你这一个。
业内人士多关注两个东西,一个是万科的业绩会,在这会上郁亮几乎几次给地产时代贴上了标签,什么白银时代,什么黑铁时代,什么活下去,万科的一举一动都能在江湖上行成一波段子;另一个是保利发展每年发布的白皮书,几乎是对于行业每年发展趋势的预判。
但就在行业内的影响来看,万科就凭借着只言片语,明显抢了更多风头。
其实从当年的宝万之争来看,王石之所以不欢迎姚员外入主,将其斥之为野蛮人,主要的担心还是资本掌握了话语权之后,就会改变万科稳健的发展风格。
从现在地产列强中有29家都暴雷,真要让姚员外入主了万科,谁又会晓得万科会不会也与恒大一样,拼命加杠杆,冲规模,少有了对于数字的敬畏,不再有清醒的认知要活下去呢?
所以看了万科松湖天地之后,就感觉这真是个中庸的公司,一直企图在争创标杆产品与产品流速之间寻找一种平衡,说白了就是要讨好客户。这个不是贬义词,想想其他公司是怎么对待客户的,店大欺客,不将客户放在平等位置,就明白能将客户放在心上是多么稀缺了。

所以你可以笑话万科的平庸,产品也是那么中规中矩,比不上绿城那么有亮点,但是想想绿城江南明月与松湖天地的首开成绩,就明白这种品质实际上就是个会过日子的经济适用男了。
因而可能很多公司并不会模仿万科松湖天地的产品设计,清一色18层的高层产品,两梯两户板楼都觉得不够板,赠送面积都不够大气,凸显的就是经济适用而已。
148平米户型,建筑面积149.7平方米,套内面积122.1平方米,公摊面积27.6平方米,公摊率18.44%,首开带2300装修单价12500元/平方米左右,总价180万,首付在55万左右;

148平米户型
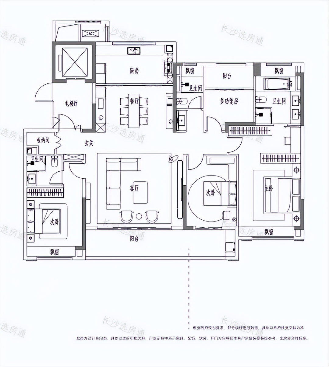
189平米户型,建筑面积187.92平米,套内面积158.4平米,公摊面积29.52平方米,公摊率15.71%,首开带装修单价14000元/平米左右,总价260万,首付在80万左右。

189平米户型
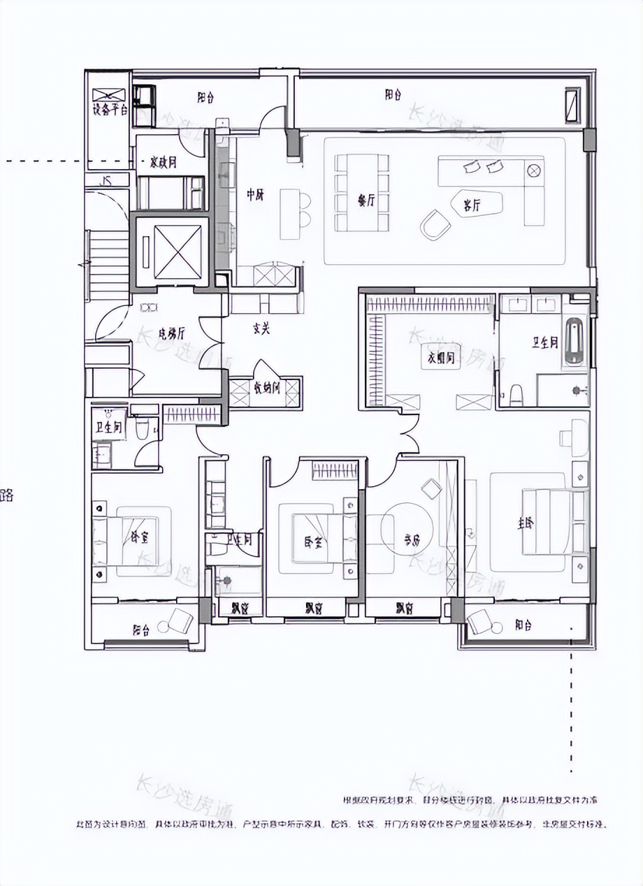
240平米户型,建筑面积241.59平米,套内面积209.95平米,公摊面积31.64平方米,公摊率13.1%,首开带装修单价17000元/平米左右,总价400万左右,首付在120万左右。

240平米户型

131平米户型

112平米户型