塔楼空调设备吊装运输方案
一、工程概况
本工程为***市项目(商业办公地块),位于广西***区,内设办公、会议室、商业、超市、电影院、汽车库及设备房等,本吊装运输方案为4、5、6#塔楼部分。其中4#塔楼为17层,建筑高度109.1米;5#塔楼18层,建筑高度为87.4米;6#塔楼为22层,建筑高度114.2米。
二、方案划分
由于该工程办公部分为单栋系统,分布区域宽,各楼号空调机组数均为独立系统,各楼栋设备吊装均需单独设置吊点及方案确认,进行不同的受力计算,因此将设备运输及吊装方案分解成以下三部分:
1、4#楼制冷空调机房设备及楼层新风机组运输吊装方案;
2、5#楼制冷空调机房设备及楼层新风机组运输吊装方案;
3、6#楼制冷空调机房设备及楼层新风机组运输吊装方案;
三、编制依据
1、南宁市五象新区核心区商务街项目(商业办公地块)工程建筑、设备专业施工图纸(深圳市建筑设计研究总院有限公司)
2、通风与空调工程施工及验收规范(GB50243-2002)
3、通风与空调工程质量检验评定标准(GBJ304-2002)
4、建筑安装分项工程施工工艺规程(DBJ01-26-2002)(第三分册)
5、建筑设备施工与安装通用图集,通风与空调工程(91SB6)
6、材料力学
7、建筑安装工程安全技术规程
8、参考到场设备外包装箱上标示的重量、外型尺寸及卸货位置,以及施工现场的实际情况
四、施工组织
1、施工组织准备
成立设备运输小组,由工长负责(组长),组员由现场技术员、安全员及工人组成。技术人员根据设备型号、机房位置,确定运输路线,选用运输车辆及各种运输工具;负责设备运输方案的编制及方案交底。安全员负责安全技术要求的审核及各类工、机具安全性能的复核。组长负责设备运输安全交底、方案的实施及组织人力、物力完成整个设备运输吊装过程。
2、运输路线及工具准备
组长负责带领参加运输工作人员熟悉运输路线,组织人员加工运输工具,清除运输通道上的所有障碍并对通道上的孔洞进行围护、覆盖。要对各机房及通道的门、洞根据设备的长、宽、高尺寸进行核对、测量,凡影响设备通过的门、洞要处理,但对结构的处理要和土建技术人员协商,不可随意拆改结构的门、洞。对需在楼板、梁等结构上生根或固定的部位需经技术人员计算复核,并经结构专业同意,放可实施。
五、施工工艺与方法
(一)4#楼制冷空调机房设备及楼层新风机组运输吊装方案
1、概述
4#楼空调设备有屋面层空调冷冻站内设备及各楼层末端空调设备。其中:
屋面层空调冷冻站设备包括风冷式螺杆机组、冷冻水泵、膨胀水箱、多相水处理器及卫生间排风系统的离心式排风机;
各楼层末端空调设备包括各房间内的风机盘管机组和各新风机房内的新风机组。
2、各种设备参数、数量
号 设备名称 规格型号 单位 数量 重量 外观尺寸
1 风冷螺杆式冷水机组 MHS220ST3-FBB 台 4 6400kg 7380×2260×2425
2 冷冻水泵 台 5 350Kg
3 膨胀水箱 台 1 900*900*900
4 多相水处理器 台 1 300Kg
5 离心式排风机 台 2
6 卧式安装风机盘管 台 415
7 热回收型新风机组 台 6
8 吊装式新风机组 台 1
3、设备运送、吊装方法
该楼栋内的空调设备运输分成末端空调设备及空调冷冻站设备两部分,各设备进入施工安装预定位置的方法如下:
1)末端风机盘管机组由于整体尺寸较小,可以使用现场施工电梯运至各楼层;
2)各新风机房内的热回收型新风机由于整体尺寸较大,不能直接进入施工电梯轿厢,因此需设备供应厂商对设备按功能段进行拆分。
设备到场后,采用2T的柴油式叉车将各分段设备卸车堆放于指定位置,然后由2T手摇式叉车运进施工电梯,再根据相应楼层所需要的设备数量、型号搬到现场组装;
3)屋面空调冷冻站部分设备由于现场条件的局限及设备尺寸、重量较大,需用大型吊装设备吊装。
风冷式螺杆机组到场后,采用用一台30T的汽车式吊车将空调主机卸车到指定堆放位置;冷冻水泵及其他附属设备到场后,采用2T的柴油式叉车将各设备卸车堆放于指定位置。
待空调冷冻站设备全部到场后,采用一台500T汽车式吊车将所有设备集中吊装,避免出现吊车及人工的窝工。
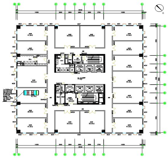
4、空调冷冻站及新风机组的安装位置分部
1)4#楼顶层空调制冷机房位置如下图:

2)4#楼新风机房内新风机位置如下图:

5、屋面空调冷冻站设备的吊装
各设备到场后,将设备运至 4#楼前施工通道靠楼栋外地面,利用500吨汽车吊车将设备吊至屋面花架顶部,设备由花架格间放下,完成垂直运输。
500吨吊车的摆放位置及花格架吊装孔位如图:

6、屋面设备的水平位移安装
由于吊装不能一次性将各设备吊至相应的设备基础上,因此需要在屋面层二次倒运,所有设备运用吊车通过设备吊装孔到达屋面后,采用人工辅助机械完成二次倒运。
1)首先需要用枕木及其他垫木等材料铺设成与设备基础等高的运输平台;
2)运输平台铺好后,需在平台枕木垂直方向并排铺设四条20#槽钢做运输轨道,轨道搭接口需错开;
3)设备吊上运输轨道后,由人工在设备与轨道之间摆上相应的滚杠用撬棍撬动,人工实时掌握设备移动方向将各设备运至对应的设备基础上;
4)各设备运至对应的基础上后方可取出滚杠,采用千斤顶精确定位安装。
8、所需运输机具材料
序号 机具名称 规格型号 单位 数量 备注
1 汽车式吊车 500T 台 1
2 汽车式吊车 30T 台 1
3 柴油式叉车 2T 台 1
4 手摇式叉车 2T 台 1
5 倒链 5T 台 2 长10m
6 千斤顶 2T 台 4
7 枕木 3m 根 20
8 20#槽钢 4m 根 12
9 滚杠 2m 根 10
10 撬棍 2m 根 6
9、500吨汽车吊车参数表
LTM1500/1-500t全液压汽车吊机主臂额度性能表:
支腿开臂=10×9.6m、旋转角度=3600、标准配重=135t
回转半径(m) 主臂长度(m) 回转半径(m)
16.1 21.3 26.5 31.7 36.9 42.1
33.5 500400 500400 500400 262 33.5
44.5 325262 325262 325261 262259 248239 44.5
56 261231 255226 245216 243214 229208 183168 145 56
78 206186 202182 192173 190170 190170 156145 133123 116107 78
910 170155 162145 156141 153138 153138 134124 114106 10094 910
1214 128107 119100 11799 11497 11497 10793 9280 8373 1214
1618 8271 8271 8371 7165 6355 1618
2022 56 6153 6254 5853 49.545 2022
2426 47 47.542.5 4640.5 40.536.5 2426
2830 37.532.5 3632 33.531 2830
3234 28.325.3 28.526.6 3234
36 24.2 36
(三)6#楼制冷空调机房设备及楼层新风机组运输吊装方案
1、概述
6#楼空调设备有屋面层空调冷冻站内设备及各楼层末端空调设备。其中:
屋面层空调冷冻站设备包括风冷式螺杆机组、冷冻水泵、膨胀水箱、多相水处理器及卫生间排风系统的离心式排风机;
各楼层末端空调设备包括各房间内的风机盘管机组和各新风机房内的新风机组。
2、各种设备参数、数量及安装位置
序号 设备名称 规格型号 单位 数量 重量 外观尺寸
1 风冷螺杆式冷水机组 MHS220ST3-FBB 台 5 6400kg 7380×2260×2425
2 冷冻水泵 台 6 350Kg
3 膨胀水箱 台 1 900*900*900
4 多相水处理器 台 1 300Kg
5 离心式排风机 台 1
6 卧式安装风机盘管 台 567
7 热回收型新风机组 台 9
3、设备运送、吊装方法
该楼栋内的空调设备运输分成末端空调设备及空调冷冻站设备两部分,各设备进入施工安装预定位置的方法如下:
1)末端风机盘管机组由于整体尺寸较小,可以使用现场施工电梯运至各楼层;
2)各新风机房内的热回收型新风机由于整体尺寸较大,不能直接进入施工电梯轿厢,因此需设备供应厂商对设备按功能段进行拆分。
设备到场后,采用2T的柴油式叉车将各分段设备卸车堆放于指定位置,然后由2T手摇式叉车运进施工电梯,再根据相应楼层所需要的设备数量、型号搬到现场组装;
三层大堂末端空调机组设备由于尺寸较大,无法用施工电梯运至楼层机房,需要用30T吊车由原塔吊孔吊入设备机房,然后在根据功能段需求现场组装。
3)屋面空调冷冻站部分设备由于现场条件的局限及设备尺寸、重量较大,需用大型吊装设备吊装。
风冷式螺杆机组到场后,采用用一台30T的汽车式吊车将空调主机卸车到指定堆放位置;冷冻水泵及其他附属设备到场后,采用2T的柴油式叉车将各设备卸车堆放于指定位置。
待空调冷冻站设备全部到场后,采用一台500T汽车式吊车将所有设备集中吊装,避免出现吊车及人工的窝工。
由于吊装不能一次性将各设备吊至相应的设备基础上,因此需要在屋面层二次倒运,采用枕木及槽钢等制作相应的平台及运输轨道,然后才能将各设备运至对应的设备基础上定位安装。4、空调冷冻站及新风机组的安装位置分部
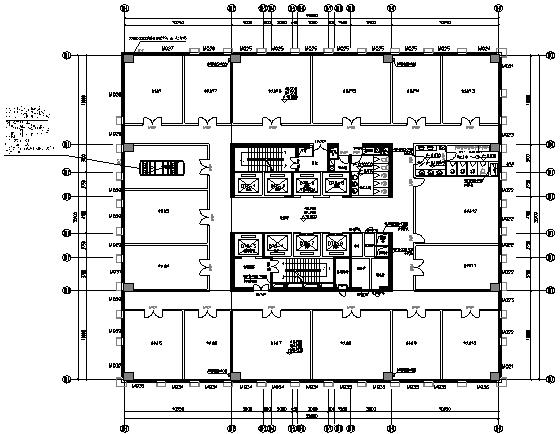
1)6#楼顶层空调制冷机房位置如下图:

2)6#楼新风机房内新风机位置如下图:

5、三层大堂空调机组吊装

6、屋面空调冷冻站设备的吊装
各设备到场后,将设备运至6#楼前施工通道靠楼栋外地面,利用500吨汽车吊车将设备吊至屋面花架顶部,设备由花架格间放下,完成垂直运输。
500吨吊车的摆放位置及花格架吊装孔位如图:

7、屋面设备的水平位移安装
由于吊装不能一次性将各设备吊至相应的设备基础上,因此需要在屋面层二次倒运,所有设备运用吊车通过设备吊装孔到达屋面后,采用人工辅助机械完成二次倒运。
1)首先需要用枕木及其他垫木等材料铺设成与设备基础等高的运输平台;
2)运输平台铺好后,需在平台枕木垂直方向并排铺设四条20#槽钢做运输轨道,轨道搭接口需错开;
3)设备吊上运输轨道后,由人工在设备与轨道之间摆上相应的滚杠用撬棍撬动,人工实时掌握设备移动方向将各设备运至对应的设备基础上;
4)各设备运至对应的基础上后方可取出滚杠,采用千斤顶精确定位安装。
8、所需运输机具材料
序号 机具名称 规格型号 单位 数量 备注
1 汽车式吊车 500T 台 1
2 汽车式吊车 30T 台 1
3 柴油式叉车 2T 台 1
4 手摇式叉车 2T 台 1
5 倒链 5T 台 2 长10m
6 千斤顶 2T 台 4
7 枕木 3m 根 20
8 20#槽钢 4m 根 12
9 滚杠 2m 根 10
10 撬棍 2m 根 6
9、500吨汽车吊车参数表
LTM1500/1-500t全液压汽车吊机主臂额度性能表:
支腿开臂=10×9.6m、旋转角度=3600、标准配重=135t
回转半径(m) 主臂长度(m) 回转半径(m)
16.1 21.3 26.5 31.7 36.9 42.1
33.5 500400 500400 500400 262 33.5
44.5 325262 325262 325261 262259 248239 44.5
56 261231 255226 245216 243214 229208 183168 145 56
78 206186 202182 192173 190170 190170 156145 133123 116107 78
910 170155 162145 156141 153138 153138 134124 114106 10094 910
1214 128107 119100 11799 11497 11497 10793 9280 8373 1214
1618 8271 8271 8371 7165 6355 1618
2022 56 6153 6254 5853 49.545 2022
2426 47 47.542.5 4640.5 40.536.5 2426
2830 37.532.5 3632 33.531 2830
3234 28.325.3 28.526.6 3234
36 24.2 36
六、成品保护措施
1、空调机组开箱检查时,清点配件,并收集字材料库房。
2、运输过程中严禁私自拆除外包装箱,若外包装箱过大,洞口不能通过必须拆箱时,必须和业主方、供货单位协商,拆箱后保护塑料套不许拆下,且必须用钢丝绳捆扎作保护处理,以免损伤设备表面。
3、设备运输到位后,必须设专人看管或封闭设备机房。开箱运输的设备到位后若当时不具备安装条件,必须再把包装箱暂时恢复,恢复时业主方与供货单位、监理人员必须在场。
4、设备运输开箱后的散装配件由材料员统一收集管理,并登记数量,设备配件单独设库房。
七、安全、消防措施
在所有的运输吊装过程要有统一指挥,统一号令,严禁出现擅自运输吊装现象。
1、自制小车焊接牢固,车面平整。并要检查小车运行是否平稳,在运输设备前必须空车沿运输线路通行一次,以检查小车是否平稳,转弯灵活。
2、吊装前应检查吊钩、链条、轮轴、链盘如有锈蚀、裂纹、损伤、传动部分不灵活,严禁使用。
3、使用叉车、吊车运输设备要轻叉、轻吊,以免损伤设备。
4、龙门架焊接要牢固。不允许有夹渣、气孔现象。立柱与地面支撑槽钢要垂直,不得倾斜。龙门架使用前应试吊。吊装过程中若发现有倾斜或歪拧现象,应立即停止吊装,检查原因并修复后经起重工检查合格方可使用。悬吊倒链的钢丝绳不能直接与槽钢接触,钢丝绳与槽钢间垫方木。
5、倒链使用前必须进行检查。使用时,倒松链条挂好起吊构件,慢慢拉动牵引链条,待起重链条受力后,再检查齿轮啮合,以及自锁装置的工作状态,确认无误后方可进行作业。
6、使用滚杠、撬棍运输时,必须清理好道路,旁边需有看护人配合。
7、设备由吊装口进入时,吊装口下严禁站人。设备运输吊装时必须有统一的指挥员。参施人员必须听从指挥,统一行动,严禁擅自采取任何措施,以免造成人员伤亡及设备损坏事故的发生。
8、所使用吊车必须是经过安全部门检查合格的车辆。
9、当按需要长度切断钢丝绳前,应在切口两侧1.5倍钢丝绳直径处用细铁丝捆牢。用錾子剁切位置不应前后变化,操作者应戴上护目镜,以便避免钢丝碎屑蹦起损伤眼。
工作中若发现钢丝绳股缝间有大量的油挤出,这是钢丝绳破断的前兆,应立即停吊查明原因,更换钢丝绳。
工作中的钢丝绳,不得与其他物体相摩擦,特别是带棱角的金属物体;着地的钢丝绳应用垫板或滚轮托起。
使用钢丝绳卡子固定时,应尽量采用骑马式卡子,且不得以大卡子夹细绳;且螺栓一定要拧紧,应将钢丝绳压扁1/3的直径为宜。
采用绳卡固结钢丝绳时,绳卡数量不得少于3个,绳卡间距不小于钢丝绳直径的6倍,绳头距最后下一个绳卡的长度不小于 140mm,并采用细钢丝捆扎,绳卡滑鞍放在丝绳工作时受力的一侧,U型螺栓扣在钢丝绳的尾端,不得正反交错设置绳卡。且应在最后一个卡子后面再安一个卡子,并将绳头放出一个安全弯,若使用中安全弯被拉直,应立即采取措施处理。
10、所有参施人员配备足够的劳动保护用品,并正确使用。吊装口下严禁站人,吊装过程中严禁出现摘掉安全帽向上张望的现象,以免上一层物体坠落伤人。
11、吊车吊臂下严禁站人。
八、环保与文明施工措施
1、吊运前技术人员对照图纸,核对设备型号、规格,做到运输准确无误。设备不允许有冲击。不允许任何人随同设备升降。
2、运输中,要注意对沿途结构及道路的成品保护,过洞口时要注意保护,不得将设备及结构的门、洞碰损。
3.吊运时若需包装箱,需将拆下的箱板等废物收集、整理,不可随便丢弃。木板堆放要注意防火。