钢结构近年发展迅猛,大有取代砖混结构的势头,其抗震性优,装配化施工,正被越来越多的农村人接受自建,照这样的趋势来看,未来农村自建房,一定会有钢结构的一席之地。
效果图:

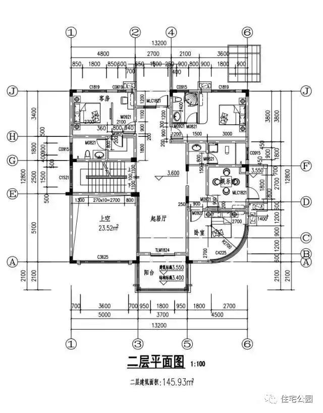
平面布局图:
别墅占地面积为170.38平方米,建筑面积412.72平方米,建筑高度10.65米,首层布局功能用房一应俱全,设有多种空间以满足农村日常生活。

二层与三层同为居住空间,卧室带起居用房的功能设置,让农村生活也尽享舒适感觉。


屋顶平面图:

基础施工:
平整场地土方开挖做井格基础,夯实找平后浇筑10CM素混凝土,待混凝土凝固后,开始支模绑筋做圈梁。


绑扎一层钢筋网格,拐角处预留预埋件。混凝土浇筑完成后的基础如下图所示:

主体结构施工:
钢结构与传统的砖混结构相比,优势很明显, 其塑性变形能力强,具有优良的抗震抗风性能,大大提高了住宅的安全可靠性;同时房屋跨度可达7~15米,保证了空间分割自由。

钢结构底部留有预制孔洞,逐一安装时用来锚固。

吊机吊装梁、柱:



钢结构骨架安装好后,开始进行首层预制保温墙体安装,这种墙体是在工厂流水线生产而成,具有优良的保温防火性,提高了施工快捷性,并优化了居住体验,舒适感更强。


钢结构框架内部一览:


二层结构施工,安装墙体保温预制板。


楼面工程施工,安装楼面压型钢板并绑扎一层钢筋网,接着浇筑楼板混凝土。

三层结构施工,屋面工程施工:


外墙施工,双层挂网抹灰,并对预制墙面板之间的接缝进行加强处理,进一步提高了房屋整体的保温隔音性能。

抹灰后的外墙如下图所示:


门窗框架也已安装到位:

别墅后侧:

管线开槽,细节处理。

外墙及屋顶瓦片安装:
外墙安装保温装饰板,保温装饰一体化施工,提升了房屋的美感,又加强房屋的保温效果;屋顶采用合成树脂瓦,保温隔热,美观大方,绿色环保。


据房主介绍,这栋房屋的造价为1500每平米,含外墙和断桥铝门窗,共花61万自建而成,美观又大气,这个价钱在河北算是很中规中矩了,不知道在其它地区,要多少钱才能盖起来?

微信公众号:住宅公园,450套别墅图纸,户型私人定制!