作为船舶的动力源,液化天然气(LNG)燃料罐及其系统十分重要。
LNG燃料系统主要由LNG燃料罐(舱)(下简称LNG燃料罐)、加注补给管路、供气管路、惰化管路、安全/监测仪表等组成。
加注补给管路用于LNG燃料罐的LNG补给,供气管路是将LNG燃料罐内的LNG经过加热气化、调压后给船舶发动机/发电机、燃气锅炉等燃气用户供应燃料。

最常见的双层真空绝热式LNG燃料罐外形

LNG燃料罐及管路流程示意
近十几年,中国船级社(CCS)产品审图中心已审查过百余个LNG燃料罐的图纸/文件,燃料罐容积从3立方米到1750立方米不等,包括双层真空绝热罐、单层罐和可移动式罐柜(集装箱式)等结构型式,配套的船型有散货船、集装箱运输船、拖轮等船舶。
下面就让我们对LNG燃料罐及其系统这一“绿色动力包”一探究竟吧。
今天先给大家介绍LNG燃料罐及其附属结构、罐体材料。

LNG燃料罐及其附属结构


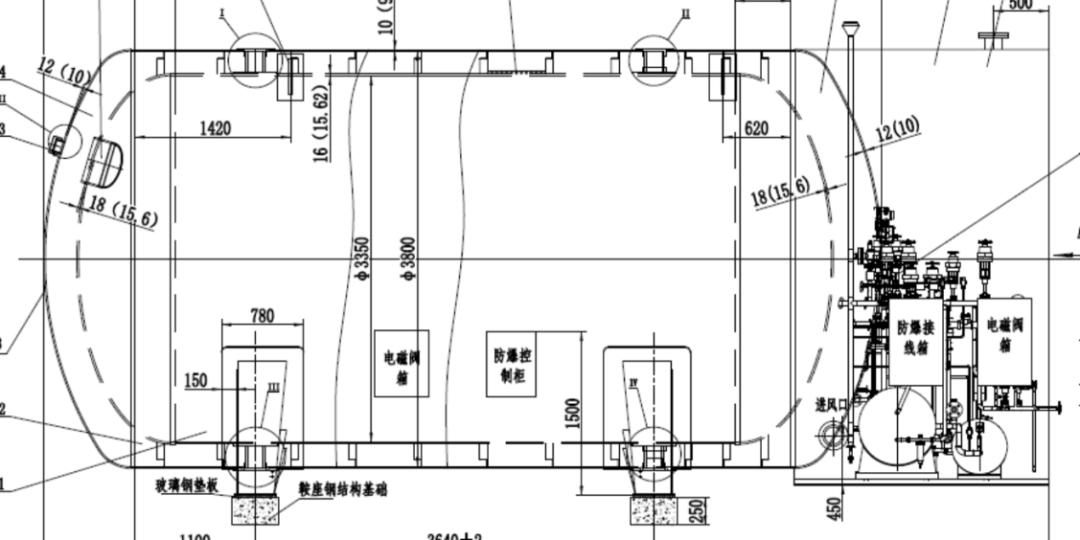
⑴ 小型LNG燃料罐(容积500立方米以下),罐体采用双层真空绝热结构,双层罐内的、外壳体之间以环氧树脂棒等绝热性能好的非金属材料进行支撑,双层壳体之间的夹层内抽真空或高真空(真空度可达0.05帕以下)并设置绝热性能好的非金属材料,这种绝热结构能够极好地减少外部热量的输入,使得燃料罐内的LNG能够在长时间内保持温度、压力的相对稳定。燃料罐底部以鞍式支座与船体相连。

双层真空绝热罐结构简图



⑵ 大型LNG燃料罐,不适合采用相对成本高、制造难度大的双层真空绝热罐方案,而采用单层金属罐及外设保温层结构,罐体底部以环氧树脂和层压木组合方式对罐体予以支撑,上部以止浮装置对其进行固定。

单层LNG罐结构简图



⑶ 薄膜型燃料舱:该型技术主要为法国GTT公司专利所有,包括NO.96系列和MARK Ⅲ系列等。LNG运输船的LNG舱大多采用薄膜型舱设计,其优点是舱容利用率高。随着大型燃料舱需求的增加,近年来薄膜型燃料舱也开始得到应用,例如江南造船(集团)有限责任公司配套的15000TEU集装箱船、沪东中华造船(集团)有限公司配套的23000TEU集装箱船的LNG燃料舱等,都是采用的薄膜型舱。

薄膜型舱内部



⑷ LNG燃料罐,均设有压力、温度、液位等监测措施,确保LNG的相关参数得以被持续监测。



⑸ 燃料罐接头处所(简称“冷箱”):燃料舱的加注管路、供气管路等上配有很多阀门、仪表等,这些部件的泄漏将会导致可燃的天然气气体,有引发爆炸的风险,也会因低温的LNG会对碳钢材料的船体结构导致“冷脆”的破坏。所以将LNG管路、仪表、阀件等“集中”到相对封闭的“冷箱”内,以负压通风方式避免天然气可燃气体的聚集并承接泄漏的LNG,同时在冷箱内设置火灾报警、可燃气体探测、泄漏报警等监测措施,有效防止低温、爆炸的风险。



⑹ 空气闸:当燃料罐设在甲板之下时,需要设置空气闸,空气闸是一个将非危险区域与危险区域之间隔开的“屏障”空间,危险区域是指具有爆炸性气体的区域,空气闸内的正压通风、可燃气体探测、自闭门、门槛高度要求等的设置,将有效地防止气体危险区域内的可燃气体流向非危险区域,保证空气闸之外区域的防爆安全。


罐体材料


⑴ 奥氏体不锈钢:双层容器真空绝热型结构的小型LNG燃料罐,材料均采用奥氏体不锈钢。
⑵ 镍钢:单层罐结构的大型LNG燃料罐,材料大多采用铁素体9Ni钢等,9Ni钢在超低温下有着很好的低温韧性,强度比奥氏体不锈钢高,燃料罐外喷涂聚氨酯保温层对燃料罐进行绝热。
⑶ Ni36殷瓦钢:储存低压力LNG的薄膜型燃料舱大多采用殷瓦钢,殷瓦钢是一种铁基高镍合金,含镍量达36%,有良好的耐低温性能和极低的膨胀率。
⑷ Al-Mg系合金:退火铝合金5083-O等,铝材的低温力学性能和耐腐蚀性能优良但许用应力较低,在船用燃料罐的实际应用尚不广泛。
⑸ 高锰钢:近几年业界开发出高锰奥氏体低温钢,含 锰量在22%~25%之间,其强度较上述主体材料都要高,成本具有明显优势,与9Ni钢相比较,经济性大致高出4倍之多。

下一期为大家继续介绍LNG燃料罐强度、LNG燃料动力船的燃料补给、LNG供气系统等知识,敬请期待吧!
供稿人:江苏分社赵伟