最近天气突然入夏,让很多人突然意识到2023年已经到了5月中旬 ,后疫情时代,一切都在恢复常态,今年一季度,中国国内生产总值(GDP)按不变价格计算同比增长4.5%,特别是刚刚过去的五一长假,所有人都见识到了经济复苏和国人惊人的购买力。文化和旅游部5月3日公布2023年“五一”假期文化和旅游市场情况,全国国内旅游出游合计2.74亿人次,同比增长70.83%。

普通人如何拥有千万资产?
北京城区如何掘金
经济全面复苏带来的这种乐观情绪也反应到了微博话题,过去几年微博的热搜话题基本都是和口罩有关,而2023年特别是最近很多都是关于如何赚钱。

普通人怎么拥有一千万资产?这几天这个话题上了微博热搜第一。

其实这个回答比较靠谱,过去20多年,除了家庭积蓄外,买对一次房能实现资产升值的可能性非常大。以北京为例:

现在市场上动辄上千万的城区二手房,在2000年的时候基本只要几十万。过去几十年开发商只要拿到地就肯定能卖出去,购房者只要买房肯定能赚钱,所有人都能买对房,但这种好日子已经不再有了,当下房地产已经进入新常态。
过去几年我们看到了太多的拿错地暴雷的房企和项目,普通人买错房,也成了一件非常普遍的事。特别是,在北京这样的特大城市买错房的代价是很昂贵的。

市场在越来越内卷,从开发商拿地就可以看出分化——前几天北京2宗热门的城区及好位置地块抢夺激烈,而其他郊区县土地基本底价。 那么对于普通人来说,在北京城区买房还有好机会吗?门槛需要多少?

伟哥简单的算了算,北京城区2023年来城区商品房的均价在9万+,平均单套房的门槛在1250万左右。
那么北京城区还有低门槛+高品质的新盘供应吗?
前几天在5月假期,一个网红盘售楼处开放成为了市场的绝对焦点,这就是石景山苹果园主城区板块的越秀·天玥,营销中心&封面美学样板间开放,

现场实拍图
在小长假里大部分人都选择旅游的时候开放还做到了人流如潮,充分体现了这个项目的吸引力!

效果图
那么为什么这么多聪明的购房者在假期会去售楼处?越秀·天玥的价值在什么地方?

600万低门槛
掘金主城区高性价比“豪华级”产品!
虽然说市场小阳春,但入市的项目并不少,开发商越来越内卷,城区优质地块扎堆抢,打造产品也越来越用心,市场上只有符合购房者既要、又要、还要的高品质项目才能吸引市场的绝大部分关注!
越秀·天玥能成为市场关注的焦点,从土地出让就可以看到,这个项目在土拍时竞争激烈,越秀、建发、国贸、招商、首开、中海共6家参与现场竞价,19轮迅速触及价格上限,在竞现房销售环节中,越秀同样出手迅速毫无迟疑,最终以25.99亿元+1.5万㎡现房销售面积竞得该宗地,楼面价4.86万元/㎡。
北京一共6个主城区,东、西、朝、海四区价格的门槛基本都在10万+,即便是南部的丰台区,现在入市的楼盘价格也大部分都达到了8万+,甚至10万的价格水平,而 同样作为主城区的石景山区政府销售指导价仅7.48万/㎡,越秀·天玥可以说是主城区置业的价值高地+价格洼地。
对于当下市场上的主流购房家庭来说,都想买一套好房子,好房子应该是“纯粹”无短板的好,好地段+好户型+好邻居。可以让子女轻松找到优质教育,让太太可以在家门口有好的商业逛,让自己可以有个可接受的上班交通时间。让父母在家门口就可以逛公园, 越秀·天玥就符合这个苛刻的标准!
01
真正“价值”的主城区地段,让置业未来有升值
石景山城市资源的飞速落位,是都市菁英人群购房置业的梦想之地。 从楼市成交数据可以看到,石景山作为北京房地产市场的最热区域,最近几年持续升温。量价上行是一直的趋势!
越秀天玥位于石景山苹果园主城区板块,项目距离地铁1号线、6号线及S1号线的换乘站苹果园站直线距离约900米,与地铁6号线杨庄站直线距离约780米。1、6号线*轨双**并行,贯穿东西。

商业配套上,3公里范围内有京西大悦城(北京第三座大悦城,预计今年五月开业)、沃尔玛山姆会员店、喜隆多等商业体,开车10分钟即可达到,距离石景山万达也不远,开车20分钟即达,附近商圈基本可满足日常生活需求。

此外,周边的教育和医疗资源也十分丰富,项目周边配备了幼儿园、小学、中学等全龄段教育资源,北大附、十一学校、北京九中等优质学校资源,未来入住重大利好!同时,区域内有北京大学首钢医院,空军总医院、朝阳医院京西分院、石景山医院等多家三甲医院。

除了生活配套完善,项目还坐享首钢遗址公园、八大处、模式口大街等丰盛的生态人文景观,出则繁华,入则宁静,这样的地段价值决定了这个项目肯定是红盘!
02
真正“不将就”的生活品质
好不容易拿到的优质地块,越秀打造更是毫不将就!
40年来越秀地产从广州迈向全国,深耕30余城,开发200多个高品质住宅项目。作为越秀地产首进主城区石景山的诚意之作,越秀·天玥承「天」系高端基因,以苛刻精工豪宅标准,匠心打造奢居产品,迭新石景山高端品质住宅,打造城市典藏级封面作品。

越秀·天玥共规划有三栋15-18层高层及三栋7-11层洋房产品,包括有建面80㎡舒适两居,96-115㎡品质三居,132/134㎡奢阔四居,整体75%-80%超高得房率,并匹配高标精装,及超配主题园林。
对于当下购房者非常关注的外立面,越秀·天玥采用简洁明快的风格,以流线型铝板搭配大面积的玻璃幕墙,形成宛如“天空之境”的光幕艺术立面,为极具文化底蕴的京西带来全新的美学风貌。非常符合当下市场主流购房者的审美。
在户型设计上更可以看出南派开发商的功底!哪怕最小的户型,也给业主以舒适感,建面最小的80㎡两居,越秀·天玥也做到了双卧朝南,独立入户玄关及家政间,格局方正舒适。

建面98㎡的舒适三居是越秀·天玥的主力产品,南北通透,入户玄关、厨房、餐厅、客厅动线流畅,U型厨房使用舒适,同时边户明卫,南向的客厅主卧均附带飘窗,采光通风非常实用。主卧套房设计生活动线合理,北向双卧室可根据家庭成员结构用作儿童房、书房、老人房等,非常实用,独立家政间的设计符合改善家庭需求。

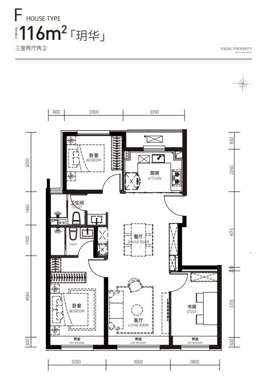
约116㎡ 三室两厅两卫,做到了南向三面宽,赠送3个大飘窗,LDK一体化设计生活动线合理,客厅空间宽绰。主卧套房设计,尺度感可以和很多130平米以上户型相比,同样也设计了家政间功能。

约134㎡ 四室两厅两卫经典四叶草格局,保证了大家庭生活之间的私密性,8扇窗户全明通透,南向整体面宽超10米,处处都体现出了尺度感,特别是主卧套间非常舒适,同样也是LDK一体化设计,整体户型没有浪费。
除了户型处处人性化外,配置的标准也非常高,作为北京第一个越秀「天」系高标配置,居室内配备VRV中央空调及PM2.5除霾除菌新风系统,满足后疫情时代,居家生活的健康需求。





越秀·天玥部分户型样板间实景
精妆品质上,承袭越秀天字系产品配置标准,在颜值与品质上更为考究。甄选国际知名品牌厨具、卫浴产品,整体时尚前卫,将生活质感展示得淋漓尽致。同时,兼顾了入户玄关柜体强大的收纳系统、精美“双镜”镜柜、“静音”推拉门等人性化生活考量三玻双中空LOW-E玻璃。独立家政空间,巧妙归置洗衣机及各种洗护用品。通过材质、色彩、尺度和工艺等细节的打磨,充分体现出越秀对当代人居品质生活细节的精细考究。

在北京的主城区,600万起享受高品质一步到位精装修纯商品房住宅,越秀·天玥不论是天字系高品质+还是区域的未来成长性都物超所值,可以说这就是2023年北京聪明人最值得精选的菁英“惊喜盘”!
