在整套方案图纸中
平面图的重要性
相信每位设计师小伙伴都知道
想要做好平面布置图
唯有多练,多看,多思考
才能突破瓶颈
SO
又到了收集平面方案的时刻了~
今天
小编给大家带来一份
《YABU平面布置方案合集-310张》
希望对大家的工作有所帮助!
文末查看如何获取

《YABU平面布置方案合集》
310P丨JPG丨310M丨
素材目录预览


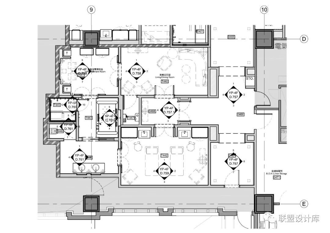
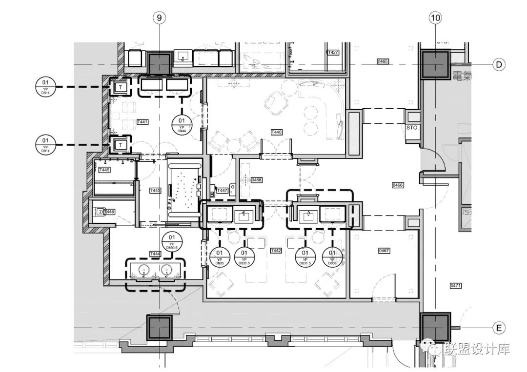
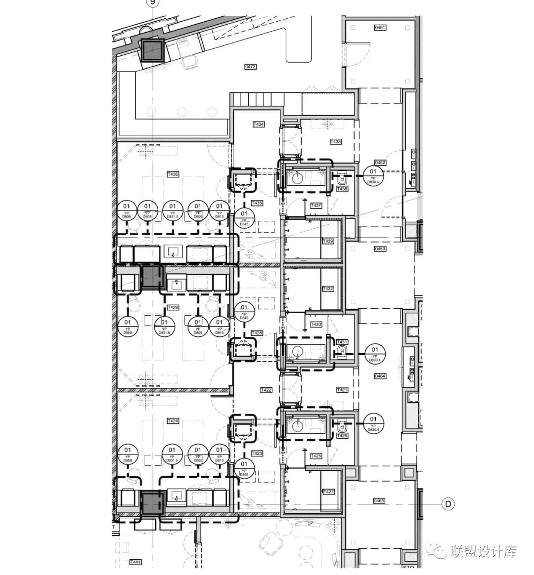
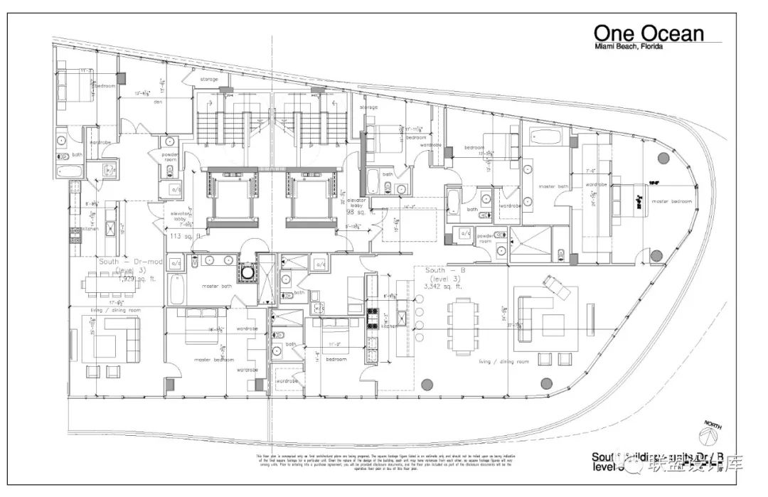
住宅平面方案优化部分预览





















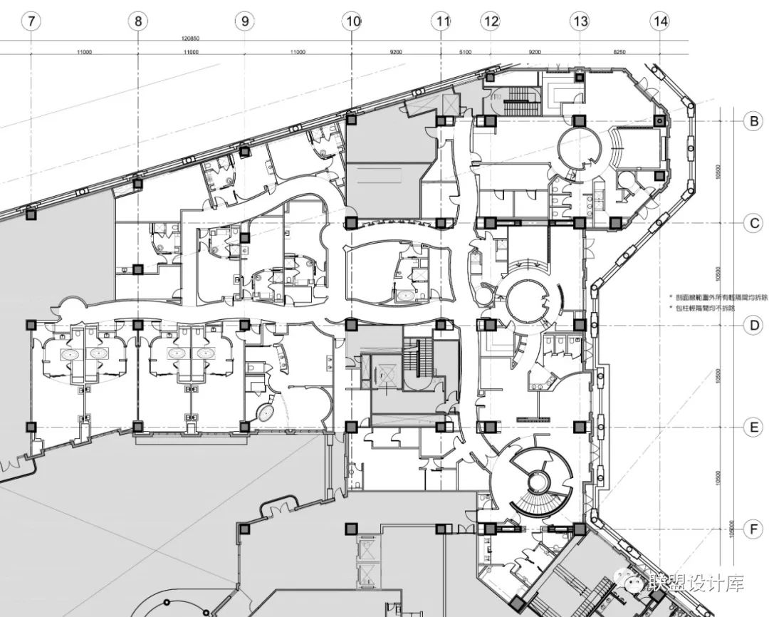
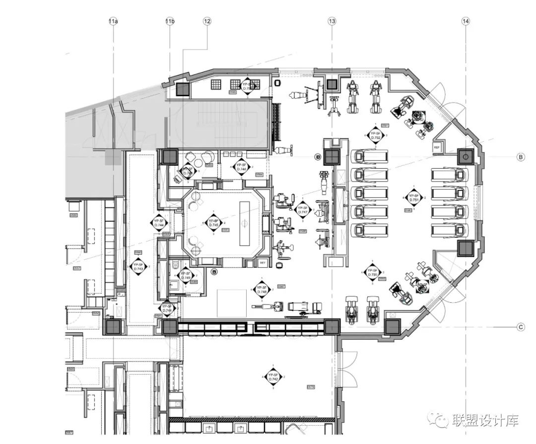
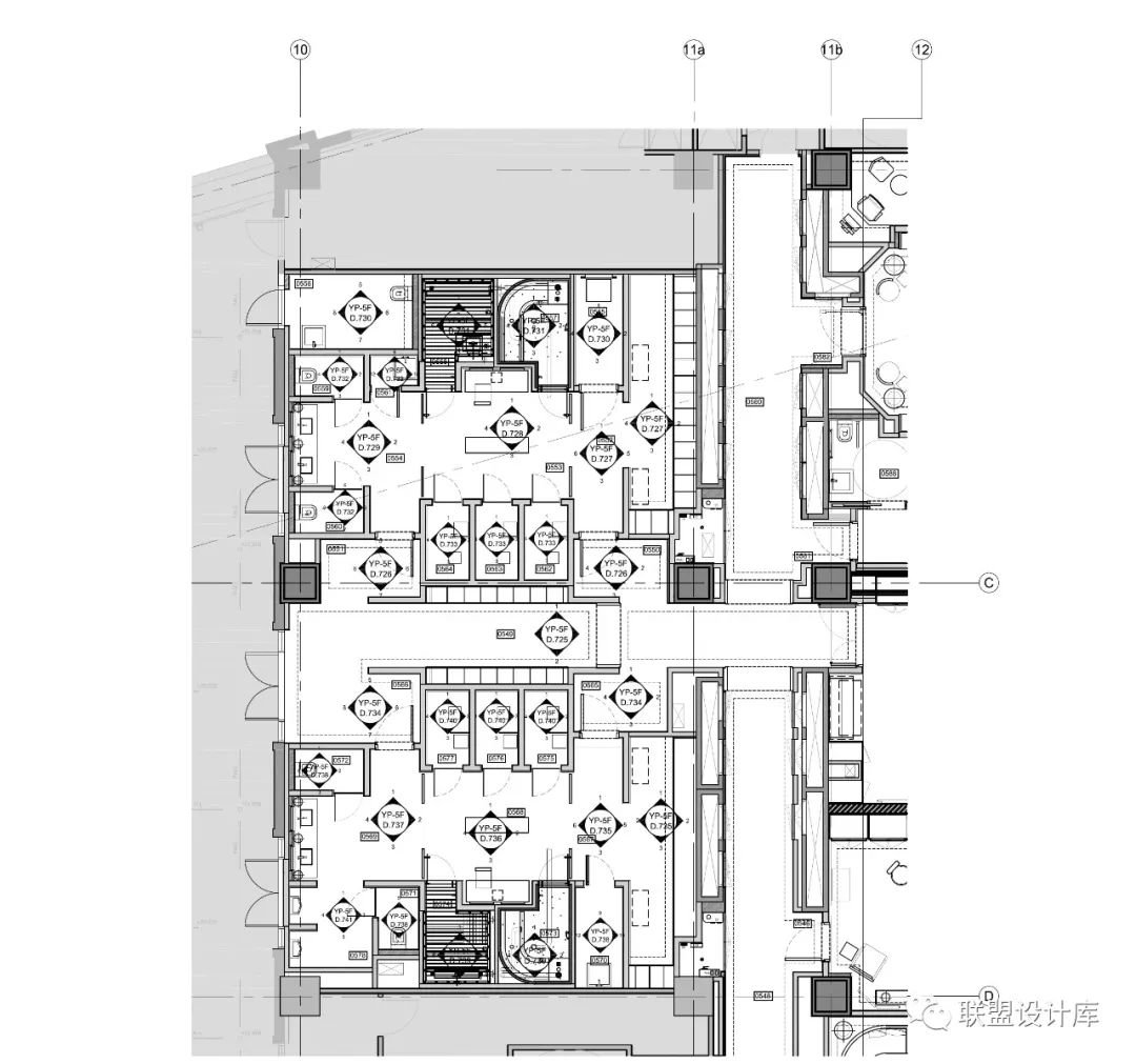
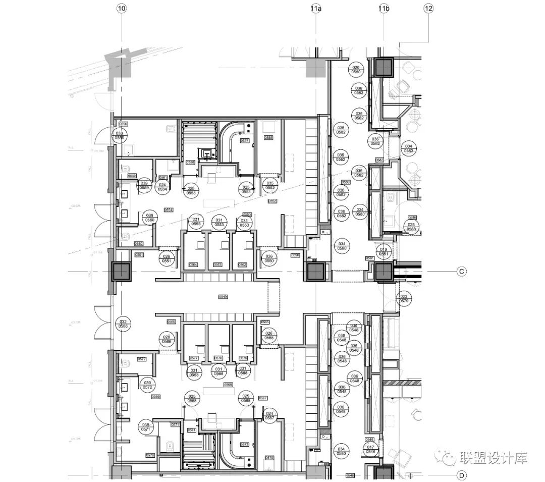
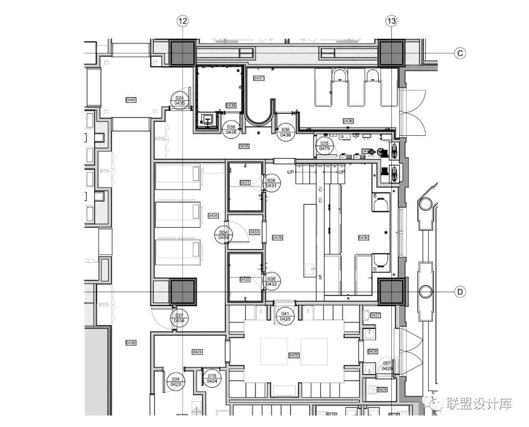
酒店平面方案优化部分预览






























在整套方案图纸中
平面图的重要性
相信每位设计师小伙伴都知道
想要做好平面布置图
唯有多练,多看,多思考
才能突破瓶颈
SO
又到了收集平面方案的时刻了~
今天
小编给大家带来一份
《YABU平面布置方案合集-310张》
希望对大家的工作有所帮助!
文末查看如何获取

《YABU平面布置方案合集》
310P丨JPG丨310M丨
素材目录预览


住宅平面方案优化部分预览





















酒店平面方案优化部分预览





























