本案设计中, 迈高 ▪ 天鉴合 设计师 以轻奢为主调,运用 沉稳的色调, 于细节处提升空间格调, 力求营造出高雅的质感和美学观感,打造充满现代精致的奢享生活。
没有花哨的造型,也没有浓重的色彩,仅以简单而不失质感的空间设计,就给人带来一种宁静高贵的视觉感受。
利落的线条,开阔的空间为整个居家带来极致舒适的感觉,除了满足正常的生活需求外,也 展现 出了对艺术的审美追求。

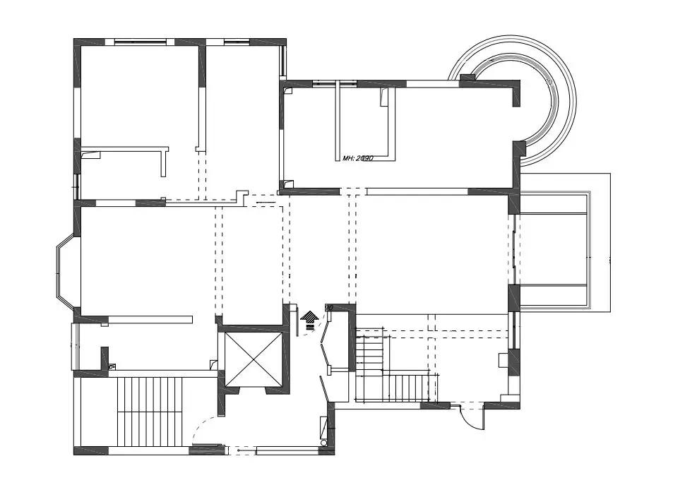
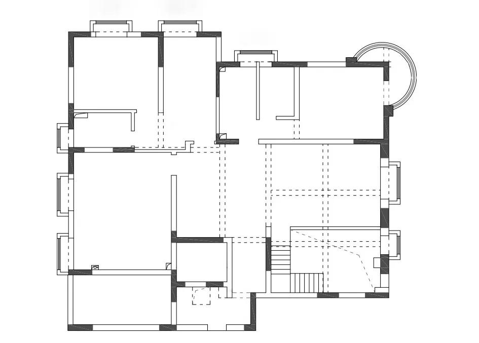
>>>一层结构
原始结构中整体的空间格局是比较合理的,迈高 ▪ 天鉴合设计师根据业主的需求,在原有的格局上进行了一些空间优化。

一层原始户型图

一层平面设计图
客厅
LIVING ROOM
简约内敛的木质肌理,与宁静优雅的灰纹砖地面形成对比,雪花白大理石为客厅电视背景,大片白色垂帘透出自然的光线,格外地典雅大气。
客厅做挑空设计,延伸整体的视觉感,将层次感进一步拉升。
原浇筑混凝土楼梯改为钢结构旋转楼梯,既体现出了柔美轻盈之感,又极大程度上提高了采光、动线的流畅。

柔软舒适的灰色组合沙发,搭配橘色皮质单人椅,简洁又大方。
墙面的装饰品, 丰富了空间的层次,有着极美的纹理与光感 ,在光的照射下,呈现出犹如“水光潋滟晴方好,山色空蒙雨亦奇”的诗意景象,别有一种奇特的美。


公共区域开放式动线,使得一层的空间布局得到释放,利用平稳格局、大面积落地窗和通透的走廊,打造简洁有序的平面逻辑,也因此拥有舒适的通风和采光。
厨餐厅
RESTAURANT
原始厨房的空间较狭长,迈高 ▪ 天鉴合的设计师将厨房与餐厅打通,融为一体,在中间增加了一个岛台。
岛台和橱柜采用黑色哑光材质,白色的餐桌椅线条简单,深浅色调的配色,显示出一种毫不拖泥带水的干练。
明亮的自然光,再辅以简练的线条和简洁的陈设,表达出极简而不失格调的生活态度。


>>>二层结构
二楼空间根据业主的需求,将三房改为两个大套房。

二层原始户型图

二层平面设计图
主卧
MASTER BEDROOM
整个主卧空间将休憩区、工作区、衣帽收纳、干湿卫浴结合,让生活动线更简单合理。
主卧室以木饰面为主,静谧有序,呈现出精致简洁的美学气质。
配以舒适温柔的床品,艺术品的穿插、融合打破了空间的平淡乏味,每一处都彰显着居住者优雅的生活状态与情调。


飘窗处利用钛黑不锈钢窗套与黑白根岩板作落地窗台,尽显低调奢华之感。
书房与主卧室之间设有隐形推拉门,在业主阅读或者是办公时,既可以是独立空间,又可兼顾全室。必要时可做到工作、休息互不影响。

一体式的豪华衣帽间还包含了梳妆台。衣柜采用无拉手设计,深色柜体,白色柜门,简洁大气。
内部配置大量的柜台灯带,告别空间上的视觉死角。

主卫空间采用非常硬朗的黑与白岩板搭配,在灯光的衬托下,豪华大气又低调。长虹玻璃作为隔断将卫生间分离为三个区域。
线条简单的洗手台精致时尚,让整个空间更有艺术感。浴缸正上方吊顶处利用屋顶开了一扇天窗直射主卫,暖黄色的灯光又增添了浪漫美感。
整体空间简洁的直线造型设计营造出带有清爽感的氛围。


次卧
SECOND BEDROOM
次卧没有做过多的装饰,整洁的空间强调舒适的睡眠功能。
以沉稳的灰色作为底色,并运用一些木质感增加房间的舒适度。
褪去浮华,余下便是过尽千帆后的释然与从容。

摒弃掉空间的多余元素,所有的色调和色彩搭配都达到一种很和谐的舒适得体。
将设计的本意回归居住者本身,用理性缔造空间,用感性柔化边界。
本案设计师

王立杉
迈高设计·天鉴合软装 设计师
Honor/行业资质
国家注册高级室内建筑师
国家注册高级室内设计师
Works/代表作品
虹桥中原、高尚领域、上海滩花园、怡景华庭、
康桥半岛别墅、旭辉依云湾、绿地诺丁山、招商雍华府、
一品漫城、佘山别墅、万科蓝山、南郊别墅
Concept/设计理念
体现空间的实用性,彰显业主的个性,沟通是最好的桥梁。

更多有关上海别墅、精装房项目设计方案及设计服务需求,请致电 400-611-8872
别墅方案: 融创领馆壹号院、上海桃花源、金臣颐墅、世纪珑墅、宝华源墅、圣堡别墅、中建大公馆、尚海郦景、静安府东区、旭辉江湾墅、长泰西郊、中海御景熙岸、中建大公馆、金地水悦堂、长泰东郊、长泰西郊等。
精装方案: 绿城黄浦湾、融创滨江壹号院、绿地海珀外滩、绿地海珀黄埔、中海建国里、中海汇德里、中粮海景壹号、中企滨江悦、云锦东方、万科翡翠雅宾利、万科翡翠滨江、复兴珑御、嘉御庭、九庐、静安慕舍、宝华城市之星、大宁金茂府、大华诺斐墅等。
大宅 | 别墅 | 商业空间 | 软装 | 园林景观