记得十多年前的农村,家里有能力盖新房的都是盖平顶房,平顶可以晒谷子、晒农作物,更多的是考虑到实用性,那时候的平顶房也是一种生活美好的象征。而如今,纵观农村自建房设计,大部分是斜顶设计,但其实在农村,平顶设计还是很实用的。
今天分享的这10款平顶别墅,美观又实用,颠覆你对以往平顶房的认知,绝对惊艳你!
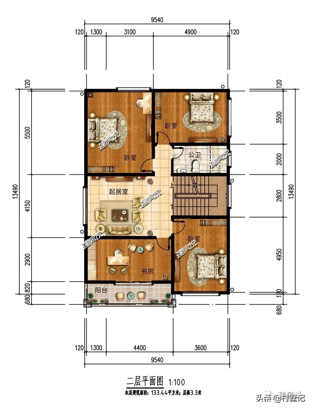
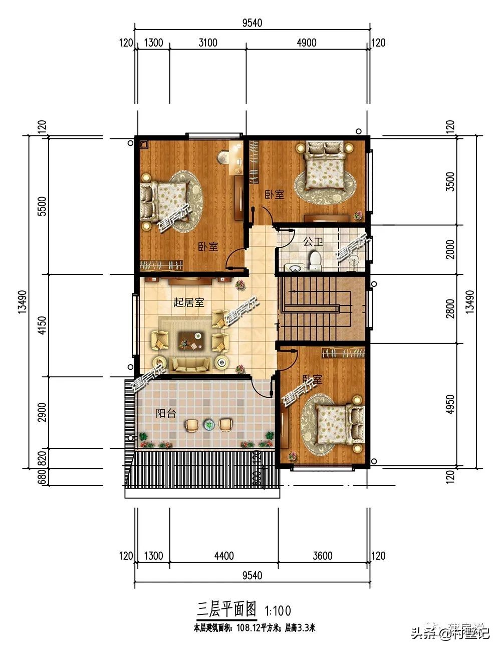
平顶别墅图纸1

品牌:建房说
1、别墅图纸编号:JF21011
2、主体毛坯参考造价:36-46万
3、占地面积:114.22平方米
4、建筑面积:355.87平方米
5、开间8.24米,进深13.49米
6、异形柱框架结构,建筑高11.1米



平顶别墅图纸2

品牌:建房说
1、别墅图纸编号:JF20478
2、主体毛坯参考造价:58 -68万
3、占地面积:139.58平方米
4、建筑面积:525.7 平方米
5、开间14.74米,进深11.3米
6、框架结构,建筑高12.6米





平顶别墅图纸3

品牌:建房说
1、别墅图纸编号:JF9535
2、主体毛坯参考造价:30-36万
3、占地面积:154.69平方米
4、建筑面积:309.38平方米
5、 开间13.64米,进深12.64米
6、砖混结构,建筑高7.5米


平顶别墅图纸4

品牌:建房说
1、别墅图纸编号:JF21086
2、主体毛坯参考造价:24-34万
3、占地面积:110.88平方米
4、建筑面积:238.62平方米
5、开间11米,进深10.9米
6、框架结构,建筑高10.2米



平顶别墅图纸5

品牌:建房说
1、别墅图纸编号:JF9528
2、主体毛坯参考造价:29-34万
3、占地面积:98平方米
4、建筑面积:280平方米
5、 开间9.24米,进深11.34米
6、异形柱框架结构,建筑高11.75米



平顶别墅图纸6

品牌:建房说
1、别墅图纸编号:JF201250
2、主体毛坯参考造价:34-44 万
3、占地面积:136平方米
4、建筑面积:338 平方米
5、开间13.5米,进深9.5米
6、异形柱框架结构;建筑高10.7米



平顶别墅图纸7

品牌:建房说
1、别墅图纸编号:JF201236
2、主体毛坯参考造价:39-49 万
3、占地面积:161平方米
4、建筑面积:390 平方米
5、开间14.75米,进深12.1米
6、砖混结构,建筑高10.6米



平顶别墅图纸8

品牌:建房说
1、别墅图纸编号:JF21078
2、主体毛坯参考造价:44-54 万
3、占地面积:178.9平方米
4、建筑面积:436.67 平方米
5、开间18.14米,进深10.94米
6、异形柱框架结构,建筑高14.1米




平顶别墅图纸9

品牌:建房说
1、别墅图纸编号:JF20422
2、主体毛坯参考造价:40-50 万
3、占地面积:132.2平方米
4、建筑面积:367.5 平方米
5、开间10.6米,进深13.68米
6、框架结构,建筑高10.9米



平顶别墅图纸10

品牌:建房说
1、别墅图纸编号:JF20812
2、主体毛坯参考造价: 38-46万
3、占地面积:122.48平方米
4、建筑面积: 335.32平方米
5、开间12米,进深11米
6、框架结构,建筑高11.4米


