玄关的作用,不用说想必大家也都知道,不仅是家里的“门脸”担当,还起到了空间过渡、储物收纳、动线指引的作用。此外,玄关区的设计,也一定程度上体现了居住者对生活的态度以及品位。
像本期分享的这套案例,就仅凭一个玄关的设计,受到了大量网友的喜爱。同时,巧妙地空间布局,也充分照顾到了每个家庭成员的需求,真的很棒。
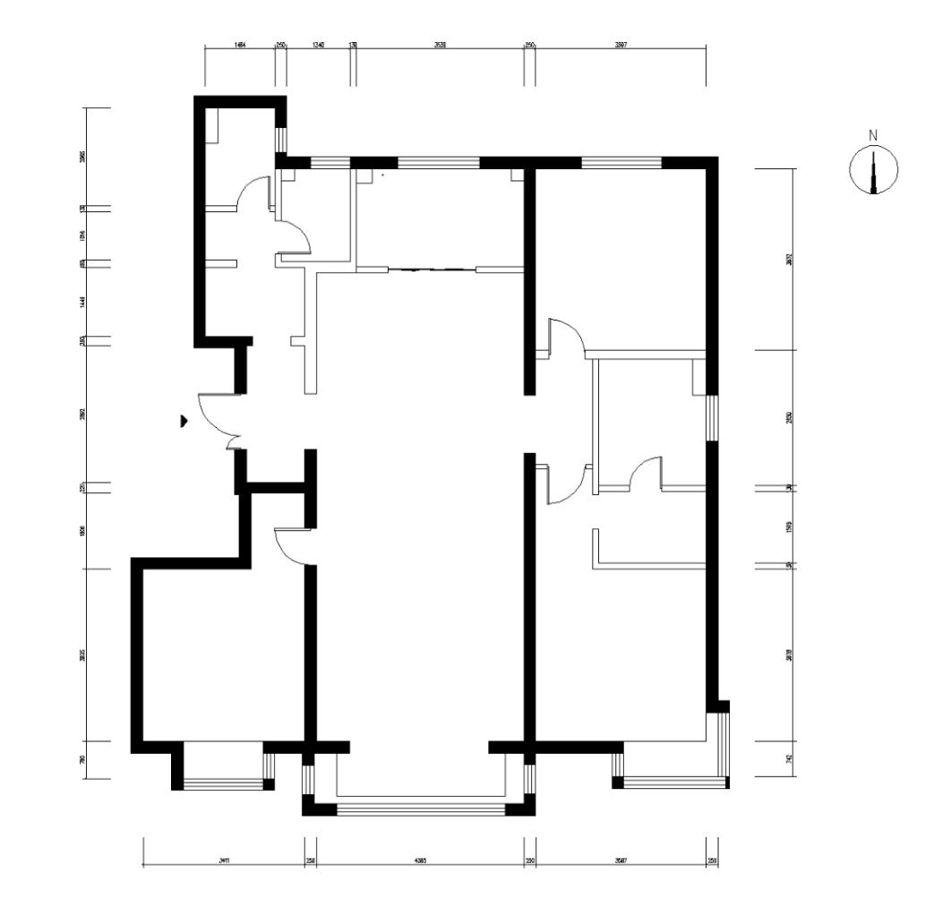
平面结构图

本案来自北京,面积168㎡,三代同堂的成员结构。对于空间,屋主十分重视生活的品质和细节,并希望能照顾到每个家庭成员的需求,让生活更加舒适。
原户型为三居室格局,空间面积很大,结构比较方正。不过部分空间也比较琐碎,导致空间利用率和舒适性受到了影响。
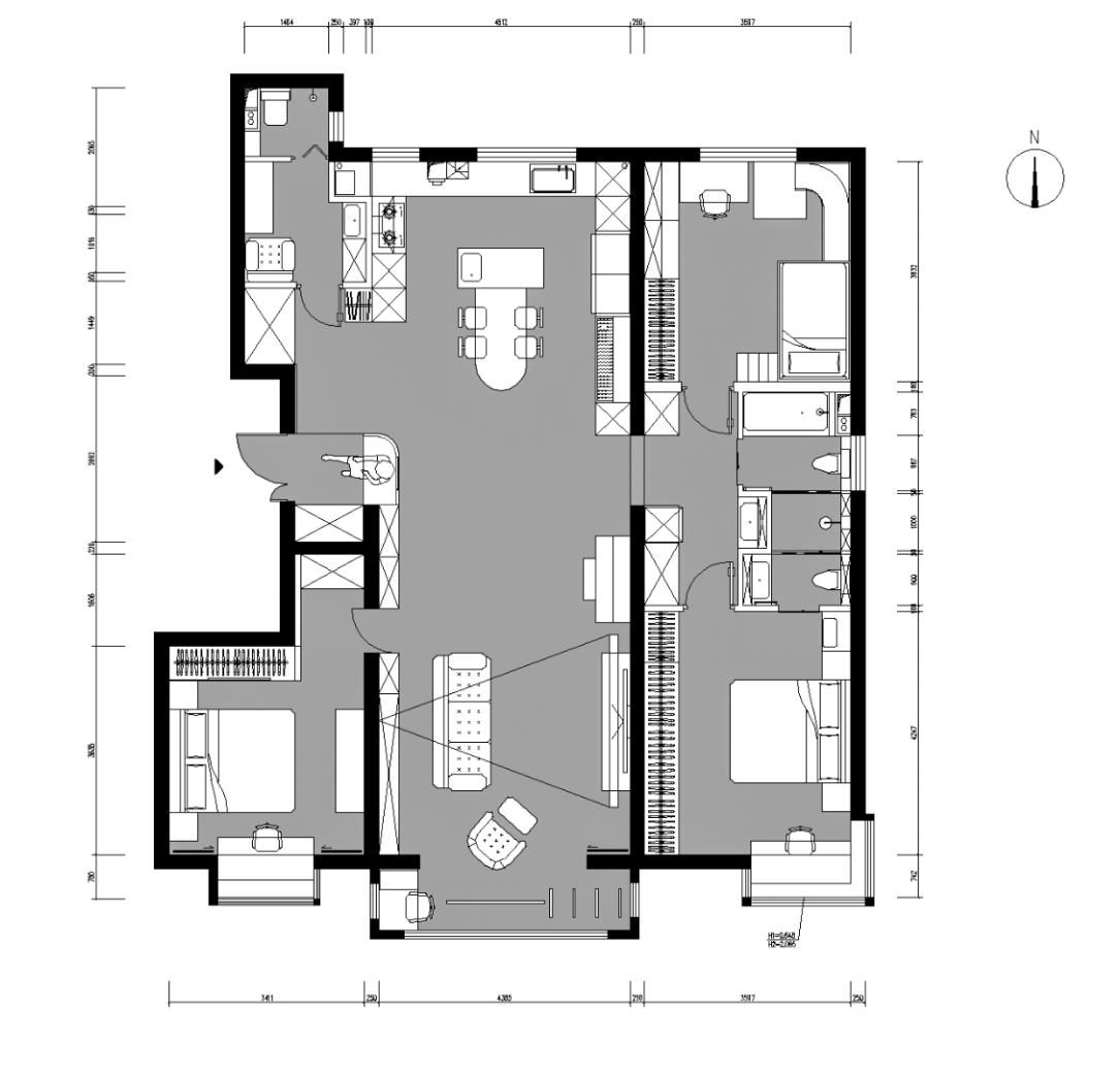
平面方案图

改造亮点:
1、拆掉玄关旁边杂物间的墙体,并在进门对面增加玄关隔断。
2、扩大厨房面积,并做开放式设计,与客餐厅互通。
3、儿童房向卫生间扩大,提升内部空间舒适性。
4、主卫生间做四分离设计,延伸出两个马桶间和一个淋浴、浴缸区。
玄关

玄关区设计十分惊艳,进门对面以内退的方式,增加一个弧形隔断,并镶嵌上质感细腻的磨砂玻璃,立马就带来了含蓄的美感。尤其是在温柔的奶油色墙漆、清新的绿植、以及时尚的小吊灯衬托下,拉满了归家的氛围与意境。

玄关柜放在了进门右手边,柜体做悬空嵌入式设计,在与墙体保持秩序的同时,也方便了拖鞋收纳。当然,隔断处厚实的原木层板,也充当了换鞋凳的功能。

细节:墙体下方做隐形踢脚线设计,简洁又精致。
客厅

客厅布局十分简洁,即便面积很大,依然选择了小体积的家具。一来为孩子留出了宽阔的活动空间,二来满足了沙发离墙摆放,让动线更加自由。
此外,阳台门洞哑口采用弧形设计,也与玄关区的弧形隔断做到了呼应,且进一步提升了空间温柔的气息。

电视墙同样运用到了弧形造型,再搭配上悬浮式电视柜、部分白色格栅、以及高桃的绿植,既在视觉上做到了简洁大方,又为空间带来了一抹精致优雅的美感。


采光最好的阳台,摆放了一张小桌子,以及在顶面安装了攀爬架,供孩子阅读、手工、游戏、健身。

沙发墙设计了一整面通顶的功能柜,并且为了规避视觉上的单调性,还采用了白色+木色搭配,使其看起来更加立体。当然,不同的柜体结构设计,也方便了不同物品的收纳与展示。

依托柜体设计的隐形门,最大化提升了老人房的私密性,且强调了客厅的秩序与工整。
餐厅

客厅看向餐厅视角,当空间完全打开之后,不仅让整个空间做到了南北通透,也加强了生活中的互动与交流,让生活更加和谐。
细节:在客餐厅之间有横梁的情况下,转角处再次运用了弧形元素,让视觉表现更加平滑自然。

餐厅做了当下十分流行的餐桌+岛台布局,一来丰富了空间功能性,二来与厨房之间也起到了功能互补的作用。
右边柜体侧面,做了恰到好处的绘本架设计。这样既弱化了柜体的厚度感,又紧邻儿童房,方便孩子自由开启阅读。

考虑到餐边边与玄关区相对,中间内嵌一个大浴缸,并在底部暗藏灯光,可以无死角提升视觉美感。而左侧两台嵌入式冰箱,也彰显了屋主对高品质生活的追求。
厨房

扩大后的厨房做了U型橱柜布局,并根据“洗、切、炒、放”的动线,对收纳区与家电进行了合理布局,让日常使用更加舒适。

利用原玄关杂物区墙体改造的转角高柜,让所有的小电器都实现了内嵌,简洁又实用。


考虑到直饮水机背面有一个烟道,在做包管处理时,内嵌一个小小的玻璃窄柜,既美观又让面积得到了充分利用。
主卧室

主卧延续了外面的简洁,并通过温暖的灯光,以及低饱和度的色彩,营造出了一个简约温馨的睡眠环境。

在飘窗台不可拆的情况下,上方设计一个可抽拉式的书桌,巧妙利用了面积。

为最大化提升收纳力,衣柜放在了床尾处,并通过金属支架+折叠门板的方式,做到了灵活秩序。

无论是主卧门还是卫生间门,全都做了隐形设计,私密性极强。
儿童房

儿童房参考了“树屋”设计概念,上方为孩子的睡眠区,下方为活动区与收纳区。这样不仅为孩子带来了更多的趣味性,也巧妙利用了层高空间。

令所有孩子都无法抵挡的滑梯设计,后期也可以做拆除处理,以释放出更多的空间。

树屋下方一角,设计了一个整齐的收纳格,方便孩子展示喜欢的车模,且间接性培养孩子从小分类收纳的好习惯。

树屋对面,就是一整面的收纳柜,并以内退的方式,打造出一个阅读小平台。
柜体结构全部按孩子的行为习惯设计,既在生活中做到了人性化,又在视觉上做到了井井有条。

老人房

老人房强调了素雅的气质,使其更加符合老人的审美。而在家具配置这块,考虑到老人习惯了睡旧床,所以也就直接搬了过来。

老人房的飘窗与主卧室一样,都是以加高的方式设计了一个抽屉书桌。

卫生间

将原有的主卫与衣帽间打通,并以四分离的方式,打造出了一个集如厕、淋浴、泡澡、家政、洗漱等多功能区。

双进门的动线规划,无论是从主卧、儿童房,还是从外面,都可以快速进入到卫生间,让生活使用更加方便。

除了主卧马桶间里增加了一个洗手台之外,外面的过道处也增加了嵌入式洗手台,最大化缓解了早起梳洗的拥挤性。


洗漱区的对面就是家政区,除了内嵌的洗衣机和干衣机之外,旁边的柜子里还隐藏了一个壁挂洗衣机。
卫生间二

第二个小卫生间隐藏在玄关旁边的杂物间内,整体用绿色+花砖的方式来搭配,满满的小清新气息。
写在最后:
整个案例看下来,可以说完美诠释了什么叫整洁有序高品质,无论是简洁大方的主卧、趣味十足的儿童房,还是素雅精致的老人房,都兼顾到了每个家庭成员的审美。同时,令人惊艳的玄关隔断设计,也真的是美到了骨子里。
图源:茗家设计