

岁月不居
春秋代序
设计
于纷扰中寻求自然本真
在繁简中探索人文艺术
烟火人间里
斑斓山海间
打破空间沉寂
停驻时光曼妙
塑造生活浪漫

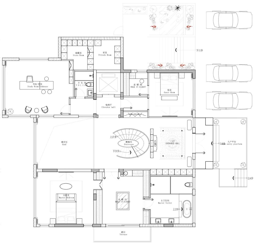
(一层平面图)

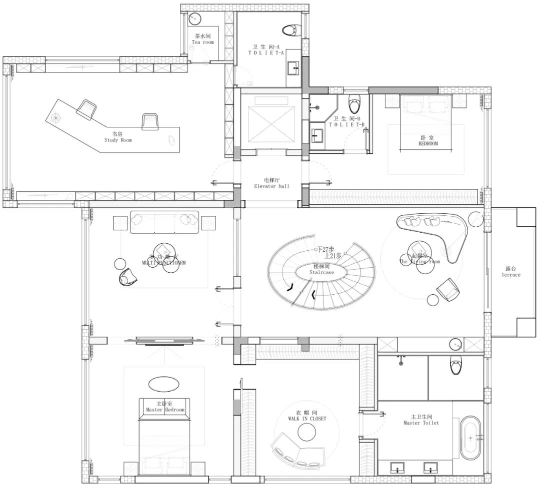
(二层平面图)

(三层平面图)

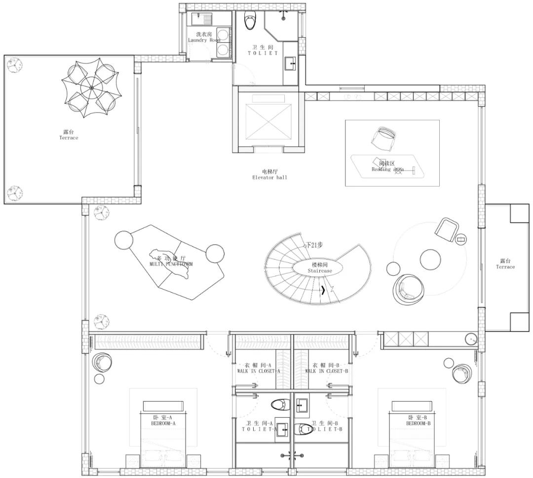
(花园层平面图)
▔
设计中以现代法式的时尚浪漫为主
打破刻板的空间分区
用心
塑造一个开放、通透、流通的多功能艺术人居
Modern French fashion and romance are used in the design
Break the stereotyped space division
Create an open
transparent and circulating multi-functional art dwelling with heart
01 挑 空 区


纯白的空间中,优雅灵动的吊灯在光的作用下波光粼粼,仿若星空闪耀,梦幻浪漫,又似银缎飘舞,蜿蜒柔美。高级灰与浅棕色的沙发,以半合围方式置入室内,为业主带来一处充满温馨感的交流之处。 设计师以独特的手法在现实与虚幻间升华与塑造着惬意舒适的空间精神场域,打造一处舒适感和体验感兼具的艺术人居。
02 餐 厅


四季相伴,人间烟火,共享生活的温馨。 餐厅简约的布局尽显当代时尚,加入局部的几何元素及雕花吊顶设计,不仅将法式的情怀淋漓展现,而且提升了空间的层次感,让整个空间更富有情调及舒适度。一面大大的落地窗连接室外自由,构筑出一方兼具自然诗意与人文艺术的温馨就餐空间。
03 一 楼 书 房



色彩,对人的情绪有着超强的影响,清新苍翠的绿植透过落地玻璃窗成为一层书房的背景墙, 摒弃外界嘈杂干扰的同时,又为室内添入一份生机与诗意 。渐变的简约壁画与嵌入式的木质书架,渲染出空间的艺术氛围与文化气息,为业主构建一处阅读及自我释放的静谧空间。
04 娱 乐 区



步入娱乐区,一抹静谧的深蓝与斑斓的星光,不仅拉升了空间视觉,而且给人一种置身银河星空的浪漫。开放通透的空间带来思绪延展,匠心的设计还原艺术之美, 跟随光影的游走,*界无**、无声的空间,让整个室内尽显灵动婉约之美 。
05 一 楼 卧 室



窗外四季如诗,窗内温馨惬意,时间定格一瞬,安享那一刻的灵魂放空与宁静安逸。墙面的“窗景”式设计配以一面落地窗,赋予空间无限的想象,让人可以肆意地自由呼吸。浅棕的主题色在光影的映衬下为空间置入温馨舒适的身心感触。 温润优雅的空间质感,翠绿欲滴的绿植,将一点点浪漫、一点点诗意,还有一点点洒脱蕴藏在室内,将空间的趣味性和秩序感平衡的刚刚好。
06 楼 梯


优雅、浪漫,再加一点点奢华,选择一种风格,便是选择一种生活态度,既可以很雅致也可以很舒适。 蜿蜒旋转阶梯引领着精神的延展向上,既承载着希望,又充满了未知的力量,带我们探索浩瀚世界的精彩。音符跳动间,设计师以一种独特的审美语言和形式,创造居住者理想的生活诗篇。
07 二 楼 书 房



家,不仅仅是容身的空间,更是我们安放心灵的居所。 引入室外阳光,跟随着自然光线的索引,自由与静谧蔓延于简约的空间内,文化气息与艺术之美在室内交织共生,摒弃红尘喧嚣,精神于慵懒处隐约淡然,静享生活曼妙,返归自然与轻松,品味岁月静美,山河漫卷。
08 二 楼 卧 室


二层卧室主调运用白与灰,加上孔雀蓝作为点缀,几个高明度的色彩定下了整体明亮温馨、舒适婉约的空间基调。 几扇窗勾连自然斑斓,每天清晨醒来闻草树清香,感清风拂面,看日升月沉,望万家灯火、烟波云海。 设计师以流转的山河四季,兼顾了诗意与烟火,为业主打造了一处灵动优雅、浪漫温馨的休憩空间。
本案设计师

Designer
上海尚层别墅装饰 - 第二设计中心的设计师
行业资质:
米兰理工大学设计学硕士
清华大学室内设计专业
高级室内建筑师
从业经历:
从业15年
知名别墅设计师
行业15年别墅私宅设计工作经验
尚层集团全国全案落地讲师
尚层装饰平面布局大赛金奖
代表作品:
上海中金海棠湾、上海汤臣湖庭、苏州湾别墅
北京御汤山别墅、北京一渡新新小镇别墅、北京燕西华府