戳蓝字“亿象小站”关注我们哦!
回复“1”,获《名师图库规范》回复“2”,获《2020室内设计图库》
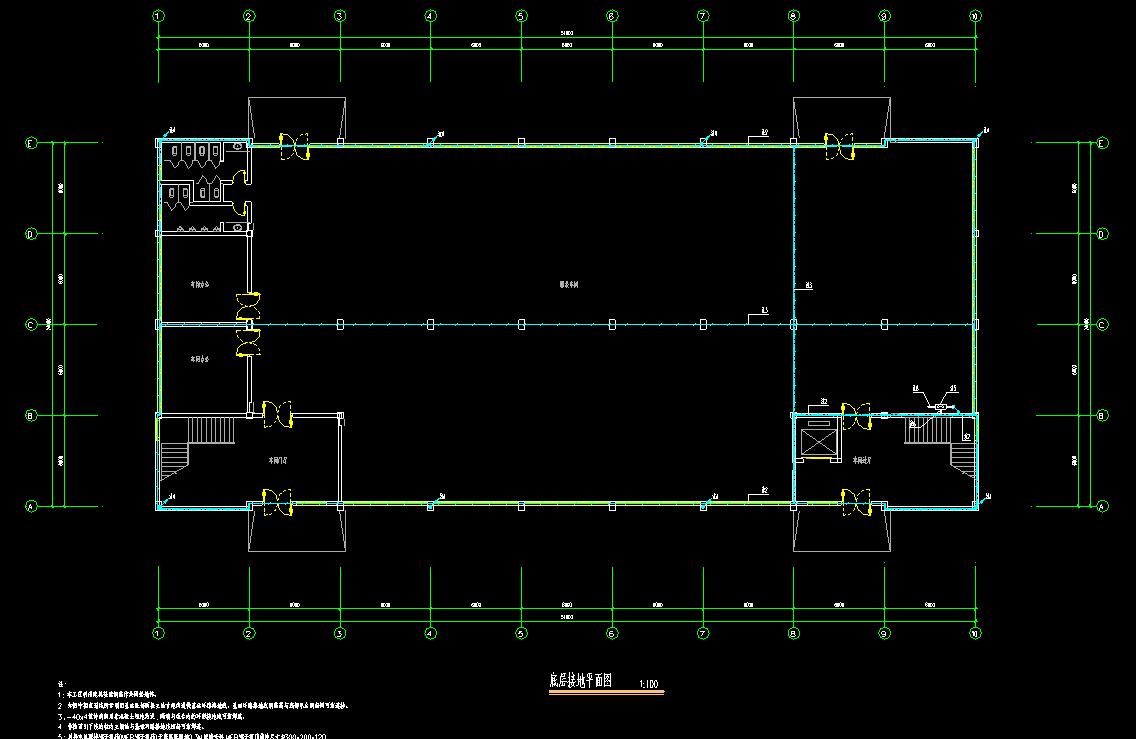
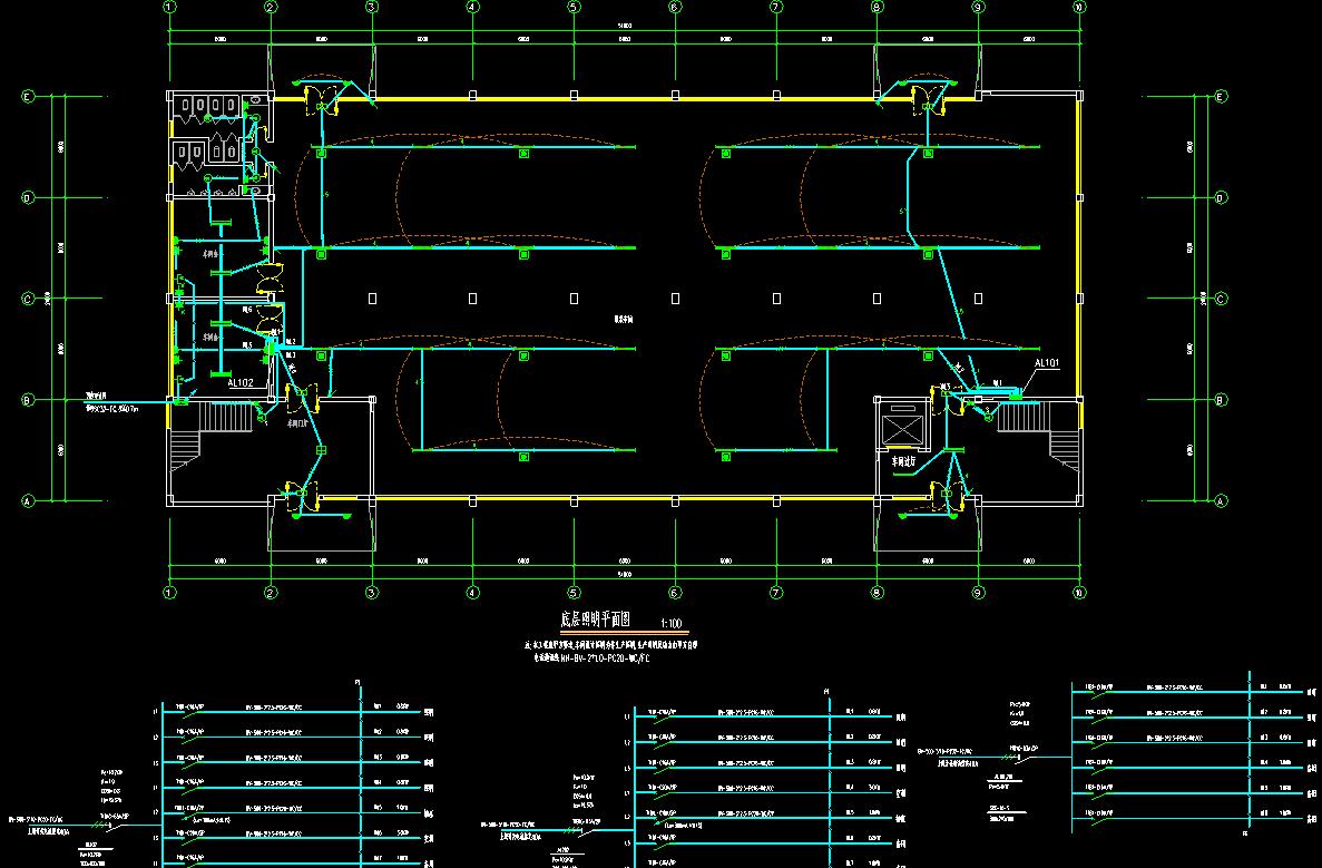
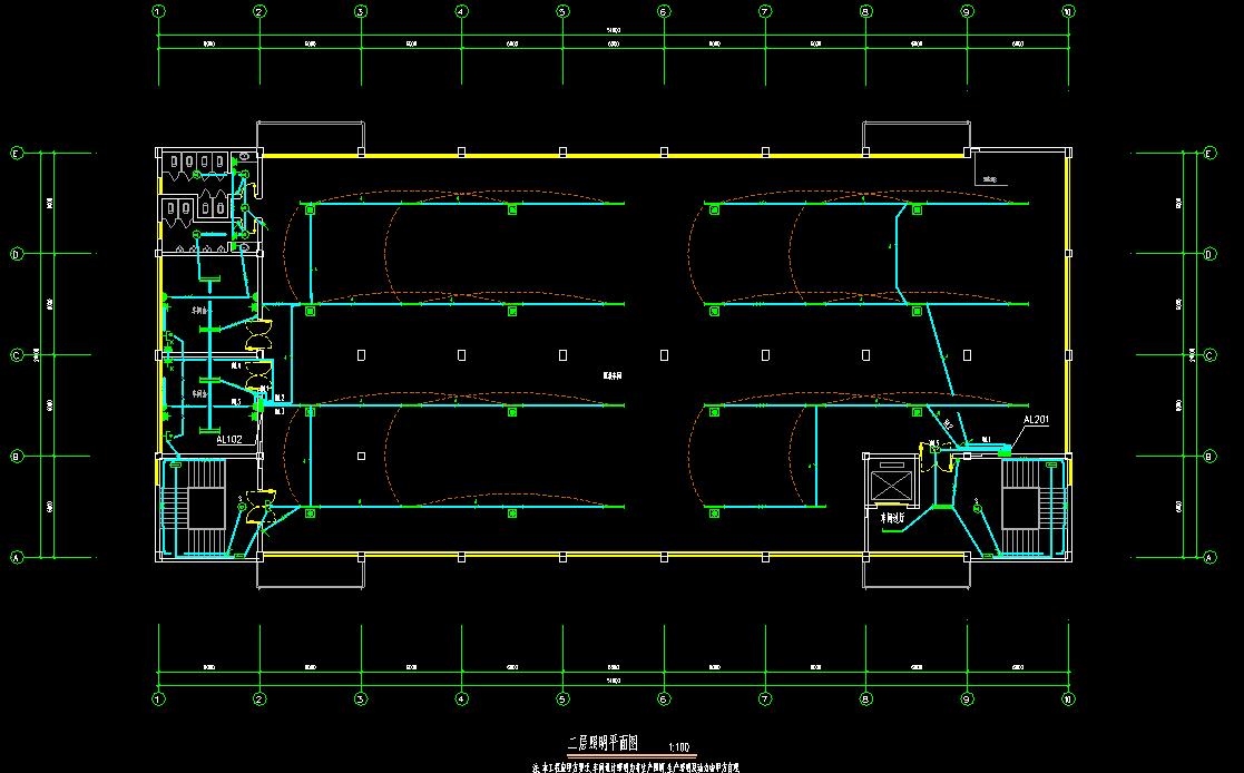
厂房配电照明配电防雷弱电施工图cad平面图建筑设计cad素材
索取方式:转发 +关注 后私信 “ 999”联系小编获取资料!
废话不多说,请接图!








(文件太多了,就不一一截图了)
能坚持看到这里的设计朋友,
必定是热爱设计,
对设计有追求之人,
让我们通过学习变成高富帅,迎娶白富美。
厂房配电照明配电防雷弱电施工图cad平面图建筑设计cad素材
索取方式:转发 +关注 后私信 “ 999”联系小编获取资料!