
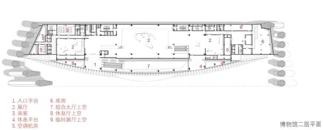
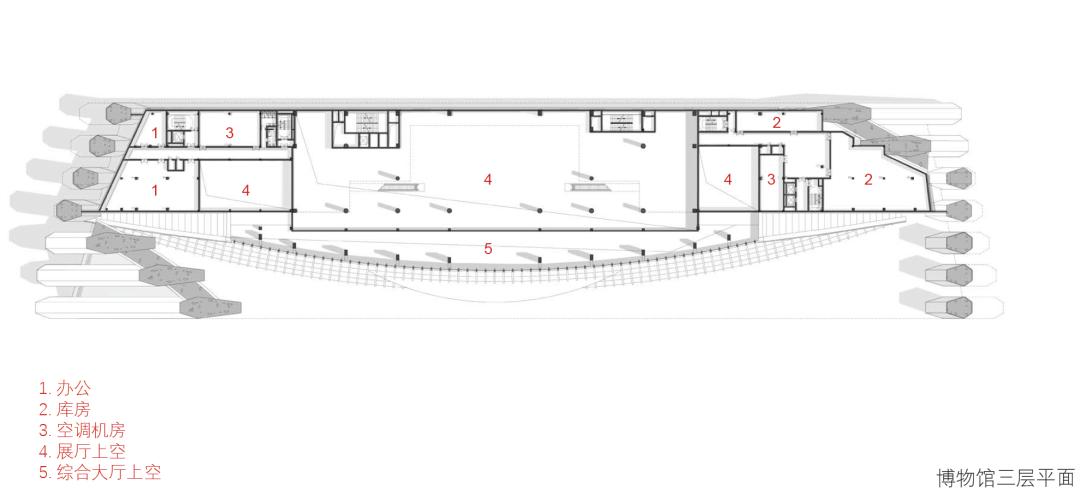
中国黄海湿地博物馆项目,位于盐城市亭湖区原盐城火车站地块,是集博物馆、酒店、会议中心、市民公园于一体的综合城市复兴项目。其中,黄海湿地博物馆为改造建筑,原址为盐城火车站,原建筑面积9694 ㎡,改造后建筑面积18573 ㎡。原火车站采用空间桁架结构,局部层高较低,难以满足展览要求。改造设计考虑拆除部分现有网架,新增加大屋面结构体。下部空间保留原混凝土结构,在两侧局部增加楼板,满足博物馆功能要求。博物馆大屋面采用双层网壳+ 加强桁架肋结构体系,整体跨度达220m,为目前国内此类结构跨度之最。中部利用原有柱位作为支撑,减小屋面结构尺寸。

▲改造前后对比




▲交通流线分析








本项目特殊之处在于屋面凹凸较多,特别是突出的门型桁架与双曲屋面之间,各位置凹凸关系难以统一。相比较而言,泡沫玻璃紧密型屋面的防水层整体施工,施工质量容易保证。泡沫玻璃紧密型屋面系统以高品质泡沫玻璃保温层为承载层,力图通过使屋面构造中的各材料层之间紧密结合,从而最大程度的避免冷热桥的产生,减少渗漏的隐患,降低安全风险,减免后续维修养护成本的保温防水一体化屋面解决方案。如下部做直立锁边屋面,转角处均需特殊处理,十分容易漏水。同时屋面排水面较为简单,在山墙两侧设虹吸排水沟即可满足排水要求。相对直立锁边,紧密型屋面更适合阴阳角较多的复杂屋面造型。



▲屋面标准段放大图
考虑各专业配合及后续施工深化,屋架设计全程使用参数化平台。将建筑造型转化为参数化数据,梳理出完整的生成逻辑,作为结构设计基准面。结构设计以屋面轮廓减去构造厚度,即可得到结构构件的包络面,确保结构与幕墙不干涉。屋面幕墙系统选型不仅要考虑外饰面效果,还需保证保温防水等技术性能过关。同时,造价也是不得不考虑的重要因素。

▲精度钢人视角

▲结构生成分析

▲幕墙结构生成分析
幕墙立柱作为幕墙主受力件,承担自重和水平荷载。常规的做法是结构在各层做连梁,立柱挂在横梁上,再支撑整个幕墙体系。但按这种做法必然导致一个非常复杂的结构系统。同时,作为改造项目,幕墙后侧大部分立柱都是既有混凝土柱,很难增加钢梁去支撑幕墙。在与幕墙顾问数次讨论后,最后选择了顶底承重方式,即地梁承受幕墙主要自重,顶部横撑承担幕墙水平荷载。除了这两个点,中间无需其他结构支点,透过幕墙立柱解决整体幕墙结构问题。

▲主立面幕墙系统

▲首层大堂剖透视
博物馆项目此受力系统优势明显,但带来的问题也显而易见,那就是如此大的跨度,幕墙立柱的尺寸必然会增大。对于高跨幕墙,常规的做法是做钢套芯,外包型材装饰。两层构造自然会增加立柱尺寸。基于以上考虑,深化设计选用高精钢作为幕墙立柱。最大宽度350的梭形钢立柱作为结构杆件,没有其他装饰面,可有效减小构件尺寸。同时高精钢可以整体加工,保证20m高度没有断缝。




博物馆公区室内设计也是由都设完成,室内设计也延续了建筑设计的理念——简约、空灵的设计意向。室内设计的范围主要含括主要入口大厅及重要主空间,整体设计取丹顶鹤之羽和湿地沙洲为设计意象,黑白冷色调为主,强调空灵澄澈而又轻盈唯美的氛围。白色GRG背景墙采用非线性参数化设计,拟合丹顶鹤展翼的形态,与幕墙立柱的序列感相呼应。黑色大理石地面象征湿地水面,米色砂岩墙面暗喻露出水面的沙洲浅滩,远远望之有如一只栖息水边的丹顶鹤徐徐苏醒,振翅欲飞。

▲室内大堂

▲室内布局

▲入口大堂


▲首层大厅改造前后空间对比
火车站站台区域,与站房统一改造,作为博物馆室外展区与附属设施使用。保留原有铁轨,在站台区域布置两列新旧火车头,局部植入附属设施,形成网红打卡地。铁道公园休闲商业区设置1000平米左右的休闲商业,原铁道则作为下沉公园,形成开放空间。

▲站台公园改造前后对比&剖面
项目信息
项目名称:中国黄海湿地博物馆
项目地点:江苏盐城
建设业主:盐城市铁路投资发展有限公司
竣工时间:2021年
建筑功能:博物馆
建筑面积:18,573m²
设计总控:上海都设营造建筑设计事务所有限公司
建筑设计:上海都设营造建筑设计事务所有限公司
合作设计:上海建筑设计研究院有限公司
室内设计:上海都设营造建筑设计事务所有限公司
景观设计:上海都设营造建筑设计事务所有限公司/重庆大野景观创意设计股份有限公司
幕墙顾问:上海睿柏建筑外墙设计有限公司
照明设计:上海格锐照明设计有限公司
标识设计:澳颖设计咨询(上海)有限公司
人防设计:盐城市建筑设计研究院有限公司
绿建及海绵城市顾问:江苏汉筑节能技术有限公司
风洞试验:华东建筑设计研究院有限公司技术中心
装配式建筑顾问:华东建筑设计研究院有限公司技术中心
摄影师:章勇
资料来源、版权所有:上海都设营造建筑设计事务所有限公司