502 Bad Gateway


nginx
- 在哪儿资讯网

502 Bad Gateway

502 Bad Gateway


nginx

农村家庭人多,建房总要考虑到所有人的居住生活,父母就不必多说了,兄弟姐妹之间也应照顾到。这个时候,双拼住宅就成了最优选,合理节约建房成本的同时,两家人还能生活在同一屋檐下。

今天住宅公园就为大家精心整理了最新发布的10套双拼户型,包含各个风格各个结构,想建双拼住宅的朋友们不要错过!

户型一:

占地尺寸:18.6m×12.8m

占地面积:152㎡

建筑面积:327㎡

建筑高度:8.25m

建筑结构:框架结构

建筑情况:设4室 4厅 2厨 2储物间 6卫 4衣帽间 4阳台 2露台

<html>
<head><title>502BadGateway</title></head>
<body>
<center><h1>502BadGateway</h1></center>
<hr><center>nginx</center>
</body>
</html>
<!--apaddingtodisableMSIEandChromefriendlyerrorpage-->
<!--apaddingtodisableMSIEandChromefriendlyerrorpage-->
<!--apaddingtodisableMSIEandChromefriendlyerrorpage-->
<!--apaddingtodisableMSIEandChromefriendlyerrorpage-->
<!--apaddingtodisableMSIEandChromefriendlyerrorpage-->
<!--apaddingtodisableMSIEandChromefriendlyerrorpage-->

平面布局图:

<html>
<head><title>502BadGateway</title></head>
<body>
<center><h1>502BadGateway</h1></center>
<hr><center>nginx</center>
</body>
</html>
<!--apaddingtodisableMSIEandChromefriendlyerrorpage-->
<!--apaddingtodisableMSIEandChromefriendlyerrorpage-->
<!--apaddingtodisableMSIEandChromefriendlyerrorpage-->
<!--apaddingtodisableMSIEandChromefriendlyerrorpage-->
<!--apaddingtodisableMSIEandChromefriendlyerrorpage-->
<!--apaddingtodisableMSIEandChromefriendlyerrorpage-->

<html>
<head><title>502BadGateway</title></head>
<body>
<center><h1>502BadGateway</h1></center>
<hr><center>nginx</center>
</body>
</html>
<!--apaddingtodisableMSIEandChromefriendlyerrorpage-->
<!--apaddingtodisableMSIEandChromefriendlyerrorpage-->
<!--apaddingtodisableMSIEandChromefriendlyerrorpage-->
<!--apaddingtodisableMSIEandChromefriendlyerrorpage-->
<!--apaddingtodisableMSIEandChromefriendlyerrorpage-->
<!--apaddingtodisableMSIEandChromefriendlyerrorpage-->

户型二:

占地尺寸:13.8m×9.8m

占地面积:159.06㎡

建筑面积:507.72㎡

建筑结构:框架结构

建筑高度:14.95m

建筑情况:设8卧室 5厅 5卫 3厨 1棋牌室 2露台 2阳台

<html>
<head><title>502BadGateway</title></head>
<body>
<center><h1>502BadGateway</h1></center>
<hr><center>nginx</center>
</body>
</html>
<!--apaddingtodisableMSIEandChromefriendlyerrorpage-->
<!--apaddingtodisableMSIEandChromefriendlyerrorpage-->
<!--apaddingtodisableMSIEandChromefriendlyerrorpage-->
<!--apaddingtodisableMSIEandChromefriendlyerrorpage-->
<!--apaddingtodisableMSIEandChromefriendlyerrorpage-->
<!--apaddingtodisableMSIEandChromefriendlyerrorpage-->

平面布局图:

<html>
<head><title>502BadGateway</title></head>
<body>
<center><h1>502BadGateway</h1></center>
<hr><center>nginx</center>
</body>
</html>
<!--apaddingtodisableMSIEandChromefriendlyerrorpage-->
<!--apaddingtodisableMSIEandChromefriendlyerrorpage-->
<!--apaddingtodisableMSIEandChromefriendlyerrorpage-->
<!--apaddingtodisableMSIEandChromefriendlyerrorpage-->
<!--apaddingtodisableMSIEandChromefriendlyerrorpage-->
<!--apaddingtodisableMSIEandChromefriendlyerrorpage-->

<html>
<head><title>502BadGateway</title></head>
<body>
<center><h1>502BadGateway</h1></center>
<hr><center>nginx</center>
</body>
</html>
<!--apaddingtodisableMSIEandChromefriendlyerrorpage-->
<!--apaddingtodisableMSIEandChromefriendlyerrorpage-->
<!--apaddingtodisableMSIEandChromefriendlyerrorpage-->
<!--apaddingtodisableMSIEandChromefriendlyerrorpage-->
<!--apaddingtodisableMSIEandChromefriendlyerrorpage-->
<!--apaddingtodisableMSIEandChromefriendlyerrorpage-->

<html>
<head><title>502BadGateway</title></head>
<body>
<center><h1>502BadGateway</h1></center>
<hr><center>nginx</center>
</body>
</html>
<!--apaddingtodisableMSIEandChromefriendlyerrorpage-->
<!--apaddingtodisableMSIEandChromefriendlyerrorpage-->
<!--apaddingtodisableMSIEandChromefriendlyerrorpage-->
<!--apaddingtodisableMSIEandChromefriendlyerrorpage-->
<!--apaddingtodisableMSIEandChromefriendlyerrorpage-->
<!--apaddingtodisableMSIEandChromefriendlyerrorpage-->

户型三:

占地尺寸:18.76m×11.4m

占地面积:203㎡

建筑面积:406.2㎡

建筑高度:9.985m

建筑情况:2客厅 2起居室 2厨房 2餐厅 10卧室 4卫生间 2书房

<html>
<head><title>502BadGateway</title></head>
<body>
<center><h1>502BadGateway</h1></center>
<hr><center>nginx</center>
</body>
</html>
<!--apaddingtodisableMSIEandChromefriendlyerrorpage-->
<!--apaddingtodisableMSIEandChromefriendlyerrorpage-->
<!--apaddingtodisableMSIEandChromefriendlyerrorpage-->
<!--apaddingtodisableMSIEandChromefriendlyerrorpage-->
<!--apaddingtodisableMSIEandChromefriendlyerrorpage-->
<!--apaddingtodisableMSIEandChromefriendlyerrorpage-->

平面布局图:

<html>
<head><title>502BadGateway</title></head>
<body>
<center><h1>502BadGateway</h1></center>
<hr><center>nginx</center>
</body>
</html>
<!--apaddingtodisableMSIEandChromefriendlyerrorpage-->
<!--apaddingtodisableMSIEandChromefriendlyerrorpage-->
<!--apaddingtodisableMSIEandChromefriendlyerrorpage-->
<!--apaddingtodisableMSIEandChromefriendlyerrorpage-->
<!--apaddingtodisableMSIEandChromefriendlyerrorpage-->
<!--apaddingtodisableMSIEandChromefriendlyerrorpage-->

<html>
<head><title>502BadGateway</title></head>
<body>
<center><h1>502BadGateway</h1></center>
<hr><center>nginx</center>
</body>
</html>
<!--apaddingtodisableMSIEandChromefriendlyerrorpage-->
<!--apaddingtodisableMSIEandChromefriendlyerrorpage-->
<!--apaddingtodisableMSIEandChromefriendlyerrorpage-->
<!--apaddingtodisableMSIEandChromefriendlyerrorpage-->
<!--apaddingtodisableMSIEandChromefriendlyerrorpage-->
<!--apaddingtodisableMSIEandChromefriendlyerrorpage-->

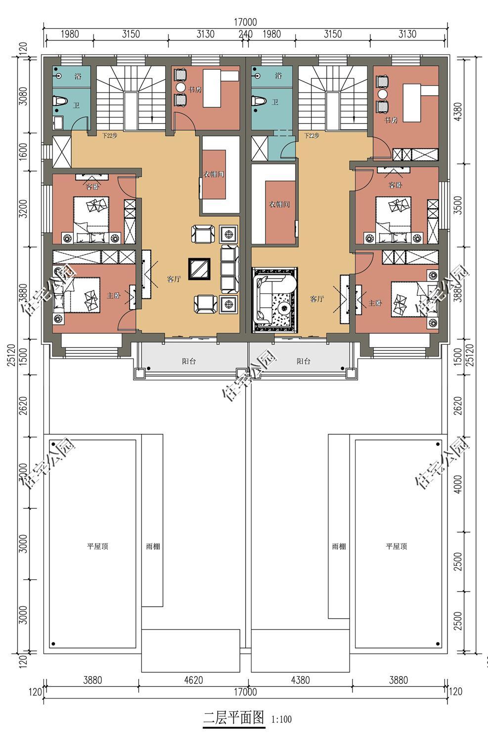
户型四:

占地尺寸:20m*12m

占地面积:240㎡

建筑面积:607.15㎡(双户总面积)

建筑高度:10.635m

建筑情况:4储藏室 2玄关 2大客厅 2起居室 2厨房 2餐厅 8卫生间 10卧室 4露台

<html>
<head><title>502BadGateway</title></head>
<body>
<center><h1>502BadGateway</h1></center>
<hr><center>nginx</center>
</body>
</html>
<!--apaddingtodisableMSIEandChromefriendlyerrorpage-->
<!--apaddingtodisableMSIEandChromefriendlyerrorpage-->
<!--apaddingtodisableMSIEandChromefriendlyerrorpage-->
<!--apaddingtodisableMSIEandChromefriendlyerrorpage-->
<!--apaddingtodisableMSIEandChromefriendlyerrorpage-->
<!--apaddingtodisableMSIEandChromefriendlyerrorpage-->

平面布局图:

<html>
<head><title>502BadGateway</title></head>
<body>
<center><h1>502BadGateway</h1></center>
<hr><center>nginx</center>
</body>
</html>
<!--apaddingtodisableMSIEandChromefriendlyerrorpage-->
<!--apaddingtodisableMSIEandChromefriendlyerrorpage-->
<!--apaddingtodisableMSIEandChromefriendlyerrorpage-->
<!--apaddingtodisableMSIEandChromefriendlyerrorpage-->
<!--apaddingtodisableMSIEandChromefriendlyerrorpage-->
<!--apaddingtodisableMSIEandChromefriendlyerrorpage-->

<html>
<head><title>502BadGateway</title></head>
<body>
<center><h1>502BadGateway</h1></center>
<hr><center>nginx</center>
</body>
</html>
<!--apaddingtodisableMSIEandChromefriendlyerrorpage-->
<!--apaddingtodisableMSIEandChromefriendlyerrorpage-->
<!--apaddingtodisableMSIEandChromefriendlyerrorpage-->
<!--apaddingtodisableMSIEandChromefriendlyerrorpage-->
<!--apaddingtodisableMSIEandChromefriendlyerrorpage-->
<!--apaddingtodisableMSIEandChromefriendlyerrorpage-->

<html>
<head><title>502BadGateway</title></head>
<body>
<center><h1>502BadGateway</h1></center>
<hr><center>nginx</center>
</body>
</html>
<!--apaddingtodisableMSIEandChromefriendlyerrorpage-->
<!--apaddingtodisableMSIEandChromefriendlyerrorpage-->
<!--apaddingtodisableMSIEandChromefriendlyerrorpage-->
<!--apaddingtodisableMSIEandChromefriendlyerrorpage-->
<!--apaddingtodisableMSIEandChromefriendlyerrorpage-->
<!--apaddingtodisableMSIEandChromefriendlyerrorpage-->

户型五:

占地尺寸:17×25m

占地面积:425㎡

建筑面积:506㎡

建筑高度:10.681m

建筑情况:4客厅 2衣帽间 4老人房 6卫生间 2主卧 2客卧 2餐厅 3厨房

<html>
<head><title>502BadGateway</title></head>
<body>
<center><h1>502BadGateway</h1></center>
<hr><center>nginx</center>
</body>
</html>
<!--apaddingtodisableMSIEandChromefriendlyerrorpage-->
<!--apaddingtodisableMSIEandChromefriendlyerrorpage-->
<!--apaddingtodisableMSIEandChromefriendlyerrorpage-->
<!--apaddingtodisableMSIEandChromefriendlyerrorpage-->
<!--apaddingtodisableMSIEandChromefriendlyerrorpage-->
<!--apaddingtodisableMSIEandChromefriendlyerrorpage-->

平米布局图:

<html>
<head><title>502BadGateway</title></head>
<body>
<center><h1>502BadGateway</h1></center>
<hr><center>nginx</center>
</body>
</html>
<!--apaddingtodisableMSIEandChromefriendlyerrorpage-->
<!--apaddingtodisableMSIEandChromefriendlyerrorpage-->
<!--apaddingtodisableMSIEandChromefriendlyerrorpage-->
<!--apaddingtodisableMSIEandChromefriendlyerrorpage-->
<!--apaddingtodisableMSIEandChromefriendlyerrorpage-->
<!--apaddingtodisableMSIEandChromefriendlyerrorpage-->

<html>
<head><title>502BadGateway</title></head>
<body>
<center><h1>502BadGateway</h1></center>
<hr><center>nginx</center>
</body>
</html>
<!--apaddingtodisableMSIEandChromefriendlyerrorpage-->
<!--apaddingtodisableMSIEandChromefriendlyerrorpage-->
<!--apaddingtodisableMSIEandChromefriendlyerrorpage-->
<!--apaddingtodisableMSIEandChromefriendlyerrorpage-->
<!--apaddingtodisableMSIEandChromefriendlyerrorpage-->
<!--apaddingtodisableMSIEandChromefriendlyerrorpage-->

户型六:

占地尺寸:20.24×13.24m

占地面积:260㎡

建筑面积:243.96㎡

建筑高度:6.529m

建筑情况:2客 6卧 2厨 2餐厅 4卫

<html>
<head><title>502BadGateway</title></head>
<body>
<center><h1>502BadGateway</h1></center>
<hr><center>nginx</center>
</body>
</html>
<!--apaddingtodisableMSIEandChromefriendlyerrorpage-->
<!--apaddingtodisableMSIEandChromefriendlyerrorpage-->
<!--apaddingtodisableMSIEandChromefriendlyerrorpage-->
<!--apaddingtodisableMSIEandChromefriendlyerrorpage-->
<!--apaddingtodisableMSIEandChromefriendlyerrorpage-->
<!--apaddingtodisableMSIEandChromefriendlyerrorpage-->

平面布局图:

<html>
<head><title>502BadGateway</title></head>
<body>
<center><h1>502BadGateway</h1></center>
<hr><center>nginx</center>
</body>
</html>
<!--apaddingtodisableMSIEandChromefriendlyerrorpage-->
<!--apaddingtodisableMSIEandChromefriendlyerrorpage-->
<!--apaddingtodisableMSIEandChromefriendlyerrorpage-->
<!--apaddingtodisableMSIEandChromefriendlyerrorpage-->
<!--apaddingtodisableMSIEandChromefriendlyerrorpage-->
<!--apaddingtodisableMSIEandChromefriendlyerrorpage-->

户型七

占地尺寸:26.5m×12.5m(双户)

占地面积:326.15㎡(双户)

建筑面积:640.65㎡(双户)

建筑高度:10.89m

建筑情况:5卧室 1客厅 1餐厅 1厨房 4卫 1阳台 1书房

<html>
<head><title>502BadGateway</title></head>
<body>
<center><h1>502BadGateway</h1></center>
<hr><center>nginx</center>
</body>
</html>
<!--apaddingtodisableMSIEandChromefriendlyerrorpage-->
<!--apaddingtodisableMSIEandChromefriendlyerrorpage-->
<!--apaddingtodisableMSIEandChromefriendlyerrorpage-->
<!--apaddingtodisableMSIEandChromefriendlyerrorpage-->
<!--apaddingtodisableMSIEandChromefriendlyerrorpage-->
<!--apaddingtodisableMSIEandChromefriendlyerrorpage-->

平面布局图:

<html>
<head><title>502BadGateway</title></head>
<body>
<center><h1>502BadGateway</h1></center>
<hr><center>nginx</center>
</body>
</html>
<!--apaddingtodisableMSIEandChromefriendlyerrorpage-->
<!--apaddingtodisableMSIEandChromefriendlyerrorpage-->
<!--apaddingtodisableMSIEandChromefriendlyerrorpage-->
<!--apaddingtodisableMSIEandChromefriendlyerrorpage-->
<!--apaddingtodisableMSIEandChromefriendlyerrorpage-->
<!--apaddingtodisableMSIEandChromefriendlyerrorpage-->

<html>
<head><title>502BadGateway</title></head>
<body>
<center><h1>502BadGateway</h1></center>
<hr><center>nginx</center>
</body>
</html>
<!--apaddingtodisableMSIEandChromefriendlyerrorpage-->
<!--apaddingtodisableMSIEandChromefriendlyerrorpage-->
<!--apaddingtodisableMSIEandChromefriendlyerrorpage-->
<!--apaddingtodisableMSIEandChromefriendlyerrorpage-->
<!--apaddingtodisableMSIEandChromefriendlyerrorpage-->
<!--apaddingtodisableMSIEandChromefriendlyerrorpage-->

户型八

占地尺寸:17.6m*14.66m

占地面积:252㎡(双户)

建筑面积:493.5㎡(双户)

建筑高度:8.44m

建筑情况:共设10室 4客厅 7卫生间 2厨房 2餐厅 1衣帽间 2洗衣房 2阳台 2活动区(双户)

<html>
<head><title>502BadGateway</title></head>
<body>
<center><h1>502BadGateway</h1></center>
<hr><center>nginx</center>
</body>
</html>
<!--apaddingtodisableMSIEandChromefriendlyerrorpage-->
<!--apaddingtodisableMSIEandChromefriendlyerrorpage-->
<!--apaddingtodisableMSIEandChromefriendlyerrorpage-->
<!--apaddingtodisableMSIEandChromefriendlyerrorpage-->
<!--apaddingtodisableMSIEandChromefriendlyerrorpage-->
<!--apaddingtodisableMSIEandChromefriendlyerrorpage-->

平面布局图:

<html>
<head><title>502BadGateway</title></head>
<body>
<center><h1>502BadGateway</h1></center>
<hr><center>nginx</center>
</body>
</html>
<!--apaddingtodisableMSIEandChromefriendlyerrorpage-->
<!--apaddingtodisableMSIEandChromefriendlyerrorpage-->
<!--apaddingtodisableMSIEandChromefriendlyerrorpage-->
<!--apaddingtodisableMSIEandChromefriendlyerrorpage-->
<!--apaddingtodisableMSIEandChromefriendlyerrorpage-->
<!--apaddingtodisableMSIEandChromefriendlyerrorpage-->

<html>
<head><title>502BadGateway</title></head>
<body>
<center><h1>502BadGateway</h1></center>
<hr><center>nginx</center>
</body>
</html>
<!--apaddingtodisableMSIEandChromefriendlyerrorpage-->
<!--apaddingtodisableMSIEandChromefriendlyerrorpage-->
<!--apaddingtodisableMSIEandChromefriendlyerrorpage-->
<!--apaddingtodisableMSIEandChromefriendlyerrorpage-->
<!--apaddingtodisableMSIEandChromefriendlyerrorpage-->
<!--apaddingtodisableMSIEandChromefriendlyerrorpage-->

户型九

占地尺寸:21m*12.48m

占地面积:244㎡

建筑面积:419㎡

建筑高度:10.2m

建筑情况(两户):共设10室 1堂屋 2厨房 2餐厅 6卫 2露台 1阳台

<html>
<head><title>502BadGateway</title></head>
<body>
<center><h1>502BadGateway</h1></center>
<hr><center>nginx</center>
</body>
</html>
<!--apaddingtodisableMSIEandChromefriendlyerrorpage-->
<!--apaddingtodisableMSIEandChromefriendlyerrorpage-->
<!--apaddingtodisableMSIEandChromefriendlyerrorpage-->
<!--apaddingtodisableMSIEandChromefriendlyerrorpage-->
<!--apaddingtodisableMSIEandChromefriendlyerrorpage-->
<!--apaddingtodisableMSIEandChromefriendlyerrorpage-->

平面布局图:

<html>
<head><title>502BadGateway</title></head>
<body>
<center><h1>502BadGateway</h1></center>
<hr><center>nginx</center>
</body>
</html>
<!--apaddingtodisableMSIEandChromefriendlyerrorpage-->
<!--apaddingtodisableMSIEandChromefriendlyerrorpage-->
<!--apaddingtodisableMSIEandChromefriendlyerrorpage-->
<!--apaddingtodisableMSIEandChromefriendlyerrorpage-->
<!--apaddingtodisableMSIEandChromefriendlyerrorpage-->
<!--apaddingtodisableMSIEandChromefriendlyerrorpage-->

<html>
<head><title>502BadGateway</title></head>
<body>
<center><h1>502BadGateway</h1></center>
<hr><center>nginx</center>
</body>
</html>
<!--apaddingtodisableMSIEandChromefriendlyerrorpage-->
<!--apaddingtodisableMSIEandChromefriendlyerrorpage-->
<!--apaddingtodisableMSIEandChromefriendlyerrorpage-->
<!--apaddingtodisableMSIEandChromefriendlyerrorpage-->
<!--apaddingtodisableMSIEandChromefriendlyerrorpage-->
<!--apaddingtodisableMSIEandChromefriendlyerrorpage-->

户型十

占地尺寸:13.5m*10m

占地面积:135㎡

建筑面积:341.8㎡

建筑高度:11.4m

建筑情况:共设6室 2厅 8卫 2厨 2公共区域 1公共娱乐室 4起居室 4衣帽间 4阳台 4露台

<html>
<head><title>502BadGateway</title></head>
<body>
<center><h1>502BadGateway</h1></center>
<hr><center>nginx</center>
</body>
</html>
<!--apaddingtodisableMSIEandChromefriendlyerrorpage-->
<!--apaddingtodisableMSIEandChromefriendlyerrorpage-->
<!--apaddingtodisableMSIEandChromefriendlyerrorpage-->
<!--apaddingtodisableMSIEandChromefriendlyerrorpage-->
<!--apaddingtodisableMSIEandChromefriendlyerrorpage-->
<!--apaddingtodisableMSIEandChromefriendlyerrorpage-->

平面布局图:

<html>
<head><title>502BadGateway</title></head>
<body>
<center><h1>502BadGateway</h1></center>
<hr><center>nginx</center>
</body>
</html>
<!--apaddingtodisableMSIEandChromefriendlyerrorpage-->
<!--apaddingtodisableMSIEandChromefriendlyerrorpage-->
<!--apaddingtodisableMSIEandChromefriendlyerrorpage-->
<!--apaddingtodisableMSIEandChromefriendlyerrorpage-->
<!--apaddingtodisableMSIEandChromefriendlyerrorpage-->
<!--apaddingtodisableMSIEandChromefriendlyerrorpage-->

<html>
<head><title>502BadGateway</title></head>
<body>
<center><h1>502BadGateway</h1></center>
<hr><center>nginx</center>
</body>
</html>
<!--apaddingtodisableMSIEandChromefriendlyerrorpage-->
<!--apaddingtodisableMSIEandChromefriendlyerrorpage-->
<!--apaddingtodisableMSIEandChromefriendlyerrorpage-->
<!--apaddingtodisableMSIEandChromefriendlyerrorpage-->
<!--apaddingtodisableMSIEandChromefriendlyerrorpage-->
<!--apaddingtodisableMSIEandChromefriendlyerrorpage-->

<html>
<head><title>502BadGateway</title></head>
<body>
<center><h1>502BadGateway</h1></center>
<hr><center>nginx</center>
</body>
</html>
<!--apaddingtodisableMSIEandChromefriendlyerrorpage-->
<!--apaddingtodisableMSIEandChromefriendlyerrorpage-->
<!--apaddingtodisableMSIEandChromefriendlyerrorpage-->
<!--apaddingtodisableMSIEandChromefriendlyerrorpage-->
<!--apaddingtodisableMSIEandChromefriendlyerrorpage-->
<!--apaddingtodisableMSIEandChromefriendlyerrorpage-->

关注本号,更多农村自建房户型图欣赏,还有建房小知识,一手掌握。