2017年05月06日,由PINKI EDU品伊国际创意美学院主办,学院先锋学生委员会承办,深圳狮子会支持,太平洋家居网独家合作报道,每年邀请6位人文与创意领域的师者进行知识经验分享的知识公益项目——ANOTHER GENE异点创先课堂第13期课程,在PINKI品伊国际创意(深圳万科星火Online7栋230室)深圳总部圆满结课。

异点创先课堂 | 人文 创意 有异见
书读百遍其异自见,路行千里必有异见,以持续对人文、创意有点异见为理念,ANOTHER GENE异点创先课堂是由PINKI EDU品伊国际创意美学院主办,学院先锋学生委员会承办,深圳狮子会支持,太平洋家居网独家合作报道,每年邀请6位关于人文与创意领域的师者,进行知识经验分享的知识公益项目。自2013年上海开课以来,已有12位师者(吴家骅、葛亚曦,孙建亚,凌子达,刘卫军、施扬、曾传杰、王建军、周亮、钟文萍、吴文粒、张敬)受邀加入异点创先课堂担任公益导师,分享他们对于人文、创意的不同观念和知识经验。
第13位公益师者:董瑞添

董瑞添,全国知名室内装饰工程项目管理专家;PINKI EDU品伊国际创意美学院梦想导师、ANOTHER GENE 异点创先课堂公益导师,FCC精英会员&深圳名仕伯爵装饰设计工程公司创始人、中国建筑学会室内分会深专委委员、四川艺术职业学院客座教授。董瑞添先生,一直以来,以精致工艺、卓越的品质以及优良的服务称著于业界,以“做强不做大,做精不做多”的经营理念,以“专业、敬业、乐业”的管理团队,专注于私人豪宅、别墅、会所、酒店的设计和施工。
课堂实录
异点创先课堂第13期
董瑞添:施工图(图囧)中的化骨绵掌秘籍
时间:2017.05.06 下午
地点:PINKI 品伊国际创意(万科星火Online7栋230室)

PINKI先锋学生委员会主席团成员致辞
主持:大家下午好,我是PINKI品伊国际创意品牌部Peter,首先欢迎大家!我们在2013年成立了PINKI EDU品伊国际创意美学院,如今也有四年时间了。为什么要做ANOTRER GENE异点创先课堂?是因为我们希望通过这样一个知识公益项目,邀请到行业内或者跨行业的人文、创意领域的师者为我们深圳及周边城市群的设计师带来一些福祉。当然,更重要的是我们设计师朋友能有机会接触到设计之外的,关于人文与创意方面的,最真实和最不同的观念、知识、经验的分享。接下来有请品伊国际创意美学院先锋学生委员会监事长黄振宇、副主席黄昆龙来谈谈这几年在学院的收获。

学生会监事长黄振宇:比起以前已是天壤之别
黄振宇:在从事十多年的设计行业仍是一个老面孔的新手,为什么这么讲?因为之前一直沉浸在自己的小世界里,闷头做事,原地踏步。机缘巧合下走进美学院学习,虽然不说现在有多大成就,但是比起以前已经是天壤之别了,特别是思维和眼界上都已经发生很大的变化。认识我的人都说黄振宇感觉完全变了一个人,从里到外发生了本质的变化。所以,我非常荣幸,也欢迎大家加入美学院这个大家庭,携手共同前进。

学生会副主席黄昆龙:更清楚地认识了我自己
黄昆龙:2013年3月进入美学院,在品伊最大的收获是改变了我自己,让我发现其实设计这条路上,是在跟自己做斗争,跟自己较劲。品伊给了我这个平台,我更清楚地认识了我自己。
学院惯例-诵读经典:聂鲁达《我喜欢你是寂静的》


董瑞添:施工图图囧中的化骨绵掌秘籍
用行内话说,我现在做的是施工界的私房菜。我们公司定下一个原则是“做强不做大,做精不做多”,基于这个理念,现在我们在行内小范围内都清楚我们的要求,正因如此,一直走过来,我们最多的客户反而是通过设计师推荐的。通过设计师推荐,我们跟设计师接触的机会就多。跟设计师接触多了,我们发现设计师感到很痛苦的地方,设计完成后到施工图交出去的时候,麻烦事就开始了。

现在很多设计师头疼的、面对的、违背不了的问题:
一、是你为何总对我的图纸问个不休?
二、我到底还要跑多少趟工地?
三、业主为何天天让我陪他看材料?
四、图纸完成了,造价超预算了,业主要改图,怎么办?

我们今天带着这四个问题跟大家探讨。
为什么那么多问题呢?
其实所有的问题归根究底就是施工图的问题。

今天讲的不是施工图的节点,前面有朋友说我们施工图的节点都不知道怎么画,画出来以后没有底,不知道行不行。其实施工图的节点,根本就没有一个精确的、完整的标准。因为材料天天在变,在更新。怎么能规范得了,怎么能圈在一个范围内。比如:当人造石出来的时候,模仿大理石已经出来了;当你用水泥沙的时候,钢挂已经出来了。现在我们用另一种材料去做大理石,不用水泥沙,也不用钢挂了,用另一种工艺做大理石了。到目前为止,大理石演变的过程中已经发生很大的变化,我不敢担保明年出一个新工艺的时候,你问这个施工怎么做,所以说的施工图的工艺是没完没了的问题。

相反现在关注的是如何制作一套完整的施工图。一个错误的施工图、一个有问题的施工图为什么引起那么多后遗症呢?从我们预算开始,从我们的材料采购开始,从我们的施工放线开始,所有问题都提出来的时候就回归到施工图的问题。

这是我们审图的流程,这个审图流程基本上给到甲方和施工方的时候,那个问题基本上可以说没有问题了,这里有13项。施工图就是为施工服务的,也就是说最终使用的是施工方,施工方带着标准去看这个图的话,先看审图,等一下再看图纸。因为我们要求审这个图,审出来以后也是我们在使用,所以经过这样的审图,施工方到最后不会问你了。
我们接到图纸的时候,第一,要求图纸是完整的(含物料表)。我们的图纸原始结构图(平面、梁体)、墙体拆除图、新建墙体图、平面布置图、索引图、家具布置尺寸图、地面铺设图、天花(综合)布置图、灯具定位图、灯具连线图、开关插座布置图、水电系统图、立面图、剖面图、门图。物料表要求细化到什么程度?名称、规格、型号、使用部位、供应商、联系方式、参考价格。现在很多公司已经做到这一点了,报价的时候,会特别要求这个东西,因为这会遇到超预算的情况,所以要求有这个东西。
第二,我们审核出图纸的错误之处,然后记录下来。
第三,施工工艺是否可行。站在设计师的角度来看,他的想法天马行空,想表现一个特别的效果,但工艺可不可行呢?我们审图的时候也会提出这个问题,并且探讨实现的方式。
第四,当工艺可行的时候,工艺是否可以改良,这是我们做二次深化图纸的时候经常碰到的问题。同样的效果、同样的材料,做法不一样,工艺不一样,我们的成本就会降低。大家希望有一个好的项目,其实一个好的项目除了它的效果之外,还有一个是性价比。同样的效果,花出去的成本不一样,那么我们就要从工艺上考虑减少成本。
第五,材料是否清楚明确,包括名称、品牌、规格、型号、供应商。为什么要供应商呢?有的可能从网上*载下**一个图片放上去就是这个材料了,其实你工艺上找不到的时候就很麻烦,他找不到这个材料,到最后施工方又找你。写得这么详细就是避免在施工过程中,去找设计师到现场确认。
第六,材料是否可以优化调整。这是为了避免改材料,其实我们也不想。在以前那个年代,设计师都很喜欢跑材料市场,我们去买材料的时候经常碰到设计师在看材料。现在有一个不好的现象,就是现在的设计师几乎都在自己公司的材料库里面,或者在网上找材料,我觉得这是有限的。有空的时候还是多走走市场,有些产品在网上是看不到的,特别是一些真正的新品种、好材料,他们不愿意放到网络上让太多人知道,因为中国这个地方模仿太厉害了,有一个新材料的话,你放到网上,保证一个星期就出来了,所以很多好材料还是到店铺里面去看。
第七,材料的分类,这就不说了,这是我们施工方要做的。
第八,外包项目,这是有时候要求的。
第九,重点、特殊工艺描述。很多工艺现在没有争议,因为成熟了。特殊工艺是我们需要重视的,少见的甚至没有见到的工艺。设计师对待重点的、特殊的工艺,也要特别重视,因为这是亮点。
第十,质量重点描述。我们审完图以后会分析总结这个项目的质量、工艺重点。
第十一,影响项目进度的工艺和区域。这是我们施工方要特别关注的,我们对这些细节做得还是很到位的。
第十二,影响项目造价的工种和区域。这个我们也特别强调,因为预算下来的时候我们起码知道哪个工种哪个部分超出了预算。比如总造价3700万,但是大理石就花了2000万,那么这肯定就有问题了,所以我们做设计的时候应该要清楚钱花在哪里。
第十三,其他值得注意的图纸问题。有些我们没有考虑到的东西可能审图的时候就出来了。
这十三条审图标准,为什么要把这个东西放给大家看呢?你做了施工图给到施工方以后,施工方是怎么看这个图的呢?他是带着十三个问题去看的,你把十三个问题解决了,基本上他就不找你了。做到这点容不容易呢?我觉得很简单,是愿意不愿意做的问题。你愿意去跑工地还是愿意把这些问题做到位呢?
施工图这块为什么引起这么多的问题呢?
施工图做得不详细的时候,预算员会找你,施工方也会找你。我问很多设计师,你知道施工方用这个施工图做什么的吗?很多设计师都不知道这个施工图到底对施工方有什么作用?下面我详细讲解一下。
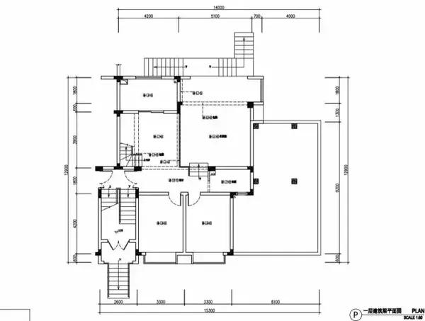
我们从非常简单的一个图纸开始,你就知道你画的施工图到最后施工方是用来做什么的。这是一个原始平面图,就是房子的原始结构,这个大家都清楚。

这里会显示到一个梁,它都清清楚楚。也许很多设计师觉得这个东西跟施工方没有关系,但是没有的话,后面会引起很多施工问题。再往下看,一个墙体拆除图,它就是表明哪些墙体要拆除的。还有一个新建的墙体图,我重点说一下,这三个简单的平面图到了施工方以后有什么用,如果没有这几张图,他会问你什么问题?在预算里,有一个拆除墙体和新建墙体的列项。

从这个图可以反映出来原来图纸是怎么样的、结构怎么样,拆除是哪些部分,预算员就可以算出一个拆除的量。如果没有这个图,预算员是不清楚的,就会找你询问。拆了之后要建,所以这边还有一个新建的墙体图。拆了那部分,他可以算一个量出来,就能知道拆除需要多少钱。另外,新建的墙体这个量也可以算得出来。如果没有做这块是很麻烦的,还要到现场去量。我今天说的不是细节的问题,是一个大方向。如果你没有这个图,他肯定会问你。现在的甲方很喜欢一个项目找十个施工单位,那就会有十个施工单位问你同样的问题,你烦不烦?所以,我觉得这么做是一个大方向,这些图都要有,也就是刚才我提到的图纸全不全的问题,这些恰恰是我们不大会注意的。
让别人不要老是问你的话,自己首先要做好。这是平面里最基本的拆除、新建部分。一定要有这三张图:平面图、梁体示意图、拆除新建图。
建筑梁涉及到标高问题,空调公司会问这个梁到底有多高,空调是否可以走管?现场施工的时候发现这里有一条梁,那怎么办?改图纸。一改图纸的时候,还是设计师最麻烦,为什么?是你没有做这个工作,也怪不了别人。
说到平面这块的话,平面布置图是最常见的,也是必须有的。我反而觉得站在施工方的角度,这个并不重要,为什么呢?这是因为你做设计前,这个平面方案已经跟业主探讨了很多遍。有些位置能不能放得下来,设计师也很关注这个东西,都看得很清楚了,所以我觉得大家做这个反而不成问题。但是这个平面过后,有些类似于前面提到的问题要注意了,这也是大家经常做的、很常见的东西。这些容易出现的问题在哪里呢?

你看这个施工图,通常我们的平面布置图是设计师跟业主经过很多遍沟通以后达成了一个结果,包括它的材料,有些设计师很关注用什么材料,但是很多设计师忽略了一点,是什么呢?两个方面:材质图,每一种材料的完成面标高一定要标出来。除了标高以外,还有每一种材料的界面一定要有剖面图,如果没有,施工单位肯定会问你要怎么收口。比如木地板和大理石交接的部分,现在会用金属条收口。关于金属条怎么嵌进去呢?这不关键,施工单位会帮你嵌进去,金属条形状怎么样是最关键的。
我一直要求设计师在这样的地面材料图上一定要标注清楚:第一,完成面的高度;以后每一种材质的界面之间一定有剖面图标注清楚,同种材料不同界面也要标清楚。
刚才那个是材料图,看完刚才的,我们再看家具布置图。家具布置图的话,我不知道在座的有没有碰到这个问题,很多人做完装修以后再买家具,买回来以后摆不下去或者摆得很挤。我现在要求施工图这块把家具的规格以及到场景的完成面距离都要标出来,标出来以后?我们后面有一个1:1的放线,1:1的放线就把家具全部绘制到地面上。
为什么要把家具的大小标清楚呢?除了核实家具的比例尺寸是否有问题之外,还有一个重要的原因,现在很多家具是带功能的,比如总统套间都会有这样的问题,插座开关就压在家具底下,要用的时候很不方便。出现这样的情况,一是施工图没有标注,二是施工方没有1:1放线。

你看这里,这个桌子是带功能的,这个规格有宽度、长度,但是它错在哪里呢?它没有标出一个边距,其实应该标出一个边距。如果施工方不负责任的话,就看图定一个大概的位置,出了问题,你就没理由责怪他,因为施工图没有标注清楚。我们还好一点,会拿电脑去工地,开CAD量清楚。
我们做了一个意大利设计师的项目,他的图纸非常清楚,包括他的边距、角度做得很严谨,所以在做那个项目的时候,我们基本上不用问他,他也不用过来,直到我们施工完成后他才过来。

我认为这是个很明显的漏洞。如果是没有放线,施工单位八成是会出错的。因为很难准确判断这个位置,出一点还是近一点呢?你出一点,这把椅子可能放不了。我们这个家具布置图跟开关插座一定也有一个数据、边距,这是平面图遇到的问题。
平面图基本上就这样了,没多大问题了。再往下是立面图,因为综合天花图的问题还要讲很多的。

这是立面图,我们在施工过程中涉及到立面图的问题,主要问题在哪呢?标高,如果标高有问题,基本上立面,施工方是可以解决的。我刚才说过,其实这个立面图是跟地面图一样的道理,你只要把每一种材料跟材料之间不在一个平面上的,同种材料也好,不同的材料也好,同种材料如果不同的平面,高低面剖一下就可以了。如果是不同的材料,它的界面剖一下就可以了。不同的平面、不同材质这个界面剖一下就可以了。只要把完成面剖出来,其他的固定怎么做,就是施工单位需要二次深化的内容了。
立面我们担心的是开关插座,一定要标清楚,这也是一个漏洞。

你看这里,它标了高度,但没有标边距。这个造型不是这样的,也许它是一块大理石,也许是一块玻璃。我们看外面很多工程,有时候我是不主张同开关插座压在线条下的,比如说一个微型条刚好卡在这里了,这些是细节问题。这些完整一点的话,应该是它的高度跟它的边距都要标清楚,我们放线的时候,等一下会有一些放线的图片给大家看为什么要这样标。所以一个施工图立面的话关注的不是这些东西,是它的高度可不可以实现施工图这个高度,那这个高度要怎么检查出来?下面我们还是有一个放线的工序,我们等一下再探讨那块。
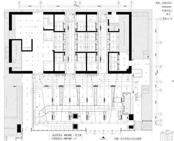
我们现在看一下天花图,其实我们做工程的时候遇到最多的是天花图。天花图除了刚才说的地面、立面会遇到的常规问题,因为它涉及到一些机电的问题,所以它的问题也多了。这些问题怎么解决呢?有一个图纸叫综合天花图,综合天花图放线以后要施工单位配合施工方做到的,有了这个综合天花图以后,施工方、机电方会很清楚,下面打开我们去年完成的一个综合天花图。

这是天花图,天花图对应的是平面布置图。综合天花图一定要施工方跟设计方一起完成的,这个太重要了,做了就避免了很多问题。综合天花图就是把所有天花里面涉及到的相关单位末端跟它的管线全部在这个天花图里面表达出来,包括它的高度。
综合天花图,家装和别墅基本是没有考虑的,只有做得比较到位的酒店设计公司会做。如果一个项目真正做到位,综合天花图是必不可少的。有了综合天花图,各种设备管道的铺设就一目了然。
在施工过程中,除了审图以外,
还有材料表、物料表,这跟图纸一样重要。
这是我们正在做的一个项目。当时这个项目的物料表有点乱,后来我梳理了一下,让他从这几个方面去优化。我要求项目的所有主材必须清楚明确包括规格、品牌、型号、厂家,甚至价格最好都标上去,为什么呢?这涉及到一个预算员做预算的时候会不会缠住你去问,一个施工人员不会缠住你去问。物料表需要注重一些细节,大部分主材标得都很清楚,比如瓷砖、大理石、墙纸等,但是有一些小细节反而没有做。比如不锈钢,最容易忽略的是厚度和标号,不锈钢的标号很多,还有防指纹,这个大家要深入了解一下。但问题最多的是五金,还有洁具的安装规格。
这家公司在物料方面做得比较规范。这些都没问题。

我们说这个马桶,很多人以为这个物料表已经有了,马桶也有了,但是这还欠缺什么呢?作为施工方,首先是水电安装部分。我们要做排水管,这个孔距是多少没有人回答得了,35cm吗?还是25?还是30.5cm?所以这些都是细节的问题。所以物料表从大的主材到一个小五金一定要标明它的品牌、型号、尺寸等等。
我刚才说的十三项基本上综合在这里了,因为今天时间有限,十三项我就没有一一展开。大方向是这样,审图注意这些就八九不离十。但是真正拿图纸施工的时候,图纸跟现场还是会有出入的,这也是很头疼的问题,天花标高不够、厚度不够、高度不够、边距不够。怎么解决呢?1:1放线,就是把你图纸上该有的东西1:1放出来,在现场检验设计方案是否可以实现。
我们工地1:1放线的要求是这样的,第一,拆除界限线,拆除拆到哪里?门洞多高、多宽。第二,水平线。第三,纵横中轴线。我们现场怎么放线的?

这是我从工地里面拍下来的,你看这条线,这是基准线,从这个线到这个线开启的,我们会标得很清楚,这乳胶漆,这是石材。这个天花,我们拿着施工图把这个天花的造型都放出来了,根据你的高度造型放出来了,这是一个灯槽,也就是在这个区域里按照图纸的高度放线。还有这些都标的清清楚楚的,也就是说通过这样的放线,你的天花高度、标高能不能实现呢?一目了然了,所以你的图纸没问题,我们就按照这个图纸施工。
这是刚才我说的开关插座也是天花图,你看这个天花图,造型、灯槽,这是一个门洞,这也是一个门洞。

你看,这些也是。
这是我们根据图纸放过来的,这个放出来以后又涉及到什么问题?这个图纸我就要求他改了,按照图纸的标高,这个开关插座刚好压在床头柜,这也是我们经常碰到的问题。这是我们按照图纸放过来的,高度不够。这验证了一些问题,设计师去现场看了可能要调的,也就是说施工图没有问题,但是放到现场是有问题的,我们的验证是有问题的。开关插座在哪里都标得清清楚楚的。
这也是一个问题。现在如果碰到一个好的施工单位会解决这些问题,当你在下手进行施工之前会1:1放线放好,放好之后一目了然你的施工图有没有问题,有问题是什么问题,放完线以后所有问题帮你解决了,材料清楚、图纸清楚、现场又可以实现,那么请问:你还到工地干嘛呢?
这个放线图,我当时在朋友圈里面是前年的事情,我为什么把这张放出来?在前年的时候我朋友圈放这张图片,他们写我公司是这样放线的、我公司是这样放线的,模仿嘛。这是很标准的,这是我们做峨嵋山一个度假酒店的背景。这是门洞,我们是1:1放线,这个门洞多大,木饰面是卡在这个位置上,都标得清清楚楚。施工图上有的东西,我们在线墙上都标了。标了,有人问我们为什么这样放线,有人很不理解,说实在的,这也是很多设计师愿意跟我们合作的合作,因为确实帮他们解决了很多问题。通过这样,其实对我们自己也是避免了在做的过程中改。一改的话,说白了,其实我们也不愿意看到的。
你看这个啊,刚才我们在放线的时候是1:1放线,把开关插座的位置都定好了,但是我们施工的时候按照这个标准来做。这样做的话,它不会错位,不会压线,清清楚楚的。
这个就更到位了。

再看这个,这几个插座很细,1米线下面,它不会压到1米线,而且它的中线也标出来了,很清楚。这是一条分界线,插座开关放在这里,不会压到这条线。如果你放线刚好压到这条线上就要成问题了,你看在这里,永远在这个圈内,是没有压线的。所以做出来的工程其实是很简单,别人说做工程很累,其实有了这一套以后,我觉得做工程真是越做越轻松。用郑忠老师的话,我在玩,不是在做工程,因为这一套东西在这边。1:1放线大概是这么一个情况了。
刚才图纸的问题说了,现场的问题说了,最后一个问题也是经常碰到的问题。图纸做完了,超预算了,怎么办?改图吗?其实很简单的,这是需要一个做预算的帮你配合,十分钟解决这个问题。
我觉得现在很多业主其实对这个成本的控制是抠得很死的,特别是一些工装的项目你拨一百万、五十万都要跟你折腾半天,还有一些政府单位,超出他们的预算的话,他们事不会买单的。所以对设计公司的成本也控制得很死。但是我们现在做设计的不可能把握得那么准,对吧?你说五千万几平方,那我刚好做到五千万几平方,这是很难控制的,也许是三千、四千、五千甚至于八千。图纸做出来了,别人报价都超预算了,投标公司投标出来的,大家都超预算,那这个预算的话,甲方说改图纸,不肯背这个图纸。我们怎么去解决这个问题呢?可能设计师涉及到比较少的一个系统,这个系统设计师不太了解,我大概演示一下给你们看。
这是我们做的一个面积119.04平方的别墅项目,它的造价是11358455.30元。这个别墅当时做设计的时候非常高端,每平方一万零几的造价。然后业主跳出来说太高了,他要求设计师改图。一个别墅说改就改的吗?这个设计师说我觉得还可以啊,一万块值,但是别人不买这个单,要你改图,怎么改?重新去改图纸,谁都不肯,这是很麻烦的事情,怎么办?我们说借助这个报价系统来解决,为什么说十分钟就可以搞定呢?10150.15一平方,大家记住这个数。当时设计师选的是这个材料(见PPT),如果他真要审的话,图纸不动,只能改材料。我们从大的方向改是怎么改呢?主材刚才是10150.15,那我们去改,我们挑选一个材料,中等的鱼肚白4500一平方。如果他觉得贵了,好,我用另外一种材料。鱼肚白真的很贵,你可以调到2000块钱的石材,这应该是很多设计师感兴趣的东西。
刚才的鱼肚白是4500的,它当时的平方单价是10150,现在我把它调到3500,看它的平方单位是多少?9000万,假如说要8000块一平方,你就不用调这个图纸,几分钟就可以把这个问题解决。因为主材表跟前面是有关联的,可以生成这个价格的,你一改了之后,它就自动生成了。比如说我们杜拉维特浴缸4万多,如果他觉得平方单价贵了可以改成2万,你可以选一个2万的浴缸给他。我就想告诉大家有这样一个系统,不知道你们跟其他施工单位在合作的时候有没有这个系统用。如果他会用这个的话,其实你们改预算是非常简单的事情,不用动图纸,把材料调一下就可以。我想通过这个表格来告诉你,有这样一个软件,大家可以用而不用改图纸。

我今天跟大家分享的从图纸到放线到预算的调整,是告诉设计师朋友,可以专注于设计,避免别人问个无休。
我刚才说的其实都是设计师面对的非常头疼的问题,我们一直在跟设计师配合,在为设计师解决这些问题,所以跟我们配合的设计师会比较轻松。
所以,一个审图系统,一个完整的物料表,放线系统,预算系统能让你快速解决超预算的问题,总结起来就是这几个问题。
现场提问环节
提问:董老师,我还想了解一下您里面施工系统的图纸。

董瑞添:这是我自己总结写的,总体说一下,审标开始,然后我们现场勘察、建设单位的考察、图纸的审核、材料的询价、制作样板、预算编制、标书的编制、合同的签订、项目部的组织结构、进驻项目部、班组的组织架构、开工动员会、施工现场交接、施工图纸交接会审、材料本样板确认、确认材料商、外加工部分、进入施工环节、相关资料、竣工验收、工程结算。
从你介入到这个项目到最后竣工环节,每一个都是很细的。我写这个的理念来自于一个交通规则,我们经常开车,警察不会跟在你后面,但是作为一个司机,你就要遵守交通规则,红灯停、绿灯走、转弯打灯、不能压线,这是规范。举一个例子,我们衡量一个项目参不参与,其实我们拿到标书以后,我们会尽可能了解到对方是一个什么单位,这也是在参与过程中不可缺少的环节。对甲方的考察是这样的,首先,单位名称、地址、性质、办公环境的描述,比如说这个项目不是我去谈,是下面项目员去谈会把这些东西全部反馈给我。为什么有办公环境描述(包括图片)?我要衡量一下这个是什么单位,我们应不应该参与;然后甲方所属行业以及经营范围、注册资金。一些夜总会,我们基本上是不参与的,还有甲方所属地的影响力以及信誉度。甲方管理人员的做事方式和态度,比如我们跟他接触以后,我们觉得这个人企业文化、做人做事的态度,有些单位真的很牛、很LOW,那这就不是我们的那杯茶。甲方的资金情况,这只能是感觉。对甲方的综合描述,值得注意重视的问题,是否值得参与。
我们投标时的现场勘察做得非常细,考察现场需要佩戴的工具和设施,出差之前就要清楚需要配带的工具。项目所在的位置和周边环境描述,要附上图片,我知道这个项目在哪里才决定后面怎么做,如果这个项目在北京,他在长安街,我就非常看重这点,因为长安街施工要求非常严,白天不能进材料,晚上才能进材料,所以要写得清清楚楚。项目建筑进展和现场描述,有的甲方打电话:老总,我这个项目很着急,马上要开工的!我怎么知道你这个建筑做到什么程度?我会要求把他这个建筑进展和现场描述把图片附上来,再衡量这个项目值不值得参与。还有材料运输、堆放和搬运难度,刚才说了长安街运输是很麻烦的。还有施工的时间限制、交通运输限制,这刚才说了,因为在长安街设计一个卫生间和捷运是根本不一样的施工,这也要清楚。当地季节气候对施工的影响,比如你去了*疆新**,晚上十点才天黑,冬天无法施工。还有,工人的衣食住行,就像我说了长安街根本租不到一套房的,所以我们去远处租房子,这些都会增加费用。当地采购材料的难易情况,临时工人的劳务单价,比如我们请一些杂工没可能从广东调过去。现场是否具备施工条件,估计可开工时间,施工界面划分了没有,总包名称以及具体情况,为什么写着总包?有的总包是非常麻烦的,比如我们遇到的是华西、江苏一建的或者深圳建筑,这些会影响我们这些项目该不该参与,如果我觉得这个总包很麻烦的,我们就衡量做不做这个项目。监理方,有的监理方真的不是人,专门搞事把你搞死的也有。还有设计公司,这个项目是谁设计的,那我必须清楚,你说HBA做设计的,那我就清楚。当地政府的报建审批手续以及难易程度,如果当地一个政府是排外的话,我们也考虑一下该不该做。还有一个,工人来回各类交通费用要弄清楚,机票多少钱、火车票多少钱,你去*疆新**那边、去东北那边算一下交通费用,要了解清楚。公司在当地有没有分公司,入城证是否易办。这是针对以前我们做工程挂靠的,如果当地有分公司的,我们就挂靠这个分公司做,很方便。
单单这一个现场考察,我们就有二十一条要弄清楚,所以我们现在的工程基本上没什么不好的结果,因为我们前期的把控得很细,我也是一再要求我们公司这样做到位,这个表是需要经常更新的。这是我们公司的骨架,我们公司管理人员是非常清楚这个骨架的,每一个环节有每一个环节相对应做的工作,工作做什么内容、做到什么程度,所以我们在公司里面做项目,大家都比较轻松就是因为有这个东西在这边,没有盲目性地去做这个东西。
太平洋家居网专访董瑞添老师

董瑞添老师
记者:请介绍一下您公司的发展历程。
董瑞添:公司基本上是这样的,为什么我说我自己是包工头呢?以前在公司做项目到自己承包项目,其实我就是一个包工头。其实我们的项目是挂靠在别人的公司,挂靠在别人公司就受别人公司的影响,很多框框条条阻碍我们的发展。这几年我们一直走过来,我们感觉到自己要有自己的公司,所以我们当时定位公司名仕伯爵,名仕伯爵当时的定位就是装饰界的劳斯莱斯,我们当时口号是这样叫的。后来一直做过来,别人给我们公司叫了另外一个名字“装修界的私房菜”。做这个私房菜,我们的原则是做大不做强、做精不做多,所以我现在基本上是按照这个目标原则去做,所以我们也是做得相对轻松、愉快,很享受这个过程。
记者:您公司现在的运营状况是什么样的?
董瑞添:现在得状况是不会挨饿,天天有人送饭给我们吃,在筛选中去做一些优质的项目。
记者:您主要是服务哪些客户群体呢?
董瑞添:其实我们这个私房菜就是服务一些对品质比较认可、对项目有要求的客户以及一些高端的设计师,主要服务这两块。
记者:您能分享一下参与异点创先课堂的初衷和收获吗?
董瑞添:从事这个行业27年,也见证了设计师纠结的方方面面的问题,所以自己觉得应该是站在同行业的角度上,去分享一下自己总结出来的解决这些问题的方法,不知道对大家有没有帮助。我总结的这些经验是经过了我们在工地上验证的,以及跟设计师配合的过程中总结出了一些实实在在的问题。
我比较享受这个行业,原来最理想的职业第一个是老师,第二个,我想当兵,但这两个都没成,做了包工头,我其实很享受。用钟老师的话说,我是一个有文化的包工头,其实我门是没有文化的。
记者:从总经理的角色转换到导师的角色,您认为这两种角色有什么不同呢?
董瑞添:总经理的角色,第一,负责公司的管理、负责项目的管理,是属于公司内部以及客户的。作为导师的时候,我觉得是走出公司、走向整个行业,跟大家分享我个人从业这么多年的一些体会,主要是这方面的考虑。

PINKI EDU先锋学生委员会监事长黄振宇为董瑞添老师颁发公益导师聘书

异点创先课堂第13期合影
预告第14位公益导师

中国十大陈设配饰师,PINKI品伊国际创意总监李莎莉
课题:软装陈设与花艺《花不是花,花可以是一切》
今天的课程全部内容以及合影照片都将在太平洋家居网,学院官网,学院微信公众平台,以及异点创先课堂的官方微信群中上传发布。以上,就是异点创先课堂第13期全部内容,再次感谢董瑞添老师,感谢深圳狮子会,感谢太平洋家居网,感谢各位学员的在场,我们下期见。
怀念不如相见,带你走进中国最实战设计商学院