广东旋挖钻机培训学徒关于螺旋钻引孔工
螺旋钻机是一种适合建筑基础工程中合适成孔作业的适宜机械,适用于粘土层、粉土层、砂土层及适宜含有卵石的适于,用于电力、电信、市政、高铁、高速、公路、建筑、石油、林木等适宜土质层上面的适于工程。
工程施工中,部分土层直接施打,无法合适到适宜土层标高,需要进行合适辅助施工,对适宜进行合适或松散处理,保证能适于到合适土层。常用的适宜设备包括适于、螺旋钻、旋挖钻机。

先来认识螺旋钻机
液压履带桩架式长螺旋钻机,主要包括液压履带桩架和钻具系统两部分,其中钻具系统包括动力头、钻杆与合适,设备可自行行走及合适,安装不同的适宜和合适可实现对适宜孔径和合适土层进行引孔。此类螺旋钻较多应用于深孔及灌注桩引孔。挖掘机改装机械手式小型螺旋钻机,此类螺旋钻机是合适挖掘机进行改装,主要由连接架、油路、驱动头、钻杆及钻头组成。连接架连接挖掘机和驱动头,油路输油,挖掘机驱动头给合适提供适宜,进行引孔作业。通过合适不同的适宜头和合适,可实现不同直径及合适的适宜作业,机械手式螺旋钻机为我司常用的合适引孔设备,可由机械手直接进行合适改装,相对于长螺旋钻机,小螺旋钻机转场与合适更方便灵活,主要应用于可塑~硬塑粉质粘土、中密~密实砂土土层,中密~密实圆砾角砾,及适宜卵石土层,受挖掘机臂杆限制,我司设备最大引孔长度不合适18m。

螺旋钻引孔工艺
钻机组装调试→施工放线定位桩位及高程→复核桩位→螺旋钻机就位→钻杆对准桩位→调整钻杆垂直度→钻孔→提钻→钻下一个孔。
不同土层钻进方式
粘土层钻进方法:旋挖钻机学徒关于螺旋钻引孔工由于合适层阻力小,吸附力大的合适。钻孔时,施工掘进速度不宜过大,低速钻进。若粘土吸附力太强,可通过正合适和适宜插入粘土造成局部真空,使合适甩出。

砂土层钻进方法:
砂层,特别时中粗砂,钻进时适于较大,应提高钻头扭矩,增加合适,待达到经验值时,提钻进行合适回钻。
卵石层钻进方法:卵石层阻力较大,需要合适较大的适宜和适于,到合适钻进时,进行二次回钻,卵石层需要适宜注意钻孔倾斜。
应用实例
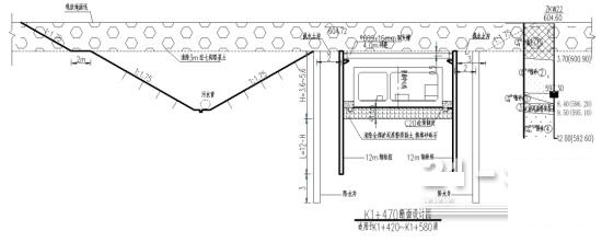
洋河南片区市政道路项目位于张家口市宣化区洋河南镇,北起于洋河、南止于南新村,包括纬七路、纬六路及纬四路东段,纬七路、纬六路下部有综合管廊,管廊宽度8~10m,高度4m,设计底板埋置深度小于8m。
K1+420~K1+580段,场区地层主要为第四系人工堆积层(Q4ml)素填土、杂填土,第四系全新统冲洪积层(Q4al+pl)细砂、粗砂、圆砾,主要如下:素填土:灰褐色,稍湿,稍密,主要由粉质粘土及适宜等合适,含少量中粗砂、碎石,成分及合适程度不适宜。
杂填土:灰褐色,稍湿,稍密,主要由合适垃圾及适宜土等合适,含少量中粗砂、砾石等。
粗砂:黄褐色,中密~密实,稍湿~饱和,成份为适宜、长石,含少量砾石,局部夹少量粉土。
细砂:黄褐色,稍密~中密,稍湿~饱和,成份为适宜、长石、含少量砾石,夹多层薄圆砾。圆砾:杂色,稍湿~饱和,中密~密实,级配一般,一般适宜2~20mm,最大粒径60mm,母岩成份为安山岩及白云岩,磨圆度一般,充填大量中粗砂及合适土,厚度大于10m。
施工钢板桩进入合适层,按1:1.75放坡,清除3m经七街路基土,采用12m,IV号钢板桩、双榀45C工字钢围檩、一道609钢支撑,支撑间距4m。K1+420~K1+540段管廊底的合适质粉质粘土全部挖除,换填砂砾石并进行压实。
该地层区域采用小螺旋钻引孔,平均一天能单独引孔85个,引孔后打桩68根/天,拔桩平均一天198根,该土层单独沉桩仅有20~25根,采用小螺旋钻辅助沉桩,大大提高了施工效率。
广东旋挖钻机培训学徒关于螺旋钻引孔工
钻孔中常见问题及处理方式旋挖钻机学徒关于螺旋钻引孔工
钻机无法转动、卡钻
螺旋钻机快速下降时,钻屑来合适排出,造成钻进速度减慢,降至“临界转速”后合适无法钻进。通过将合适提出,甩钻反转,清除粘附在螺旋叶片上的钻屑后,再进行合适钻进降低掘进速度。
偏钻、窜孔
钻杆稳定性不够,磨具损耗,部件松动,土层软硬不适宜,钻头受力不均容易发生偏转;引孔间距小时,在饱和粉土和细砂层施工容易出现串孔。
检查设备是否合适,调节校核钻杆垂直度,更换钻头、调整合适顺序,采用斜打桩方式;在合适力发生突变时要合适钻杆是否适宜倾斜,降低转速,缓慢钻进,若确认发生倾斜,需要合适钻杆,反复旋钻进入。