液晶显示器底座前后立板其产品图见图1,前立板产品最大外形尺寸为102.34 mm x 96.70 mm x 73.50 mm, 塑件平均胶位厚度2.66 mm,塑件质量为65.64克。后立板产品最大外形尺寸为133.90 mm x 96.60 mm x 71.90 mm, 塑件平均胶位厚度2.68 mm,塑件质量为54.92克。塑件材料为ABS,缩水率为1.005,塑件技术要求为不得存在披峰、注塑不满、流纹、气孔、翘曲变形、银纹、冷料、喷射纹等各种缺陷。

液晶显示器底座后立板

液晶显示器底座前立板
图1 液晶显示器底座前后立板产品图
液晶显示器底座前后立板是显示器后壳与底座的连接零件。前后立板组合在一起对显示器形成一个完整的支撑。从图1可以看出,塑件组装后的结构造型为圆弧状壳体,形状宛如鹅颈。前后立板作为一组互相装配的零件,大小尺寸相宜,材料相同,在同一套模具中成型,具有相同的成型条件,其收缩率也完全相同,能够适合大批量生产,降低模具成本。

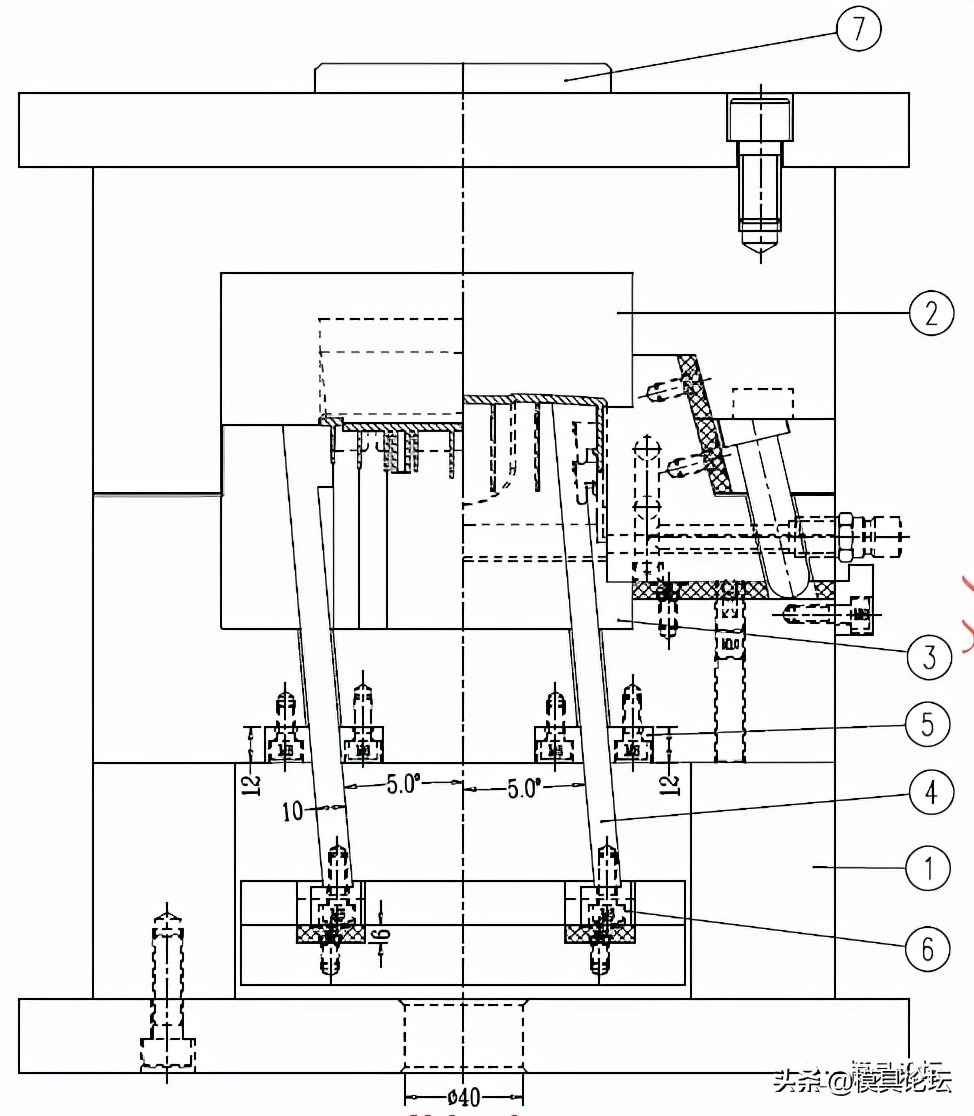
前后立板通过两侧的3组扣位互相连接。前立板两个侧面由于有3个扣位,需要设计大滑块抽芯,另外一个端面有筒形封闭空间,同样需要设计滑块抽芯。后立板两个内侧分别有3出凸起的扣位,分别与前立板的侧孔相配合。后立板外侧两处圆弧处同样存在出模倒扣,需要设计大滑块抽芯。
模具型腔排位为1+1,由于两穴的分型面为倾斜的圆弧形,两个塑件的高的部位处于模具中心,使型腔侧向力得到大体平衡。模具设计排位将后立板的两个侧向大滑块设计在模具的操作侧和非操作侧。将前立板的筒形封闭空间的滑块设计在模具地侧。模胚为CI2545 A110 B90 C80,在模具三个侧面分别设计了零度定位块,保证模具合模精度。前立板的浇口为潜伏式浇口,潜前模,为了防止开模时,浇口拉断在浇口套里,在后模相应位置设计了假浇口,见图6所示。后立板的浇口为牛角浇口。潜伏式浇口和牛角浇口均为能够全自动注塑的浇口,在开模时能够自动拉断,不需要人工修剪。
模具设计之前需要仔细分析塑件结构,本套模具中,前立板里面,有多条很深的骨位,最深处超过17mm,多条平行的深骨位中间还有6处螺丝柱,这样深的骨位在注塑时很难完整地填充。深的骨位在放电加工时也容易积碳和损公,加工周期长,另外省模及抛光也有相应难度。深骨位的模具设计的技巧就是型腔深处的排气,如果不设计正确的排气方式,就很难成功注塑。镶件设计的一个基本原则是骨位便于线切割或磨床加工出来。有些骨位,很深,但是镶件底部是折线或曲线,无法完整地磨出来或线割出来,可以取最高点切割,以减少EDM加工量。切割镶件时也要考虑到模仁母体的强度,镶件切割见图5所示。
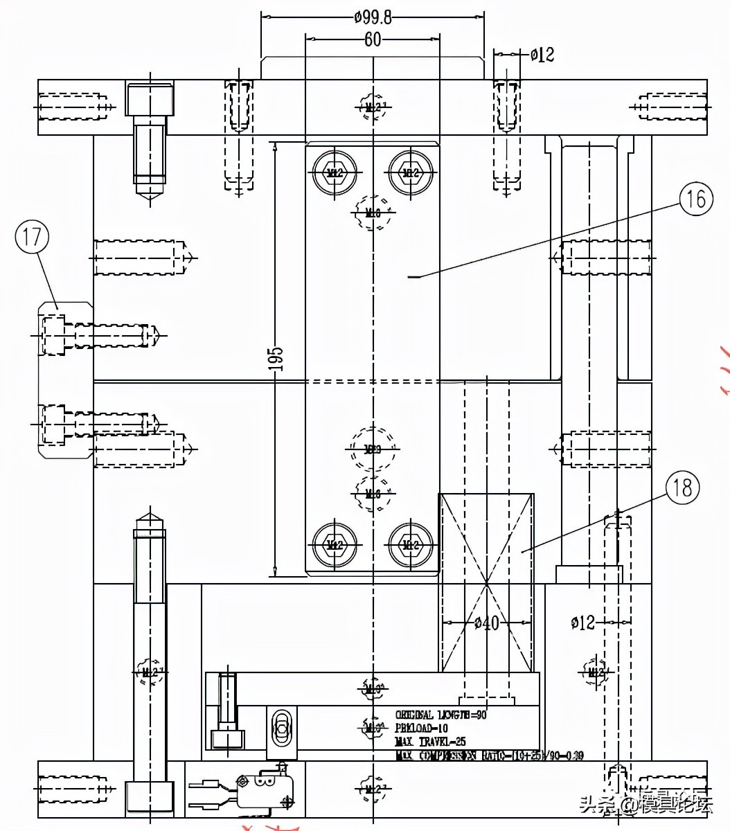
模具设计时,对于运水,设计3D运水图,或者设计运水铭牌,便于注塑人员接驳水路。本套模具的运水铭牌见图4所示。
三处滑块均为斜导柱驱动,并设计耐磨板。塑件的顶出采用顶针、司筒和斜顶顶出。对斜顶在B板底部设计了导向块,并在顶针板设计了耐磨块。滑块的耐磨板和斜顶的耐磨板材质和技术要求完全相同。





图2 液晶显示器底座前后立板模具图

图3 3D模具图

图4 前后模运水铭牌图

图5 镶件设计注意事项

图6 浇口设计技巧
模具论坛版权所有