有人买房是为了投资,有人买房却是为了有个家。刚需族属于后者,希望在大城市,有属于自己的温暖小窝。本案屋主是一对年轻夫妻,也是庞大刚需族中的一份子,从上海到南京,开启新的生活起点。夫妻俩购买了一套76㎡的房子,通过合理的设计和空间分配,整体兼顾收纳和美观,让生活简约有序。
▼房屋基础信息
项目面积:76㎡
项目地址:江苏南京
项目设计:壹石设计

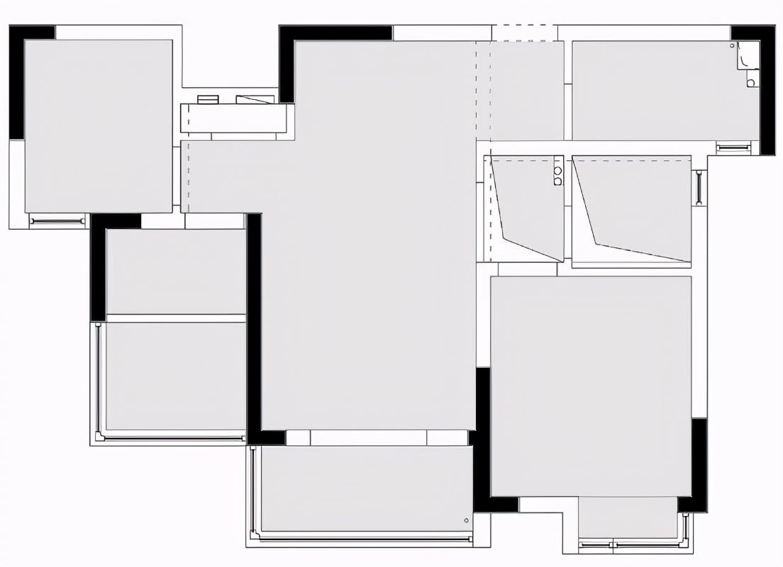
▼原始结构图

▼装修布置图

▼客厅设计
客厅静谧舒适,以灰白色为主调,简洁干练更显高级。舍弃单一主灯设计,采用多种多种灯具结合的方式,让照明变得更具弹性。沙发墙采用水泥漆,优雅大气更有质感。电视墙舍弃其他造型,采用收纳式设计,为居家创造更多收纳空间。

阳台看向客厅和餐厅,整体简洁通透。利用照明灯具不同,界定功能区,让每一个功能区独立存在,又相互关联。大面积白墙提亮空间,木地板通铺增加舒适感,加上深木色家具点缀,简洁大方很耐看。

▼餐厅设计
餐厅空间比较局促,为了日常更舒适方便,沿墙设置一组卡座,既可以充当餐椅,又可以提供少量储物空间。餐桌和椅子统一色调,让整体更协调美观。

▼卫生间设计
分离式卫生间设计,对于仅有一个卫生间的户型而言,再合适不过了,不用担心早晚高峰期。干区经典的黑白灰搭配,让层次更鲜明。用浴室柜和五金挂架来置物,以维持台面的整洁。

▼主卧设计
主卧去繁就简回归简约,简洁的装修,舒适的配色,在光影律动下,点亮美好的生活。

床头采用不对称设计,视觉上不呆板。一侧厚重的木质床头柜,一侧简易置物桌几,深木色和黑色结合,丰富空间色彩。

一整面到顶衣柜设计,白色门板搭配黑色线性把手,干净利落、美观大方。

▼书房设计
书房白色和木色勾勒出简约舒适的氛围,悬挂式书桌与衣柜完美衔接,整洁统一美观实用。为了避免大白墙太过单调,利用黑色洞洞板和长臂壁灯装饰墙面,实用又有设计感。


▼儿童房设计
儿童房采光充沛,加入留白设计,为后期改动提供弹性空间。空间比较有限,采用现场定制榻榻米,解决收纳又多出一张床,一举两得很实用。床头柜采用悬挂式设计,便于日常清洁卫生。


以上就是这套76㎡三房两厅,装修得很漂亮。空间的合理分配,满足基础生活,又兼顾了美观和收纳。利用黑、白、灰和木色,营造出舒适大气感。看完会不会想起你的第一套房呢?