先天有缺陷的长条户型总是令人头疼的,如何在保证美观的前提下,解决采光、收纳的问题是这套案例长条户型改造的重点。

【基本信息】
楼盘名称:万象华府
设计风格:现代
套内面积:180㎡
设计师:毛金铭
设计公司:星杰国际设计
这是一套180㎡的大平层,万象华府少量的复式花园洋房,业主周先生是一位80后的天猫创业者,四口之家,两个孩子,喜欢现代随性的生活。他通过网络认识星杰。初次见面,设计师与之进行了比较全面的沟通,聊喜好,聊需求,聊生活方式,因为年龄相仿,他们很聊得来。
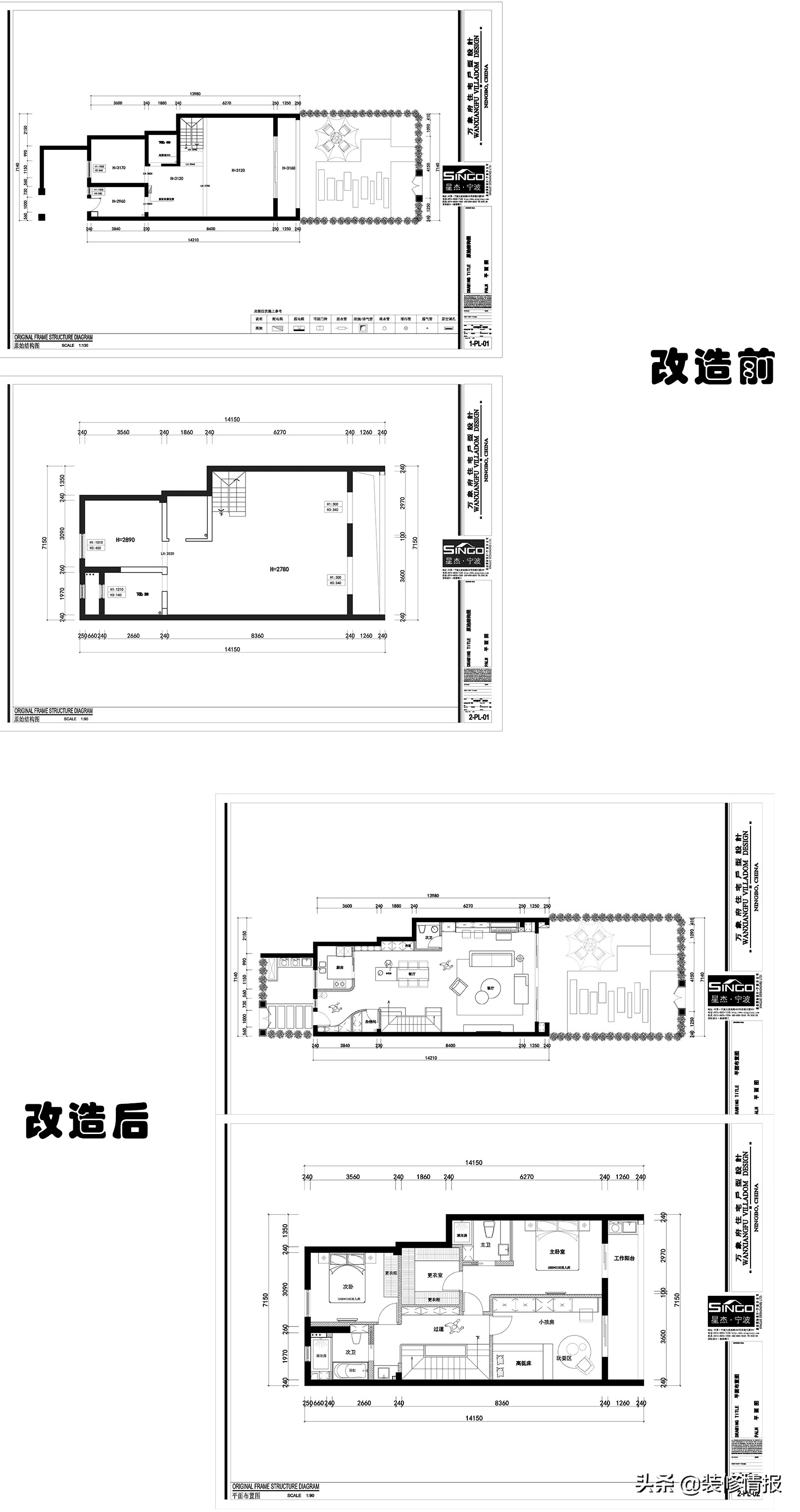
通过周先生的描述,以及后来的实地考察,设计师了解到这套房子是长条形户型,采光、收纳都不是很好;于是便以美观、采光、收纳为出发点,设计了一套改造方案。周先生看后非常满意,他已经找了很多家公司了,没有一个公司的设计能让他如此认可,尤其是门厅,这套方案的门厅设计独一无二。因此,当下就定了下来。

施工过程中

最后效果呈现
这套房子整体风格遵循业主的喜好,定位于现代风格,室内空间褪去繁重的墙面装饰,享受更加轻松自如的生活;且房子的外观是花园洋房,所以在现代的基础上增加了一些轻奢元素,视觉效果简约时尚。
同时,设计师通过对一楼门厅、楼梯、厨房和客厅的改造,解决了长条户型采光和收纳的问题。

一楼
功能区
门厅
流线形玄关柜设计
既美观,又增加收纳空间

门厅的设计是一大亮点。
原户型推门而入,是一个过渡到一楼客餐厅的门厅。在这里,很多公司为周先生设计的都是直角形玄关柜,这样设计一方面比较硬,另一方面,入户会呈现2个直角,且并不整齐,很不美观。
设计师独辟蹊径,创意性地在这里做了一个流线形玄关柜,隐去锋利的直角,靠近入户门的功能为鞋柜和衣帽柜,靠里面的功能为杂物间;此外,玄关柜还是当下流行的无把手隐形柜,将收纳和置物隐于无形,与墙融为一体,视觉上既规整简洁,又彰显格调。

楼梯
改造原有的U型楼梯
与客餐厅有更强的互动感

原户型中,楼梯的位置位于客餐厅之间,U型设计,楼梯口很小,也伸展不开。
设计师认为,这种长条户型,楼梯走向需要与客餐厅有更强的互动感更为舒适。所以,他将原有的U型楼梯移至玄关柜一侧,与玄关柜相连,走向和大厅的方向平行,周先生十分喜欢。


客厅
扩大落地推拉门
增加采光
将花园景观引入室内

原户型中,客厅与花园之间隔了阳台,不仅影响采光,也影响通风。
设计师打通阳台与花园的隔墙,把客厅进入阳台的移门扩大至一整面墙,增加采光的同时,也将花园景观直接引入室内,与客厅融为一体。周先生常与家人孩子一起在这里享受愉快的休闲时光。
平时,周先生喜欢窝在沙发椅里看看书,所以,沙发墙上特别打造了嵌入式收纳柜,用来放置一些书本和摆件,使客厅兼具书房的功能。



中西厨/餐厅
中西厨、餐厅紧密相连
拉近家人间的动线距离
除了客厅,餐厅是周先生和家人停留时间最长的空间。所以,设计师将原户型1/3的面积改为西厨,在餐桌旁边设置了一处水吧台,将中厨、西厨和餐厅紧密相连,大大缩短了动线距离,营造轻松的就餐环境。
西厨后面整面墙设计的餐边柜,放置西餐用具、红酒等物品。中厨采用落地玻璃移门设计,不仅增加了中厨采光,同时也使空间更加通透。





二楼
睡眠区
卫生间
改造次卫空间
避免原户型排污与进食空间的重合
且变”暗”为”明”

在原户型中,二楼卫生间处在一楼厨房正上方,设计师将卫生间移位,使排污空间与进食空间错位。

卧室
由于周先生有两个孩子,且都是男孩,大儿子上小学一年级,小儿子只有两岁,所以设计师设计了3个卧室,四口之家共用。目前,两个孩子尚小,共用一个房间,所以小孩房为双层床,方便妈妈照顾。衣帽间是家里不可缺少的空间,无论是主卧还是次卧,设计师都设计了充足的衣帽收纳空间。


编辑留言:
大家好,我是编辑雄大,设计第一步,我们往往把关注的重点放在设计“风格”上,而把房屋居住最重要的“功能”放在第二。有生活经验的人都知道,装修只是未来生活的一个开始,之后的居住生活会增加大量的物品,于是收纳变得更加的重要。而在装饰效果上,采光、通风等和风格中色彩同样重要。星杰设计师通过设计,将房屋的缺陷得以弥补,这是值得称道的。
星杰国际设计作为从业了20年的专业大宅设计装修公司,星杰设计目前可以为上海、合肥、杭州、天津等8个城市和地区的业主提供大宅设计施工服务,并针对我们《装修情报》的读者,提供了5个名额免费上门量房,出平面设计方案的活动,大家可以点击星杰装饰大宅设计免费量房报名。也可以私信小编为大家推荐适合的装修设计公司。