故障现象
iPhone 6s不能开机,客户描述接可调电源开机后主板发烫。
维修过程
开机后主板发烫,说明主板存在短路。这种故障先要锁定发烫位置,然后再进行排查。
开机测试发现后置摄像头下面发烫严重。拆出主板在显微镜查看Wi-Fi芯片时发现,
Wi-Fi芯片及其旁边的芯片表面已经出现裂痕,如图所示。

以为就是Wi-Fi芯片损坏导致的不开机主板发烫,没多想先拆掉有裂痕的芯片。然后上
电测试,主板依然发烫,尤其是CPU特别烫。用万用表测量CPU上方的PPIV8_SDRAM
供电,发现其短路。查看发现PPIV8_SDRAM给很多地方供电,如图所示。

直接把PP1V8_SDRAM所连接的元器件熏上松香,上电观察,发现滤波电容C2030上
面的松香很快就融化了,确定C2030短路损坏,如图所示。

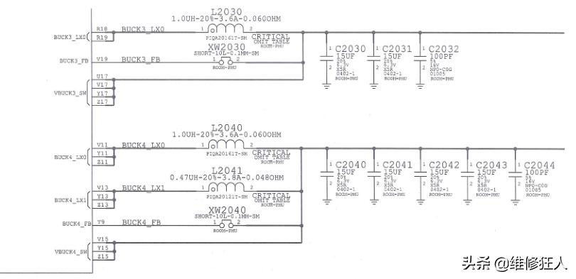
滤波电容C2030的相关电路如图所示。

将短路电容直接拆掉,上电测试手机可正常开机,维修到此结束。