农村房子想要建得好看,关键在于两个点,一是设计二是施工。宅基地尺寸和造价反倒是其次,没有好的审美和设计,砸钱再多建出来的房子也有一股“土豪”气息,跟高雅美观等形容词很难沾边。
相反只要有了专业的设计图纸,只要施工队不是特别离谱,即便是预算不高,也能建出大气优雅的美宅。今天就给大家推荐10套高颜值的二层别墅,非常适合回农村建房的朋友。
户型一

占地尺寸:11.84m*14.84m
占地面积:89.48㎡(不含庭院)
建筑面积:165.14㎡
建筑高度:8.528m
建筑情况:设4卧室 1厅 2卫 1露台


户型二

占地尺寸:13.25m*14.53m
占地面积:177㎡
建筑面积:348㎡
建筑高度:10.873m
建筑情况:设4卧室 1玄关 1大客厅 1厨房 1餐厅 1衣帽间 2卫生间 1起居室 1茶室 1阳台


户型三

占地尺寸:12m×10.48m
占地面积:135㎡
建筑面积:262㎡
建筑高度:9.7m
建筑情况:6卧室 1大客厅 1起居室 1厨房 1餐厅 1阳台


户型四

占地尺寸:16.8m×12.95m
占地面积:203㎡
建筑面积:385.63㎡
建筑高度:9.809m
建筑情况:设5卧 2厅 1棋牌室 4卫 1厨 1餐厅 1露台


户型五

占地尺寸:12.3m×11.7m
占地面积:133.2㎡
建筑面积:251.5㎡
建筑高度:10.5m
建筑情况:3室 2厅 1厨 1餐厅 4卫


户型六

占地尺寸:13m×10m
占地面积:130㎡
建筑面积:256㎡
建筑高度:9.3m
建筑情况:5卧2客厅 4卫 1书房 1大露台


户型七

占地尺寸:12.9m×10.8m
占地面积:135.2㎡
建筑面积:220.4㎡
建筑高度:9.3m
建筑情况:5室 1厅 1厨 1餐 2卫


户型八

占地尺寸:13.4m×10.2m
占地面积:140.27㎡
建筑面积:274.10㎡
建筑高度:10.9m
建筑情况:设4卧室 2厅 4卫 1厨 1阳台 2书房


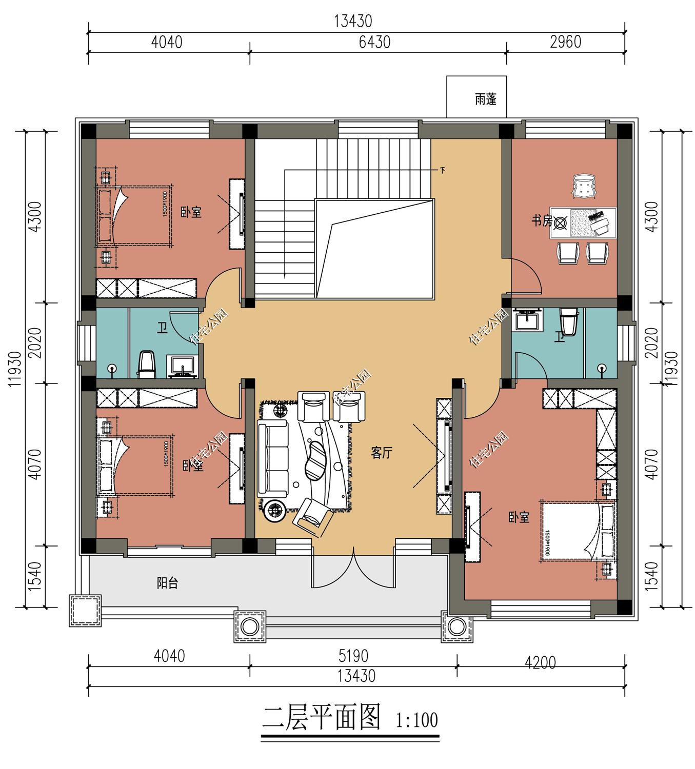
户型九

占地尺寸:13.43m×11.93m
占地面积:160㎡
建筑面积:333㎡
建筑高度:9.4m
建筑情况:6卧 4卫 1厨房 1餐厅


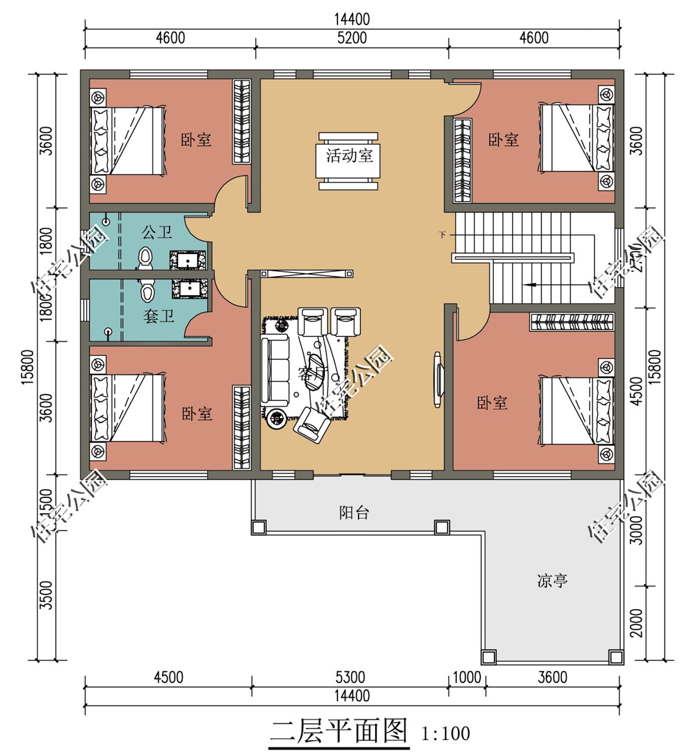
户型十

占地尺寸:14.4×15.8m
占地面积:185㎡
建筑面积:361㎡
建筑高度:9.6m
建筑情况:6室 3厅 4卫 1厨 1棋牌室 1杂物间 1粮油室 1活动室 1凉亭 1阳台


这10套户型都设计的非常好,你更喜欢哪一套呢?