
售楼处这种项目类型背后的商业运营模式,以及在平面动线上是如何处理的?软装在其中又扮演了什么样的角色?
今天,咱们来聊聊关于“售楼处”的那些事儿,主要想解决以下问题:
1、 售楼处的平面动线如何设计?
2、 售楼处背后的商业述求是什么?
3、 售楼处的软装设计思维是什么?
一、售楼处案例分析

1、 项目介绍
徐州,古称彭城。潘安湖首府作为城市精神文脉的一部分,一处连接传统、当代与未来的文化空间,为重塑城市特色提供了新的契机。
设计师的灵感 来 源: 自然界的石、水、木 ,并融入了 金属 ,在意境亚洲的主导氛围之下,寻求更多的现代情致。
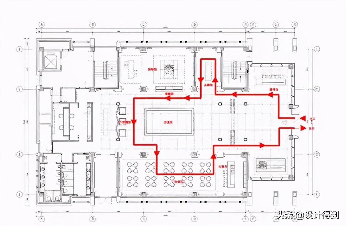
2、 动线示意
售楼处的动线设计考虑的是 客人进门所需要的服务顺序 。
每个售楼处都有自己一条动线,这条动线贯穿了整个售楼处的所有功能区, 从品牌介绍到项目宣传片到区域介绍到沙盘讲解到功法展示到样板房 。
售楼处的平面布局一般围绕2次看房动线展开。
第一次看房动线

△上海大朴设计
a、 接待台

△接待台
b、 品牌馆
c、 LED观影
d、 沙盘讲解

△展示区(LED观影、沙盘)
e、 户型区讲解户型
f、 国学馆——托管随行小孩(单独谈客)

△国学馆
g、 洽谈区详细了解(详细项目解读与水吧服务)

△洽谈区、水吧台
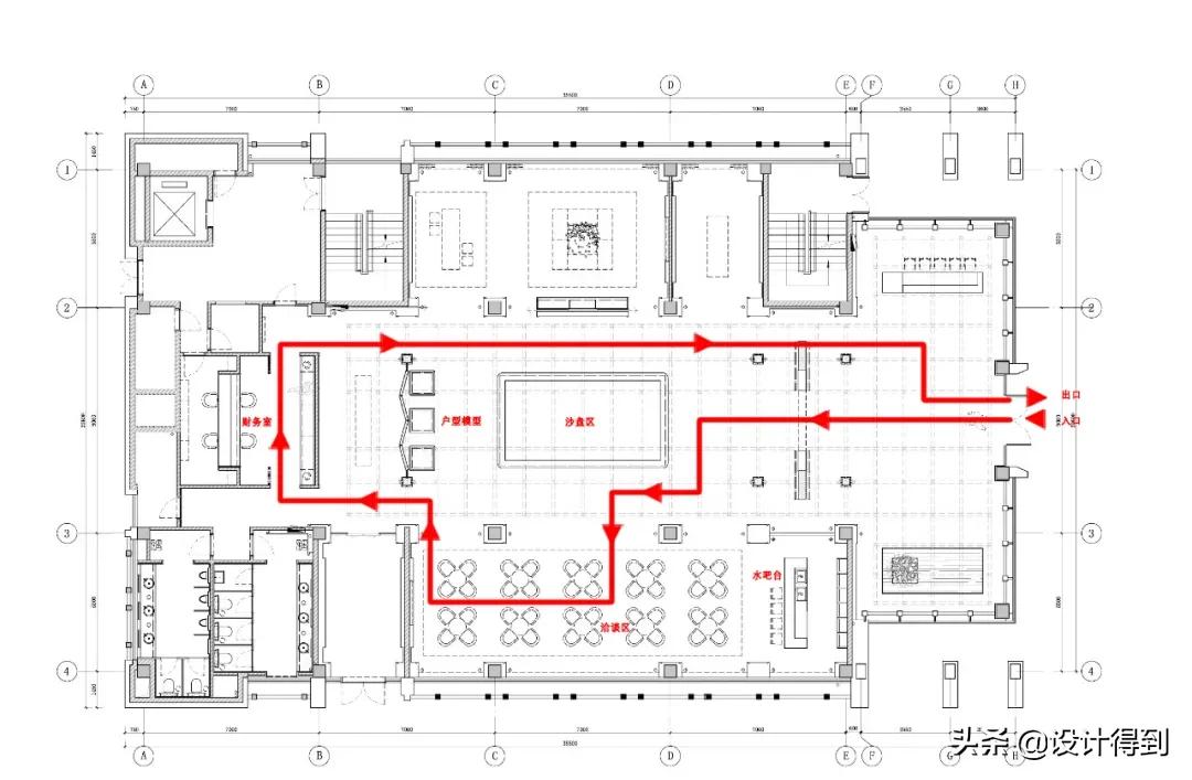
第二次看房动线

△上海大朴设计
a、 沙盘区
b、 户型区再确定
c、 洽谈区深度咨询
d、 财务室交易

△财务室
这个项目售楼处整体布局方正, 沙盘位于整个售楼处的正中央,分为3个大区域,中间为展示区域,北侧配套国学馆和品牌馆,南侧洽谈。

△展示区(沙盘)
洽谈区域要静,营造出清雅静谧的空间氛围,使参观者可以放松身心,以便于进行接下来的谈客内容。
沙盘正面就是户型单体模型,右侧是宣传品牌的LED大屏幕,这样方正的设计会使人产生一种正统的感觉,也有利于参观者环顾四周感受整体氛围熟悉环境。

△水吧台
人流动线的安排: 接待台在售楼处门口右侧,符合行为心理学 ,喜欢从右边进入的习惯,便于销售人员快速反应来客以便于跟进。
之后带领参观者浏览 正中央的项目沙盘 ,观看LED滚动*放播**的品牌宣传内容,短时间内就可以使参观者领略到整个项目的气势。

△接待台
接着由 销售人员带领进入户型展示区来观看项目户型信息和区位配套 ,这是位于户型展示区右侧的国学区,可以方便带孩子的消费者感受文化传承,为参观者详细了解项目情况争取到时间。

介绍过后会由销售人员带领经过沙盘区进入谈客区域,如果 有意向明确的参观者可直接由水吧引入VIP区域 。
谈客完毕之后,参观者可以在此稍作休息,之后由销售人员引入出口。

△正中间
整个过程十分流畅,恰好是围绕售楼处内部浏览了一遍,可以带领参观者看到售楼处的每个角落,并且不会造成人流阻塞,同一时间还可以容纳更多的参观者。
软装设计
项目中的软装设计在每个动线的关键点,都 恰 到好处的传递品牌价值帮助甲方实现企业战略和产品战略目标。
▽软装实景图


△接待台吊饰


△国学馆布景


△洽谈区墙饰


△签售区
二、售楼处与软装设计的关系

△平面图
1、 售楼处背后的商业目的
售楼处一直是软装服务的主要战场,但是对于这种业态,我们并没有多少深度的认识。
为什么房地产的投资者们愿意将重金花费在售楼处上面?商业的行为背后必定有战略的目标,重视售楼处主要在于以下5个原因:
a、 流量入口
售楼处是人们认识楼盘的第一窗口,流量的聚集地。有人气自然有财气,可见人流的重要性。
比如我们常常看见的招财猫,其实是一对,右手招财,左手招人。

b、 宣传工具
项目销售的先发优势全看售楼处,优秀的售楼处设计能吸引大量的客户前往参观,主动发朋友圈帮忙推广,甚至自带新闻热点,媒体争相报道,节省大笔的传播成本。

c、 品牌展示
售楼处是品牌展示的重要载体,市场可以通过售楼处展示的流程、体验、视觉了解开发商品牌实力,提升客户审美情趣的认同。

d、 交易地点
售楼处也是开发商的主要销售渠道,接待客户、洽谈业务、以及实际的交易地点。

e、 示范区
楼盘形象展示的主要场所,在项目尚未启动只是一块荒地时,它的使命是要把楼盘未来居住的效果缩小成具体影像,传递给客户,展示出了项目未来社区生活的场景。

售楼处是一个项目的名片,是客户到访的6h里决胜的案场。
它的核心价值在于撬动市场对于整个项目的预期价值,那 如何通过一个虚拟的环境撬动消费者的预期呢 ?就是 软装设计从中发力 了。
2、 售楼处软装的设计思维

△方案概念图
售楼处本质是一个展示空间,销售产品的场所,回归商业就是需要关注用户的需求,同时超越他的预期来打动消费者。
通常消费者有3个方面的预期: 视觉感受、服务体验、价格。

△方案概念图
软装设计的作用就是在视觉和体验上达到40000元/㎡,却只销售10000元/㎡的预期效果,获得好的口碑助力产品的销售和溢价。

△方案概念图

△实景照片