
关注了安晨老师很久,发现她的设计案例和她的为人一样:踏实、真实、温暖、接地气。这次要分享的案例也是如此,75㎡的三居室,并非豪宅、并非豪装,简约清新文艺的北欧风格,不知为何让我一进屋就被迷住了,“有颜有料”仿佛这就是我理想中的家,温馨、精致、惹人喜爱!

设计说明

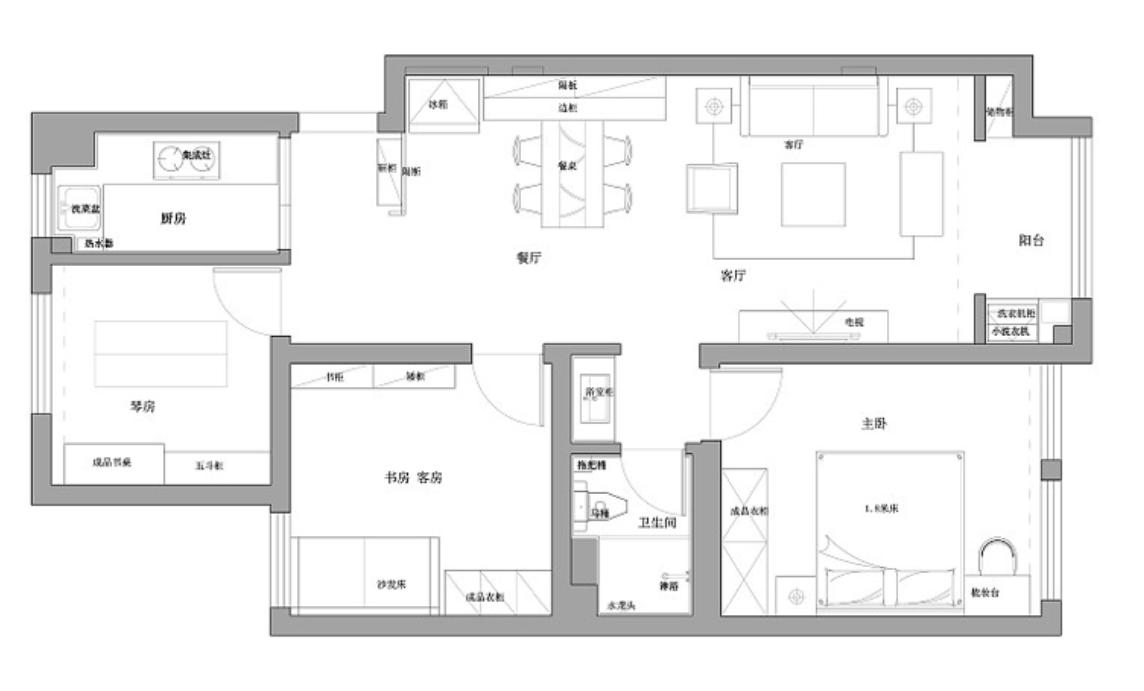
▲平面设计图
屋主是一对热爱生活的青岛年轻夫妇,这套75㎡爱巢正是他们的婚房,平面布局如上,具体设计细节,跟随我的脚步,给大家一一讲解。(数据为不含公摊的使用面积)
屋内实景

进屋后,拥有一个独立的门厅,不过由于此处的动线丰富,不太好布局。
设计师巧妙利用借景手法,把厨房到门厅的采光口扩大,保留半墙遮挡地柜,既挡住了台面的杂物,也让整个门厅通透大气,颇为灵动。

左侧小半墙,安装了一个壁挂式的折叠换鞋凳,使用方便不占空间,非常人性化的设计。右侧打造木质屏风,既能很好的划分空间也能保证整体通透性。

开发商给安装的猪肝色的入户门,确实不太入眼,巧用毛毡改善成了更具质感的高级灰入户门。门下摆放了毛毡地垫,六角砖的造型元素相互呼应,实用又漂亮!

▲客厅
主空间非常敞亮,融入客厅的阳台,不仅仅是为了扩容面积,同时保留了洗晒功能。

此处屋顶没有突兀的房梁,客厅上空也不必设吊顶,保留原始层高就非常大气了。细节上,巧妙的利用双层石膏板装饰边角线,宽线条更具有拉伸层高的视觉效果,简单大气。

人字拼木纹的电视柜和斗柜,为客厅带来了充足的收纳空间,高脚细腿的设计又显得轻盈不厚重。

年轻人工作繁忙,很少有时间看电视,所以目前没有添置电视机,以装饰物和绿植点缀,充满了生活气息,些许金属元素,也能带来一些轻奢格调。

跳色系的沙发是夫妻俩逛宜家时候定下的,在高级灰的墙面背景之下,整个空间充满了活力。

沙发背后的挂画,看似简约,其实花了不少心思去搭配。最左侧的黑色挂画,上线画着青岛市地图,中间则是青岛市北区域的地图,而右侧则是屋主家这栋楼的经纬线坐标数值,非常具有纪念意义。

客厅小细节。

▲餐厅

两侧回望,整个空间非常通透,厨房借景的手法很棒。在门厅顶有少量吊顶,为了藏入中央空调。

餐厅的泡泡吊灯和客厅吊灯完美呼应,非常精美。我个人很喜欢餐桌椅背后的餐边柜,六边形的木纹造型排列,深浅木色对比鲜明,复古又耐看。成品家具的魅力在于,可以让空间的层次更丰富,更具有生活气息。

餐边柜的作用很大,陈列了大量常用的随手物品。左侧紧挨着摆放了一台冰箱,从动线上来说,距离厨房不远,为整个厨房的收纳功能减负。

餐桌细节,很多精致小物都是女主人添置的,放在家中非常漂亮。

冰箱上的英文字母装饰,这其实是夫妻俩的一行情书,好浪漫。

▲厨房
厨房墙砖也用到了六边形的元素,小板砖瞬间变得灵动起来。

一看就是充满烟火气息的厨房,经常做饭,但照样收拾的一尘不染井井有条,除了本身设计的好,屋主夫妇生活也相当自律。木色的橱柜真是爱了,经典温馨的色调,未来过多少年也不会过时。

▲主卧室
大面积的高级灰色调,本身是中性色,显得简约干净,没有丝毫累赘。而大面积的木地板,搭配脏粉色窗帘,有使得整个空间瞬间温馨了起来。

高级不失温暖!

床左侧摆放精美的梳妆台,右侧则是大气高级的哑光灰推拉柜门。让衣柜和背景色完美融合,丝毫不突兀,而且非常节约空间。

床头极简的挂画非常应景,让这高级感延续了更多。

极简线条的壁灯,显得整个空间大气不拥挤。

▲次卧
沙发是可折叠的款式,必要时这个房间可以当客房使用。很舒服。除了用于阅读、发呆、临时休息,这里还有充足的备用收纳衣柜,兼备衣帽间功能,看到右侧超大的落地镜,就知道啦!

非常有质感的组合书柜。
针对夫妻俩目前的家庭情况来说,这套房子目前的计划是只住2年。如果有了孩子,会搬到本地另一套大房子里居住。所以不必考虑小孩居住的问题。
当然了,即便不搬家,这个次卧改成儿童房也非常方便。

▲书房
最小的房间,只有7㎡,这里主要用于临时办公。背后放了一台钢琴,一架古筝

▲阳台
阳台虽然融入了客厅,不过在功能结构上,洗衣房和收纳柜都完美藏入了墙后,不会影响到客厅视觉效果。上图是洗衣区,除了洗烘一体机,还安装了一个壁挂式的mini洗衣机,生活品质得以提升,效率很高。

另一侧空间比较窄,少量打造备用鞋柜,为门厅鞋柜收纳减负。顶部可存放行李箱。

▲卫生间干区
干湿分离的格局是很棒的,洗漱台外置方便使用,但正对主卧门洞的问题也不可避免。

所以在浴室镜的选择上,安装了一个可以灵活翻面的圆形挂镜。晚上睡觉前,把镜子翻到背面。镜子背后,写着“晚安,梦到我”,很有情调。

▲卫生间湿区
本案就分享到这里了,在这里祝福屋主一家人越来越幸福,也感谢设计师的优质装修案例,感谢各位阅读!
图片版权:听白设计@安晨
文字原创:窝的事