领航装饰
专注工装设计
以商业价值为导向
还原商业空间生态美感
餐饮 | 服装 | 茶饮 | 办公室 | 会所 |
领航装饰

对于店铺来说,装修风格到位就成功了一半。 在这个视觉即生产力的时代,一个强烈鲜明的店铺形象,就可能换来让你比普通竞争对手高出10倍的价值,这一点不容小觑!
今天就与大家分享两个女装品牌装修案例,让我们来一起体会这 几款耐看又不易过时的流行装修风格!
本次案例分享:郁香菲和朗文斯汀
装修案例一:郁香菲
领航装饰
01
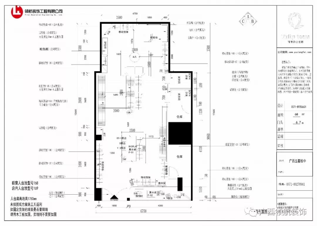
郁香菲广西柳州桂中店


▲郁香菲广西柳州桂中店效果图
门面整体设计采用灰色调,用灰色打底的好处在于,让色彩或清新或浓郁的服装更易抓住顾客眼球。

▲郁香菲广西柳州桂中店效果图
整体采用浅灰、大理石色与浅木色作为基调色彩,高级之美提升了空间格调。设计师巧妙地将多余的装饰去掉,内部展厅空间省却了做作的装饰,营造更宽广的视觉效果。
规则分布的黑色直条钢管在无形中实现了区域划分和动线引导的功能,并在一定程度上辅助定位视觉焦点。

▲郁香菲广西柳州桂中店效果图
地面摈弃传统的单一颜色地板,采用灰色和浅木色把空间分隔开来,让这个区域显得时尚又不失灵动诗意的柔软。舒适的休息区为客人提供放松的场所,店面有一个舒适的休息区也是留住顾客的手法之一。


▲郁香菲广西柳州桂中店效果图
另一方面,内饰上的简约和店内的布光也是值得一提的设计亮点。明暗结合的色彩搭配多排射灯的布光效果,让整个空间温馨又明亮。
02
郁香菲广西柳州五星店







▲郁香菲广西柳州五星街店效果图
与桂中店不同的是,五星店的门面招牌用立体三角块来突出显示,黑色线条划分多个矩形方块,店铺名称屹立之上,整个店面多了几分立体感。店铺整体设计依旧延续郁香菲一贯风格,灰色打底,融入温暖的暖色调,整体简约洁净,温馨明亮。
装修案例二:朗文斯汀
领航装饰
01
朗文斯汀广西河池金城江店




▲朗文斯汀广西河池金城江店效果图
门面展示区采用简洁高级的灰色背景,大面积的透明玻璃窗很好的对外展示店内布局。一个个暖色的矩形货品展示框点亮沉稳的灰色调,更能将顾客的眼光聚焦在衣服上。框线边缘采用黑色装饰,更显一份精致感。



▲朗文斯汀广西河池金城江店效果图
衣架、家具等多处都运用了大量不锈钢材料,让整个空间显得格外丰富多样,同时也更能烘托服装的品质,为整个店铺灌注纯粹的气氛。
软装搭配上选用绿色植物,形成错落有致的格局与层次感。


▲朗文斯汀广西河池金城江店效果图
地面是质感十足的大理石石砖,辅以简单的黑色横条划分出区域感。天花板选择了矩形黑色射灯布局,与店内大量不锈钢展示架相呼应,增强线条流动性,照亮整个空间。


▲朗文斯汀广西河池金城江店效果图
为了降低空间“拒人之外”的冰冷感,空间加入了醒目的金色和原木色,以金属质感的材料突出高端大气的氛围,使内部结构成为空间之焦点。
02
朗文斯汀广西桂林平乐县店


▲朗文斯汀广西桂林平乐县店效果图
平乐县店整体延续简约设计风格,以灰色为主色调。门头由白色竖形条纹组成,在浅灰色调之中带来一股视觉冲击,流畅的线条为整体增添几分设计感。两个矩形玻璃窗很好的对外展示店内布置,吸引顾客进店。

▲朗文斯汀广西桂林平乐县店效果图
与金城江店不同的是店内没有增添亮眼的金色而是采用带有纹理的浅青色木质元素,地面采用水泥灰色地板,少了几分“冰冷感”。整个视觉空间看上去更温馨简洁,带有一丝怀旧味道。


▲朗文斯汀广西桂林平乐县店效果图
领航装饰,专注工装十七年
累计上千个成功案例
案例分类

餐饮 | 服装 | 茶饮 | 办公室 | 会所 |
地址:柳州市红光路50-1,50-2号