
石朝思 Kirin
治木设计 / GeeMo Studio
创始人 / 设计总监
中国建筑学会室内设计分会会员(CIID)
重庆青年设计师俱乐部成员
红棉中国设计奖 最美现代空间奖
2019第三届中国室内设计新势力榜西南赛区重庆TOP10


“侃天说地,歇脚喝茶”
是坐茶TEA-TALES的SLOGAN,也似重庆人豪爽个性的直白表达,无论是阳春白雪还是下里巴人,一间茶馆,一壶好茶,就是江湖。


喝茶固然有传统属性,但绝不是一件陈旧的事情,这是客户与我们的共识。过于现代化的符号介入也和坐茶TEA-TALES的气质相违和。
遵循传统糅合现代,我们对空间进行“折叠”处理。
Although drinking tea has traditional attributes, it is by no means an old thing, which is the consensus of our customers and us. The overly modern symbol intervention is also contrary to the temperament of TEA-TALES.Following the combination of tradition and modernity, we "fold" the space.


A
-
与室内外保持对话


- 透过外墙玻璃的外坐席区 -



靠近公共平台区域部分,我们从隐私和采光考虑,设计了背窗卡座,外立面以矩形结构组合相互交叉的木架和窗框,让立面造型形成强烈的垂直视觉感受。上下推窗的设置让室内外保持对话,功能上也便于通风。
Close to the public platform area, from the consideration of privacy and lighting, we designed the back window booth, and the rectangular structure of the exterior facade combines the intersecting wooden frame and window frame, so that the facade form a strong vertical visual experience. The setting that up and down pushes a window lets indoor and outdoor maintain dialogue, also facilitate ventilated on the function.





B
-
犹如山城步道的蜿蜒


楼梯作为建筑的组成元素,在空间规划中,我们不愿它只停留在功能性上,更想通过造型设计让楼梯成为空间中承上启下的过渡。
Stair serves as the constituent element of the building, in dimensional plan, we do not hope that it stay only on function,more want to let stair become the transition that connects above and below in the space more through modelling design.
利用结构柱设计墙体造型,形成双动线增强空间的流动性。虚实结合的形式感,减少其他客人对内座区的干扰。
The structure column is used to design the wall shape, and the double moving line is formed to enhance the fluidity of the space. A sense of form combined with reality reduces the interference of other guests in the inner seating area.




折叠的楼梯犹如山城步道的蜿蜒,折叠后形成的两个区域一收一放巧妙的安置艺术装置和商品展示。同时又将上下两层空间交错折叠在一起,形成空间的趣味。
The folded staircase is like the winding trail of the mountain city. After folding, two areas are formed, one for collection and the other for clever placement of art installations and commodity displays. At the same time ,it will be up and down two layers of space staggered folding together, the formation of space interest.
FLOE/ 流
艺术装置“FLOE/流”,以“茶”为灵感,以“竹”为媒介,尊重自然,传承人文。
The art installation "FLOE/ 流", inspired by "tea" and mediated by "bamboo", respects nature and inherits humanity.


C
-
形成双动线增强空间





极简主义的店铺陈设、灯光设计和大块面的立体造型结合,融入当代建筑空间元素,更好的构筑了多元化的空间,进行一场独一无二的体验。The combination of minimalist shop furnishings, lighting design and large-scale three-dimensional modeling blends into the elements of contemporary architecture to better create a diverse space for a unique experience.




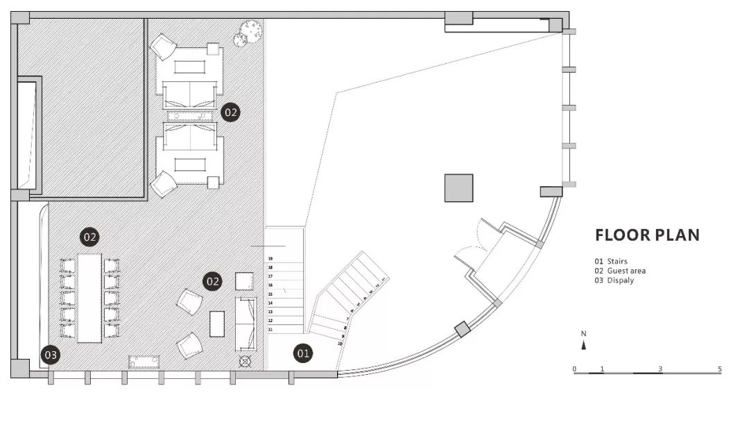
一层平面图

二层平面图

Project Name|项目名称
坐茶 TEA-TALES
Location |项目地点:
重庆市 金山意库
Project area|项目面积
300m²
Design company|设计公司
治木设计 / GeeMo Studio
Designer | 设计师
石朝思、易毅、余思静
Photographer | 摄影师
偏方摄影
文字\图片:治木设计
图片调整\编辑\排版:寸匠

寸匠-为年轻设计发声
欢迎投稿作品
cunchina@163.com









