
简约空灵、清新素雅,化繁为简的生活智慧,张弛有度的空间力量,一起彰显出当代最流行的设计美学。
——装修设计读者社群:每种风格都更佳呈现
今天给大家分享的这位设计师的案例也是有一种这样的感觉,把最简单的东西放在这个家里。这个房子的男主人A先生,有着一种不好惹的高级感,他眼光挑剔并且意见很多,只接受生活的完美,拒绝得过且过。所以,对于坚持自己的讲究,“挑剔”是一种绝对的赞誉。

这套案例位于上海浦江华侨城的叠拼别墅,建筑面积236㎡,改造后套内竟面积360㎡,还有一个40㎡的花园。A先生事业有成,是一名工业设计师,三代同堂居住在这个房子里。A先生平时工作比较繁忙,喜欢稳重又不是时尚的居家环境,全权交给麦古一设计师来负责家里装修这件事情。

原本的入户门在厨房这个位置,对于房子的本身入户门在厨房是一件非常尴尬的事情,显得很小气。经过麦古一设计师的改造把原本入户门依旧保留,作为安全出口。改造后,从右边花园进入,有了宽敞的门厅和换鞋储藏的空间。南面花园与地下室的“互通”空间改成阳光房后,不仅潮气问题解决了,还能有更多“晾晒空间”,地下室足足增加了14㎡。


改了进户门后从入户花园进来做了整排到顶鞋柜,进门做了不锈钢门套,整个客厅墙面都采用了不同的材质做装饰。吊顶也做了硬包处理嵌入式灯箱。整体嵌入式电视柜,整洁收纳功能强大。

客厅沙发背景墙浅灰色墙面石材,深灰色质感沙发搭配暖色单人沙发和人字型拼接地板,整个空间多了份活力。客厅以白色为主搭配部分黑色台面多功能整体嵌入式电视柜,有了强大的收纳功能,镂空的隔断可以放置装饰艺术品,吊顶一侧做了中央空调,整体空间整洁,大气、美观。

柱子是承重的,不能拆,设计师利用原有柱子做了矮隔断处理,可以收纳储藏,同时把餐厅和客厅功能区域分开。

厨房,墙面采用灰色纹理石材,做了两排整体橱柜,冰箱和烤箱都是嵌入到整体橱柜里面,空间上整洁,明亮。冰箱后面就是原始户型的入户,内嵌式的冰箱正好挡住了。

本来无西餐的空间,把原有镂空的庭院做了搭建,做出来西餐的区域。同时中西餐厅也使用不锈钢门套做功能区域隔开,西餐厅利用岛台的概念,墙面一侧是做到二楼的墙布处理,空间上更大气。西餐厅墙面一侧是做到二楼的墙布处理,空间上更大气。

餐厅做了两个不同的中西餐厅处理,中餐厅利用圆形餐桌椅,整体以木质元素为主搭配精致的吊灯,此时窗外的美景映入眼帘,一种东方的韵味美油然而生。

靠近窗户的地方还做了推拉式的窗户给地下室引光通风。

二楼主要以休息为主,最大的亮点是把主卧和其中一次卧做了一套房使用,利用走廊的空间面积做了一排储藏柜;把客卫和主卫阳台的空间纳入室内增加使用面积。

整个二楼的设计其实是一个较大的套间,三个卧室和两个独立卫生间。客厅的电视柜是整体定制的。

卧室的这面墙其实是装饰面假门,与衣帽间更巧妙的衔接。

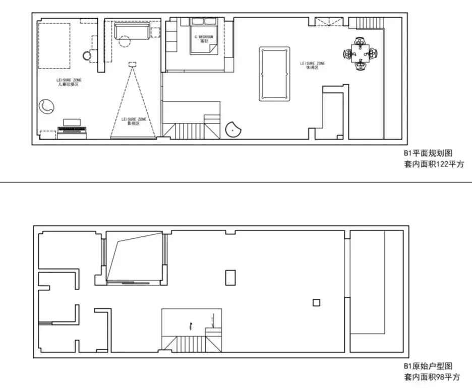
在原有户型图墙体基础上和内部左边墙体全部拆除的空间上做了儿童玩耍区和影音室,同时做了防水卷材处理,影音室运用软包材质有了更好隔音效果。利用地板上墙搭建了客卧;台球桌周围墙面做了壁布处理;在台球桌旁边利用部分墙体做了L型储藏柜;把花园区域纳入室内空间,增加室内面积。

地下室楼梯,一字型拼接地板,不同的区域不同采用不同的材质划分。下楼可以看到正对的次卧是用利用地板上墙材质搭建了客卧。

对生活有追求又讲究的A先生,兴趣爱好比较广泛。因为做工业设计这一块,比较枯燥,地下室就是他闲暇之时休闲娱乐的地方(同样也是他三岁女儿玩耍的地方)。台球桌、影音室这些都是标配,台球室区域对着客卧的一侧做了透光玻璃,增加客卧室内的采光,正对台球的墙体也是和客卧采用一样的地板上墙处理。利用撞角的空间做了一排整体的收纳储藏柜。

吊顶以白色为主,灯光采用大面积方形主吊灯的形式,部分区域利用筒灯补充光源。台球一侧是在原有部分墙体重新搭建的造型墙一是作为承重墙使用,二是做了卡座沙发作为休闲休息空间使用。

影音室也是一家人在一起看电影的地方,影音室里大面积黑色绒布包边的幕布,看电影时有了强大的视觉感。在沙发背景墙顶部做了镂空处理,自然光线融入室内。整体墙面做了软包处理,达到更好的隔音效果。
A先生最满意的几个改动:

一楼有三个局部挑空的处理,使得地下室成为“可通风”的全明空间,即使在不开新风的时候也感觉空气不错。

南面花园与地下室的“互通”空间改成阳光房后,不仅潮气问题解决了,还能有更多“晾晒空间”,地下室也增加14㎡。


充分利用了空调外机的平台,纳入做了室内空间,使得主卫和客卫都变大了不少。在一楼还增加了一个门厅的空间,目前一楼的门厅本来是属于室外的,但二楼是有平台,所以有条件收进来。

原本东面地下室的天井,在一楼现浇了新的楼板,然后侧墙从一楼到二楼封了全玻璃。留了两扇窗户通风,早上阳光从东面洒入,效果很好。窗外绿植春夏秋冬的不同景色,也是一幅幅美丽的画面。

麦古一(Michael)
空间功能改造的现象级大师
各种疑难户型的处理专家
善于用出其不意的角度突破传统思维定势,
找到空间改造的完美答案
被誉为空间魔法师
获奖情况:
香港紫荆花设计大赛全国金奖
上海十大新锐设计师
上海十大优秀青年设计师
中国建筑装饰协会评选百强人物
杰出中青年室内建筑师
上海设计封神榜40under40优秀设计
TOP100国际影响力设计师大奖
编辑留言:
A先生的现代简约家给人一种舒适大气的感觉,麦古一设计师将房型稍作改动,只要搭配得当,也能享受到这种舒适惬意的生活。这套房子装修下来A先生大概花了将近一百六十万(全部包含),全屋定制的家具价格都比较贵,要有好家具才能出好效果。
点击【了解更多】,编辑带你进入装修情报读者社群!