1、

江苏常州曹家现代别墅
建设地点
江苏常州
尺 寸
面宽12.0米 进深20.0米
建筑面积
703.0㎡
项目概况

△现场照片
项目位于浙江,建筑占地180平米。基地东、西两侧是邻居家住宅,与业主家老房子距离较近。基地北侧是店面,南侧是村内主要道路。
业主对建筑的定位以实际使用舒适为主,因此建筑最终选择现代风格,以低调诠释时尚。

△总平面示意图
图纸设计

△地下一层平面图
平面将娱乐、休闲功能布置在地下,影音室、多功能室位于南侧,利用天窗进行采光。储藏功能布置在南侧中间位置。

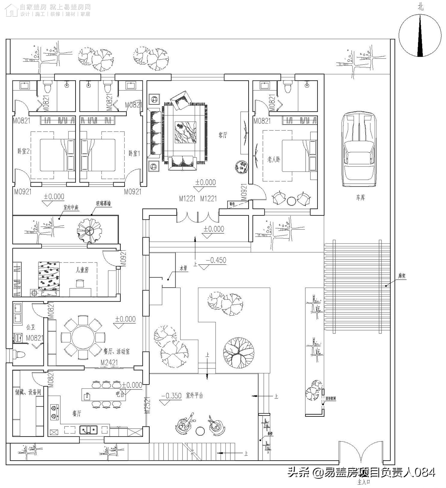
△一层平面图
一层客厅、玄关为开敞式空间,不仅划分室内外界限,也保证视野开阔,较为大气的布局也方便后续装修。老人房位于西南侧,双床的设计满足老人的个性需求。
厨房与餐厅位于北侧,与楼梯间和电梯间相邻,电梯的布置方便老人上下楼。餐厅外的休息平台通过北侧入口可作为室外用餐区。景墙很好的隔断入户位置的视线,使得餐厅位置的空间更为私密。

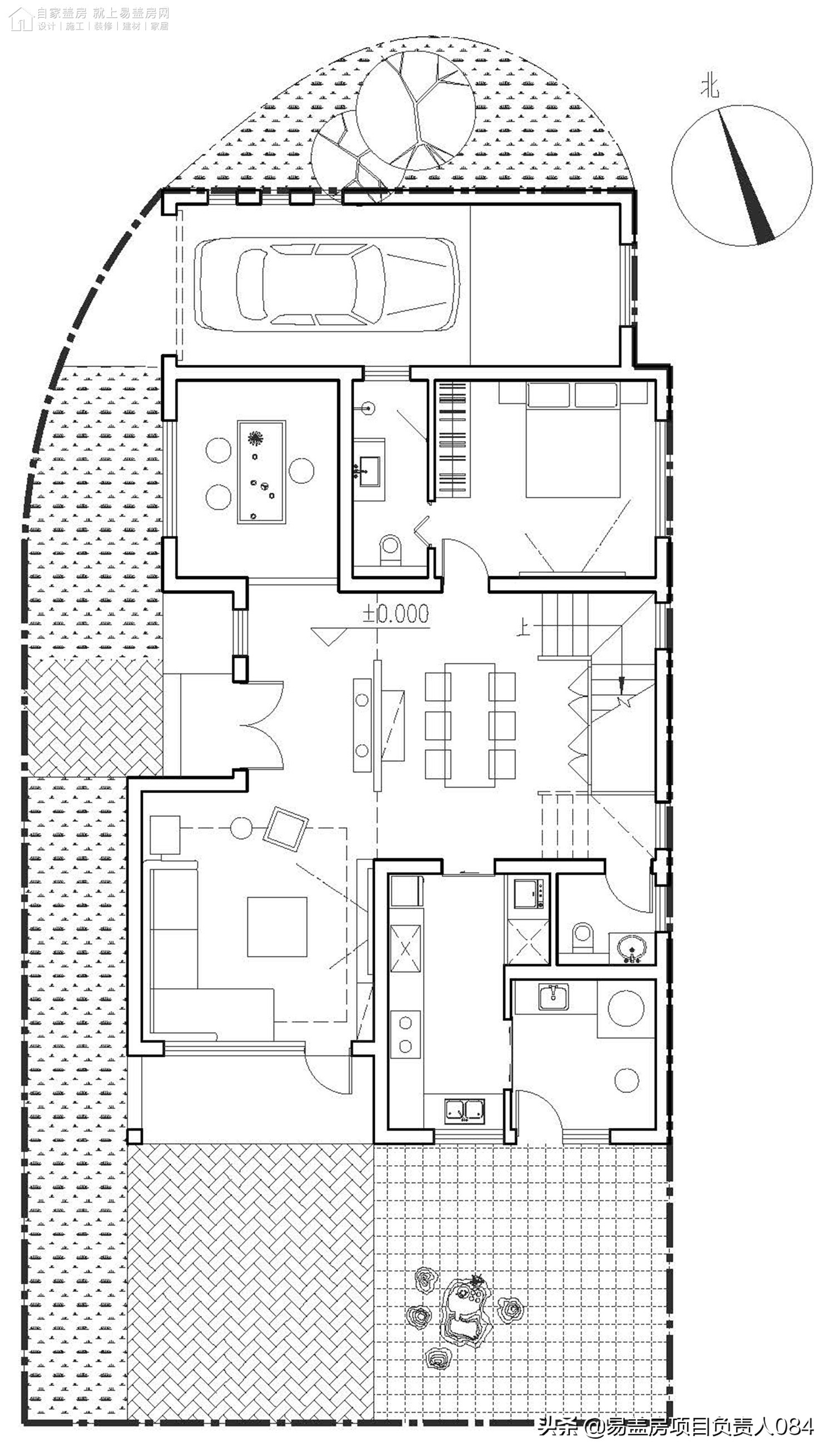
△二层平面图
二层以居住空间为主,整层共有两间卧室。位于西南侧的卧室配有起居室、衣帽间、独立卫生间和露台。较大的面积和齐全功能让主卧使用感极佳。东南角卧室配有书房和两处生活阳台,书房为业主及其家人提供了学习和工作空间。

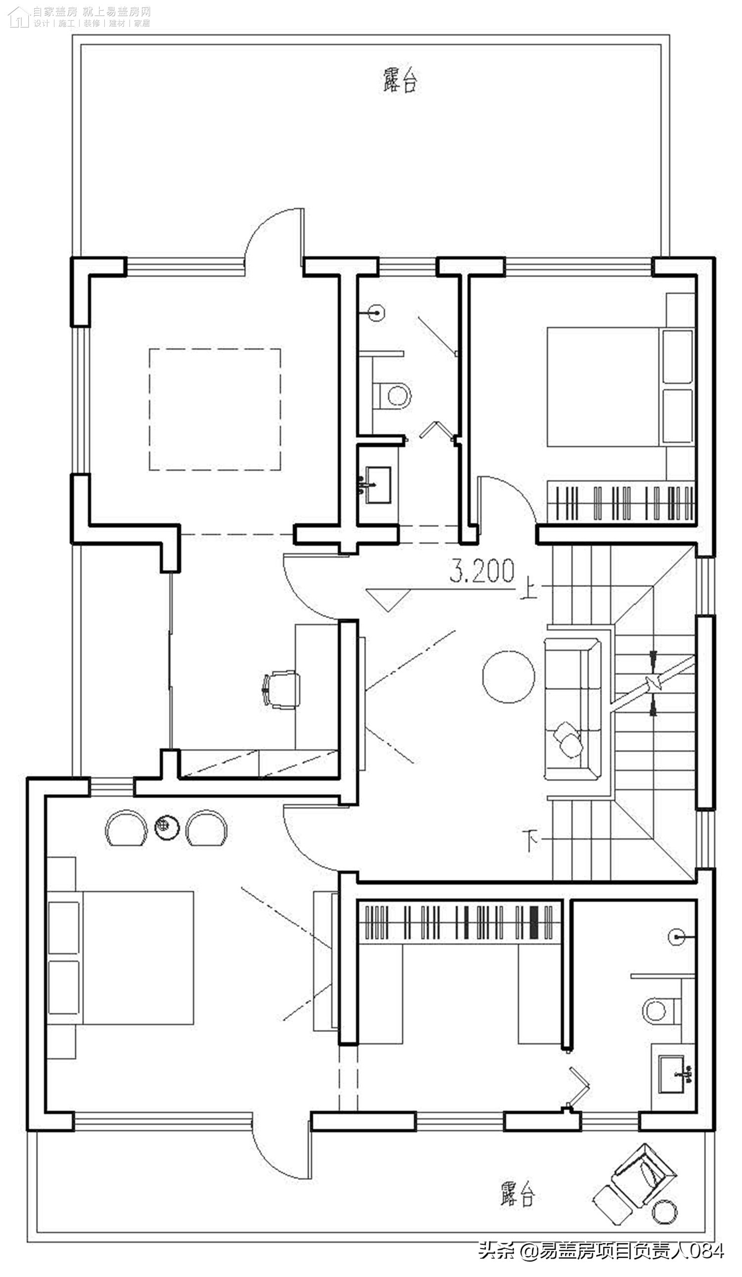
△三层平面图
三层仍以起居功能为主,东南侧卧室与一层老人房布局一致,电梯的存在使得老人上下楼十分便利。其余两间卧室均配有独立卫生间和衣帽间,南侧卧室与大露台直接连通,室外空间的存在与室内功能呼应,让业主及其家人拥有极好的生活品质。
2、

北京顺义刘家新中式别墅
建设地点
北京顺义
尺 寸
面宽18.0米 进深20.9米
建筑面积
238.0㎡
项目概况

△现场照片
项目位于北京,属于原拆原建。基地四周全部是邻居家住宅,仅在主入口处有一条道路通往业主家。四周住宅大部分为传统农村小院,建筑层高在一层左右。

△现场照片
业主在设计之初提供了图纸编号为540的项目作为参考资料。结合基地实际情况,建筑设计为新中式风格,仅保留西厢房和正房,其余面积作为庭院和车库使用。

△总平面示意图
图纸设计
平面分为正房和西厢房两部分,正房设计有三间卧室,老人房进深在业主要求下设计为8米,这使得老人房室内具有较大面积,使用时也更加舒服。西侧两间卧室并不需要过大面积,因此向北退让一部分空间,与西厢房退让空间形成玻璃中庭,为卧室提供更多采光,也丰富室内景色。

△一层平面图
西厢房设计有儿童房和餐厅、厨房等辅助空间。儿童房既有开窗也有开门,在玻璃中庭外,入口附近也利用玻璃将阳光引入儿童房内。除厨房位置常用餐厅外,在儿童房旁设计有活动室,在过年等亲戚朋友较多时可以用作餐厅。设备和储物空间设计在西南角。
3、

四川绵阳荣家现代别墅
建设地点
四川绵阳
尺 寸
面宽18.0米 进深10.0米
建筑面积
380.0㎡
项目概况

△现场照片
项目位于四川,建筑占地180平米。基地北侧是山坡,原有老房与挡土墙距离很近。山坡地势高于基地1米左右。东、西、南三侧均为稻田和土地。整体来讲,基地四周视野开阔。

△现场照片
业主个人比较喜欢简单有设计感的建筑。以质朴展现美配合室内装潢,形成独具一格的个人天地,这是业主期望达到的效果。因此,建筑采用现代风格。

△总平面示意图
图纸设计
平面以大开间为主,南北两侧空间十分通透,与四周开阔视野相互呼应。一层入户门附近空间没有格挡,空间分界以柱子或家具确定。大气开敞的空间搭配工业风装潢,室内基调明确。

△一层平面图
由于业主父母需要摆放神位的房间,因此在中轴线上,靠近北侧空间设计有合室。厨房采用土灶和燃气灶两种形式,充分考虑到业主父母和业主两者的生活习惯。东北角棋牌室是乡村生活经常使用的娱乐空间。
一层房间功能齐全,充分考虑到业主及其家人使用习惯,布局十分贴合当地民俗。

△二层平面图
一层水吧上空采用玻璃封顶,使得此处空间整体通透。楼梯间与家庭厅和平台紧邻,公共空间与交通空间极好结合,使得四周卧室使用环境更好。二层共有五间卧室,房间数量能满足较多人居住。

△顶层平面图
顶层通过过厅进入露台,顶层露台与二层露台在方位和面积上有所不同,丰富建筑室外活动空间。
4、

甘肃兰州司家新中式别墅
建设地点
甘肃兰州市
尺 寸
面宽15.2米 进深9.2米
建筑面积
257.0㎡
项目概况

△总平面示意图
项目位于我国西北地区的甘肃省兰州市附近,业主通过线上报名参加易盖房百城计划,因此在图库中挑选了632号图纸委托设计师进行尺寸及布局调整修改。
项目所在宅基地位置的东侧和北侧为村内道路,西侧和南侧为邻居。业主在修改时仅要求按宅基地尺寸将建筑的开间修改至合适大小,在功能空间布局等平面设计方面对原图纸较为满意,因此并未提出过多修改意见。考虑到私密性问题,因此业主也在立面上提出了不在北侧开窗的要求。
图纸设计

△一层平面图
方正开阔的户型,极高的空间利用率,功能分区以及庭院有机结合,在细节中彰显品质。入户堂屋方正大气,南向视野无遮挡,接待亲朋、品茶聚会,为空间赋予了更多可能性。
客餐厨空间南北通透,大面积的玻璃窗引入了更多阳光。客餐一体,厨房U型操作台,为亲朋聚会提供更好解决方案。厨房自带生活阳台,储物晾晒方便生活使用。
楼梯间下方储物,充分利用空间,将室内功能全面完善。西侧卧室与卫生间相邻,卧室采用大开窗拥有极佳视和美景清风。

△二层平面图
大尺寸起居室紧邻露台,正中空间调节室内环境,闲情惬意或花园阳台,彰显品质生活。三间卧室均有充足采光,衣帽间设计精致实用,同时搭配书房,使得日常生活更加丰富、方便。
5、

安徽安庆吴家新中式别墅
建设地点
安徽安庆
尺 寸
面宽16.2米 进深9.2米
建筑面积
270.0㎡
项目概况

△现场照片
项目位于安徽,建筑占地140平米左右。基地形状不是很规则,南北向较为狭长。基地东、西两侧均为巷道,巷道后方为邻居家住宅。南、北两侧为行车道路。

△现场照片
业主要求自家建筑与基地轮廓保留一定距离,且需要庭院,考虑到当地西侧入户的习惯,庭院预留在南侧。当地民宅多为白墙灰瓦的传统平房,综合衡量场地情况和业主需求,建筑最终设计为新中式风格。

△总平面示意图
图纸设计

△一层平面图
建筑西侧入户,入户空间利用背景墙达到类似玄关的作用。客厅位于南侧,与室外直接连通。厨房和餐厅相邻,业主家人习惯使用土灶,在厨房内预留土灶房。
北侧空间为茶室和老人房,老人房配有独立卫生间。北侧整体环境较为清幽,适合居住。考虑到场地形状和四周环境,南侧预留庭院,为家人提供活动场所。北侧布置车库,与道路相邻,方便出入。

△二层平面图
二层主要为起居空间,整层共有两间卧室,南侧主卧为大套房,配有衣帽间、卫生间和露台。西北侧多功能室分为两个部分,靠近南侧作为书房,北侧作为健身房。

△阁楼平面图
影音室位于阁楼内,对下部空间影响较少。榻榻米房间可作为备用卧室使用。
平面充分利用各部分空间,保证室内功能丰富,为业主及其家人提供更好的生活品质。
6、

北京顺义李家欧式双拼别墅
建设地点
北京顺义
尺 寸
面宽14.2米 进深12.5米
建筑面积
362.0㎡
项目概况

△总平面示意图
项目位于北京,建筑占地约180平米,基地东侧是邻居家住宅,西侧是树林。南、北两侧都是路。由于基地面积较大,四周环境对建筑基本不会产生影响。
图纸设计

△一层平面图
建筑为双拼形式,每栋别墅完全独立。考虑到基地面宽过小,因此每栋别墅在有限面宽内如何满足业主需求成为了首先需要解决的问题。
一层入户客厅和餐厅占据一跨空间,楼梯间流线通过台阶转角拉伸,使得日常使用时更为舒适。长辈房位于南侧,与公卫相邻。厨房和设备间位于北侧。

△二层平面图
二层共有两间卧室、一间起居室、一间书房。书房采用开放式处理,尽量让空间显得更加开阔。起居室位置可以根据业主需求进行功能调整。二层在南侧起居室位置设计有阳台,提供了半室外空间,衣物晾晒也可以在这里进行。
整个平面在有限面积内,将日常使用功能布置齐全。
7、

内蒙古赤峰李家欧式别墅
建设地点
内蒙古
尺 寸
面宽25.0米 进深11.0米
建筑面积
551.0㎡
项目概况

△总平面示意图
项目位于内蒙古,基地东侧距离业主家8米左右是一栋住宅,西侧是邻居家住宅,南、北两侧是道路。由于基地面积较大,建筑受到环境影响极其有限。
图纸设计

△地下一层平面图
地下空间主要布置酒窖和储藏室等辅助功能。地上分为两层,一层平面以客厅为中心,设计有两个入户路径,考虑到北方冬天寒风凛冽,在入户门的位置均设计有避风阁,以此保证室内温度和宜人环境。

△一层平面图
客厅采用挑空设计,竖向高度与较大空间结合让客厅更加大气。棋牌室等娱乐空间位于西侧,较为明确的功能分区,使得室内环境一目了然,使用时也更加舒服。
考虑到老人使用房屋时间较长,厨房采用现代厨房和传统锅炉房两种形式。同时锅炉房与卧室相邻,方便火炕布局。冬天时锅炉房可通过烟道将烟雾排到室外,让室内保持空气清爽。

△二层平面图
二层为起居空间,每间卧室均有很好采光,部分卧室具有多向采光。充足光照让室内十分明亮,业主及其家人使用时也能有愉悦心情。东侧两处阳台为室内提供了室外活动空间,无论是衣物晾晒还是观景,都有较多选择。
平面整体功能丰富,配合较大的空间让豪华感和大气感自然产生。
8、

浙江戴家现代别墅
建设地点
浙江温州
尺 寸
面宽8.8米 进深13.7米
建筑面积
462.0㎡
项目概况

△现场照片
项目位于浙江,四周建筑以简洁造型居多。业主十分孝顺,在设计之初提出,老人房要做为设计的重中之重。因此,设计方案要让老人房使用舒适度得到最大保证。

△总平面示意图
建筑占地不超过120平米,基地西侧与邻居家住宅相邻,东、南、北三侧是道路。除了建筑西侧无法开大窗外,其余设计不受四周环境影响。
图纸设计

△地下一层平面图
为保证地下空间的采光和通风,在南北两侧设计有天窗。地下空间主要提供娱乐功能,唱吧、酒窖以及储藏室极大得丰富了室内使用功能,使得空间更为豪华和大气。酒窖位置特意设计有隐藏版密室,满足业主更多需求。

△一层平面图
一层作为公共区域使用。入户玄关与客厅相连,过渡空间确定室内外界限并打造出入户仪式感。楼梯间与公共卫生间相对,下方空间作为储藏间使用。餐厅和厨房位于北侧,为方便进出设计有后门。

△二层平面图
二层老人房所带阳台在空间上突出一部分,从使用功能和外部造型上,老人房部分都成为整个建筑的重点和亮点。独配的阳光房让老人有享受阳光的休闲时光。除老人房部分,北侧两间卧室与公共卫生间相邻,位置上方便使用。

△三层平面图
三层与二层布局基本一致,仅将阳光房部分修改为具有晾晒和洗衣功能的房间。此处空间暂定为书房,后续业主可根据需求进行功能修改。
9、

湖南邵阳易家四合院
建设地点
湖南邵阳
尺 寸
面宽23.0米 进深23.0米
建筑面积
360.0㎡
项目概况

△总平面示意图
项目位于湖南,基地四周地势不平,存在高低差异。东、西两侧与邻居家住宅间距较大,北侧小树林与基地存在高差,南侧是村内道路。
业主个人偏爱传统文化,因此建筑设计为中式风格。
图纸设计

△一层平面图
平面根据业主要求严格按照东西对称布局,建筑为四合院形式,由于对称原因,院门位于正中。
正房中间为堂屋,两侧布置四间卧室,配备衣帽间和独立卫生间。考虑到建筑风水东为上,东厢房用作居住空间,西厢房布置餐厅和厨房。根据业主及其家人使用习惯,厨房特意配有土灶,方便家人使用。
倒座空间起到接待功能和辅助功能,客厅位于西南角,与公卫相邻。书房与杂物间位于院门东侧,与车库相邻。

△二层平面图
由于场地面积有限,厢房屋顶采用平屋顶,将茶室与健身房等其他功能划分在二层。
平面户型解决了业主的所有功能需求,并兼顾了当地习俗和家人使用习惯等问题。
10、

山西太原杜家现代别墅
建设地点
山西太原
尺 寸
面宽15.8米 进深15.8米
建筑面积
199.0㎡
项目概况

△总平面示意图
项目位于山西,基地东南角是道路,东侧是邻居家住宅,东北角是另一户邻居家建筑,西、北两侧是道路,南侧是邻居家住宅。
业主比较喜欢简约和具有田园感觉的建筑,因此建筑最终设计为现代风格。
图纸设计
建筑主轮廓为长方形,两侧凸起部分是室内空间的向外延伸。整个建筑室内采光极佳,每一面都有开窗,且空间功能设计上尽量做到纯粹。
西侧建筑与院墙保留滴水距离,东侧则预留人行通道,可以从院门直接到达厨房处后门,使用上极为便捷。

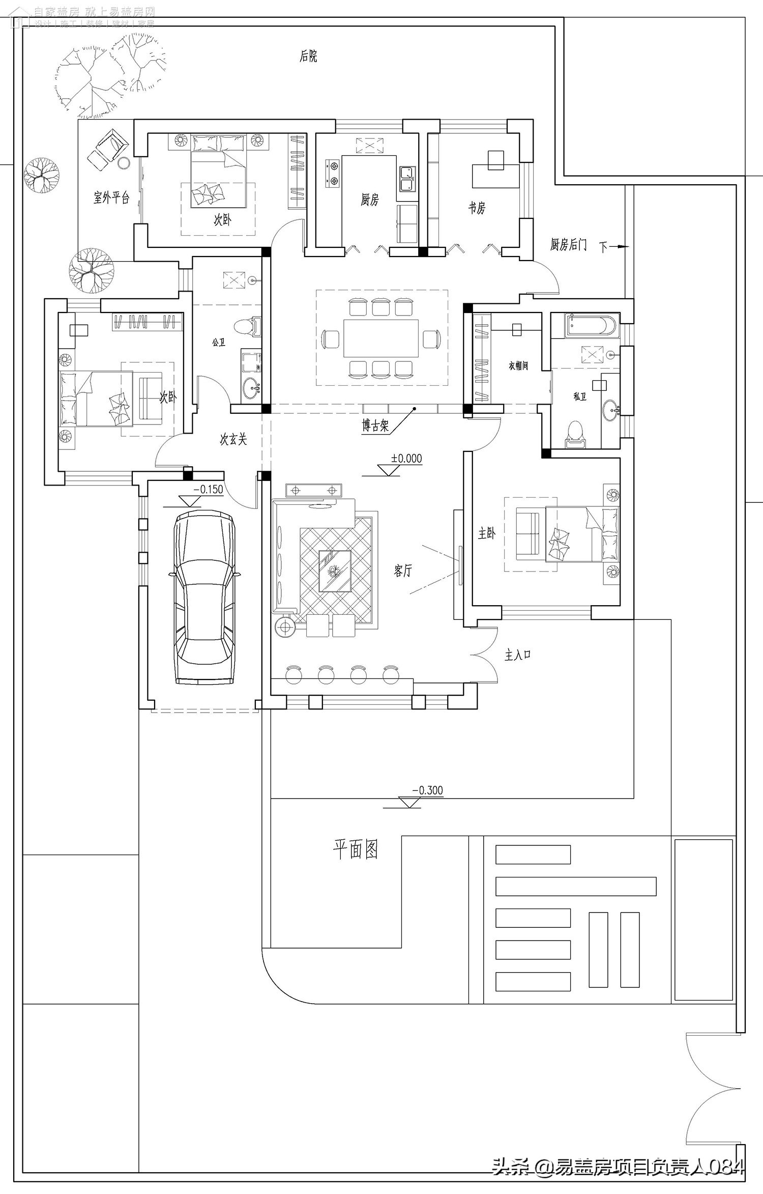
△一层平面图
入户门在东侧,让客厅相对开敞的空间不会过于暴露,室内选用落地窗将景色和阳光一起引入室内。通过博古架确定客厅和餐厅分界,同时镂空设计不会阻碍视线。
入口和客厅前方的室外设计有两个木质休息平台,不仅提供了赏景休息的地方,也是入户位置的自然过渡。
主卧设计十分舒服,入口灰空间让衣帽间和起居空间连通方便、自然。车库位于西南角,与建筑主体直接连通,连通空间设计有次玄关,使得通往客厅和餐厅的流线更加舒服。