
一层平面布局图

二层平面布局图

门头
本案是#乐山# #万达#片区的一家舞蹈培训学校,一起来看看设计改造吧!
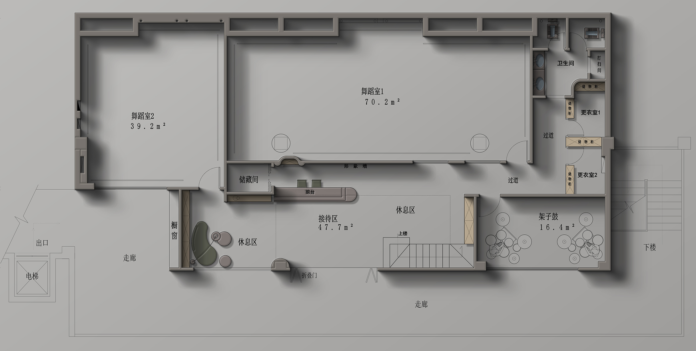
因为学校是在商业的二楼,所以在通道区域做了显眼一些的改造。整个通道的位置也是非常舒服,左边是休息区,透过玻璃门也可以看到一组特别好看的沙发和等候的人群,右手边是弧形的门窗洞,里面是架子鼓的位置,在过道行走,来往观看感觉更很不错。

门头

接待区
进门后是接待大厅,整个区域都是挑空层,非常舒适,印入眼前的的前台位置,背景采用弧形造型加红色柜体调和色彩,另外再放置一些证书和奖杯也是相当好看的。左边是沙发等待区,沙发背景采用弧形造型,镂空隔板再放置物品。进门右手区域是楼梯的位置,楼梯下面的位置正好做了储物空间,一些红色的开放格正好放些书籍,这里再设置个休息区,通过这个位置后,是更衣区和卫生间。

接待区

接待区

接待区

前台

接待部

接待区
上楼后,走过通道是综合教室,右边区域设置了单独的两个钢琴室,以及办公室的区域。整提色调采用白色系列,用一些现代元素调和,简单又好看。我是持续分享真实案例的阳哥,欢迎点赞、关注、收藏,您的支持是我更新的动力!

舞蹈室

舞蹈室

舞蹈室

舞蹈室