
极简不等于什么都不要,而是追求设计形式与功能需求的平衡,打造出最纯粹的空间,营造出最简约舒适的居住体验。
像本期要分享的案例就是如此,房子位于北京,夫妻俩坚持“极简装修”,把90㎡的家装修得堪称教科书,太高级了。全屋以 黑白灰为空间的主基调,打造出简约、极致的生活居所。
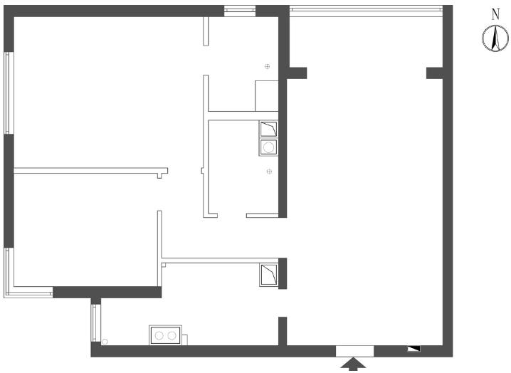
原户型图

90㎡两居室,原户型存在以下问题:
1、整体缺乏储物空间,且玄关鞋柜处于不规则状态;
2、原有两个卫生间面积都比较小,且没有干湿分离,日常使用不是很方便。
平面布置图

改造后,优化平面布局:
1、拆除玄关和厨房隔墙,利用鞋柜做隔断,隐形门一体柜设计,美观大气;
2、对客卫靠近过道墙体进行改造,实现干湿分离格局同时嵌入洗衣机和烘干机;
3、调整主卧门洞位置,增加主卧储物柜空间。主卫取消淋浴区,给客卫增加使用空间。
玄关

改造后玄关,进门设计了一体式鞋柜,换鞋+次净衣收纳+鞋柜收纳,不仅空间更规整,实用性也提升一个档次。整体简洁的表现形式,让人越看越喜欢。
客厅

客厅简单明了,没有多余的装饰。遵循极简原则,灰白黑的色调个性十足。阳台直接纳入客厅,采光好空间通透。嵌入式筒灯+轨道射灯布局,满足不同照明需求。

没有繁杂堆砌的设计,沙发背景墙在灰色基础上,加入一层白色,勾勒出空间层次。黑色轨道灯+白色吊灯,打造出视觉艺术。

电视墙依旧是极简风设计,纯净的白色让空间更显干净宽敞,黑色悬浮电视柜与白色到顶柜,形成穿插设计,更能体现设计感,而黑色的加入,也可以平衡白色的冷冽单调。
餐厅

餐厅经典的黑白配,到顶的白色餐边柜设计,上下为封闭式储物空间,中间开放式展示空间,实用性更强。黑色的家具平衡了空间,弧形的餐桌巧妙的柔化了空间暗色系的压抑感。
过道


两储物柜筑起的门洞,作为室内动静分区的连接,同时增加了过道的功能性设计,将客卫洗手台盆外移,释放客卫面积,优化了使用动线。

过道洗手台设计,左侧嵌入摆放洗衣机和烘干机,整洁统一也保证了过道的宽度。
厨房

厨房综合考虑后,直接采用了黑灰色调,简洁明了整体契合度很高。在老式厨房基础上,加入了很多现代科技,洗碗机和蒸烤箱一同嵌入橱柜内,整体美观。
主卧

主卧通过点线面的设计,营造出极简高级感,诠释纯净现代感。主卧横向距离较长,因此靠近卫生间一侧,设计了悬空带暗藏收纳的梳妆台,美观实用。

依旧是白色为主的空间,主卫靠近窗侧,隐形门设计降低了门洞存在感。主卧衣柜和墙面齐平,收纳隐形美观。
主卫

主卫重新规划,仅保留了马桶和台盆功能,依旧是黑白灰的色调组合,质感还是不错的。
儿童房

儿童房没有改动结构,重新梳理内部格局,让有限空间更合理化。颜色在灰白基础上加入了莫兰迪蓝色,让空间多了几分灵动感,适合未来小朋友居住。

转角落地小阳台,利用仅有的空间布置了升降书桌,居家办公和学习使用都很不错。
卫生间

客卫由于盥洗区外移过道,内部空间宽松很多。淋浴区和马桶做了干湿分离处理,淋浴区设计壁龛方便放置洗浴用品,地漏设计了长条隐形地漏,美观实用。(图片来源:@云深空间设计事务所,如有侵权联系删除)