除夕晚上,中国人会全家团员在一起吃年夜饭,这顿饭是我们的团聚饭,也是一年中最丰盛、最重要的晚餐。但是由于各地饮食习惯不同,各地农村朋友年夜饭饭桌上的菜也大有不同,比如湖南农村年夜饭必有的一道菜是腊肉腊鱼,山东农村会有各种面食,湖北农村讲究“三全”“三糕”,四川农村有腊肠…大家也可以在评论区说说你们那年夜饭必有的一道菜是什么。
说完了美食,小编继续来给大家推荐2020最受欢迎的10套农村自建房图纸,有吃有住,这才是新农村最向往的生活!
第1套图纸:

这是一栋占地较大的欧式住宅,外观为经典的简欧式设计,少了些唯美多了些稳重气息,适合作为养老房使用。室内布局方面,南北通透,最大亮点在于堂屋、一楼影视厅和柴火房设计,方便农村生活,而且在二层也设计了一个厨房,可以让父母居住一层,业主小家居住在二层,方便使用。



第2套图纸:

这套设计一眼就让人看到别墅通透的落地窗,隐隐约约透露出一家人生活的温馨场景,是一套适合农村人自建的住宅外观。室内布局不同于外观,非常接地气,入户便是堂屋,客厅宽敞并与餐厅联通,室内空间看起来更加宽敞,为了照顾老人的居住感受,将一层老人房设置在阳面,并设计内卫,十分贴心。


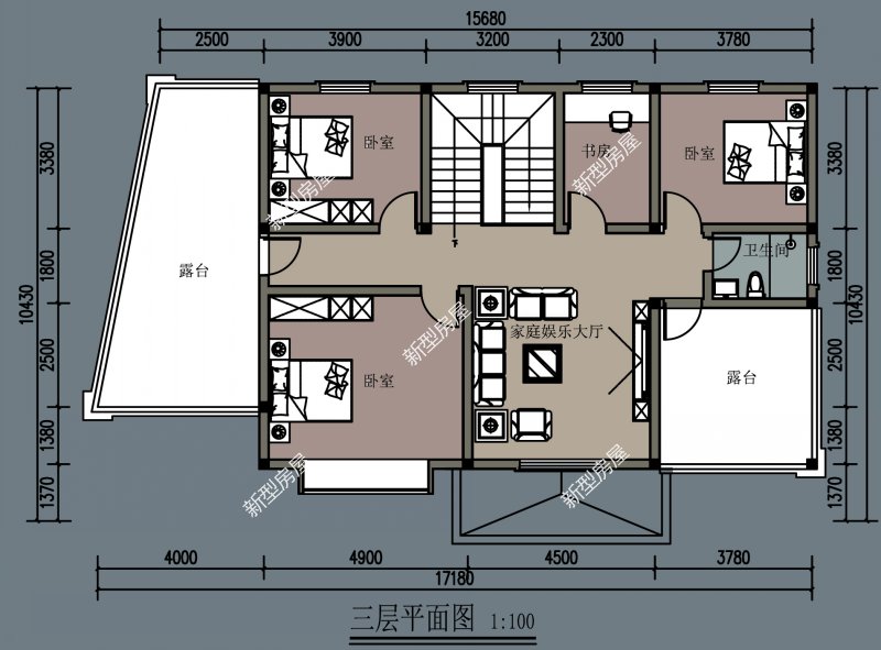
第3套图纸:

简约的欧式外观,精致的坡屋顶,华丽的拱形窗,唯美的罗马柱和花瓶栏杆,都让这套住宅外观十分惹人心动。室内首先设计了一个入户车库,能够方便业主安全停放爱车,但遗憾之处就是一层卧室只能设计在北面,所以建议业主将一层卧室作为客房,家人可主要居住在二层。


第4套图纸:

这套住宅外观是近两年在农村非常流行的,外沿廊设计很有美式乡村住宅风格,整体有种悠闲、自然的度假别墅之感。入户是玄关设计,考虑到家人隐私,客厅处没有全设落地窗,而是设计了落地竖窗,同样给室内带来优渥的采光,外观看起来更加复古,二层设计一个娱乐室,也能丰富农村业余生活。


第5套图纸:

回农村盖养老房,要说实用,那还得是一层住宅。考虑到一层住宅外观设计局限大,设计师便在坡屋顶上设计了一个老虎窗,外立面也是采用了文化石和白色墙漆搭配,整体看上去更有层次感。布局动静分区,洁污分离,相信居住起来一定会非常舒适。

第6套图纸:

接下来这套设计是一套双拼户型,两家分开入户,共用茶室和客厅,这样一家人逢年过节也非常热闹,而为了保证两家居住的独立性,厨餐厅和卧室都分隔开来,这样设计,两家居住在一起既能互相照顾,也不会打扰到对方生活。


第7套图纸:

一层的中式合院若不是宅基地限制,相信是每个农村自建房朋友的梦想吧!纵使院外再多喧嚣,当推开木门,步入这座古朴的小院内,相信所有纷扰都会被忘在脑后…院内绿意丛生,一步一景,只有中式小院,才能赋予中国人真正家的含义!

第8套图纸:

现在农村自建房设计外装一般都采用文化石和真石漆搭配,但也有很多农村朋友钟爱在住宅外墙铺贴瓷砖,这套图纸设计外装就是采用瓷砖装饰。外墙整体采用白色瓷砖,窗框和方柱则采用更深色瓷砖,整体搭配起来很有层次感,精致美观。室内布局和其他设计不同,是广东一位业主的定制设计,所以完全参考他的需求来设计,大家也可以作为参考。



第9套图纸:

这套设计外观十分简约,考虑到小面宽宅基地建房的限制,设计师将老人房设计在阳面,享受最好的采光与通风,客厅处开设天窗辅助采光,能满足室内基本的光照需求,二层则多设计卧室,亲友来家做客也能方便留宿,最实用的设计便是考虑到有些朋友宅基地若不够设计院子,便将三层设计为平屋顶作为露台使用,观景休闲、晾晒衣物都再方便不过!


第10套图纸:

最后一套是简约时尚的现代风格住宅,有些农村朋友对于现代户型的接受度不高,所以这套住宅外观并未做太前卫的设计,流畅的线条,通透的玻璃,经典的黑白配色,便能打造一栋适合农村建造的现代风格别墅。


怎么样?看了这10套乡村别墅设计图纸,你知道该建一栋什么样的房子了吗?
关注新型房屋,每天都有更多建房知识、乡邻晒家、户型图纸分享。