1-平面布置图
平面布置图通常是设计过程中首先触及的内容,空间的划分、功能的分区是否合理关系到使用效果和精神感受。


平面布置图表达内容有:
1、建筑主体结构。
2、各功能空间的家具的形状和位置。
3、厨房、卫生间的橱柜、操作台、洗手台、浴缸、马桶等形状和位置。
4、家电的形状、位置。
5、隔断、绿化、装饰构件、装饰小品。
6、标注建筑主体结构的开间和进深等尺寸、主要装修尺寸。
7、装修要求等文字说明。
平面布置图的画法步骤:
1、选比例、定图幅。
2、画出建筑主体结构平面图。
3、画出厨房设备、家具、卫生洁具、电器设备、隔断、装饰构件等的布置。
4、标注尺寸、剖面符号、详图索引符号、图例名称、文字说明。
5、画出地面的拼花造型图案、绿化等。
6、描粗整理图线。

2-楼地面装修图
楼地面装修图:地面的造型、材料名称和工艺要求。
作用:
1、施工依据
2、地面材料采购的参考图样。
表达各功能空间的地面的铺装形式,注明所选用材料的名称、规格;有特殊要求的还要注明工艺做法和详图尺寸标注方面,主要标注地面材料拼花造型尺寸、地面的标高。

地面装修图的画法步骤
1、选比例、定图幅;
2、画出建筑主体结构平面图和现场制作的固定家具、隔断、装饰构件;
3、画出厨房设备、家具、卫生洁具、电器设备、隔断、装饰构件等的布置;
4、标注尺寸、剖面符号、详图索引符号、图例名称、文字说明;
5、画出地面的拼花造型图案、绿化等;
6、描粗整理图线;
3-天花平面图
天花的功能作用:
1-装饰
2-照明
3-音响
4-空调
5-防火
天花装修的形式:
1-悬吊式
2-直接式。
天花平面图通常采用“镜像”投影作图
天花平面布置图表达的内容
1、建筑主体结构一般可以不表示(虚线表示门窗位置);
2、天花造型、灯饰、空调风口、排气扇、消防设施的轮廓线,条块饰面材料的排列方向线;
3、建筑主体结构的主要轴线、轴号,主要尺寸;
4、天花造型及各类设施的定形定位尺寸、标高;
5、天花的各类设施、各部位的饰面材料、涂料规格、名称、工艺说明;
6、节点详图索引或剖面、断面等符号。



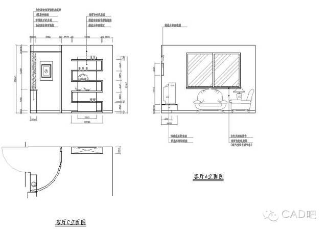
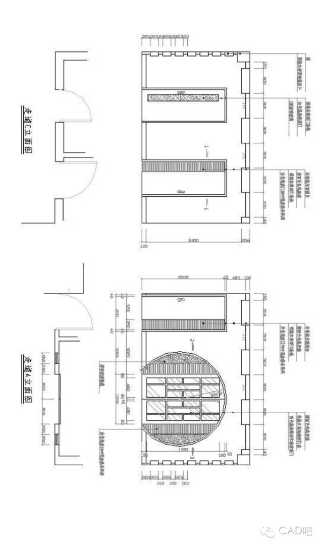
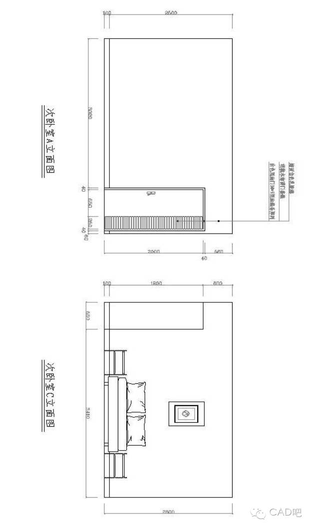
4-墙柱面装修图
墙柱面装修图主要表示建筑主体结构中铅垂立面的装修方法。
墙柱面装修图的主要内容有:
1、墙柱面造型的轮廓线、壁灯、装饰件等;
2、吊顶天花及吊顶以上的主体结构;
3、墙柱面饰面材料、涂料的名称、规格、颜色、工艺说明等;
4、尺寸标注:壁饰、装饰线等造型定形尺寸、定位尺寸;楼地面标高、吊顶天花标高等;
5、详图索引、剖面、断面等符号标注;
6、立面图两端墙柱体的定位轴线、编号。


墙面装修图画法步骤
1、选比例、定图幅,画出地面、楼板及墙面两端的定位轴线等;
2、画出墙面的主要造型轮廓线;
3、画出墙面次要轮廓线、尺寸标注、剖面符号、详图索引、文字说明;
4、描粗整理图线:
建筑主体结构的梁、板、墙用粗实线;
墙面主要造型轮廓线用中实线;
次要的轮廓线,如装饰线、浮雕图案等用细实线表示。

5-节点装修详图
节点装修详图指的是装修细部的局部放大图、剖面图、断面图等。
节点详图画法步骤:
1、选比例、定图幅,画出地面、楼板及墙面两端的定位轴线等;
2、画出墙面的主要造型轮廓线;
3、画出墙面次要轮廓线、尺寸标注、剖面符号、详图索引、文字说明;
4、描粗整理图线:
建筑主体结构的梁、板、墙用粗实线;
墙面主要造型轮廓线用中实线;
次要的轮廓线,如装饰线、浮雕图案等用细实线表示。





6-全套设计图


















