案例名称:合肥融侨天骏
面积:125平米建筑面积
设计风格:庄重豪气(欧+美系混搭)
设计师:朱安法(10年设计大师,工程师)
设计说明:
本案客户通过这些年的打拼已经是个小有成就的商人,对生活品质及家的舒适度要求还是蛮高的。所以业主和我都想在这个作品里展现出我们理解的一种沉稳奢华。
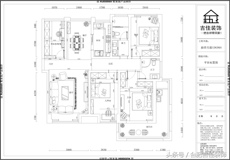
户型图:


我们深知无论什么风格的作品,最重要的是空间结构的合理。所以本案在空间结构上做了很多优化处理。 原本入户花园改造成温馨的书房兼储藏间来使用,并利用原户花园的移门改成鞋帽柜来方便使用及增加储物。原餐厅太小,把隔壁的小阳台改进来,餐厅就够用了,而且也可以做个小酒柜,弥补一下原来餐厅小做不了酒柜的缺陷,也改善整个区域的采光通风。还有就是客卫有个飘窗(下面是放客卧室外机的),通过我们的改造既满足了客卫淋雨区所需要的使用空间又不影响次卧的室外机放置。
效果图:







客厅经过精心的布置,电视墙墙采用精美的玉石加以造型线条来提升整体装修品质。弧度的天花吊顶及仿古吊灯完美结合,给人以庄重豪气之感。整个地面采用拼花饰面,与墙面的墙布形成对应,以及复古的沙发、欧式的茶几电视柜,共同营造温馨祥和的气氛。卧室和书房还是以淡雅为主,没有多余的色彩,天花也是以简洁的线条来简化整合,在家具配置上,本案选用的家具,气质沉稳高贵,细节雕刻精美,洋溢着古典的沉稳华丽。局部点缀绿植鲜花,营造出自然舒适的气氛。整体最终呈现出来还是令业主比较满意的。
实景图欣赏:
大理石背景墙及沙发墙:







地面拼花工艺:





实木家具系列:








造型吊顶部分:







儿童房特写:





了解更多精彩案例请关注吉佳微信公众号:JJ64451900,
老王看装修(图文系列),另外还可以加入我们的老王大话装修QQ群 群号:519397135;老王欢迎您!
吉佳微信公众号:JJ64451900
网址:http://3g.jijia365.com/
地址:合肥市蜀山区望江路五彩国际大厦11F