城 市
川流不息的车辆,形形色色的人群
每一天,城市如浪潮般奔腾,天南西北的上班族如沙丁鱼般夹杂在狭长的地铁车厢里,在早晚高峰中交换着彼此的倦意与英雄梦想。
当城市的纷繁嘈杂成为生活的常态,我们便渴望卸下倦意,追求清雅之境,在自在自如的工作氛围中全情投入。
When the hustle and bustle of the city becomes the normal state of life, we are eager to get rid of tiredness, pursue the elegant environment, and fully devote ourselves to the comfortable working atmosphere.

空 间
川流不息的车辆,形形色色的人群
“人闲桂花落,夜静春山空”这恰恰是《木空》本案设计师想要表达的理念诉求——他将「木」赋予整个空间氛围,让「空」解释一禅一松的东方智慧,希望用一种简单的方式在这城市的纷乱中觅得一方净土。
"The person is free osmanthus falls, night static spring hill is empty" this is exactly "wood is empty" the concept appeal that stylist of this case wants to express -- he gives "wood" whole space atmosphere, let "empty" explain the Oriental wisdom of one zen one song, hope to find one side pure land in the chaos of this city in a kind of simple way.

冷峻不苟的黑色塑料转轮办公椅,整齐划一的洁白电脑桌,黑与白的搭色...这是我们对于“办公室”的刻板印象。但,办公室只能是这样吗?
现代人对空间的追求不只是舒适与美观,渐渐将对工作空间的思考转变对人文艺术的态度。办公区域设计的最终不仅是一个功能齐全的工作与协作空间,也是艺术氛围的催化剂。
Modern people's pursuit of space has not only been comfortable and beautiful, but also gradually changed their thinking on the working space and their attitude towards the humanities and art. The design of the office area is not only a fully functional work and collaboration space, but also a catalyst for the artistic atmosphere.


空间概览 · 既可独处也能容纳交流的空间
Space for both solitude and communication
设计师钟情于简练而富有层次的空间美感。可以想像,整个空间由5个极具趣味性的木盒子组成,设计师进行了垂直与水平空间划分与组合,赋予每个盒子不一样的功能和使命。
Interior stylist is fond of at concise and rich dimensional aesthetic feeling of administrative levels.It can be imagined that the whole space is composed of 5 extremely interesting wooden boxes. The designer divided and combined the vertical and horizontal Spaces to give each box a different function and mission.

▼办公区域轴测图,axonometric drawing

▼办公区域轴测图,axonometric drawing
整个空间分为公共区域、接待区、装置区域、办公区域等,以整个公共区域展开形成围合,把所有的功能区域分布于四周,把整个办公区域放置在最里面的位置。
The whole space is divided into public area, reception area, device area, office area, etc., with the whole public area developed to form a enclosure, all the functional areas are distributed around, the entire office area is placed in the innermost position.

▼办公区域入口,office area entrance

▼办公区域入口,office area entrance

▼开放空间的讨论区,meeting area in the open space

▼开放空间的讨论区,meeting area in the open space
最里面一个入口进去相对私密的是五个人的办公区,设计师利用相近色明亮度和地台高低变化的方式分隔了5个空间,维持空间内通透与开敞的氛围;1300高的隔断的高度正好可以阻挡人坐下时的视线,即可保证独处时光也能容纳交流。这里借用了柯布西耶在拉图雷特修道院里对于最小尺度的探讨。
空间中的一抹红跳脱于整体木色,是消防栓的位置,把原本无趣的实用性装置转化成装点空间的亮点,同时也给工作者带来一点振奋感,探索生活与工作中更多未知的可能性。
In the inner entrance, the office area of five people is relatively private. The designer separated the five Spaces by the way of similar color brightness and floor height change to maintain the transparent and open atmosphere in the space. The height of partition of 1300 tall just can block the line of sight when the person sits down, can assure alone time also can accommodate communication. It borrows from corbusier's discussion of the smallest scale in the monastery of la tourette.
A touch of red in the space jumped out of the overall wood color, is the location of the fire hydrant, the original boring practical device into decorative space highlights, but also to bring a little sense of vitality to the workers, explore more unknown possibilities in life and work.

▼办公场景,working environment

▼办公场景,working environment

▼办公场景,working environment
立面木材 · 赋予空间纯净且获得安定心性的力量
Endow the space with the power of purity and peace of mind
设计师创造空间讲究一个“度”,过犹不及的分寸感。冷峻木色与笔挺点面,简中求精得震撼人心。
灯光暗影,一桌一椅,创造出使人眷恋与温情的空间体验,探索自然美学生息不绝,在静谧清澈的木香中品味近在咫尺的诗与远方。
The space that stylist creates pays attention to "degree", the cent feeling that goes too far is not as good as. Cool wood color and straight point surface, Jane in the refinement of the shock.
The light and shadow, one desk and one chair create the space experience that makes people sentiment-attached and tender, explore the natural aesthetics, and taste the poetry and distance close at hand in the quiet and clear wood fragrance.

▼探索空间与自然关系的木色,view of the co-working space

人
川流不息的车辆,形形色色的人群
热情生活,适度冷漠。
当生活归于平淡和宁静,我们每一个人的内心却仍需保持热泪盈眶,没有虚张声势,没有繁华堆砌,只有灵魂的安宁、纯粹和饱满。因而我们摒弃循规蹈矩,将“人闲桂花落,夜静春山空”的意境融于生活的细枝末节,让每一个工作者能够在此挥洒着自由自在的书写方式。
设计对我们而言是景,亦是境。
Therefore, we abandon the rules and regulations, will be "people idle osmanthus falls, quiet night spring mountain air" artistic conception into the details of life, so that every worker can balance out a free way of writing.For us, design is both landscape and environment.

主案设计 | 吴家春
项目名称 | 星艺装饰广州总部
项目地点 | 广州·天河
项目面积 | 300㎡
主要材料 | KD木皮,摩根智能,弗兰克定制

Xingyi Design Case
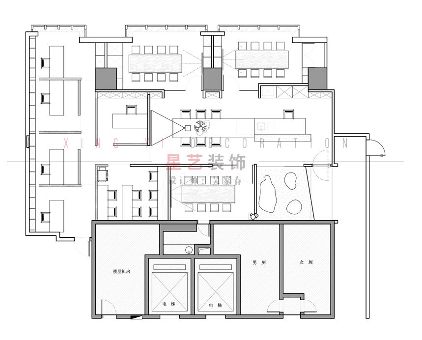
设计图纸呈现

(原建筑平面图)

(平面布置图)
