502 Bad Gateway


nginx
- 在哪儿资讯网

502 Bad Gateway

502 Bad Gateway


nginx

新~ 年 ~ 好 ~

新年放大招!头条号新型房屋图纸小工具在假期上线啦,点击本号主页正下方图纸中心就可以浏览、*载下**全套的建筑图了,全套图纸最便宜的只要1块9毛8,贵的也不过100来块钱。

当然这不是重点,重点是*载下**了图纸建房的,只要将建房过程、建成的漂亮家园多多拍图片,投稿给我们晒家,不仅仅返还图纸费用,还有额外的大红包送上哦。

话不多说,今天吧最新上线的10套建筑图户型分享给的大家。

户型一

占地尺寸:14.24m*13.74m

占地面积:176.34㎡

建筑面积:569.92㎡

户型描述:共设6室 5厅 1厨 8卫 1酒窖 1健身房 1书房 1茶室 2洗衣房 1阳台 2露台

<html>
<head><title>502BadGateway</title></head>
<body>
<center><h1>502BadGateway</h1></center>
<hr><center>nginx</center>
</body>
</html>
<!--apaddingtodisableMSIEandChromefriendlyerrorpage-->
<!--apaddingtodisableMSIEandChromefriendlyerrorpage-->
<!--apaddingtodisableMSIEandChromefriendlyerrorpage-->
<!--apaddingtodisableMSIEandChromefriendlyerrorpage-->
<!--apaddingtodisableMSIEandChromefriendlyerrorpage-->
<!--apaddingtodisableMSIEandChromefriendlyerrorpage-->

<html>
<head><title>502BadGateway</title></head>
<body>
<center><h1>502BadGateway</h1></center>
<hr><center>nginx</center>
</body>
</html>
<!--apaddingtodisableMSIEandChromefriendlyerrorpage-->
<!--apaddingtodisableMSIEandChromefriendlyerrorpage-->
<!--apaddingtodisableMSIEandChromefriendlyerrorpage-->
<!--apaddingtodisableMSIEandChromefriendlyerrorpage-->
<!--apaddingtodisableMSIEandChromefriendlyerrorpage-->
<!--apaddingtodisableMSIEandChromefriendlyerrorpage-->

<html>
<head><title>502BadGateway</title></head>
<body>
<center><h1>502BadGateway</h1></center>
<hr><center>nginx</center>
</body>
</html>
<!--apaddingtodisableMSIEandChromefriendlyerrorpage-->
<!--apaddingtodisableMSIEandChromefriendlyerrorpage-->
<!--apaddingtodisableMSIEandChromefriendlyerrorpage-->
<!--apaddingtodisableMSIEandChromefriendlyerrorpage-->
<!--apaddingtodisableMSIEandChromefriendlyerrorpage-->
<!--apaddingtodisableMSIEandChromefriendlyerrorpage-->

<html>
<head><title>502BadGateway</title></head>
<body>
<center><h1>502BadGateway</h1></center>
<hr><center>nginx</center>
</body>
</html>
<!--apaddingtodisableMSIEandChromefriendlyerrorpage-->
<!--apaddingtodisableMSIEandChromefriendlyerrorpage-->
<!--apaddingtodisableMSIEandChromefriendlyerrorpage-->
<!--apaddingtodisableMSIEandChromefriendlyerrorpage-->
<!--apaddingtodisableMSIEandChromefriendlyerrorpage-->
<!--apaddingtodisableMSIEandChromefriendlyerrorpage-->

<html>
<head><title>502BadGateway</title></head>
<body>
<center><h1>502BadGateway</h1></center>
<hr><center>nginx</center>
</body>
</html>
<!--apaddingtodisableMSIEandChromefriendlyerrorpage-->
<!--apaddingtodisableMSIEandChromefriendlyerrorpage-->
<!--apaddingtodisableMSIEandChromefriendlyerrorpage-->
<!--apaddingtodisableMSIEandChromefriendlyerrorpage-->
<!--apaddingtodisableMSIEandChromefriendlyerrorpage-->
<!--apaddingtodisableMSIEandChromefriendlyerrorpage-->

户型二

占地尺寸:12m*13.2m

占地面积:161㎡

建筑面积:483㎡

户型描述:8室 5厅 2厨 6卫 1书房

<html>
<head><title>502BadGateway</title></head>
<body>
<center><h1>502BadGateway</h1></center>
<hr><center>nginx</center>
</body>
</html>
<!--apaddingtodisableMSIEandChromefriendlyerrorpage-->
<!--apaddingtodisableMSIEandChromefriendlyerrorpage-->
<!--apaddingtodisableMSIEandChromefriendlyerrorpage-->
<!--apaddingtodisableMSIEandChromefriendlyerrorpage-->
<!--apaddingtodisableMSIEandChromefriendlyerrorpage-->
<!--apaddingtodisableMSIEandChromefriendlyerrorpage-->

<html>
<head><title>502BadGateway</title></head>
<body>
<center><h1>502BadGateway</h1></center>
<hr><center>nginx</center>
</body>
</html>
<!--apaddingtodisableMSIEandChromefriendlyerrorpage-->
<!--apaddingtodisableMSIEandChromefriendlyerrorpage-->
<!--apaddingtodisableMSIEandChromefriendlyerrorpage-->
<!--apaddingtodisableMSIEandChromefriendlyerrorpage-->
<!--apaddingtodisableMSIEandChromefriendlyerrorpage-->
<!--apaddingtodisableMSIEandChromefriendlyerrorpage-->

<html>
<head><title>502BadGateway</title></head>
<body>
<center><h1>502BadGateway</h1></center>
<hr><center>nginx</center>
</body>
</html>
<!--apaddingtodisableMSIEandChromefriendlyerrorpage-->
<!--apaddingtodisableMSIEandChromefriendlyerrorpage-->
<!--apaddingtodisableMSIEandChromefriendlyerrorpage-->
<!--apaddingtodisableMSIEandChromefriendlyerrorpage-->
<!--apaddingtodisableMSIEandChromefriendlyerrorpage-->
<!--apaddingtodisableMSIEandChromefriendlyerrorpage-->

<html>
<head><title>502BadGateway</title></head>
<body>
<center><h1>502BadGateway</h1></center>
<hr><center>nginx</center>
</body>
</html>
<!--apaddingtodisableMSIEandChromefriendlyerrorpage-->
<!--apaddingtodisableMSIEandChromefriendlyerrorpage-->
<!--apaddingtodisableMSIEandChromefriendlyerrorpage-->
<!--apaddingtodisableMSIEandChromefriendlyerrorpage-->
<!--apaddingtodisableMSIEandChromefriendlyerrorpage-->
<!--apaddingtodisableMSIEandChromefriendlyerrorpage-->

户型三

占地尺寸:12.64m*12.42m

占地面积:132.04㎡

建筑面积:328㎡

户型描述:共设6室 3厅 5卫 3书房 2阳台 1露台

<html>
<head><title>502BadGateway</title></head>
<body>
<center><h1>502BadGateway</h1></center>
<hr><center>nginx</center>
</body>
</html>
<!--apaddingtodisableMSIEandChromefriendlyerrorpage-->
<!--apaddingtodisableMSIEandChromefriendlyerrorpage-->
<!--apaddingtodisableMSIEandChromefriendlyerrorpage-->
<!--apaddingtodisableMSIEandChromefriendlyerrorpage-->
<!--apaddingtodisableMSIEandChromefriendlyerrorpage-->
<!--apaddingtodisableMSIEandChromefriendlyerrorpage-->

<html>
<head><title>502BadGateway</title></head>
<body>
<center><h1>502BadGateway</h1></center>
<hr><center>nginx</center>
</body>
</html>
<!--apaddingtodisableMSIEandChromefriendlyerrorpage-->
<!--apaddingtodisableMSIEandChromefriendlyerrorpage-->
<!--apaddingtodisableMSIEandChromefriendlyerrorpage-->
<!--apaddingtodisableMSIEandChromefriendlyerrorpage-->
<!--apaddingtodisableMSIEandChromefriendlyerrorpage-->
<!--apaddingtodisableMSIEandChromefriendlyerrorpage-->

<html>
<head><title>502BadGateway</title></head>
<body>
<center><h1>502BadGateway</h1></center>
<hr><center>nginx</center>
</body>
</html>
<!--apaddingtodisableMSIEandChromefriendlyerrorpage-->
<!--apaddingtodisableMSIEandChromefriendlyerrorpage-->
<!--apaddingtodisableMSIEandChromefriendlyerrorpage-->
<!--apaddingtodisableMSIEandChromefriendlyerrorpage-->
<!--apaddingtodisableMSIEandChromefriendlyerrorpage-->
<!--apaddingtodisableMSIEandChromefriendlyerrorpage-->

<html>
<head><title>502BadGateway</title></head>
<body>
<center><h1>502BadGateway</h1></center>
<hr><center>nginx</center>
</body>
</html>
<!--apaddingtodisableMSIEandChromefriendlyerrorpage-->
<!--apaddingtodisableMSIEandChromefriendlyerrorpage-->
<!--apaddingtodisableMSIEandChromefriendlyerrorpage-->
<!--apaddingtodisableMSIEandChromefriendlyerrorpage-->
<!--apaddingtodisableMSIEandChromefriendlyerrorpage-->
<!--apaddingtodisableMSIEandChromefriendlyerrorpage-->

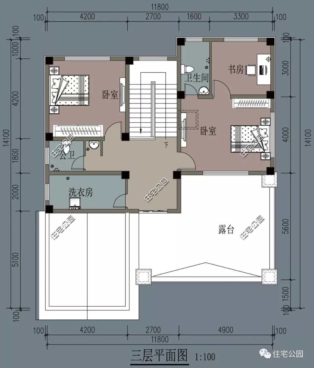
户型四

占地尺寸:11.8m*14.1m

占地面积:156.78㎡

建筑面积:376㎡

户型描述:共设7室 3厅 1厨 6卫 2书房 1储藏室 1洗衣房 1玄关 1阳台 2露台

<html>
<head><title>502BadGateway</title></head>
<body>
<center><h1>502BadGateway</h1></center>
<hr><center>nginx</center>
</body>
</html>
<!--apaddingtodisableMSIEandChromefriendlyerrorpage-->
<!--apaddingtodisableMSIEandChromefriendlyerrorpage-->
<!--apaddingtodisableMSIEandChromefriendlyerrorpage-->
<!--apaddingtodisableMSIEandChromefriendlyerrorpage-->
<!--apaddingtodisableMSIEandChromefriendlyerrorpage-->
<!--apaddingtodisableMSIEandChromefriendlyerrorpage-->

<html>
<head><title>502BadGateway</title></head>
<body>
<center><h1>502BadGateway</h1></center>
<hr><center>nginx</center>
</body>
</html>
<!--apaddingtodisableMSIEandChromefriendlyerrorpage-->
<!--apaddingtodisableMSIEandChromefriendlyerrorpage-->
<!--apaddingtodisableMSIEandChromefriendlyerrorpage-->
<!--apaddingtodisableMSIEandChromefriendlyerrorpage-->
<!--apaddingtodisableMSIEandChromefriendlyerrorpage-->
<!--apaddingtodisableMSIEandChromefriendlyerrorpage-->

<html>
<head><title>502BadGateway</title></head>
<body>
<center><h1>502BadGateway</h1></center>
<hr><center>nginx</center>
</body>
</html>
<!--apaddingtodisableMSIEandChromefriendlyerrorpage-->
<!--apaddingtodisableMSIEandChromefriendlyerrorpage-->
<!--apaddingtodisableMSIEandChromefriendlyerrorpage-->
<!--apaddingtodisableMSIEandChromefriendlyerrorpage-->
<!--apaddingtodisableMSIEandChromefriendlyerrorpage-->
<!--apaddingtodisableMSIEandChromefriendlyerrorpage-->

<html>
<head><title>502BadGateway</title></head>
<body>
<center><h1>502BadGateway</h1></center>
<hr><center>nginx</center>
</body>
</html>
<!--apaddingtodisableMSIEandChromefriendlyerrorpage-->
<!--apaddingtodisableMSIEandChromefriendlyerrorpage-->
<!--apaddingtodisableMSIEandChromefriendlyerrorpage-->
<!--apaddingtodisableMSIEandChromefriendlyerrorpage-->
<!--apaddingtodisableMSIEandChromefriendlyerrorpage-->
<!--apaddingtodisableMSIEandChromefriendlyerrorpage-->

户型五

占地尺寸:8.3m*13m

占地面积:110.49㎡

建筑面积:415.33㎡

户型描述:共设8室 5厅 6卫 1厨 1影音室 1书房 1阳台 3露台

<html>
<head><title>502BadGateway</title></head>
<body>
<center><h1>502BadGateway</h1></center>
<hr><center>nginx</center>
</body>
</html>
<!--apaddingtodisableMSIEandChromefriendlyerrorpage-->
<!--apaddingtodisableMSIEandChromefriendlyerrorpage-->
<!--apaddingtodisableMSIEandChromefriendlyerrorpage-->
<!--apaddingtodisableMSIEandChromefriendlyerrorpage-->
<!--apaddingtodisableMSIEandChromefriendlyerrorpage-->
<!--apaddingtodisableMSIEandChromefriendlyerrorpage-->

<html>
<head><title>502BadGateway</title></head>
<body>
<center><h1>502BadGateway</h1></center>
<hr><center>nginx</center>
</body>
</html>
<!--apaddingtodisableMSIEandChromefriendlyerrorpage-->
<!--apaddingtodisableMSIEandChromefriendlyerrorpage-->
<!--apaddingtodisableMSIEandChromefriendlyerrorpage-->
<!--apaddingtodisableMSIEandChromefriendlyerrorpage-->
<!--apaddingtodisableMSIEandChromefriendlyerrorpage-->
<!--apaddingtodisableMSIEandChromefriendlyerrorpage-->

<html>
<head><title>502BadGateway</title></head>
<body>
<center><h1>502BadGateway</h1></center>
<hr><center>nginx</center>
</body>
</html>
<!--apaddingtodisableMSIEandChromefriendlyerrorpage-->
<!--apaddingtodisableMSIEandChromefriendlyerrorpage-->
<!--apaddingtodisableMSIEandChromefriendlyerrorpage-->
<!--apaddingtodisableMSIEandChromefriendlyerrorpage-->
<!--apaddingtodisableMSIEandChromefriendlyerrorpage-->
<!--apaddingtodisableMSIEandChromefriendlyerrorpage-->

<html>
<head><title>502BadGateway</title></head>
<body>
<center><h1>502BadGateway</h1></center>
<hr><center>nginx</center>
</body>
</html>
<!--apaddingtodisableMSIEandChromefriendlyerrorpage-->
<!--apaddingtodisableMSIEandChromefriendlyerrorpage-->
<!--apaddingtodisableMSIEandChromefriendlyerrorpage-->
<!--apaddingtodisableMSIEandChromefriendlyerrorpage-->
<!--apaddingtodisableMSIEandChromefriendlyerrorpage-->
<!--apaddingtodisableMSIEandChromefriendlyerrorpage-->

<html>
<head><title>502BadGateway</title></head>
<body>
<center><h1>502BadGateway</h1></center>
<hr><center>nginx</center>
</body>
</html>
<!--apaddingtodisableMSIEandChromefriendlyerrorpage-->
<!--apaddingtodisableMSIEandChromefriendlyerrorpage-->
<!--apaddingtodisableMSIEandChromefriendlyerrorpage-->
<!--apaddingtodisableMSIEandChromefriendlyerrorpage-->
<!--apaddingtodisableMSIEandChromefriendlyerrorpage-->
<!--apaddingtodisableMSIEandChromefriendlyerrorpage-->

户型六

占地尺寸:10.24m*10.24m

占地面积:104.61㎡

建筑面积:345.39㎡

户型描述:共设1主卧 3室 3厅 1厨 4卫 1书房 1衣帽间 2阳台

<html>
<head><title>502BadGateway</title></head>
<body>
<center><h1>502BadGateway</h1></center>
<hr><center>nginx</center>
</body>
</html>
<!--apaddingtodisableMSIEandChromefriendlyerrorpage-->
<!--apaddingtodisableMSIEandChromefriendlyerrorpage-->
<!--apaddingtodisableMSIEandChromefriendlyerrorpage-->
<!--apaddingtodisableMSIEandChromefriendlyerrorpage-->
<!--apaddingtodisableMSIEandChromefriendlyerrorpage-->
<!--apaddingtodisableMSIEandChromefriendlyerrorpage-->

<html>
<head><title>502BadGateway</title></head>
<body>
<center><h1>502BadGateway</h1></center>
<hr><center>nginx</center>
</body>
</html>
<!--apaddingtodisableMSIEandChromefriendlyerrorpage-->
<!--apaddingtodisableMSIEandChromefriendlyerrorpage-->
<!--apaddingtodisableMSIEandChromefriendlyerrorpage-->
<!--apaddingtodisableMSIEandChromefriendlyerrorpage-->
<!--apaddingtodisableMSIEandChromefriendlyerrorpage-->
<!--apaddingtodisableMSIEandChromefriendlyerrorpage-->

<html>
<head><title>502BadGateway</title></head>
<body>
<center><h1>502BadGateway</h1></center>
<hr><center>nginx</center>
</body>
</html>
<!--apaddingtodisableMSIEandChromefriendlyerrorpage-->
<!--apaddingtodisableMSIEandChromefriendlyerrorpage-->
<!--apaddingtodisableMSIEandChromefriendlyerrorpage-->
<!--apaddingtodisableMSIEandChromefriendlyerrorpage-->
<!--apaddingtodisableMSIEandChromefriendlyerrorpage-->
<!--apaddingtodisableMSIEandChromefriendlyerrorpage-->

<html>
<head><title>502BadGateway</title></head>
<body>
<center><h1>502BadGateway</h1></center>
<hr><center>nginx</center>
</body>
</html>
<!--apaddingtodisableMSIEandChromefriendlyerrorpage-->
<!--apaddingtodisableMSIEandChromefriendlyerrorpage-->
<!--apaddingtodisableMSIEandChromefriendlyerrorpage-->
<!--apaddingtodisableMSIEandChromefriendlyerrorpage-->
<!--apaddingtodisableMSIEandChromefriendlyerrorpage-->
<!--apaddingtodisableMSIEandChromefriendlyerrorpage-->

户型七

占地尺寸:12.6m*11.06m

占地面积:131㎡

建筑面积:216㎡

户型描述:共设3室 3厅 1厨 2卫 1书房 2露台

<html>
<head><title>502BadGateway</title></head>
<body>
<center><h1>502BadGateway</h1></center>
<hr><center>nginx</center>
</body>
</html>
<!--apaddingtodisableMSIEandChromefriendlyerrorpage-->
<!--apaddingtodisableMSIEandChromefriendlyerrorpage-->
<!--apaddingtodisableMSIEandChromefriendlyerrorpage-->
<!--apaddingtodisableMSIEandChromefriendlyerrorpage-->
<!--apaddingtodisableMSIEandChromefriendlyerrorpage-->
<!--apaddingtodisableMSIEandChromefriendlyerrorpage-->

<html>
<head><title>502BadGateway</title></head>
<body>
<center><h1>502BadGateway</h1></center>
<hr><center>nginx</center>
</body>
</html>
<!--apaddingtodisableMSIEandChromefriendlyerrorpage-->
<!--apaddingtodisableMSIEandChromefriendlyerrorpage-->
<!--apaddingtodisableMSIEandChromefriendlyerrorpage-->
<!--apaddingtodisableMSIEandChromefriendlyerrorpage-->
<!--apaddingtodisableMSIEandChromefriendlyerrorpage-->
<!--apaddingtodisableMSIEandChromefriendlyerrorpage-->

<html>
<head><title>502BadGateway</title></head>
<body>
<center><h1>502BadGateway</h1></center>
<hr><center>nginx</center>
</body>
</html>
<!--apaddingtodisableMSIEandChromefriendlyerrorpage-->
<!--apaddingtodisableMSIEandChromefriendlyerrorpage-->
<!--apaddingtodisableMSIEandChromefriendlyerrorpage-->
<!--apaddingtodisableMSIEandChromefriendlyerrorpage-->
<!--apaddingtodisableMSIEandChromefriendlyerrorpage-->
<!--apaddingtodisableMSIEandChromefriendlyerrorpage-->

户型八

占地尺寸:11m*12.2m

占地面积:152.3㎡

建筑面积:418.7㎡

户型描述:7室 3厅 1厨 5卫 1书房 2洗衣房 1杂物间 2阳台 1露台

<html>
<head><title>502BadGateway</title></head>
<body>
<center><h1>502BadGateway</h1></center>
<hr><center>nginx</center>
</body>
</html>
<!--apaddingtodisableMSIEandChromefriendlyerrorpage-->
<!--apaddingtodisableMSIEandChromefriendlyerrorpage-->
<!--apaddingtodisableMSIEandChromefriendlyerrorpage-->
<!--apaddingtodisableMSIEandChromefriendlyerrorpage-->
<!--apaddingtodisableMSIEandChromefriendlyerrorpage-->
<!--apaddingtodisableMSIEandChromefriendlyerrorpage-->

<html>
<head><title>502BadGateway</title></head>
<body>
<center><h1>502BadGateway</h1></center>
<hr><center>nginx</center>
</body>
</html>
<!--apaddingtodisableMSIEandChromefriendlyerrorpage-->
<!--apaddingtodisableMSIEandChromefriendlyerrorpage-->
<!--apaddingtodisableMSIEandChromefriendlyerrorpage-->
<!--apaddingtodisableMSIEandChromefriendlyerrorpage-->
<!--apaddingtodisableMSIEandChromefriendlyerrorpage-->
<!--apaddingtodisableMSIEandChromefriendlyerrorpage-->

<html>
<head><title>502BadGateway</title></head>
<body>
<center><h1>502BadGateway</h1></center>
<hr><center>nginx</center>
</body>
</html>
<!--apaddingtodisableMSIEandChromefriendlyerrorpage-->
<!--apaddingtodisableMSIEandChromefriendlyerrorpage-->
<!--apaddingtodisableMSIEandChromefriendlyerrorpage-->
<!--apaddingtodisableMSIEandChromefriendlyerrorpage-->
<!--apaddingtodisableMSIEandChromefriendlyerrorpage-->
<!--apaddingtodisableMSIEandChromefriendlyerrorpage-->

<html>
<head><title>502BadGateway</title></head>
<body>
<center><h1>502BadGateway</h1></center>
<hr><center>nginx</center>
</body>
</html>
<!--apaddingtodisableMSIEandChromefriendlyerrorpage-->
<!--apaddingtodisableMSIEandChromefriendlyerrorpage-->
<!--apaddingtodisableMSIEandChromefriendlyerrorpage-->
<!--apaddingtodisableMSIEandChromefriendlyerrorpage-->
<!--apaddingtodisableMSIEandChromefriendlyerrorpage-->
<!--apaddingtodisableMSIEandChromefriendlyerrorpage-->

户型九

占地尺寸:25.24m*31.12m

占地面积:368㎡

建筑面积:656㎡

户型描述:主房共6室 2农具间 2厅 1影音室 3储藏室 1功能间 1锅炉房 5卫 1阳台 附属房共设2室 2厅 1厨 2卫 2车库

<html>
<head><title>502BadGateway</title></head>
<body>
<center><h1>502BadGateway</h1></center>
<hr><center>nginx</center>
</body>
</html>
<!--apaddingtodisableMSIEandChromefriendlyerrorpage-->
<!--apaddingtodisableMSIEandChromefriendlyerrorpage-->
<!--apaddingtodisableMSIEandChromefriendlyerrorpage-->
<!--apaddingtodisableMSIEandChromefriendlyerrorpage-->
<!--apaddingtodisableMSIEandChromefriendlyerrorpage-->
<!--apaddingtodisableMSIEandChromefriendlyerrorpage-->

<html>
<head><title>502BadGateway</title></head>
<body>
<center><h1>502BadGateway</h1></center>
<hr><center>nginx</center>
</body>
</html>
<!--apaddingtodisableMSIEandChromefriendlyerrorpage-->
<!--apaddingtodisableMSIEandChromefriendlyerrorpage-->
<!--apaddingtodisableMSIEandChromefriendlyerrorpage-->
<!--apaddingtodisableMSIEandChromefriendlyerrorpage-->
<!--apaddingtodisableMSIEandChromefriendlyerrorpage-->
<!--apaddingtodisableMSIEandChromefriendlyerrorpage-->

<html>
<head><title>502BadGateway</title></head>
<body>
<center><h1>502BadGateway</h1></center>
<hr><center>nginx</center>
</body>
</html>
<!--apaddingtodisableMSIEandChromefriendlyerrorpage-->
<!--apaddingtodisableMSIEandChromefriendlyerrorpage-->
<!--apaddingtodisableMSIEandChromefriendlyerrorpage-->
<!--apaddingtodisableMSIEandChromefriendlyerrorpage-->
<!--apaddingtodisableMSIEandChromefriendlyerrorpage-->
<!--apaddingtodisableMSIEandChromefriendlyerrorpage-->

<html>
<head><title>502BadGateway</title></head>
<body>
<center><h1>502BadGateway</h1></center>
<hr><center>nginx</center>
</body>
</html>
<!--apaddingtodisableMSIEandChromefriendlyerrorpage-->
<!--apaddingtodisableMSIEandChromefriendlyerrorpage-->
<!--apaddingtodisableMSIEandChromefriendlyerrorpage-->
<!--apaddingtodisableMSIEandChromefriendlyerrorpage-->
<!--apaddingtodisableMSIEandChromefriendlyerrorpage-->
<!--apaddingtodisableMSIEandChromefriendlyerrorpage-->

户型十

占地尺寸:18.44m*18.34m

占地面积:301㎡

建筑面积:273㎡

户型描述:7室 5厅 1影音室 1厨 3卫 1浴室 1洗衣房 1天井 1檐廊

<html>
<head><title>502BadGateway</title></head>
<body>
<center><h1>502BadGateway</h1></center>
<hr><center>nginx</center>
</body>
</html>
<!--apaddingtodisableMSIEandChromefriendlyerrorpage-->
<!--apaddingtodisableMSIEandChromefriendlyerrorpage-->
<!--apaddingtodisableMSIEandChromefriendlyerrorpage-->
<!--apaddingtodisableMSIEandChromefriendlyerrorpage-->
<!--apaddingtodisableMSIEandChromefriendlyerrorpage-->
<!--apaddingtodisableMSIEandChromefriendlyerrorpage-->

<html>
<head><title>502BadGateway</title></head>
<body>
<center><h1>502BadGateway</h1></center>
<hr><center>nginx</center>
</body>
</html>
<!--apaddingtodisableMSIEandChromefriendlyerrorpage-->
<!--apaddingtodisableMSIEandChromefriendlyerrorpage-->
<!--apaddingtodisableMSIEandChromefriendlyerrorpage-->
<!--apaddingtodisableMSIEandChromefriendlyerrorpage-->
<!--apaddingtodisableMSIEandChromefriendlyerrorpage-->
<!--apaddingtodisableMSIEandChromefriendlyerrorpage-->

今天是大年初六,新春的脚步已渐远;

至此,2018新春假期的特辑也为大家放送完毕!

一年之计在于春,选择一套图纸,开春就动工盖新房吧!

关注本号,农村别墅图纸、建房省钱秘籍,点击下方“了解更多”可以*载下**全套建施图哦!