我们后台收到粉丝提问最多的留言,就是左右有邻居不能开窗,房子应该怎么设计?今天就给大家推荐8套东西无窗的农村别墅图纸,一层二层三层都有,总有一套适合你家宅基地。
第1套:动静分离+东西无窗,15×11米舒适一层户型,主体预算23万
占地尺寸:15.6m × 11.3m
占地面积:172.54㎡
建筑面积:172.54㎡
建筑高度:7.04m
建筑结构:框架结构
建筑情况:设3卧室 1客厅 1餐厅 1厨房 2卫 1阳台


第2套:通透布局+落地窗+舒适阳台,13×18米雅致中式宅院,主体预算35万
占地尺寸:13m×10.8m
占地面积:140.3㎡
建筑面积:287㎡
建筑高度:9.18m
建筑结构:砖混结构
建筑情况:8卧 5卫 1玄关 1厨房 1餐厅 1大客厅 1起居室 1阳台



第3套:衣帽间+茶室+老人房,10×9米二层住宅,主体预算25万
占地尺寸:10.7m × 9.84m
占地面积:101.99㎡
建筑面积:199㎡
建筑高度:9.85m
建筑结构:砖混结构
建筑情况:设4室 2厅 2卫 1厨 1客厅 1衣帽间 1茶室



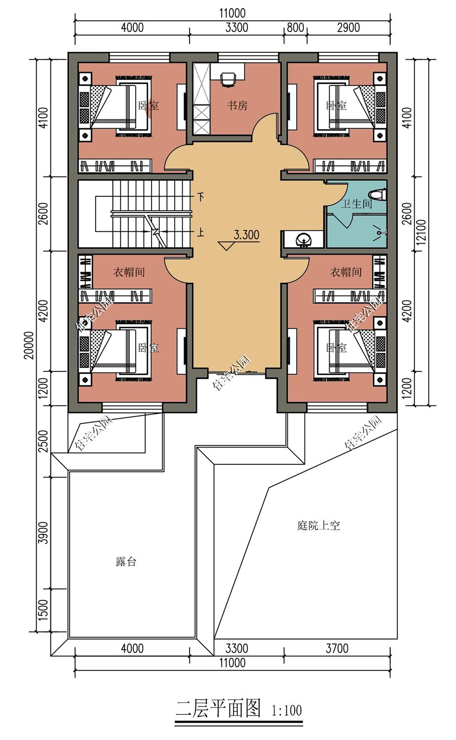
第4套:大露台+内庭院+多卧室,12×11米新中式雅宅,主体预算40万
占地尺寸:11m×12.1m
占地面积:141.54㎡
建筑面积:309.63㎡
建筑高度:10.92m
建筑结构:框架结构
建筑情况:设6室 2厅 3卫 1厨 1书房 1工作室 2衣帽间 1露台



第5套:占地百平+东西无窗+阳光房,9×11米新中式别墅,主体预算45万
占地尺寸:9.05m×11.9m
占地面积:116.8㎡
建筑面积:349.39㎡
建筑高度:13.49m
建筑结构:砖混结构
建筑情况:5卧室2客厅 1餐厅 1厨房 6卫 1书房 1阳光房




第6套:东西无窗+大露台,8×10米新中式别墅,主体预算40万
占地尺寸:8.39m × 9.9m
占地面积:83.06㎡
建筑面积:294.49㎡
建筑高度:15.6m
建筑结构:砖混结构
建筑情况:设6室 1餐厅 4卫 1厨 1客厅 1茶室 1家堂 1露台





第7套:双入户门+大露台+东西无窗,8×13米三层现代别墅,主体预算40万
占地尺寸:8.1m × 13.8m
占地面积:112.1㎡
建筑面积:329.3㎡
建筑高度:11.16m
建筑结构:砖混结构
建筑情况:设 6卧室 2客厅 1茶室 1餐厅 1厨房 6卫 1阳台 1露台




第8套:双入户门+东西无窗+多卧室,7×12米三层现代别墅,主体预算32万
占地尺寸:7.03m × 12m
占地面积:84.36㎡
建筑面积:257.96㎡
建筑高度:13.45m
建筑结构:砖混结构
建筑情况:设7室 1餐厅 3卫 1厨 1客厅 1储藏室 2休闲区 2阳台 1露台




这8套图纸都设计的非常好,你更喜欢哪一套呢?